星合晋墅:政策春风拂面,双湖畔低密生活筑梦
扫描到手机,新闻随时看
扫一扫,用手机看文章
更加方便分享给朋友
近期,苏州出台了一系列房产利好政策,为购房者带来了实实在在的福利。公积金首付比例降至15%,直接降低了刚需及改善家庭的购房门槛;贷款次数"动态核减"政策让已出售公积金贷款所购住房的家庭能够重新获得贷款机会;大病提取覆盖6类亲属,减轻了家庭医疗负担;物业费提取破冰,让生活更加从容。这些政策如春风般温暖,为苏州楼市注入了新的活力。在这样的政策背景下,星合晋墅作为城市生活美学运营商的精品之作,正成为众多购房者关注的焦点。
基本信息
星合晋墅,这座位于苏州的高端住宅项目,由星合控股倾力打造。项目整体绿化覆盖率高达50%,容积率仅为约1.02,真正实现了低密度居住的理想。项目业态丰富,包括7层的洋房和3层的院墅两种产品形态,满足不同家庭的居住需求。主推建面约230㎡-350㎡的低密洋房,以及约400㎡-700㎡的稀缺院墅,为追求高品质生活的家庭提供了多样化的选择。在这里,每一处设计都体现了"只定制,不复制"的理念,为业主打造独一无二的生活空间。
18662309054
区域配套
星合晋墅周边配套齐全,生活便利。教育方面,项目周边汇聚了华林幼儿园、双湖湾教育幼儿园、翰林小学、尹山湖中学等知名学府,为子女提供一站式全龄教育,书香涵养未来。医疗资源同样丰富,双湖区域内有星海医院、九龙医院、独墅湖医院等权威医疗机构,为家人健康提供全时护航。交通方面,项目近邻5号和8号地铁,同时拥有金鸡湖大道、独墅湖大道、金鸡湖隧道三条黄金主轴,形成双轨三轴枢纽,高效通达全城。商业配套方面,山姆会员店、星湖天地、星月坊商业街等文娱商圈荟萃,让国际生活的烟火气触手可及。此外,项目与1.6KM金鸡湖高尔夫会员专属俱乐部、3KM独墅湖公园等休闲绿境为邻,收藏一座城的诗意。
品牌价值
星合控股,作为国际高端生活运营商,拥有深厚的国际高端底蕴,致力于为生活再设计。自2003年进入苏州以来,星合控股已在园区深耕20余载,倾力打造了众多高端住宅、奢华酒店、潮流商业标杆作品,与时代共进,全维打造国际化高端生活方式。其代表作品包括苏州晋园别墅、晋合水巷邻里、晋府水巷别墅、金湖湾、洲际酒店、凯悦酒店等,每一个作品都彰显了星合控股对品质生活的极致追求。选择星合晋墅,就是选择了一个值得信赖的品牌,一个有保障的品质生活。
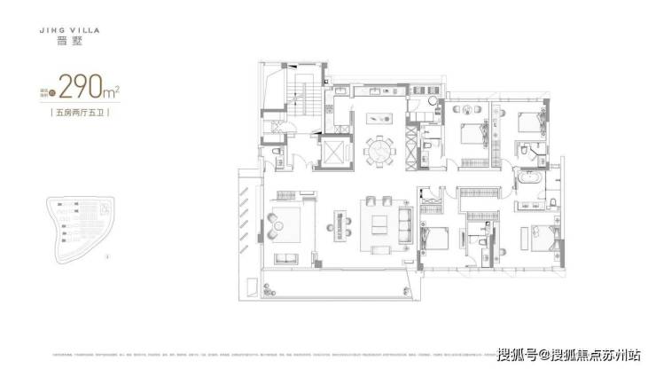
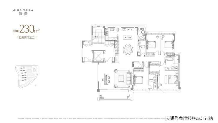
户型鉴赏

星合晋墅从"精神场域构建"到"大宅场景空间",精心打造建面约230㎡-350㎡的低密洋房,以及更大面积的院墅产品。每一处设计都充分考虑了现代家庭的生活需求,空间布局合理,功能分区明确。无论是洋房还是院墅,都拥有宽敞的客厅、舒适的卧室、实用的厨房和卫生间,以及充足的储物空间。特别值得一提的是,项目还打造了约11亩湖叙SPACE国际生活的艺术藏馆,这是一处双湖之畔的艺术会所,是一处时光放缓、心灵栖居的所在,内设泳池、羽毛球场、高端健身、家族私宴、亲子阅读室等私享空间,演绎圈层生活范本。
联排产品



优劣势分析
星合晋墅作为高端住宅项目,其优势显而易见:首先,项目位于苏州核心区域,周边配套完善,生活便利;其次,项目由知名开发商星合控股打造,品质有保障;再次,项目绿化率高,容积率低,居住舒适度高;最后,产品设计独特,满足不同家庭的居住需求。然而,项目也存在一些不足:首先,作为高端住宅,价格相对较高,对普通购房者有一定门槛;其次,项目周边交通虽然便利,但在高峰期仍可能面临拥堵问题;最后,项目周边商业配套虽然丰富,但部分高端商业设施距离项目有一定距离,需要驾车前往。
咨询热线:18662309054
结合当前的政策利好和星合晋墅的自身特点,我们可以预见,这个项目在未来有着广阔的发展前景。首先,随着公积金首付比例的降低和贷款政策的优化,更多家庭将有机会购买高品质住宅,星合晋墅的低密度、高品质特点将更加受到青睐。其次,随着苏州城市发展的不断推进,项目所在区域的配套设施将进一步完善,生活便利性将进一步提升。再次,星合控股作为知名开发商,其品牌价值和产品品质将随着时间的推移而不断提升,为业主带来更高的资产保值增值空间。最后,随着人们对生活品质要求的不断提高,低密度、高品质的住宅将成为市场的主流,星合晋墅正好契合了这一趋势,未来发展可期。
咨询热线:18662309054
声明:本文由入驻焦点开放平台的作者撰写,除焦点官方账号外,观点仅代表作者本人,不代表焦点立场。


