保利姑苏瑧悦(保利姑苏瑧悦)2025首页网站|楼盘详情-保利姑苏瑧悦价格-面积-户型
扫描到手机,新闻随时看
扫一扫,用手机看文章
更加方便分享给朋友
苏州「保利姑苏瑧悦」开发商售楼处电话:400-8228-664☎(预约热线)
Sales Office Tel: 400 8228 664 ✔☎ Reservation Hotline (certified)
温馨提示:〢欢迎来电咨询〢预约可节省您的时间〢恭迎品鉴〢
Warm reminder: 〢Welcome to call us for consultation〢Make an appointment to save your time〢Welcome to the tasting〢
【400-8228-664☎售楼处电话全面介绍 包含楼盘简介,价格,楼盘地址,户型图,交通规划,备案价,项目配套 售楼处位置丨特价房丨工抵房丨剩余房源丨户型图丨最新消息】 如有问题欢迎来电咨询,专业一对一热情服务,让您用专业眼光去买房。
保利·姑苏臻悦是保利“悦”字系产品,此前同为悦系品牌的“琅悦”已在狮山落地。
保利·姑苏臻悦 效果图
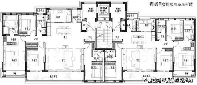
根据此前规划公示,保利·姑苏臻悦规划打造10幢住宅产品,其中1、4#为7F,3、7、10#为16F,2、6#为9F,5、8#为10F,9#为6F,整个项目仅276户。
保利姑苏瑧悦外立面,以“苏锦”针织的横平竖直美学为灵感,演绎为框体线条造型和简洁舒展的立面肌理,极具辨识度。
保利·姑苏臻悦打造建面约143㎡、159㎡、176㎡,三大改善户型。
此前公示了四种户型图。
高层3、10#,两梯四户设计,标准层户型为四室两厅两卫。南向面宽约11.8米,约8.2米阔景阳台与南向次卧相连,采光十足。
高层7# 两梯两户设计,标准层户型为四室两厅三卫。南向面宽约14.3米,南向两间套房设计,无论是尺寸感还是舒适度,拿捏~
4、8、9#两梯两户设计,标准层户型为四室两厅三卫。南向面宽约14.4米。
1、2、5、6#为一梯两户设计,标准层户型为四室两厅三卫,南向面宽约16米,厨房、餐厅、客厅、阳台相连,视野与空间无限延伸。进门处还配置了家政间,增加了存储空间。
土拍回顾——
2023年8月6日,苏地2023-WG-36号地块,开拍后仅1个小时,历经28轮竞价后,被保利发展拿下,楼面价约27561.91元/㎡,溢价率12.15% !
售楼处电话:400-8228-664(预约热线)该地块属于姑苏区金门板块,位于金门路北、后文家巷西。地块一路之隔便是姑苏金茂府。地块位置也不错,生活颇为便利,但周围都是老旧小区,城市界面需提升。
2012年,金茂以总价23.2亿元,拿下苏地2012-G-98号地块(即姑苏金茂府),成为苏州当年的总价地wang,此前备案均价在2.5-3.5万/㎡,如今姑苏金茂府二手房挂牌均价在4.4万/㎡。
根据公示内容,和悦里塘雅苑拟建20幢叠拼+洋房+小高层住宅产品。其中9幢为4+1F叠拼,11幢为11F洋房、2幢为17F小高层住宅产品。
图片来源:苏州自然资源和规划局网站
叠拼方面,一梯两户,但都是双开门,有独立的入户玄关,相当于一梯一户。
整体户型设计上下叠的一层为1个卧室,大横厅,餐客厅一体,1个卫生间外加一个储藏室的设计,可满足家庭聚餐、会友等需求。
▲下叠
▲上叠
洋房方面,一梯两户的设计,但是都有双开门,设有独立的入户门厅。
户型方面为4房3卫的设计,四开间朝南,大横厅设计,阳台还连接卧室阳台,整个室内采光度通风度更高,自然居住体验也更舒适。3卧室朝南,其中2个是套房,全屋飘窗。
高层方面,为两梯两户,一层两个户型。
西边户为3房2卫的户型设计,餐客厅一体,大横厅设计,三开间朝南,两个卧室朝南,其中一个为套房主卧,全屋飘窗。
东边户也是3房2卫的户型设计,和西边户仅有的区别就是竖厅。购房者可根据自己的喜好选择。
同步公示的还有洋房的外立面,大面积玻璃,品质感还是可见一斑的。
周边配套:
和悦里塘雅苑位于相城元和片区,紧邻高铁新城,交通自然没话说。
苏州北站+地铁2号线+太阳路快速路,无论是对外还是对内交通都颇为方便快捷。
图源:今日相城
商业配套方面,吾悦广场、圆融、大悦城均已运营,板块内还有天虹、繁华等商业综合体,从规划图中也可看出,项目周边还规划了商业用地。
吾悦广场实景图
教育方面,南侧有蠡口实验小学和蠡口中学,可满足小业主的入学要求。
苏州「保利姑苏瑧悦」售楼处预约热线:400-8228-664☎✅「已认证」✅✅
Huadu Sales Office: 400-8228-664 [Reservation Hotline]
温馨提示:网上售楼中心〢预约尊享Vip一对一专业置业顾问讲解!
Warm reminder: Online sales center〢make an appointment to enjoy VIP one-on-one professional real estate consultant explanation!
_Vip营销中心_____欢迎来电预约尊享内部折扣_____匠心钜制恭迎品鉴!中介勿扰!
_Vip Marketing Center_____Welcome to call to make an appointment to enjoy internal discounts_____Welcome to taste the exquisite craftsmanship! Don’t disturb the intermediary!
咨询预约热线:400-8228-664☎【售楼中心热线】楼盘项目全面介绍,本电话为开发商提供线上预约售楼电话,楼盘项目全面介绍(包含楼盘简介,均价,房价,现房,期房,别墅,叠墅,大平层,价格,楼盘地址,户型图,交通规划,备案价,备案名,项目配套,样板间,开盘时间,认筹时间,楼盘详情,售楼处电话,最新消息,最新详情,周边配套,一房一价,最新进展等详情咨询)楼盘详情丨价格丨更多优惠丨机不可失丨欢迎致电丨诚邀品鉴!售楼处位置丨特价房丨工抵房丨剩余房源丨户型图丨最新消息丨免责声明:将文章内容综合来源于网络、只作分享,版权归原作者所有!!如有侵权,请联系我们,我们第一时间处理如有问题欢迎来电咨询,专业一对一热情服务,让您用专业眼光去买房预约热线:400-8228-664【预约热线】
声明:本文由入驻焦点开放平台的作者撰写,除焦点官方账号外,观点仅代表作者本人,不代表焦点立场。


