五潨泾锦院售楼处(2024年)五潨泾锦院欢迎您|楼盘详情/最新房价
扫描到手机,新闻随时看
扫一扫,用手机看文章
更加方便分享给朋友
苏州五潨泾锦院
售楼处电话☎:400-812-3664✔✔
如有问题欢迎来电咨询,来电即可享受买房优惠!
预约来电尊享购房优惠,可预约案场内部销售人员,专业一对一热情服务,让您用专业眼光去买房。
刚刚,
相城超大体量别墅盘规划出炉!
即苏地2023-WG-60号地块
拟建34幢3F联排+6F叠拼
联排/合院两大户型曝光280/352㎡
南向面宽最大约15米
6F叠拼户型220-222㎡
五潨泾锦院售楼处电话☎:400-812-3664✔✔
五潨泾锦院售楼处电话☎:400-812-3664✔✔
五潨泾锦院售楼处电话☎:400-812-3664✔✔
阳澄湖60号地块,即苏地2023-WG-60号地块,位于相城区元和街道华元路南、蠡东路(规划)东,占地约4.7万㎡,容积率1.05。拟建24幢3F联排和10幢6F叠墅。
鸟瞰图如下:
小区在蠡东路和林荫一路上均设有出入口,此外,林荫五路还设有一人行出入口。
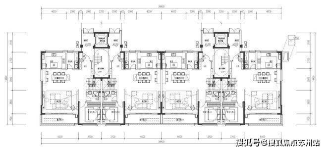
总平面图如下:
五潨泾锦院售楼处电话☎:400-812-3664✔✔
1#南立面图如下:
1#3F联排一层平面图如下:
352㎡合院,南向面宽均为15米,一层客厅开间约8.7米。
五潨泾锦院售楼处电话☎:400-812-3664✔✔
5#南立面图如下:
5#3F联排一层平面图如下:
280㎡联排一栋4户,南向面宽均为12米,一层客厅开间约8.4米。
五潨泾锦院售楼处电话☎:400-812-3664✔✔
26#6F叠墅南立面图如下:
五潨泾锦院售楼处电话☎:400-812-3664✔✔
五潨泾锦院售楼处电话☎:400-812-3664✔✔
26#6F叠墅一层平面图如下:
叠拼一栋4户,面积220-222㎡,南向面宽9.7米,一层客厅开间约6米。
五潨泾锦院售楼处电话☎:400-812-3664✔✔
先来看五潨泾锦院——
即苏地2023-WG-33号地块,位于相城区元和街道华元路南、柴米港东,容积率1.3,规划16幢5F叠墅+5幢7-8F洋房。
鸟瞰图如下:
总平面图:
五潨泾锦院售楼处电话☎:400-812-3664✔✔
五潨泾锦院售楼处电话☎:400-812-3664✔✔
官方户型图首次曝光,叠墅建面约265-295㎡。
五潨泾锦院售楼处电话☎:400-812-3664✔✔
五潨泾锦院售楼处电话☎:400-812-3664✔✔
先来看五潨泾澄院——
即苏地2023-WG-34号地块,位于相城区元和街道华元路南、蠡塘河东,容积率1.2,规划10幢5F纯叠墅+1幢4F商业。
鸟瞰图如下:
五潨泾锦院售楼处电话☎:400-812-3664✔✔
商业效果图↓↓
鸟瞰图如下:五潨泾锦院售楼处电话☎:400-812-3664✔✔
总平面图:
五潨泾锦院售楼处电话☎:400-812-3664✔✔
五潨泾锦院售楼处电话☎:400-812-3664✔✔
五潨泾锦院售楼处电话☎:400-812-3664✔✔
最后,再来回顾下拿地经过——
相城阳澄湖60号地块,在2023年10月被苏州相高新拿下 ,楼面地价16841元/㎡,溢价率0.24%,总价约8.3亿。
五潨泾锦院售楼处电话☎:400-812-3664✔✔
地块位于相城高新区五众泾板块,毗邻阳澄湖, 属于相城城区不可多得的低密度住宅区。
从具体位置上来看,该地块距离 轨交8号线古香圩站 点步行可达,出行便利。周围聚集了陆慕高级中学、苏州大学阳澄湖校区等学校。五潨泾锦院售楼处电话☎:400-812-3664✔✔
地块北侧是33、34号地块,即五潨泾锦院、澄院,同样是低密住宅,未来板块新房竞争激烈,且多为低密别墅产品↓↓
苏州五潨泾锦院
售楼处电话☎:400-812-3664✔✔
如有问题欢迎来电咨询,来电即可享受买房优惠!
预约来电尊享购房优惠,可预约案场内部销售人员,专业一对一热情服务,让您用专业眼光去买房。
房产知识解答:
一、现房和期房:
现房是已经建好的房子,而且可以直接领到房产证,过户入住。
二、70年产权
70年产权在我国法律规定中,“土地使用权”与“房屋产权”是两个不同的概念,土地使用权出让的较高年限是:居住用地70年,70年土地使用期满后,土地收归国有,地上建筑物仍然属于业主所有,如果再次申请土地使用权,则应该根据当时的地价水平,补缴土地出让金。
三、公摊
所谓公摊面积,是分摊的公用建筑面积的简称,它与套内建筑面积之和构成了一套商品房的建筑面积。需要分摊的共有建筑面积为整幢建筑物的建筑面积扣除整幢建筑物各套套内建筑面积之和,并扣除作为独立使用的地下室、车棚、车库,为多幢服务的警卫室、管理用房,以及人防工程等之后的建筑面积。
四、容积率
容积率,是指一个小区的地上总建筑面积与用地面积的比率。对于开发商来说,容积率决定地价成本在房屋中占的比例,而对于住户来说,容积率直接涉及到居住的舒适度。一个良好的居住小区,高层住宅容积率应不超过4,多层住宅应不超过1.5,绿地率应不低于40%。
五、得房率
得房率售楼处电话:400-8123-664【售楼热线】=(建筑面积-公摊面积)/销售面积,是买房比较重要的一个指标。计算房屋面积时,计算的是建筑面积,所以得房率太低,不实惠;太高,不方便。因为得房率越高,公共部分的面积就越少,住户也会感到压抑。一般,得房率在80%左右比较合适,公共部分既宽敞气派,分摊的面积也不会太多,比较实惠。
六、房屋使用面积
房屋使用面积是指住宅中以户(套)为单位的分户(套)门内全部可供使用的空间的水平投影面积。包括日常生活起居使用的卧室、起居室和客厅、亭子间、厨房、卫生间、室内走道、楼梯、壁橱、阳台、地下室、假层、附层(夹层)、阁楼(暗楼)等面积。住宅使用面积按住宅的内墙面水平投影线计算。内墙面装修厚度计入使用面积。
七、建筑类型
多层:高于10米、低于或等于24米的建筑物。多层房屋一般为4~8层,一般采用砖混结构,少数采用钢筋混凝土结构。
高层:高于24米
声明:本文由入驻焦点开放平台的作者撰写,除焦点官方账号外,观点仅代表作者本人,不代表焦点立场。


