外滩瑞府售楼处电话→外滩瑞府售楼中心电话→虹口外滩瑞府楼盘百科→首页网站→楼盘百科→首页网站→24小时热线电话
扫描到手机,新闻随时看
扫一扫,用手机看文章
更加方便分享给朋友
外滩瑞府售楼处电话:400-812-3664
上海虹口外滩瑞府售楼处电话☎:400-8123-664(官方售楼处预约看房热线)
虹口北外滩旁
10号线四川北路站约400米
华润置地虹口项目正式定名
「外滩瑞府」
预计将推约120-240㎡高层住宅
装修标准4000元/㎡
预计下半年入市!
外滩瑞府售楼处电话:400-812-3664
上海虹口外滩瑞府售楼处电话☎:400-8123-664【开发商售楼处预约看房热线】(一对一热情服务)
看房请提前致电预约,可享受内部渠道优惠!联系销售人员获取最新一房一价表,官方售楼处最新优惠底价!开发商官方销售人员将详细介绍每个户型的独特设计和优势,带您参观样板间,感受精装修的品质和温馨氛围。您还可以了解周边配套设施,包括高端购物中心、优质学校和便捷交通网络,让您的居住体验更加完美。
外滩瑞府售楼处电话:400-812-3664
上海虹口外滩瑞府售楼处电话☎:400-8123-664(官方售楼处预约看房热线)
华润·外滩瑞府售楼处电话:400-8123-664
外滩瑞府售楼处电话:400-812-3664
上海虹口外滩瑞府售楼处电话☎:400-8123-664(官方售楼处预约看房热线)
2024年11月27日,华润置地以513608万元竞得虹口区C080301单元hk191A-03地块,容积率3.87,占地面积14280.63㎡,溢价率约11.97%,成交楼面价约92934元/㎡。
华润·外滩瑞府售楼处电话:400-8123-664日前,项目规划设计方案公示,小胖君第一时间为大家带来了规划设计方案解析、日照分析,一起来先睹为快吧!

外滩瑞府售楼处电话:400-812-3664
上海虹口外滩瑞府售楼处电话☎:400-8123-664(官方售楼处预约看房热线)
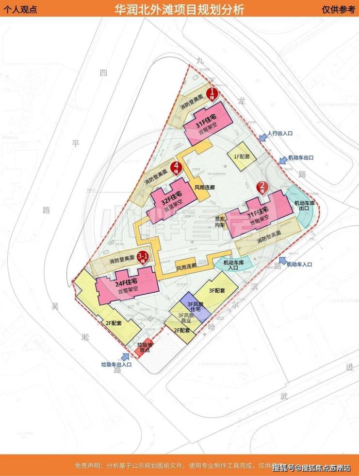
设计方案分析
该项目拟建设4幢24-31F高层、1幢3F风貌住宅、1幢2F公共服务设施及其他配套建筑,占地面积14280.63㎡,容积率3.87,总建筑面积86241㎡。
在项目的交通规划上,人行出入口设置于九龙路上,与车行流线分开。车行入口与出口采用分流设计,入口位于南侧的哈尔滨路,出口则回归九龙路,这种布局不仅优化了交通流线,避免了进出车辆的拥堵,还提升了社区内部的行车安全性和舒适性。
此外,项目地面无停车位,无人车混行的安全隐患,为居民营造了舒适的步行环境。楼栋之间,风雨连廊贯穿相连,风雨交加或炎炎烈日之下,居民都能连廊下,轻松穿梭于小区的各个区域。
另外,项目中小套型占比40%,装修标准不低于4000元/㎡,高层1楼架空设计,整体品质还是非常高的。
华润·外滩瑞府售楼处电话:400-8123-664

日照分析
华润·外滩瑞府售楼处电话:400-8123-664外滩瑞府的分析结果是这样:
计算已考虑周边所有建筑的影响,结果表明西南部商业春秋季会对3#产生遮挡,冬季会对1#2#3#4#产生遮挡。
春秋季:2#采光优异几乎不存在遮挡。1#3#中低层受遮挡。4#低层受遮挡。就具体遮挡时间而言,1#除早晨和傍晚外其余时间段均受遮挡。3#主要在下午受西南部商业遮挡。4#主要在上午和下午受2#3#遮挡。
冬季:2#采光优异几乎不存在遮挡。1#3#4#中低层受遮挡。就具体遮挡时间而言,1#全天不同时段均会受到遮挡。3#主要在下午受西南部商业遮挡。4#主要在中午和下午受3#和西南部商业遮挡。
夏季:由于楼栋建筑朝向为东南偏转和夏季太阳角度问题,楼栋在下午处于阴影中,日照缺失,不过反而有利于减缓夏季西晒。3#中间户和东户由于处于凹处位置,日照略有缺失。4#中低层受遮挡。就具体遮挡时间而言,4#主要在上午受2#遮挡。
(以下日照分析均为实际楼层)
春分秋分(9-15时)在售楼栋日照时间和动图

外滩瑞府售楼处电话:400-812-3664
上海虹口外滩瑞府售楼处电话☎:400-8123-664(官方售楼处预约看房热线)
春秋日照

华润·外滩瑞府售楼处电话:400-8123-664
夏至(9-15时)在售楼栋日照时间和动图

外滩瑞府售楼处电话:400-812-3664
上海虹口外滩瑞府售楼处电话☎:400-8123-664(官方售楼处预约看房热线)
夏至日照

冬至(9-15时)在售楼栋日照时间和动图
华润·外滩瑞府售楼处电话:400-8123-664

外滩瑞府售楼处电话:400-812-3664
上海虹口外滩瑞府售楼处电话☎:400-8123-664(官方售楼处预约看房热线)
冬至日照

华润·外滩瑞府售楼处电话:400-8123-664
免责:上述日照分析是专业规划师按照项目规划设计方案所作,不代表实际的日照,仅供参考。

华润·外滩瑞府售楼处电话:400-8123-664
区位分析
该项目位于四川北路板块,南侧紧挨着北外滩核心区,向北是上海音乐谷,位置非常好。
项目距10号线四川北路站直线距离约400米,完全可以实现步行进站;向北不远处就是北横通道,自驾也非常便利。
周边配套非常丰富,包括利通广场、壹丰广场、中信广场1933购物中心等大型商业,四川北路公园、上海是第一人民医院等。

华润·外滩瑞府售楼处电话:400-8123-664
华润四川北路项目距离北外滩核心区直线距离仅约600米,距离白玉兰广场直线距离仅约1公里,近享北外滩世纪规划红利。
华润·外滩瑞府售楼处电话:400-8123-664
根据北外滩规划,将建设480米高的上海北外滩中心,未来将与其他17栋180米以上的超高层建筑群,共同构筑起浦西最美天际线。
北外滩与陆家嘴超高层建筑群、外滩万国建筑群,共同构成“黄金三角”。
陆家嘴成为上海金融之巅花了30年,而留给北外滩的时间只有10年!所以,你会看到,世纪规划北外滩兑现的速度简直史无前例!
外滩瑞府售楼处电话:400-812-3664
上海虹口外滩瑞府售楼处电话☎:400-8123-664(官方售楼处预约看房热线)
北外滩效果图
2023年,北外滩开发建设重大工程项目22个,投资超过800亿元,实现开竣工面积141.9万㎡。
2024年,北外滩将推动开建重大工程项目48个,投资1890亿元,计划实现开竣工面积超140万㎡。
前几年还停留在图纸上的城市地标,如今已经屹立江边,成为上海新的天际线!北外滩世界级会客厅已峥嵘初显!
外滩瑞府售楼处电话:400-812-3664
上海虹口外滩瑞府售楼处电话☎:400-8123-664【开发商售楼处预约看房热线】(一对一热情服务)
看房请提前致电预约,可享受内部渠道优惠!联系销售人员获取最新一房一价表,官方售楼处最新优惠底价!开发商官方销售人员将详细介绍每个户型的独特设计和优势,带您参观样板间,感受精装修的品质和温馨氛围。您还可以了解周边配套设施,包括高端购物中心、优质学校和便捷交通网络,让您的居住体验更加完美。
外滩瑞府售楼处电话:400-812-3664【预约☎】√√楼盘项目全面介绍,本电话为开发商提供线上预约售楼电话,楼盘项目全面介绍(包含楼盘简介,均价,房价,现房,期房,别墅,叠墅,大平层,价格,楼盘地址,户型图,交通规划,备案价,备案名,项目配套,样板间,开盘时间,认筹时间,楼盘详情,售楼处电话,最新消息,最新详情,周边配套,一房一价,最新进展等详情咨询)楼盘详情丨价格丨更多优惠丨机不可失丨欢迎致电丨诚邀品鉴!售楼处位置丨特价房丨工抵房丨剩余房源丨户型图丨最新消息丨免责声明:将文章内容综合来源于网络、只作分享,版权归原作者所有!!如有侵权,请联系我们,我们第一时间处理如有问题欢迎来电咨询,专业一对一热情服务,让您用专业眼光去买房。如果您想了解更多楼盘详情,欢迎提前预约拨打外滩瑞府售楼处电话:4008123664【预约☎】√√
房产小知识:
1. 空鼓:局部面与基层没有胶合剂或胶合剂没有起作用。
2. 地基:建筑物下面直接承受建筑物重量的土层称为地基。
3. 基础:建筑物的最下端与土壤直接接触的部分称为基础。
4. 基础的作用:基础的作用是承受建筑物全部重量并将之分散传递给地基。
5. 墙体是构件,也可以是构件:是维护分割构件,同时也可以是承重构件。
6. 在一般砖混结构房屋中,墙体也是主要的:承重构件。
7. 停车场:指在建设用地内为停放机动车和非机动车须配置的场地。
8. 停车场小型机动车位面积计算:按每车位25平方米计算。
9. 自行车位按每车位多少平方计算:1.2平方米计算。
10. 商品房销售面积又称之为:套建筑面积
11. 套建筑面积包括哪两部份:套内建筑面积和分摊的公用建筑面积。、商品房预售许可证是由什么单位向什么单位发放的一项证书:是房地产管理部门向房地产开发公司颁发的一项证书。
12. 商品房预售许可证的作用是:用以证明列入证书范围内的正在建设中的房屋已经可以预先出售给承购人。
13. 契税是指:房屋所有权发生变更时,就当事人所订契约按房价的一定比例向产权承受人征收的一次性税收。
14. 公共维修基金是指:住宅楼房的公共部位和共用设施、设备的维修养护基金。
15. 公共维修基金的交纳人是:购房人。
16. 公共维修基金何时交纳:在交房时交纳。
17. 印花税是指:印花税是对经济活动和经济交往中书立、领受凭证征收的一种税。
18. 居住用地使用年限:70年。
19. 商业用地使用年限:40年。
20. 工业用地使用年限:40年。
21. 综合用地使用年限:50年。
22. 土地使用年限届满后怎么办:业主可以在继续交纳土地出让金或使用费的前提下,继续使用该土地。
23. 申办产权需具备哪些资料:审核后购销合同一份、收件收据、产权申请登记表、产权登记发证审批表、房屋所有权情况调查表、测量后的正式图纸。
24. 办理产权需交纳哪些费用:产权登记费、勘丈测绘费、工本费。
25. 房地产产权初始登记是指:对未经登记机关确认其房地产权利,领取房地产权利证书的土地使用权及建筑物、附着物的所有权进行的登记。
26. 房地产登记是指:房地产产权登记。
27. 房地产登记的种类:分为初始登记、转移登记、抵押登记、变更登记、其它登记。
28. 什么情形属于房地产变更登记:
(1)地产使用用途改变;
(2)权利人姓名或名称发生变化的;
(3) 房地产座落名称或房地产名称发生变化的;
(4)建筑物、附着物倒塌、拆除。
29. 房地产登记是以什么单位进行登记的:是以一宗土地为单位进行登记的。
30. 申请房地产登记可否委托他人代理:可以委托他人代理。
31. 由代理人办理申请房地产登记的,应向登记机关提交什么材料:申请人的委托书。
32. 通过买卖、交换、赠与将房地产转移给他人的法律行为称之为:房地产转让。
33. 房地产转让时其他公用设施是否一起转让:转让人对其他公用设施所拥有的权益同时转移。
34. 在什么情况下房地产开发项目可以交付使用:房地产开发项目竣工,经验收合格后,方可交付使用;
35. 未经验收或者验收不合格的房地产开发项目可否交付使用:不得交付使用。
36. 预售面积是指:预售面积是指全部按建筑设计图上尺寸计算的房地产建筑面积。
37. 预售面积只供什么情况下使用:只供房地产预售时使用。
38. 竣工面积是指:竣工面积是指房地产竣工后实测的面积。
39. 商品房预售须符合哪些条件?:
(1)交付全部土地使用权出让金,取得土地使用权证书;
(2)有建设工程规划许可证;
(3)按提供预售的商品房计算,投入开发建设资金达到工程建设总投资的25%以上,并已经确定施工进度和竣工交付日期;、
(4)向县级以上人民政府房产管理部门办理预售登记,取得商品房预售许可证明。
40. 哪些情况下预售房购买者可以要求取消预售房合同:
(1)房屋开发公司不能按照原定日期交付预购房屋;
(2)建成后的房屋实际面积与预售房合同确定的面积不相符;
(3)建成后房屋建筑的材料与预售合同所列建材不相符。
41. 五证是指:《国有土地使用证》、《建设用地规划许可证》、《建设工程规划许可证》、《建设工程开工证》、《商品房预售许可证》。
42. 国有土地使用证:是证明土地使用者向国家支付土地使用权出让金,获得了在一定年限内某块国有土地使用权的法律凭证。
43. 建设用地规划许可证:是建设单位在向土地管理部门申请征用、划拨土地前,经城市规划行政主管部门确认建设项目位置和范围符合城市规划的法定凭证。
44. 建设工程规划许可证:是有关建设工程符合城市规划要求的法律凭证。
45. 二书是指:《新建住宅质量保证书》和《新建住宅使用说明书》。
46. 房地产抵押是指:指债务人或第三人(抵押人)以其合法拥有的房地产作为担保物向债权人(或押权人)提供债务履行担保的行为。
47. 房地产按揭是否属于房地产抵押的一种形式:是。
48. 申请抵押登记应提交什么资料:
(1)《房地产抵押登记申请书》;
(2)委托书;
(3)房地产证;
(4)夫妻双方身份证、户口簿、结婚证或未婚姻证明;
(5)商品房买卖合同和个人住房借款合同。
49. 贷款期限在1年内的如遇利息调整如何处理:不做调整。
50. 贷款期限在1年以上的如遇利息调整如何处理:于下一年1月1日开始,按相应期限档次利率执行新利率。
51. 贷款人提前偿还贷款时本息如何计算:提前清偿的部分在以后期限不再计息,此前已计收贷款利息不作调整。
52. 银行按揭是指:购房抵押贷款,是购房者以所购房屋的产权作抵押,由银行先行支付房款给发展商,以后购房者按月向银行分期支付本息。
53. 个人住房按揭需提交哪些资料:购房身份证、户口簿、结婚证原件及复印件(未婚证明原件)、 收入证明(个体户则提供营业执照及税票)、已首付购房款收据原件及复印件、购房合同、贷款行的活期存折、贷款申请书、个人住房借款合同、借款借据、委托银行扣收购房还款协议书、住房抵押承诺书。
54. 住房公积金是指:单位为其在职职工缴存的长期住房储金。
55. 公积金贷款是指:由城市住房资金管理中心委托银行向购买自住住房的公积金交存人发放的贷款。
56. 公积金贷款担保费用计算公式:贷款金额×贷款年限×千分之0.75。
57. 什么情况下公积金贷款担保服务费可有优惠:首次购买普通自住房和改善型住房的客户在申请公积金(组合)贷款时。
58. 公积金贷款担保服务费优惠幅度是:减免40%。
59. 申请住房公积金贷款的条件:凡住房公积金连续缴存6个月以上或累计缴存公积金一年以上, 并且目前仍在缴存公积金,才有资格申请。
60. 办理公积金贷款应提供哪些资料:身份证、户口簿、结婚证、收入证明、公积金卡、审核后购房合同一份,首付款票据。
61. 组合贷款是指:公积金贷款与商业贷款的合称。
62. 北京市限购政策:连续满五年的社保或五年的纳税申报记录。
63. 目前住房公积金贷款最高额度为:80万元。
64. 存量成套住房公积金贷款首付款比例为:30%。
65. 90平方米以内(含)商品住房公积金贷款首付比例为:30%。
66. 什么情况下可再次申请办理住房公积金贷款:借款申请人还清住房公积金贷款后。
67. 契税是以什么价格为基数收取的:总房价。
68. 契税税率为:90㎡以下的1%;90~140㎡为1.5%;140㎡以上为3%。
声明:本文由入驻焦点开放平台的作者撰写,除焦点官方账号外,观点仅代表作者本人,不代表焦点立场。


