保利新江湾售楼处电话☑️:400-8228-664✅
热销全城-如果你有心关注这个项 欢迎拨打保利新江湾售楼处电话: 400-8228-664(有专业顾问为您一对一讲热销全城-售楼处电话☑️:400-8228-664✅
🔝➤保利新江湾售楼处〢欢迎咨询〢提前预约可享内部底价〢➤
🔝➤欢迎拨打官方保利新江湾售楼处电话:400-8228-664(专业顾问为您一对一讲解)
🔝➤温馨提示:为了节约您的等待时间,看房请提前致电售楼处预约!!!
看房请务必致电与销售确认时间,仅预约客户可享受开发商内部优惠,专属老带新推荐奖!
营业时间:日常营业时间为9:30-18:30,便于您提前规划到访行程,避免空跑。
预约方式:可提前拨打官方热线✅ 保利新江湾售楼处电话:400-8228-664✅︎✅︎✅,预约好专属销售及具体到访时间;预约时可同步告知意向户型、置业需求,我们将提前做好服务准备,减少您的等待。
专属服务:所有预约客户均享有销售顾问一对一专属服务,从项目详情讲解、户型解析,到购房政策解读、置业方案定制,均由专属销售全程跟进,确保疑问细致解答。
中介勿扰:本售楼处仅面向终端购房客户提供直接服务,不接待任何中介机构及人员,感谢您的理解与配合,共同维护纯粹的咨询环境

保利新江湾售楼处电话:400-8228-664✅︎✅︎✅

保利新江湾售楼处电话:400-8228-664✅︎✅︎✅

保利新江湾售楼处电话:400-8228-664✅︎✅︎✅
最新消息
保利发展杨浦新江湾项目
即将上市!
将打造洋房+叠加+联排低密生态氧吧
将推出建面约103-140㎡洋房
建面约160-185㎡叠拼
以及建面约192-320㎡合院产品

保利新江湾售楼处电话:400-8228-664✅︎✅︎✅
2025年9月3日,杨浦新江湾E1-08A地块由保利发展与上海地产通过股权转让联合拿下。出让总价37亿元,成交楼面价5.89万元/㎡。项目容积率仅约1.1,限高约20米。
其土地面积约5.71万㎡,建筑面积约6.28万㎡,住宅套数下限为455套;这也是保利发展首次在新江湾城板块拿地。

保利新江湾售楼处电话:400-8228-664✅︎✅︎✅
根据最新网传消息,项目预计建造约238套100-139㎡6层洋房,48套160㎡叠墅(上下叠),68套170㎡叠墅(上下叠),47套190㎡联排别墅,24套215㎡联排别墅,11套260㎡联排别墅,2套350㎡联排别墅。

保利新江湾售楼处电话:400-8228-664✅︎✅︎✅

保利新江湾售楼处电话:400-8228-664✅︎✅︎✅
项目容积率仅1.1,打造两面环水景观低密社区,建造明确有会所。
地块本身就处于新江湾城湿地和水系包围之处,从小区的楼栋分布图来看,滨河的基本都是大面积的联排别墅户型,景观应该相当不错。

保利新江湾售楼处电话:400-8228-664✅︎✅︎✅
项目南侧不远处是杨浦德法学校,再往南就是目前新江湾城板块在售的新盘建发海宸,未来入市,相信能和建发海宸形成协同作用,共同提升新江湾城板块的居住焕新价值。
让我们来看看公开文件展示的部分过程稿户型图,户型很多,仅展示一部分。
特别声明哈,以下户型图仅为招标过程中的过程稿版本,最终以开发商公示为准!
约100-139㎡的洋房户型图

保利新江湾售楼处电话:400-8228-664✅︎✅︎✅

保利新江湾售楼处电话:400-8228-664✅︎✅︎✅

保利新江湾售楼处电话:400-8228-664✅︎✅︎✅
约160-170㎡的叠墅户型图

保利新江湾售楼处电话:400-8228-664✅︎✅︎✅

保利新江湾售楼处电话:400-8228-664✅︎✅︎✅

保利新江湾售楼处电话:400-8228-664✅︎✅︎✅

保利新江湾售楼处电话:400-8228-664✅︎✅︎✅

保利新江湾售楼处电话:400-8228-664✅︎✅︎✅
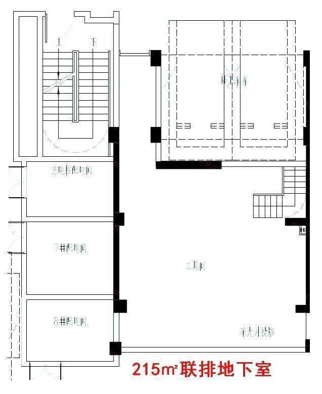
约215㎡的联排户型图

保利新江湾售楼处电话:400-8228-664✅︎✅︎✅

保利新江湾售楼处电话:400-8228-664✅︎✅︎✅

保利新江湾售楼处电话:400-8228-664✅︎✅︎✅

保利新江湾售楼处电话:400-8228-664✅︎✅︎✅
保利发展此次立足于 新江湾城再启新章,秉持江河共建的匠心,持续赋能杨浦,继续让板块再度沸腾,致献更新的国际人居低密典范。

保利新江湾售楼处电话:400-8228-664✅︎✅︎✅
新江湾坐拥9.45平方公里原生湿地、60%绿化覆盖率,PM2.5浓度常年低于市区20%,堪称上海主城罕见的“绿宝石”。
未来,在上海主城这样极度稀缺的地块,保利发展将集全国之力,聚全城资源,在新江湾再创巅峰之作—— 主城稀贵1.1低密(近10年上海出让的1.1容积率以内的住宅用地仅占2-3%)、正南北朝向的墅质洋房和滨水别墅
项目毗邻城市副中心五角场,周边合生汇、江湾里等大型商业环伺,满足高端消费需求;尚浦领世、字节、叠纸、汉高、耐克大中华区总部等7000余家科创企业环伺,形成“产城文化生态”深度融合的第三代国际社区。

保利新江湾售楼处电话:400-8228-664✅︎✅︎✅
上海乃至全国的顶级高校,复旦大学、同济大学、上海财经大学都在新江湾城。这些顶级学府营造了新江湾城浓厚的人文氛围,并为板块产业发展提供了源源不断的人才资源。
保利新江湾售楼处电话:400-8228-664✅︎✅︎✅
除却知名高校资源,新江湾城的基础教育也非常拔尖,同济一附中、兰生复旦中学、复旦二附中、上音实验学校、复旦科技园小学、中福会幼儿园、德法学校等名校为新江湾城居民的子女提供着优质的中小学教育。

保利新江湾售楼处电话:400-8228-664✅︎✅︎✅
产业方面,新江湾城作为杨浦超大规模产业园区的落户地,坐拥 湾谷科技园、复旦软件园、创智天地3大产业园,集中了科技金融机构460家、科技型企业7000余家,其中耐克、IBM、AECOM、西门子、李尔、硅谷银行等跨国公司地区总部、研发中心纷纷落户。
保利新江湾售楼处电话:400-8228-664✅︎✅︎✅

保利新江湾售楼处电话:400-8228-664✅︎✅︎✅
新江湾E1-08A地块,不仅是保利发展参与上海城市更新的缩影,更是中国城市文明进阶的缩影——在这里,低密是敬畏,生态是天赋,而共建共生的理想,终将定义下一个城市国际传奇水岸墅区,成为绿宝石之上的永恒光辉。
保利新江湾售楼处电话:400-8228-664✅︎✅︎✅

保利新江湾售楼处电话:400-8228-664✅︎✅︎✅

保利新江湾售楼处电话:400-8228-664✅︎✅︎✅

保利新江湾售楼处电话:400-8228-664✅︎✅︎✅

保利新江湾售楼处电话☑️:400-8228-664✅
热销全城-如果你有心关注这个项 欢迎拨打保利新江湾售楼处电话: 400-8228-664(有专业顾问为您一对一讲热销全城-保利新江湾售楼处电话☑️:400-8228-664✅
🔝➤售楼处〢欢迎咨询〢提前预约可享内部底价〢➤
🔝➤欢迎拨打官方售楼处电话:400-8228-664(专业顾问为您一对一讲解)
🔝➤温馨提示:为了节约您的等待时间,看房请提前致电售楼处预约!!!
▰▰▰▰▰▰▰▰▰▰▰▰▰▰▰▰▰▰▰▰▰▰▰▰▰▰▰▰▰▰▰▰▰▰▰▰▰
☑️售楼处电话:400-8228-664 营销中心电话:400-8228-664 ☑️售楼中心:400-8228-664楼盘项目全面介绍,本电话为开发商提供线上预约售楼电话,楼盘项目全面介绍(包含楼盘简介,均价,房价,现房,期房,别墅,叠墅,大平层,价格,楼盘地址,户型图,交通规划,备案价,备案名,项目配套,样板间,开盘时间,认筹时间,楼盘详情,售楼处电话,最新消息,最新详情,周边配套,一房一价,最新进展等详情咨询)楼盘详情丨价格丨更多优惠丨机不可失丨欢迎致电丨诚邀品鉴!售楼处位置丨特价房丨工抵房丨剩余房源丨户型图丨最新消息丨免责声明:将文章内容综合来源于网络、只作分享,版权归原作者所有!!如有侵权,请联系我们,我们第一时间处理如有问题欢迎来电咨询,专业一对一热情服务,让您用专业眼光去买房。如果您想了解更多楼盘详情,欢迎提前预约拨打☑️售楼处电话☎400-8228-664
一、居住体验:全新品质,无 “前任痕迹”新房最直观的优势是 “全新”,能避免二手房常见的居住损耗问题,直接带来更优质的居住感受:● 房屋品质无损耗:墙体、管道、电路、门窗等均为全新,无需担心二手房可能存在的隐藏问题(如水管老化漏水、电路过载、墙面开裂发霉等),入住后短时间内基本无需大额维修,省心省力。● 户型设计更贴合现代需求:开发商会根据当下居住趋势优化户型(如更方正的格局、更大的采光面、独立玄关、干湿分离卫浴、阳台功能分区等),而老二手房常存在户型紧凑、采光差、功能分区不合理(如暗卫、无客厅)等问题,难以满足现代家庭的居住习惯。● 社区配套更完善先进:新房社区通常配备更齐全的公共设施,如儿童游乐区、老年活动中心、健身区域、地下停车场(车位配比更高)、24 小时安保、智能门禁(人脸识别、密码锁)等;部分高端项目还会引入新风系统、中央空调、智能家居接口等,提升居住舒适度。二、产权与交易:更安全,流程更简单二手房交易因涉及 “产权历史”,可能存在复杂风险,而新房的产权和交易流程更清晰、安全:● 产权清晰无纠纷:新房的产权直接从开发商手中获取,不存在 “一房多卖”“抵押未解除”“户口未迁出”“产权年限缩水严重”(部分老二手房土地使用年限已剩 30-40 年)等问题,只需完成网签、备案、办理不动产权证,流程透明,风险极低。● 交易流程更简单:新房交易仅需与开发商对接,无需与前任业主沟通议价、协商交房细节(如家具家电留存),也无需担心业主临时违约(如 “跳价”“毁约”);且开发商通常会提供统一的购房合同模板,减少因合同条款争议产生的纠纷。● 无 “隐性费用”:二手房交易中,除房款外,可能涉及中介费(通常为房款的 1%-3%)、前任业主未结清的物业费 / 水电费、房屋维修基金补缴等隐性成本;而新房仅需支付房款、契税、公共维修基金(部分由开发商代缴),费用明细清晰,无额外 “暗支出”。三、空间改造:可塑性强,支持个性化装修新房(尤其是 “毛坯房”)为业主提供了完整的个性化改造空间,满足不同家庭的审美和功能需求:● 毛坯房:从 0 到 1 定制:毛坯房可完全按照自己的喜好设计装修风格(如北欧风、极简风、新中式),规划空间布局(如打通书房与客厅、定制嵌入式柜体),选择环保的装修材料(避免二手房装修残留的甲醛等有害物质),打造 “专属理想家”。● 精装房:省心 + 局部优化:若选择精装房,虽省去装修麻烦,但部分开发商允许在交付前进行局部调整(如更换地板材质、增加柜体);即便交付后,也可通过软装(窗帘、家具、装饰画)轻松改造,无需像二手房那样先 “拆旧”(成本高、耗时久)再重装。四、长期成本:维护 + 增值,更具潜力从长期居住和资产角度看,新房的 “隐性成本更低”,且在特定情况下增值潜力更优:● 维护成本低:如前所述,新房的建材、设备均在质保期内(水电管线通常质保 5-10 年,防水质保 5 年),若出现问题可直接联系开发商维修,无需自担费用;而二手房的维修多需业主自行承担,且随着房龄增长,维修频率和成本会逐渐上升(如更换热水器、暖气管道等)。● 物业与社区管理更规范:新房社区的物业公司通常由开发商直接指派(或通过招标选择品牌物业),服务标准更统一(如定期保洁、绿化维护、设施检修),且初期物业与业主的沟通更顺畅;老二手房社区的物业可能存在服务滞后、管理松散(如垃圾堆积、公共设施损坏无人修)等问题,影响居住体验和房屋保值。● 增值潜力:核心区域新房更具优势:若新房位于城市新兴板块(如政府规划的新区、地铁沿线),随着周边配套(学校、医院、商业体)的逐步落地,房屋增值空间可能大于同区域的老二手房;而二手房的价值更多依赖 “成熟配套”,增值潜力相对稳定,但上限可能较低(除非位于核心学区)。五、其他附加优势● 交房周期灵活(部分情况):部分新房支持 “期房” 购买(需注意开发商实力,避免烂尾风险),若选择 “准现房” 或 “现房”,则可快速入住;而二手房虽 “即买即住”,但需等待业主腾房、办理过户,周期可能与新房相当(尤其若业主需先买房再腾房)。● 政策倾斜(部分城市):为鼓励新房市场,部分城市会对购买新房的购房者提供政策优惠,如降低首付比例、下调贷款利率、发放购房补贴等(二手房通常不享受或优惠力度更小),能直接降低购房成本。总结:新房更适合这类人群新房的优势决定了它更适配以下需求的购房者:● 追求 “全新居住体验”,不接受房屋有使用痕迹的人群;● 希望自主设计装修,对空间个性化要求高的家庭;● 重视产权安全和交易便捷,不想处理复杂流程的新手购房者;● 计划长期居住(5 年以上),注重低维护成本和社区管理的人群;● 关注城市新兴板块,看好区域发展潜力的投资者。
保利新江湾售楼处电话☑️:400-8228-664✅