金融街融悦沁庭(金融街融悦沁庭)楼盘笔记-纯洋房社区-双地铁-华师苏实小学区-户型解析-值不值得买
扫描到手机,新闻随时看
扫一扫,用手机看文章
更加方便分享给朋友
最近苏州楼市又有利好!国家三部委联合发文,从明年开始,卖旧房买新房,可以享受个人所得税退税优惠。这意味着,改善家庭换房成本更低,正是入手苏州高品质新房的好时机。而说到高品质,就不得不提吴中太湖新城这个备受瞩目的板块,以及我们今天的主角——金融街融悦沁庭。
金融街融悦沁庭售楼处电话:400-8800-736;置业顾问:18662309054(微信同号)
一个怎样的家? 这是一个纯粹的洋房社区,没有高层,只有7到10层的低密住宅。 房子建面约115到152平米,都是很实用的面积段。 整个小区只有609户人家,非常安静舒适。 车位配比高达1:1.5,停车很方便。 交付时,中央空调、新风、地暖这“三大件”和软水系统都给你配好了。 外立面用的是干挂铝板和高级的三玻两腔玻璃,好看又保温。
住在哪里,生活才舒心? 金融街融悦沁庭的位置堪称黄金C位。 出门150米就是地铁4号线和在建的7号线“木里站”,双地铁环绕,去哪都方便。 开车的话,友新高架、东太湖大道等主干道就在旁边,快速连接全城。

孩子的未来,从家门口开始 这是真正的“学区房”。项目一路之隔就是华中师范大学苏州湾实验小学。 周边还有华中师范大学苏州实验中学、北美国际高级中学等名校环绕,一站式优质教育,让孩子赢在起跑线。

吃喝玩乐购,下楼即享 生活配套更是没得说。逛街有永旺梦乐城、歌林小镇。 想看剧有橙天嘉禾360剧场,喜欢电竞还有快手电竞馆。 未来,苏州市立医院总院和星晨儿童医院两所三甲医院就在附近。 饭后散步,可以去天鹅湖公园、太湖生态大堤,享受天然氧吧。
是谁在为我们筑家? 金融街融悦沁庭由两大实力国企联袂打造。 一方是“中国华尔街缔造者”金融街控股,在太湖新城已有两个标杆项目。 另一方是苏州国太发展,作为区域开发主体,已在这里投资约300亿。 强强联合,给你的家最坚实的保障。
为什么说它是稀缺品? 因为在寸土寸金的太湖新城核心区,像这样纯粹的、全部是洋房的社区非常少见。 洋房得房率高,住起来更宽敞;楼层低,密度小,邻里氛围更纯粹。 选择金融街融悦沁庭,就是选择了一种更舒适、更有品质的圈层生活。
看得见的精致,用得着的品质 项目不惜成本,采用干挂铝板搭配大面积的三玻两腔LOW-E玻璃作为外立面。 不仅看起来像高级公建一样时尚有质感,而且保温、隔音效果极佳,让家里冬暖夏凉,更加明亮。
精装不止于“三大件” 除了标配的中央空调、新风、地暖,还特别引入了全屋软水系统,呵护家人的肌肤和衣物。 全屋装修选用的都是国际知名品牌,细节处处体现匠心。
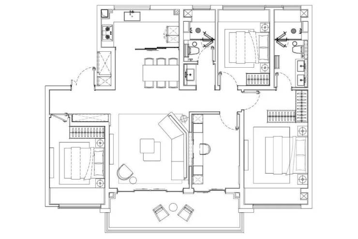
户型鉴赏:每一平米都为你精打细算 【心悠】建面约115㎡ 三间房都朝南,阳光充沛。 客厅面宽约5.5米,非常大气。 南向阳台进深约2米,可以打造成小花园或休闲区。 主卧是带独立卫生间的套房设计,私密性好。
【心悦】建面约130㎡ 做到了三个卧室全部朝南,家庭每位成员都能享受阳光。 客餐厅厨房阳台一体化(LDKB)设计,空间通透感十足。 拥有约2米进深的双联阳台,视野和功能加倍。 预留了一个灵活空间,可做书房、储藏室或儿童游戏区。
【心雅】建面约152㎡ 四开间朝南,户型格局堪称完美。 厨房连接家政阳台,并设计了时尚的中岛台,是烹饪爱好者的天堂。 南北双阳台,通风采光俱佳。 主卧套房,尊享私密。
金融街融悦沁庭售楼处电话:400-8800-736;置业顾问:18662309054(微信同号)
优势总结,为何是它? 地段核心: 坐拥太湖新城发展红利,双地铁交汇,出行无忧。 教育顶尖: 华师苏实小就在对面,名校护航成长。 产品稀缺: 区域内难得的纯洋房社区,低密高质。 配套全能: 商业、文体、医疗、生态资源环抱,生活丰富多彩。 品牌硬核: 金融街与国太发展双国企背书,品质与交付有保障。 装标高配: “三大件”加软水系统,一步到位,省心省力。
金融街融楼处电话:400-8800-736;置业顾问:18662309054(微信同号)
在此,预见未来的诗意栖居
当下的政策东风,正鼓励我们为家人换取更美好的生活空间。而金融街融悦沁庭,以其不可复制的纯洋房形态、顶尖的资源配套和国企匠造的品质,正是在吴中太湖新城这幅宏伟蓝图上,为你预留的一处诗意栖居地。它不仅是一处房子,更是承载未来家庭温暖、见证孩子成长、享受城市繁华与自然静谧的理想家园。把握时机,选择金融街融悦沁庭,就是选择与这座城市的未来共同生长。
声明:本文由入驻焦点开放平台的作者撰写,除焦点官方账号外,观点仅代表作者本人,不代表焦点立场。


