苏州房价最高飙到8W+!来看下各区的天花板........
扫描到手机,新闻随时看
扫一扫,用手机看文章
更加方便分享给朋友
今年一开年,苏州地王也两度刷新,目前最高已经到6W+!
接下来,苏州楼市新房多个板块房价天花板也多次刷新,狮山、奥体更是首次站上了6W+,吴江太湖新城拉升到5W+,绿城玫瑰园的均价86439元/平,也刷新了苏州备案均价的新高!
突然之间,苏州房价格局又要变了?那么接下来,各板块天花板又会在哪里出现呢?
咨询热线:18662309054
绿城玫瑰园备案均价8.6W
星合地块能否再冲新高
绿城玫瑰园:备案均价8.6W
3月份,绿城刷新了苏州宅地的楼面价地王,是的,65022元/平,绿城玫瑰园无疑是苏州今年最亮眼的存在,这也是苏州市区宅地新地王!
值得注意的是,这也是继绿城御园、绿城玫瑰园之后,绿城再次回归双湖板块。
绿城玫瑰园,位于金鸡湖大道南、石莲街东,城镇住宅用地,项目的地块用途为城镇住宅用地,占地面积46465.37平,容积率1.02.
根据规划,项目拟建23栋3-7F住宅,其中,19栋3F住宅、4栋7F洋房。
1,绿城玫瑰园的容积率为1.02,这是纯低密住宅社区;
2,项目的产品以3F联排、合院为主,另有4栋7F洋房;
3,该项目每一栋都是带地下室的;
4,根据要求,地块上项目,分割销售单元为单层的住宅,应为全装修住宅,装修标准不低于5000元/平,分割销售单元为非单层的住宅,可选择实施全装修。
即,如果是超级大平层,即,洋房形式,则其全装修交付,最低装标5000元/平;
如果是别墅产品,则可选择全装修,也可毛坯;
5,项目建筑外立面主体材料原则上要求为铝板及以上品质材料,社区的品质肯定很高;
6,项目已经在本月首次领取预售证,备案均价86439元/平;
绿城玫瑰园项目目前公示了项目的洋房户型,户型面积在251-275平!
项目详情:两种户型首次曝光!绿城玫瑰园开启验资!苏州地王,有钱人准备好了吗
星合03号地块
星合03号地块,位于苏州工业园区东延路南、西华林街东,城镇住宅用地,容积率1-1.02,出让面积87877.1平,成交总价519881万元,楼面价58000元/平。
1,该地块的容积率为1-1.02,为纯低密豪宅社区;
2,项目的建筑高度要求≤24米,即,限高8F;
3,沿东延路建筑层数不超过4F;
4,根据要求,地块上项目,分割销售单元为单层的住宅,应为全装修住宅,装修标准不低于5000元/平,分割销售单元为非单层的住宅,可选择实施全装修。
即,如果是超级大平层,即,洋房形式,则其全装修交付,最低装标5000元/平;
如果是别墅产品,则可选择全装修,也可毛坯;
5,项目建筑外立面主体材料原则上要求为铝板及以上品质材料,社区的品质肯定很高;
6,项目的外立面为暖色调为主,且建筑形态要求多样,大概率可能有别墅、洋房;
7,项目的起拍楼面价为58000元/平,相较于今年3月成交的绿城玫瑰园(苏园土挂(2024)02号地块)起拍地价55000元/平,则高了3000元/平;
目前,苏州的宅地楼面价地王就是绿城玫瑰园(苏园土挂(2024)02号地块)的65022元/平。
那么,双湖3号地块是有望刷新的。
地块详情:5.8W起!双湖荣域花园西地块挂出!预定今年新地王?
狮山6.1W的再刷新
就看金新城狮山11号
狮山今年新房天花板已经刷新过一次,来自于狮山地王绿城逸庐,6.1W的价格还能看谁刷新呢,只有金新城11号地块有望了!
金新城狮山11号地块,位于高新区狮山商务创新区玉山路南、淮海街东,城镇住宅用地,占地面积24995平,容积率1-1.3,成交总价104355万元,成交楼面价32116元/平,溢价率1.95%。
根据要求,
1,地块内住宅标准层户型面积不小于180平;
2,地块内6层以上住宅为全装修成品住宅,住宅装修成本不低于3000元/平;6层及6层以下的,鼓励建设为全装修成品住宅;
多板块价格的再次刷新
姑苏区胥江板块
目前天花板4.75W
重点关注项目:胥江致新51号地块
胥江致新姑苏区胥江51号地块项目,即,苏地2023-WG-51号地块,位于姑苏区吴门桥街道劳动路南、凌波路东,是8月31日,苏州市胥江致新城市发展有限公司以底价147346万元竞得,成交楼面价13035元/平。
根据规划,项目拟建12栋15-17F住宅和1栋31F商业大厦;
其住宅部分,拟建12栋15-17F住宅,其中2栋15F小高层、4栋16F小高层、6栋17F小高层;
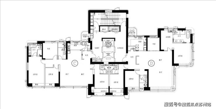
胥江致新51号地块项目此前公示了6#、10#的户型标准层示意图。
这也是项目的部分户型图首次公示。
10#,17F小高层
4梯4户
咨询热线:18662309054
吴中太湖新城:
目前天花板3.7W
重点关注:中建三局2号地块
中建三局吴中太湖新城2号地块项目,即,苏地2023-WG-2号地块,位于吴中太湖新城景周街南侧、龙翔路西侧,是2月16日,中建三局以底价139368万元竞得,成交楼面价17500元/平。
项目隔壁就是中建太泽之星|御湖,中建太泽之星|御湖目前的整体备案均价为36944元/平,也是目前太湖新城板块的新房房价天花板。
根据规划,中建三局吴中太湖新城2号地块拟建12栋15-17F住宅,其中,1栋15F小高层、1栋16F小高层、10栋17F小高层。
吴江太湖新城
目前最高价:3.9W
重点关注:三个纯新盘
吴江太湖新城,在沉寂了几年之后,终于又开始卷起来了!绿城桃源里5W+的备案价直接刷新板块天花板!截止目前,板块内至少还有3个项目待售,会有新的5W吗?最新情况来看:
蓝城垂虹桃花源
蓝城垂虹桃花源,即,WJ-J-2023-19号地块,位于吴江东太湖度假区(太湖新城)笠泽路北侧、新开河西侧。项目目前已经公开了一个城市展厅!
项目地块用途为纯宅地,占地面积31527.52平,总建筑面积57129.13平,其中,地上建筑面积33629.13平,容积率1.05。
根据规划,项目拟建20栋3-9F住宅,其中,13栋3F住宅、4栋6F住宅、1栋7F住宅、2栋9F住宅。
1,该项目的容积率为1.05,这是一个纯低密住宅社区;
2,项目的产品为叠墅、洋房,从产品配比来看,叠墅产品相对较多一些;
3,项目的叠墅风格为新中式;洋房则较偏为现代化时尚风格;
咨询热线:18662309054
蓝城·湖畔江南里
蓝城·湖畔江南里是2022年6月,吴江城投以156173万元底价竞得的WJ-J-2022-006号地块,楼面价14880元/㎡。根据出让要求,地块内成品住宅比例100%,成品住房装修综合单价不低于1000元/㎡。
坐落于东至夏蓉街,南至庞杨路,北至规一路,总用地面积80734.48平方米,总建筑面积170865.97平方米。其中地上建筑面积97460.74平方米,地下建筑面积73405.23平方米。计容建筑面积96321.74平方米。(以审批为准)。
最大建筑高度40.0米,容积率1.19,建筑密度30.0%,绿地率35.0%,机动车停车位1376个。
整个项目打造为别墅+洋房低密产品,项目拟建46幢3F联排别墅(合院)、11幢10-12F的洋房。
效果图上来看,外立面为新中式风格,由深灰色水泥瓦、咖啡色铝板、浅灰色石材、蓝灰色LOW-E玻璃组合而成。
洋房部分外立面为浅灰色、米白色石材搭配蓝灰色LOW-E玻璃、咖啡色铝板。
亨通蓝城苏州湾湖亭望月
亨通蓝城湖亭望月,容积率仅0.6-0.8,观湖大宅、望湖合院、望湖大平层,其中观湖大宅建面约608-700平,望湖联排建面约335-410平,望湖大平层建面约300-610平。
湖亭望月是蓝城和亨通联合打造的苏州湾超百万方小镇项目,项目以公园为核心融合多种功能服务的多元化空间)非标商业街、室内外主题亲子乐园、约1500㎡The Club生活会所,内外双配套。
相城高铁新城板块
目前最高价3.5W
重点关注:地标超高层
高融置业65号地块项目
高融置业65号地块项目,即,苏地2021-WG-65号地块,位于相城区高铁新城水景路西、富翔路南,是2021年11月24日,高融置业以底价32162万元竞得,成交楼面价1244元/平。
从规划来看,项目建筑面积386432.39平方米,计容面积258455.00平方米,其中办公面积75000.00平方米,酒店面积28000.00平方米,住宅面积152060.00平方米,容积率5.00,绿地率35.00%,建筑密度27.31%。
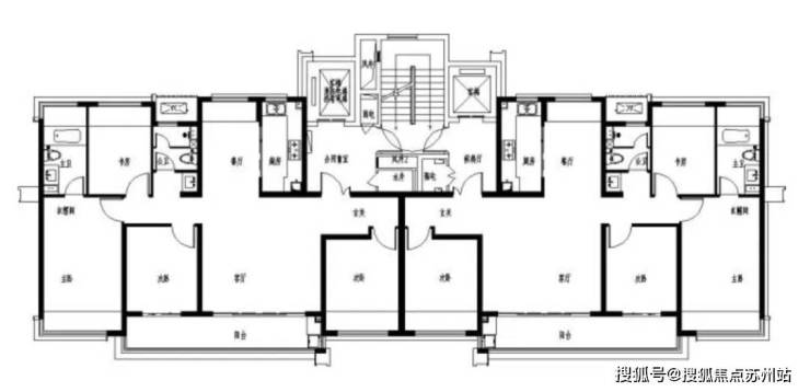
平面图上来看,项目将打造一栋50F超塔,为办公和酒店和5栋45F住宅。
此前公示的住宅1#则是一梯两户设计,都是4房3卫设计!
咨询热线:18662309054
声明:本文由入驻焦点开放平台的作者撰写,除焦点官方账号外,观点仅代表作者本人,不代表焦点立场。


