最新动态:刚刚东吴塔别墅案名曝光:东吴原著!约210-220㎡
扫描到手机,新闻随时看
扫一扫,用手机看文章
更加方便分享给朋友
今年2月,该地块以16000元/㎡的楼面价被龙湖集团和建华联合体成功竞得,容积率仅为1.3,先天条件优越。
就在刚刚,该地块的案名已出炉,就叫龙湖·东吴原著!展厅明天就公开!将打造四代宅洋房+叠墅+联排。
项目面积段也已曝光!联排约305㎡,叠加约210-220㎡,洋房约145-189㎡。
明天将同步开放三个城市展厅,预计7月中下旬公开示范区,最快8月首开。
该地块原址为原豪仕登大酒店所在,位置非常核心,旁边就是东吴塔,且靠近吴中区政府。
紧邻主干道太湖西路和东吴塔,坐享双轨交通,4/3号线宝带路站约5分钟步行半径;周边配套也一应俱全,轨交1站即达龙湖东吴天街,临近吴中万达、海星广场、吴中实验小学、吴中城西中学、吴文化博物馆等。
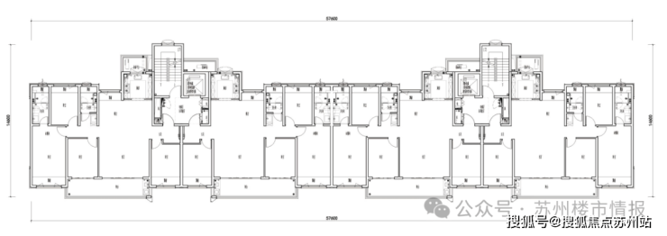
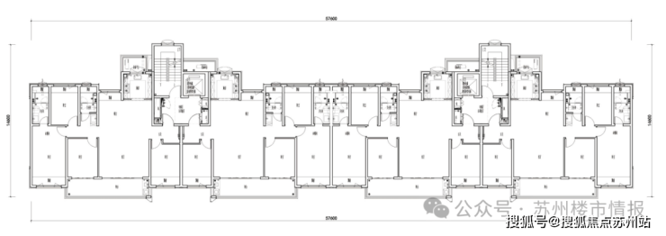
根据规划显示,该地块将打造21栋3-11F住宅,其中6栋3F联排,9栋4F叠加,及6栋8-11F洋房。而且,根据效果图我们可以看到,有3栋洋房还是第四代住宅设计。

产品方面已确定,联排约305㎡,叠加约210-220㎡,洋房约145-189㎡。
项目同步曝光的还有20#一洋房户型的平面图和5#下叠户型平面图,一起来看一下:
洋房20#标准层平面图

20#南立面图,层高约3.1米

5#下叠平面图,能看出室内有挑空


5#南立面图,层高约3.15-3.3米

02
项目案名一出,苏州人可太熟悉!又来了一个原著!
在龙湖的别墅造诣中,“原著系”无疑是一座巅峰,自颐和园畔"佛香阁下的大屋檐"——颐和原著开始,十七载传承不断,已经成为一种盛世人居的精神符号,与中国隐贵生活同名。
颐和原著实景
原著系在苏州,同样曾书写一段非凡史诗。十年前,长三角第一座原著系-狮山原著,横空出世,首开即罄,引领整个狮山板块豪宅水平线上升,形成今日苏州三大豪宅区鼎立之势。
狮山原著,是龙湖原著系的一个缩影,它传递出真正的匠造,不是复刻形制,而是打捞文明的基因。龙湖原著系,正是隐贵精神的转译者,传世孤品的造物者。
直至2025年,当中国别墅专家与姑苏中轴相逢,佛香阁的飞檐,化作姑苏黛瓦,紫禁城的胸襟,转为世家的厅堂。
一部龙湖·东吴原著,传承原著系17载别墅血统,重剑归来,溯源《考工记》天时地气哲思,融汇紫禁城、苏州园林的五象之法,首次提出「原著五象」营造标准,打造独院联排、天地叠墅、城市洋房等珍稀业态产品,为姑苏传世。
三进园林庭院,取法留园“藏—露—豁”三重意境,每一步皆暗合五象相生之道,层层渐进:一进初探入境,缩景乾坤,见自然生生不息;二进开阔之境,承万山之祖昆仑,纳四水归堂,见天地无垠辽阔;三进山水深处,复刻网师园引静桥,泉鸣鲤跃,见内心返璞归真。
约1500m²原著世家典藏馆,则凝八大非遗美学,规划纳仪轩、洗墨堂、百贤厅、息心馆等八重隐逸空间,奢藏江南气蕴与人文风雅。
十年等一席,不是土地的抉择,而是时间的必然。当姑苏的隐贵推开门,他们会说:山河从未失约。
东吴原著三大城市会客厅:保利大剧院、狮山天街、东吴天街(均位于一楼中庭),将于于6月28日同步启幕,感兴趣的可以先去看看。咨询热线:18662309054
声明:本文由入驻焦点开放平台的作者撰写,除焦点官方账号外,观点仅代表作者本人,不代表焦点立场。


