绿城斜塘项目就叫:沁百合!最大220㎡!奥体南绿城项目展厅正式公开
扫描到手机,新闻随时看
扫一扫,用手机看文章
更加方便分享给朋友
刚刚!园区豪宅迎来新动作
绿城奥体南2号项目
案名:绿城·沁百合
展点已经公开,最快7月底开盘
示范区预计开盘当月开!节奏非常快!
项目打造10幢8-11F纯洋房低密奢宅
主力153/167/187/220㎡4大户型
全铝板立面+3000元/㎡精装+下沉式会所
销售团队现已组建,启动在即!
有兴趣的亲们,该准备起来了
咨询热线:18662309054
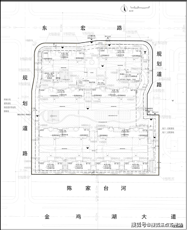
绿城奥体南2号项目,即苏地2025-WG-Z02号地块,位于工业园区金堰路西、金鸡湖大道北,是2月份,由绿城总价14.3亿竞得,成交楼面价26754元/㎡,溢价率21.61%。
该地块紧靠轨交6号线金家堰站,项目临河和绿化带即斜塘河与奥体中心。从整体看,凭借着本身绝佳地理优势,享受园区优质资源,适宜居住。
项目与地铁6号线金家堰站近距离接驳,1站速抵奥体中心,3分钟直达湖东CBD,5分钟贯通湖西商圈!更坐拥斜塘河一线水景与奥体中心绿地环绕,堪称园区罕有的轨交+生态双料顶配地块!
目前人大附中极大可能落地星华学校,奥体南国际部+高中部双学区规划已过审3公里内覆盖星洲小学、金鸡湖学校等6所顶尖学府,全龄段精英教育闭环!
地块自带TOD模式邻里中心,1.5公里直达奥体中心万人商圈, 3公里黄金半径覆盖永旺梦乐城+金鸡湖商业体。
政府最新控规显示:奥体南板块预留12宗稀缺宅地,全部规划低密纯改善住区!绿城一直作为行业标杆,此次项目2月底拿地,3月底出规划,展厅已经公开,7月底开盘,需要各位盯紧!
产品方面,项目打造10栋8-11F纯洋房,项目配建下沉式庭院会所,非常高端,其中第一排靠金鸡湖大道全是8层洋房。

首层3.6米,其他层高3.1米,外立面全铝板,采用深灰色、金色、银色铝板。

项目出入口位于规划道路及东宏路。

根据地块出让要求,该地块上住宅为全装修住宅,住宅装修价格不低于3000元/㎡。
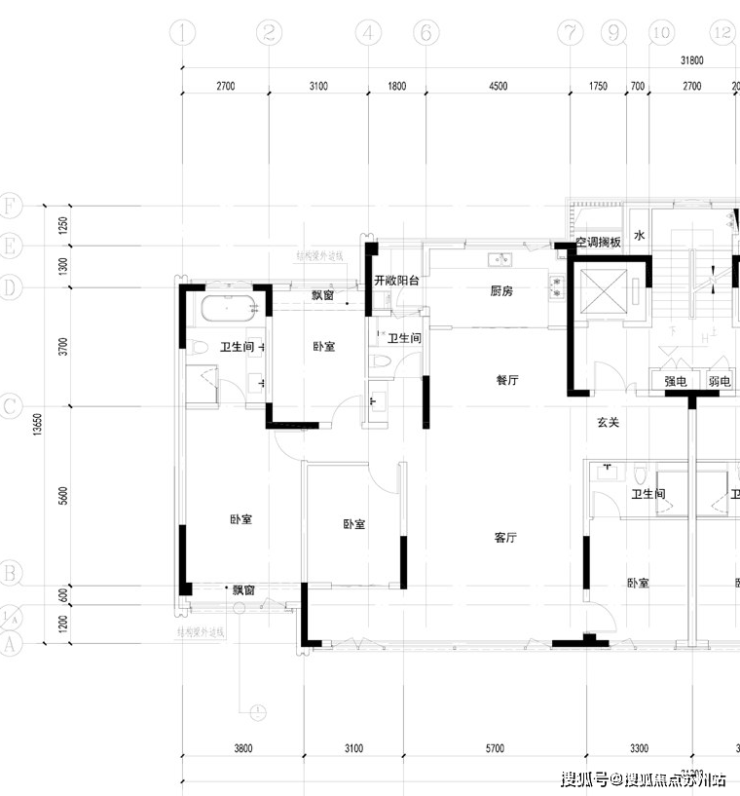
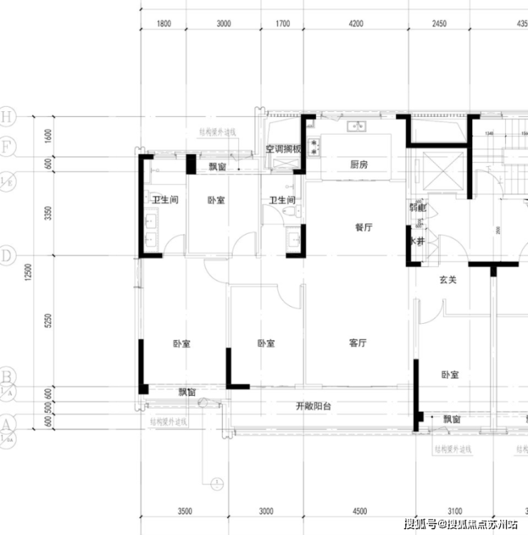
建面约153/167/187/220㎡4大户型,具体楼栋分布如下,总房源量不到300套。

正式户型图还没出来,此前规划的约153/187㎡标准层户型可供参考——
南向四开间+南北双阳台
南向约15.9米面宽
客厅开间约5.7米,外接8.8米宽开敞阳台
南向双套房,主卧开间3.8米
其余卧室开间3.3、3.1、3.1米

153㎡户型2梯4户设计

4房2厅2卫
南向四开间,约14.1米面宽
客厅开间约4.5米,外接7.5米宽开敞阳台
主卧套房开间3.5米
其余卧室开间3.1、3、3米

产品系目前未定,已知自带下沉式庭院、500㎡儿童活动场、运动场等。
而且除了1~4幢,其余楼栋一层均设置架空层,估计会做成公共空间,提升内部配套。地库局部做了2层,最大程度满足家庭停车需求。了解更多内容,咨询热线:18662309054
声明:本文由入驻焦点开放平台的作者撰写,除焦点官方账号外,观点仅代表作者本人,不代表焦点立场。


