建屋·新棠玥:政策春风下的园区核心,苏式人文与品质生活的完美融合
扫描到手机,新闻随时看
扫一扫,用手机看文章
更加方便分享给朋友
近期苏州楼市迎来多重利好政策,公积金贷款额度提升、利率下调、首付比例降至15%,这些实实在在的优惠让购房门槛大幅降低。特别是多子女家庭和人才购房更是享受额外福利,最高贷款额度可达210万和900万。对于追求品质生活的您来说,现在正是把握政策红利,置业安家的黄金时机。今天,就让我们一同走进建屋·新棠玥,看看这个位于园区核心地段的品质住宅,如何成为您理想家园的不二之选。
基本信息
建屋·新棠玥,这个由新建元与苏州恒泰两大国企联袂打造的项目,坐落于苏州工业园区独墅湖大道与星塘街交汇处西北侧。项目占地约4万平方米,容积率仅为1.7,建筑密度低至19.8%,规划了11栋13-17层的小高层住宅,户型面积段在165-225平方米之间,均为四房三卫设计。这样的规划保证了社区的低密度和高舒适度,让每一位业主都能享受到宽敞的居住空间和宁静的生活环境。
18662309054
区域配套
建屋·新棠玥所在的斜塘区域,可以说是园区发展的精华所在。这里不仅是金鸡湖中央商务区、独墅湖科教创新区、高端制造与国际贸易区和苏州园区东站副中心的交汇点,更是园区"一主两副四片多点"战略格局的核心区域。
生活配套方面,项目周边有湖东CBD、奥体中心、邻瑞广场(山姆店)和斜塘老街,满足您日常购物、娱乐、餐饮的各种需求。教育资源方面,工业园区图书馆和独墅湖文体中心湾国际中心就在不远处。出行也十分便利,独墅湖城市主干道、星塘街环绕,距离约4公里外的苏州东站(在建)也即将通车。此外,金鸡湖右岸客厅、独墅湖公园和弥陀泾等自然景观资源,让您在工作之余也能享受大自然的美好。
品牌价值
建屋·新棠玥由新建元集团与苏州恒泰控股集团两大国企强强联手,品质有保障。新建元集团作为园区成立最早、规模最大的国资企业,以"创新改变城市"为核心理念,是产城融合的创领者。其代表项目金鸡湖右岸客厅已成为区域地标。
苏州恒泰则是中新合作苏州工业园区直属的大型国有企业,净资产138亿元,资产总规模365亿元,在商业地产、产业地产和租赁住房领域有着丰富的经验和卓越的成就。两大国企的联袂打造,为建屋·新棠玥的品质提供了坚实的保障。

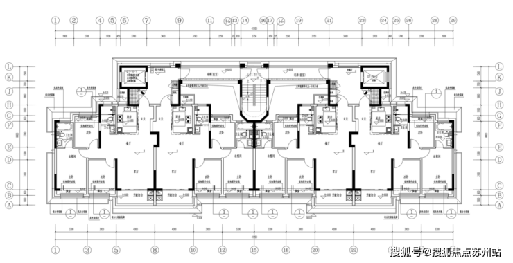
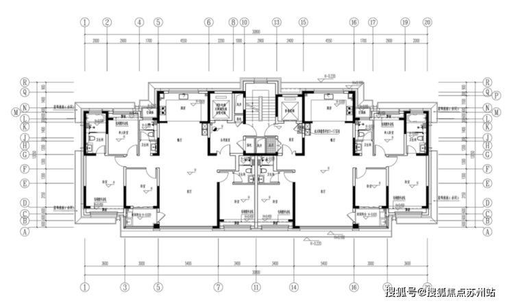
户型鉴赏
建屋·新棠玥的户型设计充分考虑了现代家庭的生活需求,面积段从165平方米到225平方米的四房三卫设计,无论是三口之家还是多代同堂,都能找到合适的居住空间。
项目10号楼14层小高层的标准层设计,空间布局合理,采光通风俱佳。1号楼17层小高层的标准层(建面约175平)和6号楼16层小高层的标准层(建面约215㎡)更是将舒适度提升到了新的高度。每个户型都做到了南北通透,主卧套房设计,让生活更加私密舒适。厨房采用U型设计,操作空间充足;客厅连接阳台,视野开阔,让家更加明亮通透。


优势分析
建屋·新棠玥最大的优势在于其大师级的设计团队和独特的苏式人文理念。项目由日清设计创始人宋照青大师亲自操刀建筑设计,其代表作品包括上海新天地、上海中星美华村等知名项目。景观设计由A&N尚源景观负责,精装设计由Yan Design大研设计完成,泛光设计则由bpi照明设计担纲,这样的顶级团队组合确保了项目的高品质。
建屋·新棠玥传承苏式人居文脉,以"沧浪之六境"为灵感,从归家仪式、建筑立面、景观设计、奢美空间、服务营造等方面,重构人居新境。项目以"枕河而居,时新境进"为理念,将传统与现代完美融合,打造出既有文化底蕴又符合现代生活需求的品质住宅。在这里,繁华与宁静并存,都市与自然相融,让您在享受现代都市便利的同时,也能感受到传统文化的魅力。
随着苏州园区不断发展和完善,斜塘区域作为园区发展的核心区域,其价值将持续提升。公积金新政的实施,更是为购房者提供了实实在在的优惠,降低了购房门槛,提高了购房能力。建屋·新棠玥作为园区核心地段的品质住宅,不仅拥有优越的地理位置和完善的生活配套,更有大师级的设计团队和独特的苏式人文理念加持,未来升值潜力巨大。
选择建屋·新棠玥,不仅是选择一个舒适的居住空间,更是选择一种高品质的生活方式,是与城市共同成长,与时代同频共振。在这里,您可以享受到政策红利带来的实惠,也能感受到园区发展带来的机遇,实现居住与投资的双重价值。
联系方式
18662309054
声明:本文由入驻焦点开放平台的作者撰写,除焦点官方账号外,观点仅代表作者本人,不代表焦点立场。


