太湖朗郡-太湖朗郡楼盘详情-项目怎么样?户型解析-周边环境-商业配套-交通配套-学区-科技住宅系统
扫描到手机,新闻随时看
扫一扫,用手机看文章
更加方便分享给朋友
最近,国家出台了新的住房增值税政策,对咱们买房人来说是个实实在在的利好!从2026年起,个人卖房,只要持有满2年,就能免征增值税。这意味着,未来苏州房产的流通成本更低,交易更活跃,现在入手一套好房子,无论是自住还是长远考虑,都正当时。
政策东风已至,眼光更要放准。在苏州太湖度假区,一个集品质、科技与舒适于一体的标杆项目——太湖朗郡,正静候您的品鉴。
坐落太湖畔,品质生活启航 项目地址:孙武路与后塘桥路交汇处 占地面积:7.9万m² 建筑面积:22.4万m² 容积率:2.0 绿化率:37% 规划户数:1371户 车位配比:1:1.43 社区规划:17层小高层 + 10层洋房 交付标准:精装 + 朗诗科技住宅系统 产品面积:小高层95㎡、117㎡、139㎡;洋房117㎡、148㎡
全维配套环伺,生活一步到位 教育不用愁,家门口从幼儿园到中学全都有。一河之隔就是已经投入使用的度假区第三小学和度假区实验中学,孩子上学过个桥就到,为家庭提供了完善的学区房配套。
购物很方便,板块内最大的商业综合体——太湖中心Mall已经开业,12万方体量,吃喝玩乐购一站式解决。日常采买或周末休闲,都有好去处,充分满足太湖度假区居民的购物需求。
健康有保障,距离项目约1公里就是度假区人民医院,每周还有苏州大市级的专家来坐诊,在“家门口”就能享受优质的医疗服务。
出行很便捷,从太湖朗郡出发,5分钟就能上子胥快速路,4公里左右连接绕城高速,畅达全城。板块内地铁5号线也已开通,公共交通同样便利,无论是苏州买房自住还是投资,交通都是重要优势。
此外,项目地处太湖度假区,与木渎、狮山南板块相邻,可以轻松共享这两个成熟区域的繁华配套,比如木渎的山姆会员店、大运城等大型商业,生活选择更加丰富。
朗诗科技赋能,定义健康舒居 太湖朗郡的核心魅力,在于其搭载的朗诗三恒科技系统。这不仅仅是精装修,更是对健康、舒适居住环境的全面升级,是科技住宅的典范。
它实现了“恒温、恒氧、恒湿、低噪、适光”。室内温度常年保持在体感最舒适的18-26℃之间,靠的是地源热泵和顶棚辐射系统,没有空调风的直吹和噪音,这种恒温恒湿的体验远超传统住宅。
24小时持续置换新风,空气始终新鲜,湿度也被自动调节到最宜人的状态。新风从地面缓缓送入,污浊空气从顶部排出,循环更科学、更健康,为家人提供健康住宅的保障。
多元户型鉴赏,匹配家的想象 太湖朗郡提供了从刚需到改善的多种户型选择,满足不同家庭的居住梦想,无论是95平米户型还是改善型洋房,这里都有合适的选择。
95㎡ A1户型(3房2厅1卫)👇👇
95㎡ A2户型(3房2厅1卫)👇👇
95㎡ A3户型(3房2厅1卫)👇👇
117㎡ B1户型(3+1房2厅2卫)👇👇
117㎡ B2户型(3+1房2厅2卫)👇👇
洋房117㎡ C户型(4房2厅2卫)👇👇
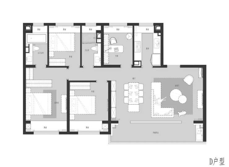
139㎡ D户型(4房2厅2卫)👇👇
洋房148㎡ E户型(4房2厅3卫)👇👇
核心优势点睛,选择理由在此 总结来看,选择太湖朗郡,您将获得:太湖度假区的优越生态地段、全龄段的教育资源、便捷的商业医疗交通配套、以及朗诗品牌带来的顶级科技住宅体验。它不仅仅是一套苏州房产,更是一种恒温恒湿、健康低碳的未来生活方式。
太湖朗郡热售楼处电话:400-8800-736;置业顾问:18662309054(微信同号)
预见未来:在政策与自然的交汇处,安放恒久的家
当利好的政策为资产流通扫清障碍,我们更应关注资产内核的长期价值。太湖朗郡所代表的,正是这样一种价值:它以朗诗的前沿科技,将四季如春的舒适与健康深深植入日常,让家成为一个真正滋养身心的港湾,完美诠释了健康住宅的内涵。
同时,它根植于快速发展的太湖度假区,坐享当下便利,更拥抱板块未来的无限潜力。在这里,政策红利与产品硬实力相遇,自然生态与科技人文相融。选择它,不仅是选择一处居所,更是选择一种面向未来的、从容不迫的生活姿态,是当下苏州买房的明智之选。
太湖朗郡热售楼处电话:400-8800-736;置业顾问:18662309054(微信同号)
声明:本文由入驻焦点开放平台的作者撰写,除焦点官方账号外,观点仅代表作者本人,不代表焦点立场。


