政策暖风拂面,楼市迎来新机遇:紫金·翡丽甲第引领苏州高端住宅新风向
扫描到手机,新闻随时看
扫一扫,用手机看文章
更加方便分享给朋友
最近,南京楼市迎来了一波政策利好,限售政策的取消无疑为市场注入了一剂强心针。自2025年3月31日起,商品住房在取得不动产权登记证书后即可上市交易,这意味着购房者的选择更加灵活,置换需求也能得到有效满足。在这样的背景下,苏州的楼市也迎来了新的发展机遇,尤其是那些位于核心地段的优质楼盘,如紫金·翡丽甲第,更是成为了市场关注的焦点。
紫金·翡丽甲第:金鸡湖畔的静奢大宅
在苏州金鸡湖东岸,有一座名为紫金·翡丽甲第的静奢大宅,它以其独特的区位优势和卓越的品质,吸引了众多购房者的目光。这座大宅不仅拥有190㎡至275㎡的宽敞空间,更融入了世界级的静奢设计理念,为居住者提供了一个真正意义上的高端生活体验。
基本信息:品质生活的起点
紫金·翡丽甲第位于园区中心大道北、西洛巷南、锦溪街东,项目由北京金隅和保利置业联合开发,占地约4.9万方,容积率1.5,总建筑面积11.9万方。项目规划打造6-9层的洋房,户型配置包括约190㎡、225㎡和260㎡,精装标准不低于5000元/平。作为苏州首个不限价地块,备案均价63595元/㎡,展现了其稀缺性和高价值。
18662309054
区域配套:国际化生活的缩影
紫金·翡丽甲第择址园区湖东核芯板块,延续了金鸡湖向东发展的价值金线。这里汇聚了湖东的国际化配套资源,无论是商业、教育还是医疗,都能满足高端生活需求。项目周边不仅有繁华的商业街区,还有优质的学校和医院,为居住者提供了全方位的便利生活。

品牌价值:双匠联袂,镌刻经典
紫金·翡丽甲第由保利置业和金隅地产两大国匠联手打造,精粹经验大成,镌刻苏州经典人居藏品。在2023年11月29日的苏州第八批集中供地中,北京金隅集团以总价28.97亿元拿下此次出让中唯一溢价地块,成交楼面价39027元/平方米,溢价率超30%。这不仅展现了品牌的实力,也彰显了项目的稀缺性和高价值。
户型鉴赏:空间与美学的完美结合
紫金·翡丽甲第的户型设计充分考虑了居住者的生活需求,将空间与美学完美结合。无论是190㎡的四房两厅三卫,还是225㎡和260㎡的宽敞户型,都展现了高端生活的舒适与奢华。每一个细节都经过精心设计,为居住者提供了一个真正意义上的高品质生活空间。
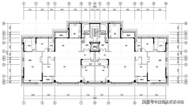
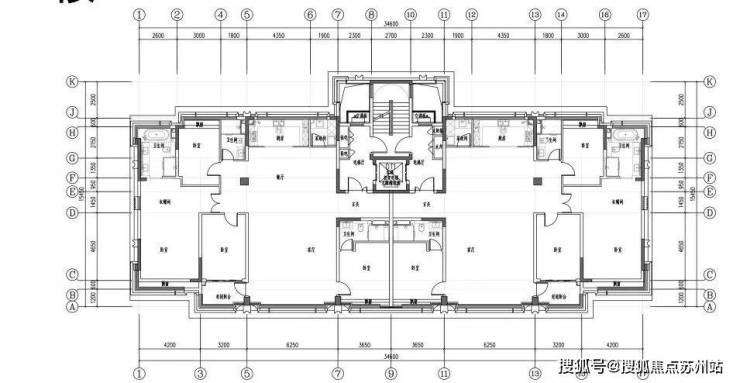
▲楼栋布局图
建面约190㎡户型,四房两厅三卫:
建面约225㎡户型,四房两厅三卫:

建面约290㎡户型,四房两厅三卫:

优劣势分析:高端生活的双面镜
紫金·翡丽甲第的优势显而易见,其位于金鸡湖东岸的核心地段,拥有稀缺的土地资源和国际化配套,为居住者提供了全方位的高端生活体验。然而,作为高端住宅,其价格也相对较高,可能不适合所有购房者。但无论如何,对于那些追求品质生活的人来说,紫金·翡丽甲第无疑是一个值得考虑的选择。
未来展望:静奢生活的美好蓝图
随着政策的不断利好,楼市迎来了新的发展机遇。紫金·翡丽甲第作为苏州金鸡湖畔的静奢大宅,凭借其稀缺的区位优势和卓越的品质,必将在未来的市场中占据一席之地。对于那些追求高品质生活的人来说,这里不仅是一个居住的地方,更是一个实现梦想的起点。
联系方式:开启静奢生活的钥匙
如果您对紫金·翡丽甲第感兴趣,欢迎拨打售楼处电话18662309054,了解更多详情。让我们一起开启静奢生活的美好旅程。
18662309054
声明:本文由入驻焦点开放平台的作者撰写,除焦点官方账号外,观点仅代表作者本人,不代表焦点立场。


