公积金新政助力,苏州置业新机遇:狮子山澜庭/院成优质选择
扫描到手机,新闻随时看
扫一扫,用手机看文章
更加方便分享给朋友
2025年5月27日,苏州市住房公积金管理中心发布了两项重磅新政,灵活就业人员公积金试点全面升级,并同步推出补充公积金制度,最高可贷额度达225万元!新政策将于2025年7月1日正式施行,覆盖全市灵活就业群体及在职职工,助力更多家庭实现安居梦。举个例子,一次性缴纳补充公积金20万元,1个月后可贷额度约为100万元,3个月后可贷额度约为150万元,最高可贷225万,还可享受开户补贴+缴存补贴+利息补贴。这一政策的实施,无疑为苏州的房地产市场注入了新的活力,而位于狮子山的狮子山澜庭/院项目,正是这一利好政策下的优质选择。
狮子山澜庭/院,城市中的静谧居所
基本信息
狮子山澜庭/院,位于中国苏州的狮子山,由仁恒、华发和苏高新三大品牌联合开发。项目总建筑面积约24万方,容积率1.27,综合楼面价25094元/㎡。社区规划分为东区狮子山澜庭1-26幢和西区狮子山澜院27-37幢,共37栋6-8F洋房,总计674套。户型配置从建面168-190-228㎡的洋房宽居到约450-650㎡的澜墅产品,满足不同家庭的需求。车位配比高达1:2.5,共计1682个车位,物业由仁恒物业负责,物业费4.25元/平/月。备案均价一期39500元/平、二期41500元/平、三期43100元/平,交付时间为2023年3月狮子山澜院交付,2023年6月狮子山澜庭交付。
18662309054
区域配套
狮子山澜庭/院位于新区核心,是高新区金融核心板块,聚集了大量的金融机构写字楼及高档住宅,是高新区现代化都市形象的展示区,也是高新区的城市名片。项目紧邻龙湖天街、金鹰国际、泉屋百货、美罗、淮海街、香格里拉酒店、日航酒店等商业综合体及高端酒店,百万方的综合体可尽享一站式消费,吃、喝、玩、乐、休闲、购物、度假的需求在这里都可以满足。此外,项目周边还有狮山实验小学、新区实验中学、新区一中、苏州外国语学校等8大名校,以及明基医院、新区人民医院、苏大附二院等优质医疗资源,为居民提供了全方位的便利。
品牌价值
仁恒与华发,各自享誉苏州豪宅市场。在苏深耕数年,精雕细琢的一丝一缕都是品质的代名词。两大巨匠,于时代高处握手。以约1325亩真山水作衬,合力铸造稀世之珍的狮山正席,献映苏州一部大师级低密藏品。狮子山澜庭采用日式公寓的风格,整体颜色以简单朴素的深灰色为主,搭配立面面砖,与苏州博物馆西馆的建筑风格遥相呼应。同样延续了江南文化的缂丝立面,城市地标和人居地标和谐共鸣,没有繁杂的工序,只为呈现理性而有序的居住态度。
△项目效果图
△项目实景图
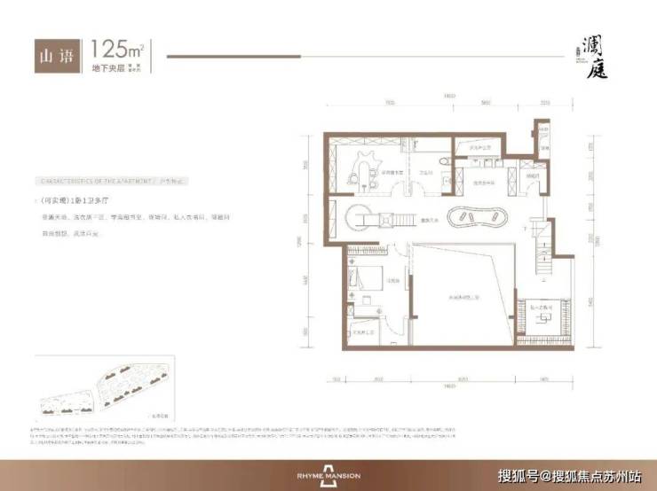
户型鉴赏
狮子山澜庭/院提供多种户型选择,从168㎡到657㎡不等,满足不同家庭的需求。洋房户型精装交付,包括168㎡、190㎡和228㎡,设计合理,空间宽敞。澜墅产品则打破底复产品的传统设计,创新超大采光井设计,尽可能扩大采光面,将光引入到地下,增加地下空间的通透感和舒适度。无论是洋房还是澜墅,都体现了对居住品质的极致追求。
约168㎡ 4房2厅2卫
丨一梯两户,3+1开间朝南,南向面宽13.5米,横厅6.2米丨主卧套房设计,独立衣帽间,主卫带浴缸,南次卧开间3.4米丨外卫干湿分离,厨房L型,带家政间,连接一个北向小阳台
约190㎡ 4房2厅3卫
丨一梯两户,3+1开间朝南,南向面宽15米,横厅7.1米丨主卧套房设计,独立衣帽间,主卫带浴缸,南向次卧套房丨南北双阳台,带家政间,洄游式动线
约228㎡ 4房2厅3卫
丨巨幅宽境横厅设计,约18m朝南采光面宽,生活空间敞亮通透;
丨双套房卧室,起居间从容自洽;
丨约7m 巨幕阳台,超广角级的瞰景视野,风景在此自由往来。
2、澜墅(洋房底复)地上1层(精装交付)+地下2层(毛坯)
➤打破底复产品的传统设计,创新超大采光井设计;
➤尽可能扩大采光面,将光引入到地下,增加地下空间的通透感和舒适度。
约456㎡ 4+1房2厅4卫
约529㎡ 5+1房2厅5卫
\
约657㎡ 5+1房2厅6卫
优劣势分析
狮子山澜庭/院的优势在于其绝佳的地理位置,新区核心,金融核心板块,周边配套齐全,教育资源丰富,医疗资源优质。项目由仁恒、华发和苏高新三大品牌联合开发,品质有保障。户型设计合理,空间宽敞,满足不同家庭的需求。劣势在于项目价格较高,可能不适合预算有限的购房者。
未来展望,狮子山澜庭/院的无限可能
随着苏州公积金新政的实施,狮子山澜庭/院项目的价值将进一步提升。新区核心的地理位置,丰富的周边配套,优质的教育和医疗资源,以及仁恒、华发和苏高新三大品牌的联合开发,都使得狮子山澜庭/院成为苏州房地产市场中的一颗璀璨明珠。无论是自住还是投资,狮子山澜庭/院都是一个不可多得的选择。未来,随着新区的发展和政策的利好,狮子山澜庭/院的价值将不断攀升,成为苏州城市新名片的一部分。
联系方式
18662309054
声明:本文由入驻焦点开放平台的作者撰写,除焦点官方账号外,观点仅代表作者本人,不代表焦点立场。


