星合晋墅:双湖畔低密生活,限售取消后的明智之选
扫描到手机,新闻随时看
扫一扫,用手机看文章
更加方便分享给朋友
8月26日,苏州住建部门宣布取消市区范围内新建商品住房2年限售政策,这一举措无疑为改善型住房需求注入了新的活力。在这样利好的政策环境下,星合晋墅这样的高端住宅项目,正成为追求品质生活的理想选择。
基本信息
星合晋墅,作为城市生活美学的运营商,坚持只定制不复制的产品理念。项目拥有约50%的绿化覆盖率和约1.02的低容积率,打造宜居环境。社区由7层的低密洋房和3层的院墅组成,面积从230平方米到350平方米的洋房,以及400平方米到700平方米的稀缺院墅,满足不同家庭的需求。咨询热线:18662309054
区域配套
星合晋墅周边配套齐全,3公里范围内尽享繁华生活。教育方面,从幼儿园到中学都有知名学府环绕,如华林幼儿园、双湖湾教育幼儿园、翰林小学和尹山湖中学等,让孩子从小就在书香环境中成长。医疗资源同样丰富,星海医院、九龙医院、独墅湖医院等权威医疗机构就在附近,为家人健康保驾护航。交通方面,项目靠近5号和8号地铁线,加上金鸡湖大道、独墅湖大道和金鸡湖隧道这三条黄金主轴,无论去哪里都方便快捷。商业配套也很完善,山姆会员店、星湖天地、星月坊商业街等满足日常购物需求。此外,1.6公里可达金鸡湖高尔夫会员专属俱乐部,3公里范围内有独墅湖公园等休闲绿境,让您在工作之余也能享受品质生活。
品牌价值
星合控股自2003年进入苏州以来,已经在园区深耕20余年,积累了深厚的国际高端底蕴。他们致力于为生活再设计,打造高端住宅、奢华酒店和潮流商业等标杆作品,与时代共同进步,全方位打造国际化生活方式。他们的代表作品包括苏州晋园别墅、晋合水巷邻里、晋府水巷别墅、金湖湾,以及洲际酒店、凯悦酒店等知名项目,每一处都彰显了星合控股的匠心与品质。

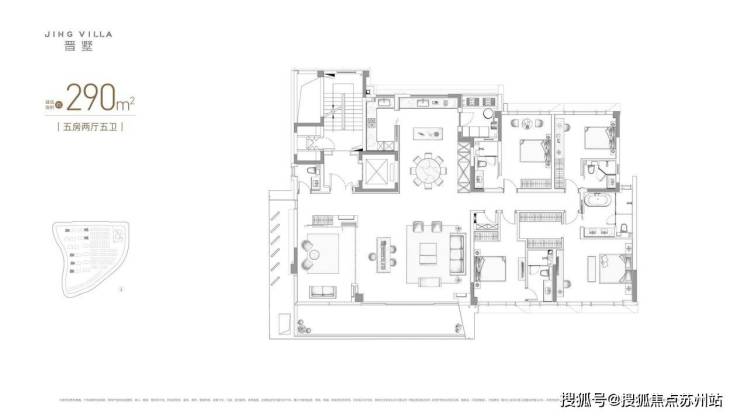
户型鉴赏
星合晋墅从"精神场域构建"到"大宅场景空间"的精心设计,打造出令人向往的生活空间。建面约230㎡-350㎡的低密洋房,空间开阔,采光充足,每一处细节都彰显品质生活。联排产品更是将私密性与社区感完美结合,让您既能享受独处的宁静,又能感受邻里的温暖。无论是洋房还是院墅,每一处空间都是设计师精心打造的艺术品,满足您对理想生活的所有想象。



优势分析
星合晋墅拥有约11亩的湖叙SPACE,这是一处国际生活的艺术藏馆,坐落在双湖之畔。这里是一个能让时光放缓、心灵栖息的所在,配备了泳池、羽毛球场、高端健身区、家族私宴厅、亲子阅读室等私享空间,为业主打造了一个高品质的圈层生活范本。在这里,您可以与志同道合的邻居交流,享受专属的休闲时光,体验不一样的尊贵生活。
随着苏州取消限售政策的实施,星合晋墅这样的高品质住宅项目将迎来更好的发展前景。低密度的社区规划、国际化的生活配套、星合控股20余年的品牌积淀,都让这里成为改善型住房的理想选择。未来,这里不仅是居住的港湾,更是资产保值增值的明智之选。
联系方式:18662309054
声明:本文由入驻焦点开放平台的作者撰写,除焦点官方账号外,观点仅代表作者本人,不代表焦点立场。


