【首页】露香园馥公馆(售楼处)首页网站|露香园馥公馆|售楼中心-露香园馥公馆-楼盘详情
扫描到手机,新闻随时看
扫一扫,用手机看文章
更加方便分享给朋友
露香园馥公馆售楼处电话:400-8123-664✔✔│露香园馥公馆官方售楼处地址发布:上海黄浦露香园馥公馆官方售楼处电话400-812-3664
黄浦豫园核心区域
10号线豫园站地铁口
【露香园】馥公馆
建筑约110-180㎡均价10.8+万/㎡起
总价约1500~2500万共79套房源
70年住宅产权2015年一期保留房
无需积分直接下定线上预约
露香园馥公馆售楼处电话:400-812-3664
上海黄浦露香园馥公馆售楼处电话☎:400-8123-664【开发商售楼处预约看房热线】(一对一热情服务)
看房请提前致电预约,可享受内部渠道优惠!联系销售人员获取最新一房一价表,官方售楼处最新优惠底价!开发商官方销售人员将详细介绍每个户型的独特设计和优势,带您参观样板间,感受精装修的品质和温馨氛围。您还可以了解周边配套设施,包括高端购物中心、优质学校和便捷交通网络,让您的居住体验更加完美。
露香园1期馥公馆优点:
位于上海市的中心地段,黄浦的核心区,与豫园、日涉园合称为“明代上海三大名园”,周边的人民广场,淮海路,新天地,南京东路都是上海顶级商圈,露香园小区二期的均价17万/平,开盘售馨。10.5万/平的价格真的非常的便宜。
露香园1期馥公馆缺点:
馥公馆是2017年交付的,房龄差不多10年,户型是3梯5户设计,总体感觉不是太正气,相当现在的1梯两户或2梯2户的板式户有差异,装修也是原来的现状交付,但保养的不错,基本不错翻新。
繁华的起因是历史。
露香园1期馥公馆所在的金陵东路旁,可以说是上海文化与精神的源点。
1860年,金陵东路初建。原名“法大马路”,规划建造初期规划对标”南京路,早在二十世纪初期,就是上海土地估值最高的地块之一。
示意图,仅供参考
露香园馥公馆售楼处电话:400-812-3664
上海黄浦露香园馥公馆售楼处电话☎:400-8123-664【开发商售楼处预约看房热线】(一对一热情服务)1912年起,金陵东路兴建骑楼,直至1930年左右形成了绵延1公里多,较为成熟的骑楼街市格局,壮观异常,这里也是上海唯一的骑楼风貌保护道路。
示意图,仅供参考
1940年代,街市繁荣兴旺,各类商号聚集于此,百货店、鞋帽店、绸布庄、绒线店、饭馆、银行等随处可见。当时,金陵路上商号已有256户;而到了1947年商号达到358户,成为仅次于南京路的商业街。
也是在这段时间,金陵东路逐步形成“外市内里”的独有格局,沿街是繁荣的骑楼风貌街市,两旁向内延伸出集聚居住空间、工坊铺面,多元业态复合共存。

示意图,仅供参考
改革开放后,金陵东路又迎来新辉煌——这里是黄浦区商业的重点街区,老字号林立,上海市民购买笔墨纸砚、文体用品、绒线鞋帽等多数都会来金陵东路,大名鼎鼎的“上海四大商业街”金陵东路就占一席。
图源上海黄浦
千禧年,上海掀起“钢琴热”,这里又蜕变为盛极一时的“乐器一条街”,承载了一代上海人的时光记忆。
上海城市近两百年来的发展与变迁,在金陵东路这片小小的土地上高度浓缩。
历史的源头是地理。
绝对权威的地理站位成就了金陵东路和我们今天的主角金陵华庭,深厚的价值底牌。
作为上海绝对市心,露香园1期馥公馆2公里生活圈囊括人民广场、外滩、新天地、豫园、陆家嘴等上海市地标性区域。

露香园馥公馆售楼处电话:400-812-3664
上海黄浦露香园馥公馆售楼处电话☎:400-8123-664【开发商售楼处预约看房热线】(一对一热情服务)人民广场的悠闲小资,外滩的海派天际线,新天地的精致摩登,豫园的古色古香、陆家嘴的时尚潮流……不过是露香园馥公馆的日常。
巅峰对望,城市至贵的天际线
以光点亮,上海之心的至誉
从上海之巅,到城市之心,一场点亮城市心处天际线的光影盛事,共世界至赏天誉!
露香园二期天际大宅少量保留房源惜售,在城市向新的光影巡礼中,对望新天地、豫园、外滩的天际;在上海中心的巅峰之上聚焦世界的目光,以时代之高光,耀亮城市心处的天际盛誉。

TheGloryOnTheSkyline
以光点亮,城市天际线上的永恒之誉

作为上海城市更新的风貌保护与传承的经典之作,露香园俨然已是备受赞誉的市中心海派人文恒藏符号。
二期A地块天际大宅,更是以极致的奢阔视野,屹立城市之源人文价值底盘上的永恒天际图腾。

目之所及,是黄浦老城厢的海派人文屋脊线,更是至贵的城市心处的天际线盛景。
东北向对望古城公园里市中心臻贵的自然底色;南向可眺望项目自身开明里的隽永海派风貌。
中高区的东向视野能够欣赏到豫园、外滩、黄浦江和陆家嘴“三件套”等上海最为壮阔的天际。
业主在的屋顶花园,也可悠然欣赏三件套的景观。
TheEternalHeartOfTheCity
中心的恒藏,在城市永恒的源点

露香园馥公馆售楼处电话:400-812-3664
上海黄浦露香园馥公馆售楼处电话☎:400-8123-664【开发商售楼处预约看房热线】(一对一热情服务)
【露香园·天誉】二期不止拥有至奢至贵的天际视野,更坐拥黄浦CAZ城市中心之心生活主场。
从城市之源,到全球城市CAZ心核,关于上海的绮丽繁华,于眼前舒展。
2公里内括淮海路、新天地、人民广场、外滩、陆家嘴等城市级CBD。

天际线上的皇冠之藏,出入之间拥有城市中心之心的无限美好。
城市高阶相拥的中心处,以上海核心区少见的超大型人文瑰宝住区,为上海打造城市名片。
TheAestheticsOfNobleLife
至美露香,再序上海名园的恒久传奇


露香园馥公馆售楼处电话:400-812-3664
上海黄浦露香园馥公馆售楼处电话☎:400-8123-664【开发商售楼处预约看房热线】(一对一热情服务)
无论时光流转,总在上海心间。
在传统与当代的交织中,再序城市人文的时光沉浸。
在项目二期中源承明代露香园景观精粹,复刻“露香池”八景。
结合中央景观、屋顶花园等臻罕景观,形成海派风貌作品更难能可贵的多重景观,堪称是上海罕有的16世纪私人园林美学复兴作品。


更兼有HWCD(会所设计)、无间设计(售楼中心设计)、SLD梁志天设计(样板设计)大师天团,共名园盛境的当代焕新,缔造瑰隐东方的生活场域美学。
01.
项目基础信息
项目名称:露香园路18号
开发商:上海露香园置业有限公司
区域:黄浦区
总套数:79套
主力户型:110-180(三梯六户)
特殊户型:253、315、470(三套)顶楼
总高:名义楼层20楼、实际楼层17楼(4、13、14没有)
01室:110的一房无阳台
02室:152的两房有阳台
03室:184的两房有阳台
04室:185的两房有阳台
05室:172的两房有阳台
06室:110的一房有阳台
装修标准:精装交付,所见即所得
产权:70年住宅(需有上海购资)
车位:1500租,60万买
物业费:8.5元/平
露香园一期于2014年竣工,2015年交付!现小区在售户型基本在17万+左右,虽然露香园馥公馆是3梯5户的设计,同样的房龄,但同小区相当7万左右一平,非常罕见。兴趣真的值得一看:小区真实在售房源
露香园馥公馆售楼处电话:400-812-3664
上海黄浦露香园馥公馆售楼处电话☎:400-8123-664【开发商售楼处预约看房热线】(一对一热情服务)
同样一路之隔的金陵华庭预计约360-445㎡大户型,上海市中心核心钻石地段,外滩板块超级顶豪王者,「金陵华庭」首开入市,158套均价18.9万元/㎡的大平层全部售罄!上海有钱人的购买力依然非常强大!
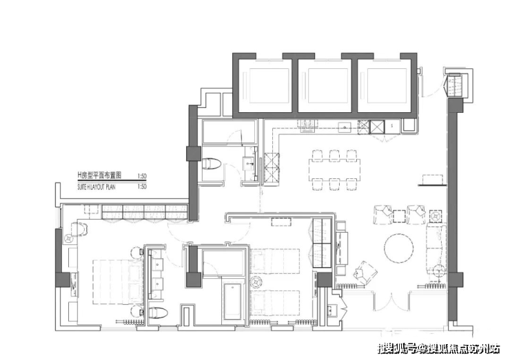
02.户型图及样板实景图
在售房源户型图▼
建面约110㎡一居室实拍▼
建面约152㎡两居室实拍▼
露香园馥公馆售楼处电话:400-812-3664
上海黄浦露香园馥公馆售楼处电话☎:400-8123-664【开发商售楼处预约看房热线】(一对一热情服务)
露香园馥公馆售楼处电话:400-812-3664
上海黄浦露香园馥公馆售楼处电话☎:400-8123-664【开发商售楼处预约看房热线】(一对一热情服务)
建面约184㎡大两房实拍▼

露香园馥公馆售楼处电话:400-812-3664
上海黄浦露香园馥公馆售楼处电话☎:400-8123-664【开发商售楼处预约看房热线】(一对一热情服务)
私家花园露香园,与豫园、日涉园合称为“明代上海三大名园”。明嘉靖年间卸任道州太守顾名儒,购城北黑山桥地筑万竹山房,其弟顾名世在万竹山房东西开辟旷地,凿池得石,上有“露香池”三字,据说还是赵孟頫的手迹,便称此园“露香园”。
露香园馥公馆售楼处电话:400-812-3664
上海黄浦露香园馥公馆售楼处电话☎:400-8123-664【开发商售楼处预约看房热线】(一对一热情服务)
项目位于上海市中心黄浦区老西门板块,距离外滩、新天地、人民广场、淮海路等地标区域的距离均在1.5公里以内,地段可以说是真正的老牌市中心了。
土地稀缺是不争的事实,无论楼市如何震荡,真正的传统市中心项目永远是稀缺资源与保值保障,露香园这等占据城市中心的优质项目,是可遇不可求的。
露香园馥公馆售楼处电话:400-812-3664
上海黄浦露香园馥公馆售楼处电话☎:400-8123-664【开发商售楼处预约看房热线】(一对一热情服务)
『露香园』约38.6万方的超大体量豪宅社区。『露香园』由北向西沿人民路、南到方浜中路,东至河南路,总占地面积约15.8万㎡,以露香园路的东西侧为界,分两期进行开发建设。
露香园(一期)有以高层为主的精装修住宅;城市稀缺别墅;同时配套两种不同业态的酒店;双重休闲体验模式的会所;另有部分临街商业和商业内街。
『露香园』借鉴了欧美、中国香港等地区名宅项目的会所配套理念,在沪上独家引进了“泛会所”概念的新型会所休闲平台。聘请LansonPlace负责营运,规划了5层近9000平方米的独立会所,分别将凝香轩、御景轩、碧漪轩、鸥亭轩四幢及积翠轩、澄泓轩、阜春轩、青莲轩四幢的二层屋顶花园部分以廊相通,形成各3000平方米的整体,打造成为泛会所平台。
03.项目详情及区位配套
【露香园】项目位于上海市中心黄浦区老西门板块,距离外滩、新天地、人民广场、淮海路等地标区域的距离均在1.5公里以内,地段可以说是真正的老牌市中心了。
一、二期合计地上建筑面积40万平方米,内含高层公寓、海派别墅、精品酒店、高端商业、会所、服务式公寓等业态。
高层公寓部分以200平方米以上大平层户型为主,海派别墅单套地上主力面积为350-450平方米,附赠两层地下空间。
露香园馥公馆售楼处电话:400-812-3664
上海黄浦露香园馥公馆售楼处电话☎:400-8123-664【开发商售楼处预约看房热线】(一对一热情服务)
【露香园】项目总占地面积约15.8万㎡,分两期开发。在售房源为位于上海老城厢路露香园路18号,与人民路横向交叉。虽地处繁华之隅,却拥有难得的恬淡与静谧。

上海逸兰露香园一期,前身为服务式公寓坐落于上海黄浦区,为您在繁华魔都缔造一处宁谧舒适的休憩之所。开发商保留房租转售,一期优越的地理位置,让您轻松漫步外滩、豫园、新天地等上海著名景区,尽情探索都市无限魅力。
露香园位于市中心繁华路段,位置极为优越,邻近豫园、城隍庙、新天地、外滩和浦。
露香园馥公馆售楼处电话:400-812-3664
上海黄浦露香园馥公馆售楼处电话☎:400-8123-664【开发商售楼处预约看房热线】(一对一热情服务)
上海城投负责露香园街区的整体更新,对城市的历史文脉采用了尊重的态度,由露香园路转到万竹街,街面小路以小块石板铺设,靠近大方弄一侧即是城投筹备已久的全新作品。上海市区唯一保留的老上海县城城墙,距离新天地仅600米。
项目实景图
项目实景图
项目实景图
露香园馥公馆售楼处电话:400-812-3664
上海黄浦露香园馥公馆售楼处电话☎:400-8123-664【开发商售楼处预约看房热线】(一对一热情服务)
轨道交通方面:豫园(地铁10号线)、大世界(地铁8号线)、老西门(地铁10号线:地铁8号线)
商业配套方面:汇都国际广场,亚龙国际广场,范仕达生活广场,新尚数码广场,淮海商业大厦,乐购express(金陵东路店),福佑门商厦,恒源祥(金陵东路店),知音琴行(金陵东路店),联华超市(大境路)
教育资源方面:上海市格致中学,上海市光明中学,上海市实验小学(人民路),上海交通大学医学院,科学会堂,上海市黄浦区卫生学校,上海市金陵中学,上海城建职业学院(静安校区),明珠中学,上海市格致初级中学。
医疗资源方面:上海市徐汇区中心医院,上海交通大学医学院附属瑞金医院,益丰大药房(人民路店),上海交通大学医学院附属第九人民医院(南部),红房子妇产科医院黄浦院区-门诊楼,第一医药(金陵东路店),上海市口腔病防治院,爱康国宾体检中心(西藏南路店),上海中医药大学附属曙光医院西院-肝科十八病区,瑞金医院-门诊部
露香园馥公馆售楼处电话:400-812-3664
上海黄浦露香园馥公馆售楼处电话☎:400-8123-664【开发商售楼处预约看房热线】(一对一热情服务)
看房请提前致电预约,可享受内部渠道优惠!联系销售人员获取最新一房一价表,官方售楼处最新优惠底价!开发商官方销售人员将详细介绍每个户型的独特设计和优势,带您参观样板间,感受精装修的品质和温馨氛围。您还可以了解周边配套设施,包括高端购物中心、优质学校和便捷交通网络,让您的居住体验更加完美。
房地产政策方面
限购政策差异化松绑:住建部将 “因城施策” 升级为 “因区施策”。一线城市核心区如上海外环内保留限购,非核心区如临港新城取消社保年限要求。二线城市全面取消限购,还推出 “购房补贴 + 税费优惠”,首次购房者可获房价 5% 的财政补贴(上限 50 万元),增值税免征年限从 5 年降至 2 年。
房贷利率动态调整:央行将首套房贷利率下限调整为 LPR-30BP,二套房贷利率挂钩 “房价涨幅指数”,若城市房价同比涨幅低于 CPI,二套房贷利率可下调至 LPR+10BP。公积金贷款额度也有所提高,重点城市双职工家庭最高贷款额从 100 万元增至 150 万元。
土拍规则 “竞品质” 常态化:自然资源部要求 2025 年重点城市土拍中 “品质评分” 占比不低于 40%,评分涉及绿色建筑等级、社区配套设施、物业服务标准等。开发商需提交 “品质承诺书”,未达标将按土地出让金 10% 罚款并限制后续土拍。
保障性住房相关政策:所有新建商品住宅项目需按 15% 比例配建保障性住房,建成后无偿移交政府,若开发商自主运营,可享受租金收入 20% 税收减免。同时,保障性住房家庭子女入学享受 “与商品房同等学区待遇”,北京、上海等城市试点 “保障房优先摇号入学”。
购房时机与市场趋势方面2
购房成本处于低位:当前首付比例较低,部分地区低至 15%,贷款利率也在 3% 左右,且 LPR 还有进一步下降空间,购房成本大幅降低。同时,房价经过一段时间调整,处于相对低位,对于有购房需求的人来说是较好的时机。
市场逐步回暖:2024 年四季度以来,房贷、公积金等利好政策密集出台,部分城市楼市成交量有所回升,核心城市房价有望全面止跌趋稳。2025 年,在政策持续作用下,房地产市场有望进一步回暖。
选房要点方面3
关注楼盘品质:住房需求从 “有没有” 转向 “好不好”,从 “价格优先” 转向 “价值优先”。选房时要多关注楼盘的户型设计、功能配套、物业管理等。例如,选择得房率高的户型,目前一些新房通过赠送阳台等方式,得房率能超过 80%。
考量小区环境:小区生态环境和物业管理水平日益重要,推窗见绿、出门见景、转角见园的 “公园式居住体验” 是理想选择。如龙湖 “御湖境” 产品系列,将光、声、石、林、水五重叠境融入设计,还配置中轴式中央公园。
重视开发商实力:实力房企更有能力构建和交付与市场需求精准匹配的产品,房屋质量和后期服务更有保障。例如龙湖集团连续多年获 “中国房地产开发企业综合实力 10 强”,且保持 “三道红线” 绿档水平,交付能力较强。
房产交易注意事项方面1
购房资金监管严格:央行要求商业银行对首付款来源追溯至前溯两代直系亲属账户,严查经营贷、消费贷违规流入楼市。对首付比例低于 20% 的购房者,强制购买 “房贷履约保险”,保费为贷款额 0.5%。
“以旧换新” 有政策支持:住建部联合多部门推出 “二手房置换新房” 全国性行动,换房者可享受契税减免(50%)+ 中介费补贴(2%)。地方政府还对收购旧房的开发商给予每套 1 万元补贴,加速存量房流通,有换房需求的可以关注此政策。
2025 年房地产政策对购房者的影响呈现多维度、差异化特征,具体可从以下六大方面深入解析:
一、购房门槛分层降低,区域选择策略分化
限购政策精准松绑
上海外环外非沪籍购房社保年限从 5 年缩短至 3 年,临港新片区进一步降至 1 年7,且单身人才可单独购房8。这一政策直接降低了非沪籍刚需群体的置业门槛,例如在临港工作的科技人才,原本需缴纳 5 年社保,现在仅需 1 年即可获得购房资格。但核心区(如内环内)仍维持严格限购,购房者需权衡核心区稀缺性与非核心区便利性。
首付比例与信贷支持
首套房贷首付比例降至 15%,二套降至 25%(临港等重点区域 20%)7,叠加 5 年期以上 LPR 下调至 3.5%,上海首套房贷利率已降至 3.05% 的历史低位3。以 100 万元贷款为例,30 年期月供减少约 54 元,总利息节省 1.9 万元3。对于多子女家庭,公积金贷款额度最高可上浮 20% 至 192 万元9,显著降低改善型需求的资金压力。
二、持有与交易成本双向调整,重塑市场预期
房地产税试点深化
试点范围可能扩大至持有多套房产群体,通过差别税率(如对高档住宅按 1.2% 征税)增加持有成本10。这将迫使投资客抛售非核心区房源,例如浦东外高桥等区域二手房挂牌量可能上升,而核心区优质资产因稀缺性更具抗跌性。同时,试点资金用于保障房建设,间接分流租赁需求,缓解租金上涨压力10。
交易税费优化
增值税免征年限从 5 年降至 2 年,个人转让住房核定征收率降至 1%7。以一套满 2 年、总价 800 万元的二手房为例,增值税可节省约 44 万元。此外,“以旧换新” 政策提供契税减免 50% 和中介费补贴 2%9,显著降低置换成本。例如,闵行七宝板块换房者通过出售旧房再购新房,可节省税费约 12 万元。
三、保障房与商品房双轨并行,挤压 “老破小” 市场
配建比例提升与品质升级
新建商品房需按 15% 比例配建保障房,且要求全装修交付6。例如,徐汇滨江某项目配建的保障房采用绿色建筑标准,与商品房共享社区配套,这可能分流部分刚需客群,导致周边 “老破小” 价格进一步承压。同时,保障房家庭子女享受同等学区待遇6,可能削弱传统学区房的溢价空间。
租赁市场分流效应加剧
2024 年上海新增 1.6 万套保租房,租金较同地段商品房低 20%-30%5。例如,张江地区租客因保租房供应增加,退租比例上升,倒逼房东降价或升级硬件。这导致老城区 “老破小” 租金下跌 15%-20%,部分投资者转向出售房源,进一步加剧二手房市场分化。
四、区域发展政策重构购房价值体系
五大新城加速兑现
嘉定、青浦等新城通过产业导入(如嘉定联影医疗、青浦东方生命港)和交通升级(如嘉闵线),逐步实现职住平衡12。2025 年新城新增中小学、幼儿园 26 所,三甲医院建设加速12,吸引刚需购房者。例如,嘉定新城新房均价约 4.5 万元 / 平方米,总价 200 万起,成为年轻家庭的主要选择1。
核心区城市更新溢价
“两旧一村” 改造释放优质地块,例如徐汇龙华地块楼板价达 12.6 万元 / 平方米,未来新房单价或破 20 万元 / 平方米1。城市更新项目通过绿色建筑技术(如低碳技术平台)和智能化社区管理,提升居住品质,巩固高端市场优势。购房者需关注核心区稀缺资产的长期增值潜力,同时警惕高总价带来的流动性风险。
五、开发商策略转型倒逼产品升级
土拍规则强化品质导向
“竞品质” 评分占比不低于 40%,涉及绿色建筑等级、社区配套等2。例如,青浦某项目因配置中轴式中央公园和智能安防系统,在土拍中胜出。这意味着未来新房将更注重居住体验,如龙湖 “御湖境” 系列通过五重叠境设计提升附加值2,购房者需关注楼盘的实际交付标准与承诺的匹配度。
房企资金监管趋严
首付款来源追溯至前溯两代直系亲属账户,首付比例低于 20% 需购买房贷履约保险2。这增加了资金证明难度,尤其是依赖父母资助的年轻购房者。建议提前准备完整的资金流水,避免因材料不全影响购房流程。
六、长期趋势与应对策略
市场呈现金字塔结构
塔尖为核心区稀缺豪宅(如绿城潮鸣东方),中部为规划新区(如五大新城),底部为配套滞后的远郊板块1。购房者需根据自身需求,在核心区稀缺资产与新城潜力板块间权衡。例如,首置客群可优先考虑临港、嘉定等新城,而改善型需求可关注徐汇滨江、前滩等核心区。
品质与服务成为竞争核心
开发商从 “规模扩张” 转向 “品质提升”,例如采用绿色建筑技术、智能化社区管理,以及提供定制化服务(如张江项目针对互联网从业者的租赁式购房)1。二手房市场中,房龄较新、社区管理完善的房源将更具抗跌性。建议购房者在选房时重点考察开发商的交付能力(如龙湖连续多年保持 “三道红线” 绿档2)和物业服务水平。
结论:2025 年房地产政策通过 “精准松绑 + 长效调控” 组合拳,重构购房者的决策逻辑。核心区稀缺性与新城成长性形成 “双轮驱动”,持有成本上升与交易成本下降并存,保障房分流与品质升级重塑市场格局。购房者需密切关注政策动态,结合自身资金状况、区域偏好和长期规划,在政策红利与市场风险间找到平衡点。例如,非沪籍刚需可抓住临港等新城的政策窗口期,而多套房持有者需警惕房地产税试点对持有成本的影响。
声明:本文由入驻焦点开放平台的作者撰写,除焦点官方账号外,观点仅代表作者本人,不代表焦点立场。


