恒泰&象屿青剑湖2号地块,青剑湖纯新盘就这一个了!
扫描到手机,新闻随时看
扫一扫,用手机看文章
更加方便分享给朋友
恒泰&象屿青剑湖2号地块项目,位于工业园区浦发河东、夷浜路北,是3月13日,苏州工业园区金鸡湖城市发展有限公司以底价103696万元竞得,成交楼面价19000元/平。
青剑湖虽然目前还有项目在售,但是纯新盘就这一个了,而且可售宅地也几乎没有了!
咨询热线:18662309054
项目的地块用途为纯住宅用地,占地面积36384.6平,总建筑面积84474.69平,计容建筑面积54557.69平,容积率1.5.
根据规划,项目拟建13栋8-11F住宅,其中,1栋8F洋房、11栋10F洋房、1栋11F洋房。
8F洋房:1#;
10F洋房:2#、3#、5#、7#、8#、9#、11#、12#、13#、14#、15#;
11F洋房:16#;
1,恒泰&象屿青剑湖2号地块项目的容积率为1.5,为低密住宅社区;
2,该项目的产品均为洋房,以10F洋房为住;
3,从其效果图来看,社区整体呈现暖色调;
4,根据要求,项目的住宅为全装修交付,最低装标2000元/平;
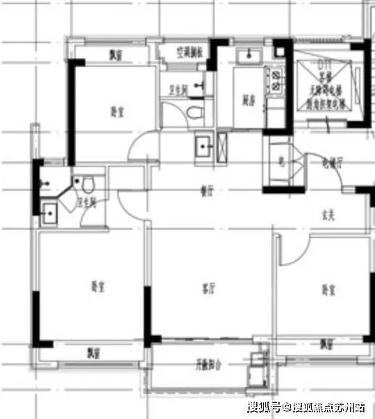
5,项目同时也曝光了三种规划户型:
4房2厅2卫的房屋套型
3开间朝南
阳台是封闭阳台,即,阳台没有面积赠送;
主卧是套房设计,有独立的卫生间;
该户型有4个飘窗设计,有一定的赠送空间;
4房2厅2卫的房屋套型
3开间朝南
客厅是大宽厅设计
阳台双开间,是封闭阳台,即,阳台没有面积赠送;
主卧是套房设计,有独立的卫生间;
该户型有4个飘窗设计,有一定的赠送空间;
3房2厅2卫的房屋套型
3开间朝南
阳台是封闭阳台,即,阳台没有面积赠送;
主卧是套房设计,有独立的卫生间;
该户型有3个飘窗设计,有一定的赠送空间;
从地块位置上来看,项目位于青剑湖东部片区,就在建发青云上的西面,项目周边也是比较成熟的,学校、住宅小区比较多,生活氛围不错。
但是,周边界面来看,北边是中环北线和京沪高铁,有一定的噪音影响,这也比较考验开发商的产品打造能力,噪音问题也是项目一直为人所诟病的一点!
东面是建发青云上,南面则是住宅小区悦云庭,西面则是伟才厚永幼儿园。
在商业配套方面,比较近的已经投入使用的阳澄湖邻里中心!此外还有科技城邻里中心,西面距离龙湖天街距离也在2公里左右,目前龙湖天街已开业。
在教育配套方面,一路之隔是星澄学校,周边还有2所幼儿园;在交通配套方面,目前更建议自驾出行,距离中环北线300米左右,自驾还是较为便利的。
咨询热线:18662309054
声明:本文由入驻焦点开放平台的作者撰写,除焦点官方账号外,观点仅代表作者本人,不代表焦点立场。


