腾聪置业63号地块|145-220平!又一新盘曝光,会是板块房价洼地吗?
扫描到手机,新闻随时看
扫一扫,用手机看文章
更加方便分享给朋友
最新,狮山又要新增一个纯新盘了!
腾聪置业63号地块在最近首次规划公示了,作为去年狮山拍出来的楼面价最低的涉宅用地,地块成交楼面价13030元/平,这里会是狮山的新洼地吗?
规划首曝!仅376户
在拿地5个月之后,高新区狮山板块的纯新盘腾聪置业63号地块项目的规划方案批前公示了。
腾聪置业狮山63号地块项目,即,苏地2023-WG-63号地块,位于高新区狮山商务创新区长江路东、何山路北,是2023年11月9日,腾聪置业以底价119110万元竞得,成交楼面价13030元/平。
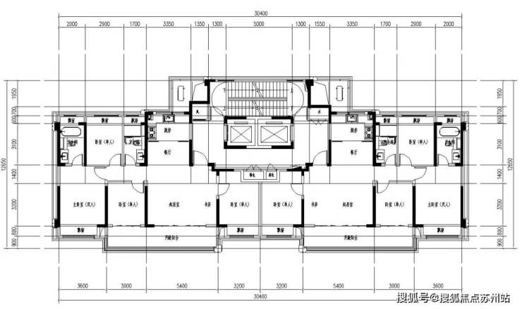
项目的地块用途为商住混合用地,占地面积41682.9平,总建筑面积132845.26平,计容建筑面积91319.2平,容积率2.19.
根据规划,项目拟建11栋住宅和1栋商服用地。
其住宅部分,拟建11栋8-25F住宅,其中,2栋8F洋房、2栋10F洋房、1栋15F小高层、2栋17F小高层、4栋25F高层。
8F洋房:1#、2#;
10F洋房:5#、7#
15F小高层:6#、
17F小高层:3#、10#;
25F高层:4#、8#、9#、11#;
1,其住宅部分共计11栋住宅,产品为洋房、小高层、高层。从产品配比来看,基本是差不多的。
2,项目的户型面积在145-220平,其中,3种户型,即,145平、176平、220平。
3,这是一个改善型社区,其户型都是大平层、以及超级大平层。
4,根据要求,其住宅为全装修交付,装标在2000-4000元/平。这个装标其实挺高的。
5,项目的每层层高基本在3.1米。
6,从平面图来看,项目楼间距还是挺大的。
7,其住宅共计376户。
8,从效果图来看,项目的住宅为现代化时尚风格。
关于更多苏州楼市的楼盘信息,或者您想和其他购房小伙伴一起咨询讨论,欢迎扫描下方二维码,添加小胖君,加入小胖看房团~
规划户型首次发布 层高3.1米
苏高新狮山63号地块项目规划公示,其部分楼栋的平面标准层户型图也首次公示。
这次公示的是高层户型。
其高层为25F,2梯2户,每层层高3.1米。
4房2厅2卫
4房2厅2卫的房屋套型
4开间朝南
客厅+书房的大宽厅设计,开间为5.4米
阳台,开间为8.4米
主卧开间为3.6米,套房设计,有独立的卫生间
多飘窗设计,共计有5个飘窗,有一定的赠送空间
周边界面
腾聪置业狮山63号地块项目,即,苏地2023-WG-63号地块,位于高新区狮山商务创新区长江路东、何山路北,板块上来看属于狮山商务区,但是位置上来看,比较靠近枫桥!
周边界面来看,北面是枫津河,东面也是河流,隔河相望的是枫舟苑,南面是何山路,东面是长江路和轨交3号线!
周边配套来看,项目也处于新区核心区,各项设施也比较齐全,生活便利度也是比较高的!
交通上来看,项目西面就是3号线何山站,往北一站西津桥站也是在建的8号线起始站,未来双轨出行!
自驾上面,西面就是长江路,往北连接太湖大道高架路,连通北环和西环,南面就是何山路,连通西环,可以说去哪里自驾也都很方便!
商业上面,距离比较近的就是新区港龙城,南面距离绿宝广场和龙湖狮山天街也都不远。
教育设施上面,北面靠近枫桥中心幼儿园,附近还有苏州市枫桥中心小学塔园校区(西津分部),苏州高新区第二中学、新区实验初中(马运路校区)等学校。
价格让人好奇!
关于项目的另一个值得关注的点就是价格会在多少呢?
从狮山板块来看,目前其实还是比较高的,板块内这几年入市项目最高已经5W了!
从楼面价上来看,腾聪置业地块就低了许多,虽然是商住混合用地,但是1.3W的楼面价对比狮山其他项目还是有着不小的价差!
距离上来看,与腾聪置业地块最近的其实是枫桥板块的苏高新上华璟庭,项目成交楼面价16010元/平,纯宅地,备案均价36370元/平。
狮山板块来看,目前在售项目中备案均价最低的就是览月阁的3.9W,腾聪置业地块会到4W吗?这里会成为狮山新洼地吗?
咨询热线:18662309054
声明:本文由入驻焦点开放平台的作者撰写,除焦点官方账号外,观点仅代表作者本人,不代表焦点立场。


