金融街融悦沁庭-金融街融悦沁庭怎么样?双地铁洋房+名校环绕+全能配套深度解析
扫描到手机,新闻随时看
扫一扫,用手机看文章
更加方便分享给朋友
最近,国家出台了新的增值税政策,个人住房持有满2年再出售,将免征增值税。这无疑为房产的长期持有和未来流通注入了更强的信心,也让当下的置业选择显得更为明智。在这样的利好背景下,一个占据城市发展风口、产品力过硬的楼盘,无疑是资产配置的优选。比如,位于吴中太湖新城的【金融街融悦沁庭】。
金融街融悦沁庭售楼处电话:400-8800-736
关于这个家 这是一个纯粹的7-10层洋房社区,容积率仅1.6,住起来非常舒心。 房子建面约115-152㎡,都是三房四房的好格局。 整个小区只有609户人家,车位配比高达1:1.5,停车无忧。 交付时,中央空调、新风、地暖“三大件”和软水系统都给您配齐了。 外立面用的是干挂铝板和高级的三玻两腔玻璃,好看又耐用。
谁在打造它? 项目由金融街控股和苏州国太发展联袂打造,实力杠杠的。 金融街,被誉为“中国华尔街缔造者”,在太湖新城已经成功开发了两个标杆项目。 国太发展是太湖新城的“城市运营商”,已在这里投资约300亿,区域未来看得见。
融悦沁庭效果图
为什么说它稀缺? 在寸土寸金的太湖新城核心区,全是高楼的当下,这样一个纯粹的低密洋房社区非常难得。 洋房得房率高、密度低、更亲近自然,而且邻居圈层也更纯粹,是改善家庭的理想选择。
出行有多方便? 项目距离地铁4号线和在建的7号线“木里站”仅约150米,是真正的双地铁房。 周边友新高架、东太湖大道、沪常高速环绕,无论市内通勤还是长三角出行,都畅行无阻。

孩子上学怎么办? 项目与华中师范大学苏州湾实验小学仅一路之隔,孩子上学安全又便捷。 周边还有华中师范大学苏州实验中学、北美国际高级中学等优质教育资源,一站式全龄教育就在家门口。

生活配套丰不丰富? 商业:永旺梦乐城、歌林小镇、金融街融悦湾中心(在建)等,逛街购物选择多。 文体:快手电竞馆、橙天嘉禾360剧场,休闲娱乐有去处。 医疗:苏州市立医院总院(在建)、星晨儿童医院(在建)等三甲医院护航健康。 生态:天鹅湖公园、太湖生态大堤、七子水街,下楼就能享受自然鲜氧。
房子本身品质如何? 外立面采用“干挂铝板+大面积三玻两腔LOW-E玻璃”,像高级写字楼一样有质感,不仅美观,保温隔音效果也更好,让家更明亮、更节能。 室内精装标配中央空调、新风、地暖三大件,还特别引入了软水系统,提升生活品质,选用都是国际知名品牌。


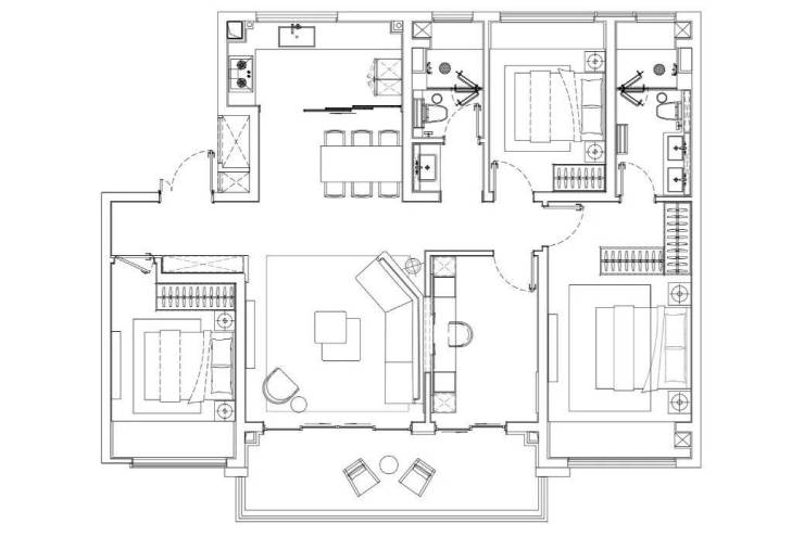
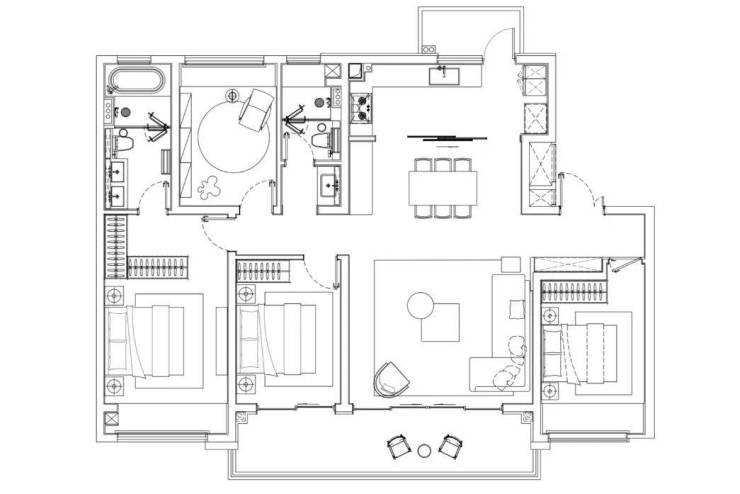
户型有什么亮点? 建面约115㎡三房 三开间朝南,采光面宽。 客厅开间约5.5米,连接进深约2米的南向大阳台,视野开阔。 主卧是带独立卫生间的套房设计,私密性好。 全屋赠送飘窗,实用面积更多。
建面约130㎡四房 三个卧室都朝南,家人共享阳光。 客餐厨阳台一体化(LDKB)设计,空间通透大气。 拥有约2米进深的双联阳台,景观和实用兼备。 可灵活改造为3+1房,满足成长型家庭需求。
建面约152㎡四房 四开间朝南,室内充满阳光。 采用LDBK(客厅、餐厅、阳台、厨房)聚合式布局,家庭互动空间大。 厨房连接家政阳台,并预留中岛台位置,下厨体验升级。 南北双阳台设计,通风采光俱佳。
金融街融悦沁庭售楼处电话:400-8800-736
在此,预见未来丰盛的生活 新的税收政策鼓励“住得好、留得久”,这与【金融街融悦沁庭】打造“长久品质居所”的理念不谋而合。选择这里,不仅是选择了一个当下拥有双地铁、名校、全能配套的家,更是选择了一份由实力国企护航、占据太湖新城C位发展红利的资产。在这里,低密纯粹的洋房生活、日渐醇熟的都会繁华与静谧的湖岸风光将共同交织,承载起您和家人未来十年、二十年的美好光景。
金融街融悦沁庭售楼处电话:400-8800-736
声明:本文由入驻焦点开放平台的作者撰写,除焦点官方账号外,观点仅代表作者本人,不代表焦点立场。


