涌潮府(售楼处)涌潮府首页网站-涌潮府2025最新房价/户型图/小区环境/配套
扫描到手机,新闻随时看
扫一扫,用手机看文章
更加方便分享给朋友
涌潮府售楼处电话:400-812-3664
上海浦东涌潮府售楼处电话☎:400-8123-664(预约看房热线)
开盘热抢中!总价400万起住浦东!便捷轨交+国企品质+精工住区
涌潮府
浦东钱江大家曹路项目
「涌潮府」售楼处电话:400-8123-664☎
一房一价表 &认购规则 公示
建面约87-125㎡3-4房
指导价5.15万/㎡
上海浦东【涌潮府】
售楼处电话☎:400-8123-664【售楼处预约热线】(一对一热情服务)
如有问题欢迎来电咨询,专业一对一热情服务,让您用专业眼光去买房。
户型图抢鲜看!
涌潮府售楼处电话:400-812-3664
上海浦东涌潮府售楼处电话☎:400-8123-664(预约看房热线)
1 前情回顾
2023年7月13日,浙江钱江房地产集团有限公司、宁波维科置业有限公司以及杭州市城建开发集团有限公司以总价77033万元竞得浦东新区曹路基地12-01地块,联动价5.15万/㎡。

涌潮府售楼处电话:400-812-3664
上海浦东涌潮府售楼处电话☎:400-8123-664(预约看房热线)
地块四至范围:东至12-02地块,南至12-03地块,西至金开南路,北至:海福路。
目前设计方案已发布,计容面积约2.72万方,普通商品房用地占地面积约1.36万方,容积率2.0,限高50米,住宅套数下限288套,套均面积约94.4㎡,主要由4栋16层住宅和1栋社区配套组成。

根据出让合同显示,项目还需配建5%以上的保障性住房,全装修比例50%,并要求中小套户型不得低于住宅总建筑面积的60%。
具体要求如下:
地块周边实拍:

涌潮府售楼处电话:400-812-3664
上海浦东涌潮府售楼处电话☎:400-8123-664(预约看房热线)
总价约400万起入住浦东地铁房
错过不再的价格!
涌潮府售楼处电话:400-8123-664☎的价格有多惊喜?
分2个层面看:
第一,如果把浦东如今的新房供应和价格放在一张地图上,是这样的;
首先,整个浦东除了遥远的临港外,几乎没有约400万起的新房了,涌潮府售楼处电话:400-8123-664☎就是这个价位段年末上车的仅有选择。
其次,涌潮府售楼处电话:400-8123-664☎距离金桥申江路地区仅2站、距离金桥副中心仅有3站。

要知道,在浦东金色中环带上,金桥副中心与张江副中心同能级,这里是浦东第二个30年发展的重中之重。
换句话说,涌潮府售楼处电话:400-8123-664☎是整个上海约400万起新房中,距离城市核心更近的新房。
第二,不仅是轨交盘,更是能级远超众多约600万级新房的轨交盘。
项目距离崇明线(在建)直线约600米,这个距离恰到好处,既不会受到轨交噪音的直接影响,也能做到步行可达。

示意图
对于偌大的浦东而言,轨交旁的烫金置业地早已开发殆尽,如今在浦东直线约600米的轨交盘凤毛麟角。
上车后,2站即可直达金桥副中心的申江路地区中心,这里有一个总体量约275万方航母级TOD综合体上海·金鼎(在建)。
同时,2站就能换乘12号线:
换乘后2站换乘在建中的轨交21号线,直达金桥、张家浜、张江核心。
3站换乘6号线,沿着浦东的滨江带一路直达前滩、徐汇滨江。
通过12号线,6站直达杨浦滨江。
另外,崇明线3站即可直达金吉路站与9号线换乘,直达世纪大道、陆家嘴。

示意图
总的来说,在约400万起的新房中,涌潮府售楼处电话:400-8123-664☎是距离城市核心更近、轨交通勤度更好的新房,这个地段能级,就值得您的一张房票。
而好地段的优势,不仅仅在于通勤,更在于接受利好的能力上。

三大千亿产业集群环绕
更具价值和潜力的宜居之地
浦东不是一个纯以环线定价值的区域。例如唐镇,外环外的板块,新房却卖着接近7万的价格,二手房房价就更是夸张。
而究其原因,就是因为产业。
而在这个“浦东买房看产业”的置业逻辑之下,涌潮府售楼处电话:400-8123-664☎的优势更是巨大。
项目被张江、金桥、外高桥三大产业高地环伺:
示意图
张江,世界级的大产业区!
金桥,以商务办公、文化休闲、会议展示、创意研发、生态游憩为主要功能的城市副中心。这片区域不管是产业量级、能级还是定位高度,都是比肩张江的存在。
涌潮府售楼处电话:400-812-3664
上海浦东涌潮府售楼处电话☎:400-8123-664(预约看房热线)
示意图
外高桥,作为全国首个"国家进口贸易促进创新示范区"和上海国际航运、贸易中心的重要载体,成就了包括森兰、碧云联洋等一众国际住区。
这三大重磅产业区未来究竟会为涌潮府售楼处电话:400-8123-664☎带来多大的红利,太让人期待了。
更让人惊喜的不只是未来的高度,还有现在的丰盛配套,已经达到了宜居的标准:
以涌潮府售楼处电话:400-8123-664☎为中心,周边有恒越荣欣广场、欧亚玛特购物广场、招商花园城(在建)、宝龙广场等商业体。
如果说要满足更丰富的消费需求,未来通过地铁换乘到上海金鼎(在建)、嘉里巨峰路商业(在建)等商业中心,自驾也比较方便。

项目邻建成幼儿园,周边在建小学、初中,以及浦东复旦附中分校、浦东模范中学东校等。
(本项目不做任何学区承诺,实际以政府规划为准)

项目直线距离约3km范围内上海市第七人民医院,海军军医大学第二附属医院,三甲级综合医院上海长征医院浦东新院(在建中),预计24年投入使用,护航家人健康。
项目直线距离约5km上海浦东金海湿地公园,未来周边将围绕浦东运河、秦家港河打造体育公园、森林公园和极地公园等。(数据来源浦东发布)


杭派精工创新作品
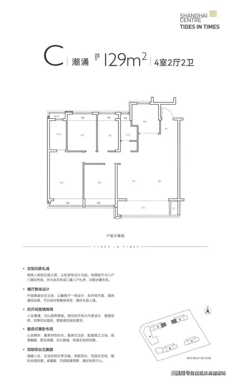
建面约88-129㎡3-4房!
杭州城建(大家房产),秉承“杭派精工,大美为家”,续承至高府系基因,于杭州和上海先后打造了包括武林府、金麟府、传宸府、上海文澜府等经典著作。
其中,文澜府曾取得了74分的超高分,创下了惠南的积分记录,这是杭州城建(大家房产)实力的见证。
而本次,涌潮府售楼处电话:400-8123-664☎仅为焕新浦东人居高度而来,先来欣赏下项目的最新效果图:
涌潮府售楼处电话:400-812-3664
上海浦东涌潮府售楼处电话☎:400-8123-664(预约看房热线)
项目共约253套可售房源,主力户型为建面约88㎡3房2厅1卫,95、97㎡3房2厅2卫以及129㎡4房2厅2卫。
关于户型有几点值得一提:
第一,当下市场,花大价钱但得房率低已被诟病已久,无疑变相拉高了房价。
市场上目前普通新房的得房率普遍都在约73-74%左右,项目户型的得房率高达约79-80%。高得房率为你省下的可是真金白银!
第二,项目本次推出的建面约129㎡4房,是区域目前在售的4房户型。
最新户型图过程稿如下(以实际开发商发布为准):
涌潮府售楼处电话:400-812-3664
上海浦东涌潮府售楼处电话☎:400-8123-664(预约看房热线)
建面约88㎡3房产品,总价或许仅约400万级,价格惊喜,适合刚需客户上车。
3房3飘窗+宽面阳台的设计,在保证实用性的同时,也让室内的通风以及视野都做到了更好。
建面约95-97㎡3房2卫,2卫的设计保证了早晚高峰抢厕所的问题,并且主卧套房设计也保证了主人的私密空间。
在格局上,户型三开间朝南+动静分离,室内通风、私密性俱佳。
值得一提的是3房4飘窗1阳台,这个得房率以及视野的延伸,相当出色。
建面约129㎡真4房产品,并且四开间朝南的设计,这个户型的南向面宽和尺度感堪比别墅。
上海浦东【涌潮府】
售楼处电话☎:400-8123-664【售楼处预约热线】(一对一热情服务)
如有问题欢迎来电咨询,专业一对一热情服务,让您用专业眼光去买房。
涌潮府售楼处电话:4008123664【开发商售楼中心热线】涌潮府营销中心热线400-812-3664涌潮府售楼处地址400-8123-664,楼盘项目全面介绍,本电话为开发商提供线上预约售楼电话,楼盘项目全面介绍(包含楼盘简介,均价,房价,现房,期房,别墅,叠墅,大平层,价格,楼盘地址,户型图,交通规划,备案价,备案名,项目配套,样板间,开盘时间,认筹时间,楼盘详情,售楼处电话,最新消息,最新详情,周边配套,一房一价,最新进展等详情咨询)楼盘详情丨价格丨更多优惠丨机不可失丨欢迎致电丨诚邀品鉴!售楼处位置丨特价房丨工抵房丨剩余房源丨户型图丨最新消息丨免责声明:将文章内容综合来源于网络、只作分享,版权归原作者所有!!如有侵权,请联系我们,我们第一时间处理如有问题欢迎来电咨询,专业一对一热情服务,让您用专业眼光去买房。如果您想了解更多楼盘详情,欢迎提前预约拨打涌潮府售楼处电话☎400_812_3664✔✔✔
上海房产置换全攻略:从旧房到新房的秘密
置换”一词,简而言之,就是“出售现有住房并购买新房”的过程。目前,在上海的房产市场中,大约有70%的客户选择通过置换来升级或调整住房。尽管许多人都有换房的意愿,但往往因种种考量而犹豫不决。本文旨在为那些有换房需求的房东们提供全面的指南,助你理清思路,做出明智的换房决策。
1、明确置换目的:是出于改善还是优化资产?
2、预算规划:需要准备多少资金?能选购到何种类型的房产?
3、房源选择:挑选与自身需求高度契合的房产。
4、制定置换策略:如何操作才能最大化利益?
5、新房选择与倒挂现象:置换新房的利弊分析。
接下来,我们将深入探讨置换的必要性。置换的动机因人而异,但主要可归纳为两大类:一是改善自身的生活条件,二是优化资产配置。在本篇文章中,我们将主要围绕普适性家庭的改善需求来展开讨论。具体来说,改善需求可能涉及以下三种情况:
2、刚性的居住需求,如小户型换大户型,以满足家庭空间的需求。
2、追求更高品质的生活,希望改善现有的居住环境,例如旧房换新房,提升生活舒适度。
3、为孩子的教育考虑,例如学区房的置换,以获取更优质的教育资源。
这三种情况是许多家庭选择置换房产的内在驱动力。在考虑是否进行置换时,我们不妨自问:是否能够接受不进行置换可能带来的后果?
无论出于哪种动机,我们建议在进行房产置换时,首要考虑的是自住需求。在“房住不炒”的背景下,房产逐渐转变为一种耐用消费品,因此房价的波动、利率的高低甚至房地产税的实施,都不会影响购房者的自住决策。
明确了置换的必要性后,我们接下来需要关注的是置换后的房产能有多好,也就是能够换到何种品质的房子。这涉及到置换预算的规划,包括显性的货币成本和隐性的成本。货币成本主要包括买卖房屋所产生的各项税费、中介费用以及利率成本等。而隐性成本,如时间成本和精力成本,往往容易被忽视,但在实际置换过程中却可能带来不小的负担。
在制定置换预算时,我们需要充分考虑各种成本因素。首先,要明确自己可用于购房的现金有多少,这包括出售房屋所得的资金和额外准备的购房资金。其次,要理性对待市场的波动,遵循“随行就市”的原则,避免过高估计自己的卖出价格。最后,要充分准备并应对可能出现的各种挑战和不确定性因素。
通过合理的预算规划和充分的准备,我们可以更好地实现房产置换的目标,满足自身的居住需求和生活品质的提升。
市场波动时,房价可能上下浮动20万。若过于纠结这40万的差价,可能会错过市场的最佳时机。我们应遵循“随行就市”的原则,根据当前市场价格来决定出售和购买。在置换过程中,关键是要动态调整价格策略,根据市场反应及时调整房源价格。
在计算出售房屋到手的钱时,应基于当前市场实际成交价,而非个人预期。只有成功出售并手握现金,才具备购房的主动权。例如,一套挂牌350万的二手房,预估成交价在340万左右。考虑到税费和佣金等因素,实际到手纯收益为333.2万。若您目前手头有50万现金,那么可用于购房的现金将达到380万左右。
接下来是购房预算的计算。全款购房的情况下,预算较为明确;而贷款购房则存在一定差异。今年实施的“三价就低”政策对购房预算产生了显著影响。我们可以通过具体计算来比较新政前后购房预算的变化。过去,商业贷款上限主要考虑还贷能力和意愿,而在当前政策下,贷款额度将受到涉税评估价的影响。涉税评估价相较于实际成交价往往会有所折扣,具体折扣比例视房屋情况而定。为了便于计算,我们可以假设涉税评估价为房屋总价的60%。
按照“三价就低”新政下的比例进行简单推算,若首付380万,则最高购房预算仅为463万(即涉税评估价的30%可贷比例加上首付金额)。与新政前相比,这少了84万,足以购买一套房屋。因此,在新政下,清晰自己的购房预算显得尤为重要。粗略估算,首套房的首付比例可能在50%~70%之间,而二套房则为80%~90%。
明确了463万作为购房上限后,我们就可以开始寻找符合这一预算的房子。接下来,就是评估能买的房子与个人置换核心需求的匹配度。这一步非常关键,因为它将决定我们是否能够找到心仪的二手房。
具体来说,我们可以利用链家、贝壳等应用或联系经纪人,查找预算上限范围内的房源。然后,我们需要问自己:这些房子是否能够解决我置换的痛点?如果发现落差很大,那么可能需要重新考虑置换的必要性,或者等待预算提升或市场变化后再进行。
一旦找到符合需求的房子,那么就可以正式启动置换流程了。越早完成这一流程,我们就能越早享受到生活品质的改善。接下来,我们将继续分享具体的置换策略。
3、置换时机如何把握?何时出售、何时购入,才能实现利益最大化?如何尽可能缩短置换周期,做到买卖“无缝衔接”?
2、具体房源如何挑选?
1、如何进行置换?选择合适的置换策略
首先,我们可以参考这张近五年来的成交量与价格走势图来进行分析。
显然,在经过一系列政策调控后,二手房市场已呈现出下滑趋势,与年初相比已明显下行。不可否认的是,二手房市场的最佳出售时机已逐渐消逝。而随着行情的持续下行,新的“最佳时机”已然来临,那就是当下。
试想,若成交量持续萎靡不振,价格难以显著下调,那么交易将变得愈发困难。因此,为了避免在激烈的竞争中陷入被动,错过成交的机会,卖房者应当机立断,趁早行动,这才是明智之举。
回顾过去,当二手房市场繁荣时,许多业主往往抱持观望态度,不愿出售,期待价格能进一步攀升。然而,当市场步入困境时,他们又面临着卖房困难或不敢低价的困境。这种心态折射出一种典型的矛盾心理。
当然,我们上述的讨论主要聚焦于上海的整体市场趋势。但事实上,不同区域间的市场差异显著,有的区域房价在上涨,而有的则在下跌。这就产生了一种现象:“我自己的房子还在贬值,而我想买的房子却在涨价,我该如何抉择?”
对于那些决心进行房屋置换的业主来说,他们需要明确自己的核心需求,分清轻重缓急。在置换过程中,购买一套更优质的房产是关键。仅仅盯着手中的旧房产,往往会让人迷失方向,因为人们往往更关注自己已经拥有的东西,而忽视了尚未到手的机会。这种心态会导致主次矛盾的颠倒,影响决策的合理性。
因此,在进行二手房置换时,我们首要关注的不是现有房产的销售情况,而是下一套房产的购买计划。根据近期上海二手市场的成交统计数据显示,购房的平均周期为30-40天,而卖房的平均周期则长达100天。这意味着从挂牌或开始看房到最终签约,整个过程需要较长时间。如果等到现有房产完全出售并收到房款后才开始考虑购买下一套房产,那么整个置换周期可能会延长至130天甚至更久。这不仅会增加租房成本,还可能面临市场变动的风险。
综上所述,在以自住为目的的置换背景下,为了缩短置换周期并降低风险,我们建议卖房者尽早行动并同步进行看房找房的工作。这样不仅能更好地把握市场机会,还能确保置换过程的顺利进行。
2、如何做出明智的选择?
在考虑置换时,首先要回顾自己的核心目的,比如是为了扩大居住空间还是改善教育配套。同时,找到另一个重要的弹性需求,例如缩短通勤时间或改善小区环境。然而,在实际找房过程中,人们往往会陷入一个误区,即希望找到一个完美无缺的房产,各方面都符合期望,甚至期待它能立即暴涨,从而迅速增加家庭资产。
此时,建议回归初心,理清自己的核心需求。在选择时,需要综合考虑各种因素,如楼层、户型、面积、朝向、装修状况、楼龄、电梯设施、小区环境和地铁交通等。将这些需求进行排序,找到最适合自己的房产。
另外,当前新房市场存在价格倒挂现象,这激发了许多人“卖旧买新”的念头。然而,在做出决策之前,必须仔细评估新房的风险。摇号购房是当前新房购买的一大风险点,尤其是热门楼盘的积分摇号制度。如果积分不足或不符合资格,购房者可能面临无法购买新房的风险。因此,在考虑置换时,必须充分考虑这些潜在风险并做出明智的决策。
新房流动性风险
根据上海今年新推出的政策,触发积分或入围比超过1.3的新房将面临“五年限售”的限制,即购房合同网签备案满5年后方可转让。按照常规期房推算,这大约意味着锁定期为5-7年。
在此期间,您可能会面临租房成本或急需现金却无法快速变现新房的问题,这对您资金周转和抗风险能力提出了不小的挑战。此外,开发商能否按时、正常交房也是一个不容忽视的风险点。
以上所述是“换新”过程中可能面临的主要风险。当然,选择新房项目时,市场上充斥着各种观点,本文将不深入探讨这一具体环节。但不论您最终选择新房还是二手房,都应始终围绕置换的必要性来明确自己的预算和改善目标,以确保更有效地实现居住品质的提升。
如果您在置换过程中遇到任何疑问或需要进一步的建议,随时联系我们。
学校字典团队在过去的一年里,已成功协助众多家庭完成了择区择校的旅程,我们对上海教育状况的深入了解赢得了大家的广泛认可。面对今年房产市场的频繁政策变动,购房流程与风险都受到了显著影响。在这一市场波动的时期,我们深入剖析了近期市场动态与政策走向,并积累了丰富的购房案例。除了教育因素,我们还对购房决策中的其他关键因素进行了深入研究,旨在为每位有购房需求的人提供实质性帮助。
现正式启动全上海二手房购房咨询业务,为确保咨询质量,每周仅限服务5位客户。我们热忱邀请近期有购房意向的朋友们联系小助手,进行深入咨询。
绝对标高:也称海拔标高,是相对海平面而言的标高(单位:m)。是以黄海的平均海平面为零点而测定的高度。
相对标高:是指以建筑物基准面正负零(一般为建筑物首层地面)为基准的标高(单位:m)是以室内首层地面为零点而测定的高度
声明:本文由入驻焦点开放平台的作者撰写,除焦点官方账号外,观点仅代表作者本人,不代表焦点立场。


