越秀·外滩樾售楼处电话:400-812-3664
上海虹口越秀·外滩樾售楼处电话☎:400-8123-664(官方预约看房热线)
虹口北外滩 低密风貌别墅
越秀地产&临港集团联合打造
「越秀·外滩樾」
建面约238-338㎡海派院墅
户型:238/305/318/338
总价约4500-9000万
“样板间”开放中
— 恭迎品鉴 —
越秀外滩樾售楼处电话400-8123-664
“拨打下方电话预约看房“
最新消息:虹口北外滩 低密风貌别墅临港越秀北外滩项目定名「越秀·外滩樾」样板间2025年3月29日正式开放!
越秀·外滩樾售楼处电话:400-812-3664
上海虹口越秀·外滩樾售楼处电话☎:400-8123-664【开发商售楼处预约看房热线】(一对一热情服务)
看房请提前致电预约,可享受内部渠道优惠!联系销售人员获取最新一房一价表,官方售楼处最新优惠底价!开发商官方销售人员将详细介绍每个户型的独特设计和优势,带您参观样板间,感受精装修的品质和温馨氛围。您还可以了解周边配套设施,包括高端购物中心、优质学校和便捷交通网络,让您的居住体验更加完美。

越秀·外滩樾售楼处电话:400-812-3664
上海虹口越秀·外滩樾售楼处电话☎:400-8123-664(官方预约看房热线)
实景图&效果图



越秀外滩樾售楼处电话400-8123-664

越秀·外滩樾售楼处电话:400-812-3664
上海虹口越秀·外滩樾售楼处电话☎:400-8123-664(官方预约看房热线)

「越秀·外滩樾」项目地块四至范围, 东至:梧州路,隔壁是中皇广场; 西至:hk270B-02,隔壁就是1933老场坊; 南至:周家嘴路 北至:柘皋路。

越秀外滩樾售楼处电话400-8123-664
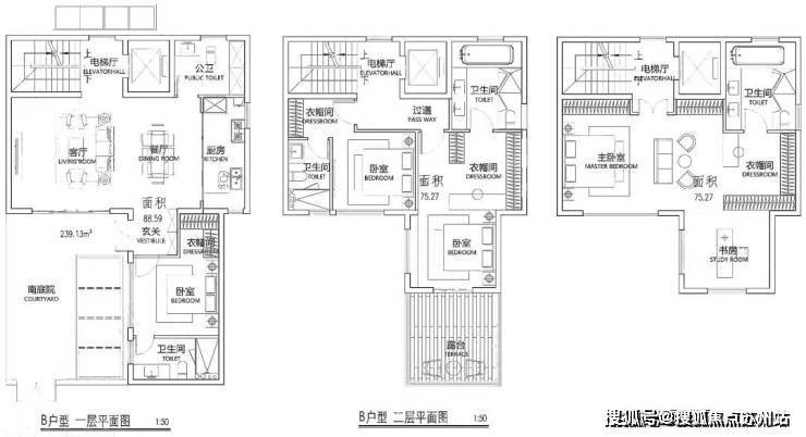
项目将呈现49套低密风貌里弄住宅,面积约238-338㎡。

越秀·外滩樾售楼处电话:400-812-3664
上海虹口越秀·外滩樾售楼处电话☎:400-8123-664(官方预约看房热线)


户型图如下:(过程稿仅供参考,最终以实际为准)

越秀·外滩樾售楼处电话:400-812-3664
上海虹口越秀·外滩樾售楼处电话☎:400-8123-664(官方预约看房热线)




越秀外滩樾售楼处电话400-8123-664
基础信息
【项目名称】越秀·外滩樾
【开发商】上海漕越经济发展有限公司
【项目位置】上海市·虹口区·梧州路235弄
【项目类别】70年产权住宅
【项目类型】风貌别墅
【可售户数】48套(风貌)
【容积率】约1。3
越秀·外滩樾售楼处电话:400-812-3664
上海虹口越秀·外滩樾售楼处电话☎:400-8123-664(官方预约看房热线)

近两年虹口、黄浦、静安核心区风貌别墅相继面世,是对上海整个住宅或者说整个豪宅市场的命运改写和价值颠覆!
一方面,风貌别墅的珍贵,真谛不在于仿古,而是将特定时期的特殊历史基因通过建筑形式留存,转化成当代生活的诗意载体。
另一方面,目前我们能看到做的比较好的风貌别墅,地段非富即贵,在上海,这种级别的豪宅本身具备传承意义,拥有比普通豪宅更高的价值属性。
01
「越秀·外滩樾」
上海风貌别墅翘楚
风貌别墅在上海,即便同样选址最核心的地段, 同样打造顶级产品,内里也有着非常具象的等级之分。
一是来源于紧俏供应与“尖货”稀缺的双重重压。越秀外滩樾售楼处电话400-8123-664
“物以稀为贵”在上海豪宅市场已经成为了几十年不变的法则,风貌别墅更是如此。
其初始地块来源的成片二集以下旧里, 经历了百年时间更迭,才有了这几年的集中城市更新,按计划今年年底前会全部完成。

换句话说, 在今年结束这一轮城市更新之后,上海可能未来几十年都不会再有风貌别墅的土地出让。
而且,已知的市面上部分风貌地块,也并非都是别墅,还有相当一部分是商业、保留建筑、还有高层/洋房类产品。
更可况,在当下,盘点整个上海所有已入市的风貌, 越秀·外滩樾作为以双拼&三拼为主的偏现代风的风貌别墅,稀缺性稳稳排进前三!越秀外滩樾售楼处电话400-8123-664

越秀·外滩樾售楼处电话:400-812-3664
上海虹口越秀·外滩樾售楼处电话☎:400-8123-664(官方预约看房热线)
二是来源于历史传承和现代精神的极致对冲。
追溯上海石库门发展历史,早期传统的石库门住宅蕴含了许多时代特征,多样化的门头设计、老虎窗、山墙等建筑元素,都是建筑美学的典范。
但随着时代发展,进阶版的风貌在传承的基础上革故鼎新,动态衍生出了许多新的居住要求和审美需求,而 越秀·外滩樾对当下的这个变化其实是很敏锐的。
这个如果大家到了现场就会很清晰的感知到:
例如,在社区入户,目前已经完美呈现出来的,有强烈视觉冲击的立面 大量的红砖、红洞石及大面积的落地弧形玻璃搭配的相得益彰,整个门头既有厚重的历史感,又不失极简主义的现代美。

又例如, 在“砖”这种材料的运用上,越秀·外滩樾更是做到了极致!用了老砖、陶砖、釉面砖和御窑金砖四种砖。
老砖是百年历史传承、陶砖是技艺上的推陈出新、釉面砖是现代美感与实用的碰撞、御窑金砖是定制的家族印记!

在这样量级的项目上,单个的用材或许算不上特殊,但这样的历史厚重感再加上事无巨细的细节打磨,意味着 上海市中心终于出现真正具有传承意义的风貌别墅!
这是本质上填补了豪宅市场一种特殊供应的空白
也是越秀·外滩樾真正在为上海创造出现风貌尖货作品的可能!
三是来源于核心地段继往开来的城市光环。
关于越秀·外滩樾所在的 虹口北外滩,目前已经成为上海能级最高的规划之一。
根据规划细则,这里将建设约480米高的上海北外滩中心,未来将与其他17栋180米以上的超高层建筑群,共同构筑起浦西最美天际线,业态更为丰富,产业结构也更为稳健。
越秀·外滩樾售楼处电话:400-812-3664
上海虹口越秀·外滩樾售楼处电话☎:400-8123-664(官方预约看房热线)

北外滩与陆家嘴超高层建筑群、外滩万国建筑群,共同构成“黄金三角”。
而且,与陆家嘴、外滩相比,北外滩的建造速度更快, 部分地标建筑已经屹立江边,成为上海新的天际线,世界级会客厅已然初显峥嵘!
当然,很多人不知道的是, 上海的开源也是从北外滩开始。
从早期的万国领事馆、到国内文豪学者的聚居地、北外滩承担了经济、文化、甚至军事交流职能,这里曾是世界了解中国的窗口,也是中国走向世界的开端。
最早的船厂、路灯、电话、电影院、证券交易所其实都在这里。
可以毫不夸张的讲,上海从开埠至今,虹口北外滩始终是上海真正的中心!

要说 内环目前现有的历史风貌区,虹口北外滩一定是正统所在。
这就注定了,越秀·外滩樾这种产品,不止在上海特定核心区才有,在全国更是不会、也不可能复制出来。
所以它不止承接上一个百年,更是引领下一个百年的居住领袖。
02
越秀·外滩樾
或引领居住的下一个百年
当然,众所周知,风貌别墅这类产品,必须要完成一定程度的财富积累之后才可以实现,这样的群体不止上海非常少,放在全国也凤毛麟角。
而 住宅对他们来说并非是一个简单的居所,不是一个简单的房子,更是精神的栖息地。

仔细看越秀·外滩樾,任何角度,都在将这个思路执行的彻彻底底。
市面上目前的大多风貌别墅,都有的通病,越在核心位置,地块越不规整,窗墙比受限越多,造出来的别墅普遍逼仄。
越秀·外滩樾从拿地到建筑的设计建造,从公共区域到内部空间, 都积极解决了传统风貌别墅存在的弊端!
1、原始地块规整,带来“类独栋”居住体验越秀外滩樾售楼处电话400-8123-664
作为精心调研后选址的地块, 越秀·外滩樾本身地块就非常规整,可塑造性极强。
再加上在精密计算土地、套数、面积占比之后,呈现出了工字排布的效果:

越秀·外滩樾售楼处电话:400-812-3664
上海虹口越秀·外滩樾售楼处电话☎:400-8123-664(官方预约看房热线)这样一来,让更多的客户实际感受就是 双拼/三拼的效果,非常接近接近类独栋感觉。
2、提升窗墙比,最大尺度增加室内采光
以往风貌别墅中,出于保护建筑外立面规则,窗墙比带来的采光面小是一个很大的硬伤。
但在越秀·外滩樾,展现给我们的是则是 大窗墙比、大开间、大尺度!

从 定制的转角曲面玻璃墙,到全落地玻璃窗,每一个细节都在把自然光线无限拉进室内!
3、空间有限,那就创造更多可能
上海市中心寸土寸金这个概念不用笔者强调,所以,现在即便是几千万的豪宅项目,只要位置好,容易忽视会所或公共空间的营造。 越秀外滩樾售楼处电话400-8123-664
但 越秀·外滩樾想为未来业主做的,只有更多。
为了使我们在稀缺的地段营造稀缺的资源,把生活的想象现实化, 越秀·外滩樾还在会所引“山水入园”。在空间有限的情况下,进行垂直空间的挖掘,营造了坡道景观、山水庭院和会所。
不仅设计感十足,也颇费心力的将生态和自然带入了城市居所之中:
这里的山石墙选自深山的原石,是具有丰富经验的匠人手工钻凿;
这里选用的子母松也是从松林中精心选取,符合山水中庭尺度且姿态优美的树株;
这里还遍布了与“山”景呼应、自地面叠层的垂瀑和水景······

越秀·外滩樾售楼处电话:400-812-3664
上海虹口越秀·外滩樾售楼处电话☎:400-8123-664(官方预约看房热线)再用不同的标高引自然光线入园,不止提升了采光效果,同时也让整个庭院景观更加垂直立体,更好的放大了观赏效果。
像这样能在市中心打造出大面积有山有水的山野自然景观,又遇上了地块肌理的天赋异禀。
已经赢在了起跑线,和市面上普通风貌项目对比,越秀·外滩樾明显已经进入了下一个Level!
03
仪式感会所只是基础色
“顶奢化”生活演绎才是绝学
当然,提到风貌别墅,逃不脱的一个话题就是 脱离大众产品、拒绝平庸感。
越秀·外滩樾更不例外。越秀外滩樾售楼处电话400-8123-664
从笔者前面提到的第一重会客空间、到第二重的艺术空间,再到面积更大,更加私密,功能性更复合的第三重会所空间,越秀·外滩樾的取材和对未来生活体验的思量都极为考究。
第一重-堂前会客,这里首先营造了满满的社区入户的仪式感,通过红色陶砖与红洞石以及大面落地玻璃营造出了层次丰富的艺术立面。营造业主在家庭空间以外进行接待交往的处所。

不仅视觉美感突出,每一步的取材、工艺细节也与环境相融的恰到好处,尽显格调!
第二重-樾下会友
这个空间位于整个地下的b1层,未来,北区会作为艺术展览区,南区专业健身房,兼具实用性和审美需求。

特别是豪宅类社区,一定会需要一个邻里交互和会友空间,那艺术就会是比较好的一个载体,可以更好的建立起链接。
第三重:言上会己越秀外滩樾售楼处电话400-8123-664
这一层的会所空间,场景更为丰富、适用场景更多,也更加家庭化。
在约1000㎡的会所内,包含泳池、私宴、休闲吧等功能区,是打造给业主取悦自己的空间,在这里可以享受足够的放松,各个空间的穿透也保证了不同空间的一家人可以互动交流。


即便是豪宅中经常会做的泳池,越秀·外滩樾也要做到极致。
造型别致的罗马浴场风格和我国宋代名画《溪山行旅图》在这里完美碰撞,再加上项目很巧思的在泳池上方做了天窗,引进了自然光线,呈现出非常独特的美感。 越秀外滩樾售楼处电话400-8123-664

而且, 这三重空间,从接待应酬到家庭空间的延展,都有物理区隔,未来业主可以随心把控社交尺度,仪式感和对生活的掌控都可以握在自己手里!
风貌或许大家都在做,也都可以做,但 越秀·外滩樾的考量,远远超出了一个高端住宅本身。
能把未来业主生活前置化、细节化,呈现的这么理想的, 目前可能也就越秀·外滩樾能做到。
本质上它更像是一件传家宝。
记录了一个大家族的过往和历史,又给未来提供了诸多新的可能,回顾生活却又高于生活。

【项目简介】
项目傲立“一江一河”交汇处(直线距离约1。1KM),未来将打造成为彰显上海城市核心竞争力的黄金水岸和具有国际影响力的世界级城市会客厅,出入之间,相逢城市高阶未来。 越秀外滩樾售楼处电话400-8123-664
(*示意图,图片来源于网络)

【北外滩 面向世界的上海新封面】
北外滩,与外滩、陆家嘴并称为上海的“黄金三角”。将以2座陆家嘴的商务体量规划,新天地2。0生活圈打造,成为上海跃升世界舞台的“中心发力”新引擎。
(*示意图,图片来源于网络)

【中央商务区 未来上海腾飞引擎】
区域能级:总开发面积约840万方,40栋甲级写字楼城市地标:480米浦西第一高楼,19栋摩天大楼集群金融产业:2100+家金融企业赋能,资产管理规模超8万亿元,位居全市第一航运格局:4500+家航运企业集聚(上港集团、中远海运等),打造国际航运中心全球贸易:2500+家贸易企业入驻(摩亚方舟、银联商务等)新兴产业:129家新增高新技术企业,113家市区科技小巨人企业(数据来源:上海市规划局《北外滩地区控制性详细规划》)
(*示意图,图片来源于网络)


【立体交通 | 无界畅达世界 擎动城市脉搏】
全城畅达:
约360米新建路隧道(直线距离),快速直达陆家嘴CBD;
约670米外滩隧道(直线距离),直达外滩金融商业街以及老码头;
约150米北横通道(直线距离)贯通全城,快速通达虹桥机场/虹桥火车站;
约2。4公里大连路隧道(直线距离),直达浦东东方路、世纪大道、八百伴商业圈
四轨交汇:越秀外滩樾售楼处电话400-8123-664越秀外滩樾售楼处电话400-8123-664
轨交4/10号线海伦路站约850m(直线距离),3站南京东路,6站新天地。
(*交通路网示意图,仅供参考。本区位图仅用于本小区地理方位示意,非实际地图,相关信息并非按比例缩放。)

【核心商圈 | 高阶商业配套 国际摩登领潮】
商业配套方面项目约2公里内,多元繁华构筑封面商业圈
北外滩商圈直线距离约500米;
外滩商圈直线距离约1000米;
陆家嘴商圈直线距离约1500米;
瑞虹商圈直线距离约900米;
(*商圈距离示意图,仅供参考。本区位图仅用于本小区地理方位示意,非实际地图,相关信息并非按比例缩放。)

【高端医疗 | 优质三甲医院 护航健康生活】
三公里内四所三甲医院,全生命周期护航
新华医院(儿科专长);
复旦大学附属妇产医院;
上海市第一人民医院;
上海东方医院(血管外科专长);
【学府荟萃 | 全龄教育培优 一脉书香传承】
幼儿园:约1公里内6所幼儿园(直线距离),涵盖东余杭路幼儿园等3所示范级学校;
小学:约1。5公里内5所小学(直线距离),涵盖区重点四川北路第一小学;
中学:约1。6公里内6所中学(直线距离),1所市重点、2所区重点。一路之隔上海虹口二中心小学(在建中),约2。3公里市重点上海外国语大学附属外国语学校(直线距离)*施教区及就学政策以教育部门规划为准
越秀外滩樾售楼处电话400-8123-664越秀外滩樾售楼处电话400-8123-664
(*示意图,图片来源于网络)

【滨江低密 | 丰盈自然绿地 城市诗意回归】
2。5公里北外滩滨江绿地(约800m直达),四川北路公园、和平公园、鲁迅公园3大公园环伺,于滨江和城市低密绿芯之间,肇启当代诗意生活传序。
(*示意图,图片来源于网络)



程绍正韬,建筑室内设计之东方主义集大成者,致力于东方文化的坚守与创新。他打破惯常的职业思维,将生活方式化作一种哲学态度,融入空间设计,让设计不止于作品。

李玮珉,撑起中国豪宅设计半壁江山,擅长为城市塑造文化符号建筑作品。他的作品更多用极简的方式来表明态度,崇尚简而高效的现代生活方式。庄重的建筑语汇,适时注入艺术、自然与美学,让空间充满想象力。

复刻百年前的高端工艺元素,让海派造诣世纪传承。清砖立柱、古典门头、封闭门窗、岩石山墙等经典海派建筑风貌转译,于历史和未来之间收藏百年上海。
(*本图片仅为方案过程讨论稿,并非交付标准。)


【41载越秀 | 万亿级开发商 与上海共卓越】
国内资产规模最大的地方驻港企业之一越秀地产,中国第一代商品房缔造者。41年越秀,30城300+项目,服务超100万业主;2023年销售额行业排名12,2023年TOP20销售业绩增长率最高房企。2024中国房企综合实力TOP9。入席北外滩世界会客厅,与上海共生长。(数据来源:克而瑞地产研究发布榜单《2023年1-12月。中国房地产企业销售榜top200》)


虹口北外滩 低密风貌别墅
越秀地产&临港集团联合打造
「越秀·外滩樾」
建面约238-338㎡海派院墅
户型:238/305/318/338
总价约4500-9000万
“样板间”即将开放
越秀·外滩樾售楼处电话:400-812-3664
上海虹口越秀·外滩樾售楼处电话☎:400-8123-664【开发商售楼处预约看房热线】(一对一热情服务)
看房请提前致电预约,可享受内部渠道优惠!联系销售人员获取最新一房一价表,官方售楼处最新优惠底价!开发商官方销售人员将详细介绍每个户型的独特设计和优势,带您参观样板间,感受精装修的品质和温馨氛围。您还可以了解周边配套设施,包括高端购物中心、优质学校和便捷交通网络,让您的居住体验更加完美。
越秀·外滩樾售楼处电话:4008123664【开发商售楼中心热线】越秀·外滩樾营销中心热线400-812-3664越秀·外滩樾售楼处地址400-8123-664,楼盘项目全面介绍,本电话为开发商提供线 上预约售楼电话,楼盘项目全面介绍(包含楼盘简介,均价,房价,现房,期房,别墅,叠墅,大平层,价格,楼盘地址,户型图,交通规划,备案价,备案名,项目配套,样板间,开盘时间,认筹时间,楼盘详情,售楼处电话,最新消息,最新详情,周边配套,一房一价,最新进展等详情咨询)楼盘详情丨价格丨更多优惠丨机不可失丨欢迎致电丨诚邀品鉴!售楼处位置丨特价房丨工抵房丨剩余房源丨户型图丨最新消息丨免责声明:将文章内容综合来源于网络、只作分享,版权归原作者所有!!如有侵权,请联系我们,我们第一时间处理如有问题欢迎来电咨询,专业一对一热情服务,让您用专业眼光去买房。如果您想了解更多楼盘详情,欢迎提前预约拨打越秀·外滩樾售楼处电话☎400_812_3664✔✔✔
一、销售商品房所必需的条件
房地产开发商在预售其开发的房地产时,必须满足一系列的条件。这些条件包括:已依法登记并取得房地产权利证书的土地使用权;已获取《建筑许可证》和《开工许可证》;确保地价款和土地出让金已全部付清,同时,投入开发建筑的资金需达到工程预算投资总额的25%,并经过注册会计师的验资;还需与金融机构签订预售款监管协议;以及保证土地使用权未抵押或已解除抵押关系。在满足这些条件后,经主管机关核准,将颁发《房地产预售许可证》。若核定为外销的商品住宅,则还需取得《商品住宅外销售许可证》。此外,房地产商在预售过程中,必须具备“五证”,即《建设用地规划许可证》、《建设工程规划许可证》、《建设工程开工证》、《国有土地使用证》和《商品房预售许可证》,同时,还需持有开发商的营业执照。
二、房地产登记的流程
房地产登记需遵循以下步骤:首先提出登记申请,然后由登记部门受理该申请,并对相关申请文件进行审查。接着进行权属调查,以确保房地产权利的真实性和合法性。在依法公告并确认房地产权利后,将核准的登记事项详细记载于房地产登记册。此后,还需计收相关规费并颁发房屋权利证书,最后将登记资料立卷归档,以备查阅。
三、土地使用年限的确定
根据国家规定,与省市规划国土局签订《土地使用权出让合同书》的用地,其土地使用年限有所不同。具体来说,居住用地的使用年限为七十年,工业用地为五十年,而教育、科技、文化、卫生、体育等公益性用地也是五十年。对于商业、旅游、娱乐等经营性用地,使用年限为四十年。此外,综合用地或其他特殊用地的情况则统一归为五十年。
四、房地产转让的定义
房地产转让,指的是拥有合法土地使用权及其上建筑物和附着物所有权的自然人、法人或其他组织,通过买卖、交换或赠与的方式,将房地产权益转移给其他人的法律行为。
五、何时需进行房地产转移登记
对于已经过初始登记的房地产,在以下情形出现时,相关当事人必须自合同或法律文件生效之日起30日内,向相关部门申请办理转移登记手续:包括房地产的买卖、继承、赠与、共有份额的分割、交换,以及人民法院因判决或裁定而导致的强制性转移。同时,若相关法律法规规定其他需进行强制性转移的情形,亦应遵循此流程。
六、房地产买卖合同必备条款详解
房地产买卖合同必须包含以下各项条款:首先,要明确当事人的详细信息,包括姓名或名称、地址等;其次,需注明房地产的权利证书编号,以及其具体的地理位置、面积和四周界限;此外,土地宗地号、土地使用权的性质和期限也是合同中不可或缺的内容。同时,房产的预定用途、买卖价款的支付方式和具体日期、房地产的交付期限,以及公用设施的权益分配和共有人的权利义务,都是合同中需要详细规定的部分。另外,违约责任、合同纠纷的解决途径、合同的生效条件和期限,以及双方认为需要明确的其他事项,也必须一一列明。
七、房地产转让的限制条件
根据相关法规,存在以下情形的房地产不得转让:一是若该房地产被市政府依据城市规划决定收回土地使用权,则不得转让;二是若房地产被司法机关或行政机关依法裁定查封或以其他方式限制其权利,则不得转让;三是共有房地产在未经其他共有人书面同意的情况下,不得转让;四是已设定抵押权的房地产,在未经抵押权人同意的情况下,不得转让;五是权属存在争议的房地产,在争议解决之前,不得转让;六是法律、法规或市政府明确规定禁止转让的其他情形。
八、房地产转让时的公用设施权益转移
在房地产转让过程中,转让人所拥有的同宗土地上的道路绿地、休憩地、空余地、电梯、楼梯、连廊、走廊、天台以及其他公用设施的权益,将随之一起转移。若房地产首次转让合同中未对停车场或广告权益做出特别约定,那么这些权益将随房地产的转让而同时转移。但若合同中有特别约定,则需经房地产登记机关进行初始登记,登记后的权利人将拥有这些权益。
九、房地产抵押的含义
房地产抵押,简而言之,就是债务人或第三人(统称抵押人)以其合法拥有的房地产为担保物,向债权人提供债务履行的担保。这一行为旨在确保债务能够得到及时清偿。房地产按揭,作为房地产抵押的一种常见形式,其操作流程通常包括债务人将所购物业的产权转到债权人名下,随后通过分期付款的方式向债权人返还物业产权。当所有款项付清后,债权人再将物业转回债务人名下,并解除原先的借贷关系。
十、申请房地产抵押登记所需文件
在申请房地产抵押登记时,需要提交一系列必要的文件。这些文件包括但不限于:抵押人的身份证明、房地产权属证明、抵押合同以及相关借款合同等。通过提交这些文件,登记机构能够核实抵押人的身份和抵押物的权属情况,确保登记的准确性和合法性。
1.
填写完整的《房地产抵押登记申请书》;
2.
3.
房地产权利证书,证明您对抵押物的合法所有权;
4.
5.
身份证明,包括抵押人的身份证、护照或其他有效证件;
6.
7.
主合同和抵押合同,这两份合同是抵押登记的基础法律文件。
8.
若您是以非法人企业或组织的名义申请房地产抵押,还需额外提交产权部门出具的同意抵押的批准文件。对于预购的房地产抵押,除需提交上述第1、2、3项规定的文件外,还需提供房地产买卖合同书。
一十一、预购房地产抵押登记的流程
在申请预购房地产抵押登记时,您需要准备并提交一系列文件,包括《房地产抵押登记申请书》、身份证明、主合同、抵押合同,以及房地产买卖合同书。提交完毕后,登记人员会在房地产买卖合同书上加盖抵押专业章,以此完成抵押登记。
一十一二、已抵押房地产的转让规定
根据《中华人民共和国担保法》的相关规定,已抵押的房地产在符合一定条件下是可以进行转让的。然而,为了确保转让的合法性和有效性,必须由抵押人、转让人和受让人三方共同签订一份公证书,该公证书应明确将原抵押权益转移给新的受让方。同时,值得注意的是,如果抵押人未事先通知抵押权人或未向受让人明确告知抵押情况的,那么这种转让行为将被视为无效。
一十二三、房地产抵押贷款的登记要求
若以房地产为抵押物向银行申请贷款,则必须前往房地产登记部门办理抵押登记手续。依据《中华人民共和国担保法》的相关规定,抵押合同在登记完成后方能生效,因此,未办理抵押登记的抵押合同将不具备法律效力。
一十三四、借款人如何偿还银行货款
对于贷款期限在1年以内(含1年)的借款,银行通常采用到期本息一次性清偿的还款方式。而对于贷款期限超过1年的借款,借款人需在借款期内每月等额偿还银行货款本金和利息。
借款人可选择两种还款方式:一是委托代扣,二是到银行分行联网储蓄所还款。若选择委托代扣,借款人在与货款银行签订《借款合同》的同时,还需签订《代扣还款委托书》,并指定扣款账户类型(如储蓄存折、储蓄卡或信用卡)及账号。确保每月扣款日前,该账户内存有不低于月均还款额的款项,即可实现足不出户的自行还款。
一十四五、借款人逾期还款的处理方式
若借款人未能按期还款或因存款不足导致自动扣款失败,需亲自前往贷款经办银行的会计柜台进行还款操作。在约定的还款期限内,若借款人未能按照合同规定的时间偿还贷款本息,贷款经办行将发出催交通知书,要求借款人立即补付所欠的贷款本息及逾期罚息。逾期罚息的计算以逾期金额为基数,按照人民银行公布的逾期贷款罚息率,自逾期之日起每日计收。
一十五六、建筑面积的定义
建筑面积,简而言之,是指建筑物外墙(柱)勒脚以上各层外围的水平投影面积之和。这涵盖了阳台、挑廊、地下室以及室外楼梯等部分。同时,它也要求这些建筑必须具备上盖,结构稳固,且层高达到或超过2.20米,以确保其永久性。
十七、计算全部建筑面积的规则(按国家规定共15条)
对于永久性结构的单层房屋,其建筑面积直接按照一层来计算;而多层房屋的建筑面积则是各层面积的总和。
夹层、插层、技术层以及楼梯、电梯间等,只要其高度超过2.20米,都将被计入建筑面积。
穿过房屋的通道,以及房屋内的门厅、大厅,都按照一层来计算面积。若门厅、大厅内的回廊部分高度超过2.20米,则其水平投影面积也将被计入。
楼梯间、电梯井(如观光梯)、垃圾道、管道井等,其面积将根据房屋的自然层数来计算。
房屋天面上的永久性建筑,如楼梯间、冰箱间、电梯机房等,以及斜面结构屋顶高度超过2.20米的部位,都将按照其外围水平投影面积来计算。
挑楼和全封闭的阳台,其建筑面积同样按照外围水平投影面积来计算。
对于有上盖的室外楼梯,其建筑面积将根据各层水平投影面积来计算;而无顶盖的室外楼梯,则只计算各层水平投影面积的一半。
与房屋相连的有柱走廊,以及两房屋间有上盖和柱的走廊,其建筑面积都将按照柱的外围水平投影面积来计算。
建筑间永久性的封闭架空通廊,也将按照其外围水平投影面积来计算建筑面积。
10、对于地下室和半地下室,以及其相应的出入口,只要它们的层高超过2.20米,其建筑面积就会按照其外围水平投影面积来计算,但需排除采光井、防潮层和保护墙的面积。
11、有柱或围护结构的门廊、门斗,其面积将依据其柱或围护结构的外围水平投影来计算。
此外,如果玻璃幕墙、金属板幕墙、石材幕墙或组合幕墙被用作房屋的外围结构,并且幕墙框架突出主体结构的距离已有明确的设计数据或测量数据,那么建筑面积将按照幕墙的外围水平投影面积来计算。但在建筑施工图报建时,若还未设计相关数据,则幕墙框架突出主体结构的距离一律按150毫米进行计算,并在竣工后计算竣工面积时仍采用此数据。
13、对于房永久性建筑中带有柱的车棚和货棚,其建筑面积将根据柱的外围水平投影面积来计算。
14、在坡地建筑中,若利用吊脚作为架空层且设有围护结构,那么其超出2.20米高度部分的外围水平面积将被计入建筑面积。
15、若房屋存在伸缩缝,且与室内相通,则该伸缩缝的面积将被计入建筑面积。
接下来,我们来看哪些部分的建筑面积只需计算一半:
18、无柱的外走廊和檐廊,其面积将按照顶盖水平投影面积的一半来计算。
19、独立柱的雨篷、单排柱的车棚、货棚和站台等,同样按照其顶盖水平投影面积的一半来计算面积。
20、未封闭的阳台,则按照其水平投影面积的一半进行计算。
21、对于建筑物外有顶盖但无柱的走廊和檐廊,以及建筑物间有顶盖的无骨架空通廊,它们的面积也将按照投影面积的一半来计算。
一十六九、套内建筑面积的定义
套内建筑面积,也就是房层按套(单元)来计算的建筑面积,指的是套(单元)门内的面积总和,它涵盖了套内的实际使用面积、墙体所占的面积以及阳台的面积。
一十七十、公用建筑面积的解释
公用建筑面积,是指那些被各产权主体共同占有或共同使用的建筑面积。这些面积通常位于各套(单元)之外,为客户们共同享用,且不可分割。它可进一步细分为应分摊的公用建筑面积和无法分摊的公用建筑面积。
一十八十一、房屋销售面积的构成
在房屋按套(单元)出售的情况下,房屋的销售面积是指该套(单元)的建筑面积,这一面积由两部分组成:一是该套(单元)的实际使用面积,二是该套(单元)应合理分摊的公用建筑面积。
二十二、各套(单元)应分摊的公用面积计算方法
在房屋按套(单元)出售的情况下,各套(单元)应分摊的公用建筑面积可以通过以下公式进行计算:该套(单元)内的使用面积乘以应分摊的公用面积,再除以所有套(单位)的使用面积之和。
一十九十三、建筑容积率
建筑容积率是指小区内所有建筑物的总面积与小区占地面积的比值,通常以百分比形式表示。其计算公式为:建筑容积率=(小区内总建筑之和的平方米数)÷(小区总占地面积的平方米数)×100%。这一指标反映了小区内建筑物的密集程度。
二十四、居住建筑密度
居住建筑密度是指小区内所有居住建筑基地面积与小区居住总用地的比值,同样以百分比形式呈现。其计算方式为:居住建筑密度=(小区内所有居住建筑基地面积之和的平方米数)÷(小区居住总用地面积的平方米数)×100%。这一指标衡量了小区内居住建筑的分布密度。
二十一十五、住宅间距
住宅间距是指两栋住宅外墙皮之间的距离与前方住宅高度之间的比值,通常以与南面住宅的距离为准。这一指标对于确保住宅采光、通风和隐私具有重要意义。
二十二十六、层高
层高,即主要卧室的下一层结构顶面与上一层结构顶面之间的垂直距离,通常以米为单位进行测量。这一指标不仅影响住宅的舒适度,还对建筑的结构安全和空间利用效率有着重要影响。
二十三十七、套内使用面积
套内使用面积,即套内住户专享的空间面积,涵盖了卧室、厨房、卫生间、过厅、起居室以及内走道、阳台和壁柜等净面积的汇总。
二十四十八、套外使用面积
套外使用面积,即住宅公共区域的面积,涵盖了楼梯间、电梯间、公共走道以及公共用房等空间。
二十五十九、房地产开发
房地产开发是指在获得合法土地使用权的基础上,依据土地的使用性质和规划要求,进行包括基础设施和房屋建筑在内的综合性开发活动。这一过程涵盖了从项目选址到最终交付使用的所有环节,涉及征地拆迁、规划设计、水电气等市政设施建设、道路交通布局、绿化景观打造以及房屋建筑等多个专业领域。
二十六十、房地产开发的特点
房地产开发不仅周期长、投入大,还伴随着较高的投资风险。其收益则往往与市场的波动紧密相关,增值速度较快。然而,这也意味着投资者需要面对多种潜在风险,包括市场风险(如房价波动)、购买力风险(如通货膨胀导致购买力下降)、拖欠风险(如购房者财务问题导致的收款困难)以及自然灾害和意外事故带来的不可抗力风险。
二十七十一、房屋建筑与楼宇开发
在房地产开发过程中,房屋建筑与楼宇开发是不可或缺的一环。这涵盖了土地的准备工作,如“三通一平”或“七通一平”。其中,“三通一平”意味着供热、供电、供水等基础设施要到位,同时场地需要平整,为建筑工作做好基础准备。而“七通一平”则更为全面,它不仅包括道路、供热、供电、供水等基础设施,还涉及供煤气(天然气)、给排水、排污等更为复杂的系统,同样要求场地平整,为楼宇的顺利建设奠定坚实基础。
二十八十二、绿地率
绿地率,一个衡量居住区绿化水平的指标,其计算公式为:居住区绿地面积除以居住区用地总面积,再乘以100%。这一比率反映了居住区内的绿化程度,对于提升居住环境质量、促进生态平衡具有重要意义。
二十九十三、绿化率
绿化率,通过植被垂直投影面积与居住区总面积的比值来计算,乘以100%后得到百分比。这一指标同样用于衡量居住区的绿化程度,对优化居住环境、维护生态平衡具有深远影响。
三十四、开间
在住宅设计中,开间是指房屋内一面墙皮到另一面墙皮之间的实际距离,也就是自然间的宽度。这个指标不仅影响住宅的布局,还对结构的整体性、稳定性和抗震性有着至关重要的作用。通常,住宅的开间尺寸控制在3.0米至3.9米之间,而砖混结构的住宅则一般不超过3.3米。这样的规定有助于确保楼板的空间跨度在合理范围内,进而增强住宅的结构性能。
另一方面,大开间住宅,其开间尺寸超过5米,进深达到7米以上,能够为住户提供宽敞的居住空间,面积可达40至50平方米甚至更大。与相同建筑面积的小开间住宅相比,大开间住宅的承重墙减少了一半,而使用面积则增加了2%,这使得住户能够更加灵活地进行隔断和装修改造。
三十一十五、进深
进深,在建筑学中,被定义为从一间独立房屋或一幢居住建筑的前墙皮到后墙壁之间的实际长度。虽然增加进深可以节约土地资源,但为了确保住宅具备良好的自然采光和通风条件,其设计时必须遵循一定的规范,进深不宜过大。在我国,大多数城镇住宅的房间进深通常被控制在大约5米以内,以避免随意扩大。
三十六、地下室
地下室,指的是其房间地面低于室外地平面的高度超过该房间净高的1/2的部分。
三十二十七、半地下室
半地下室,顾名思义,是指其房间地面低于室外地平面的高度,介于该房间净高的1/3至1/2之间。
三十八、玄关
玄关,作为进入居室的第一道门槛,不仅是一个缓冲空间,更体现了居室的私密性。它巧妙地阻隔了外界的视线,使得室内的景象得以隐藏。通常,玄关与客厅相连,但两者的功能各异,因此需要运用装饰手法来巧妙划分。无论是回家还是外出,玄关都提供了便捷的服务,如放置雨伞、挂起雨衣、更换鞋子以及放置随身物品。同时,它还是接收邮件和简单会客的理想场所。
三十九、隔断
隔断,作为一种不到顶的半截立面,专门用于分隔室内空间。其设计灵活,可以根据需求来划分不同的功能区域。
四十、过道
过道,作为住宅套内使用的水平交通空间,连接着各个房间,方便人们通行。其设计应充分考虑使用的便捷性和空间的利用率。
三十三十一、已购公房
已购公房,也被称为售后公房,指的是个人购买的原公有住房。
三十四十二、单位产权房
单位产权房,即系统产权房或系统房,是指其产权归属于单位所有的房屋。
四十三、私房
私房,亦被称为私有住宅或私产住宅,是指由个人或家庭自行购买或建造的住宅。在乡村地区,农民的住宅多以自建私有住宅为主。当公有住房通过住宅消费市场售予个人和家庭后,这些住房便转变为私有住宅。
四十四、二手房
二手房,即已经经过一次交易的房产,通常指的是已经有人居住过的旧房。在房地产市场中,新建的商品房首次交易时被称为“一手房”,而再次或多次交易后,这些房产就被统称为“二手房”。通过二手房市场,那些没有房产的人有机会购买到别人多余的住房,而已经拥有小房子并希望改善居住条件的人,则可以通过出售旧房并购买新房来实现升级。同时,对于住房资源充裕的家庭来说,他们也可以选择出售多余住房来获取收益。
四十五、期房
期房,指的是从开发商获得商品房预售许可证开始,到取得房地产权证大产证为止,这一阶段内的商品房。在此期间,消费者若选择购买,需签订预售合同。这种购房方式在港澳地区被称为“买楼花”,如今已成为房地产开发商普遍采用的销售策略。购买期房,即意味着购房者正投资于尚在建设中的房地产项目。而在成都市,期房通常被定义为那些尚未完工、无法入住的房屋。
四十七、现房
现房,即指开发商已经获得房地产权证(大产证)的商品房。当消费者在此阶段购买时,需签订出售合同。在成都市,现房通常被定义为已竣工并可入住的房屋。
四十八、外销房
外销商品房,是指由房地产开发企业精心打造,并获得外销商品房预(销)售许可证的优质房源。这类房屋可自由出售给国内外(包括港、澳、台地区)的企业、组织及个人,为购房者提供了多样化的选择。
四十九、内销房
内销商品房,指由房地产开发企业精心打造并获得销售许可证的房源,这些房屋专为当地企事业单位和居民打造,提供符合特定需求的住宅选择。
五十、准现房
准现房,顾名思义,是指房屋主体结构已基本完工,小区轮廓清晰可见,房型、楼间距等关键因素一目了然。目前,这些房屋正处于内外墙装修及配套设施施工的阶段,为购房者提供了直观且实用的购房体验。
三十五十一、尾房
尾房,又被称为扫尾房,是房地产业进入散户零售时代的特有现象,属于空置房的一种。在商品住宅销售量达到80%之后,房地产项目通常会进入清盘销售阶段,此时所售的房产便称为尾房。这些尾房往往因各种原因而竞争力不足,例如朝向不佳、采光不足,或是楼层位置不佳、处于两端等。特别是一层的房屋,通常不带小花园且遮挡问题较为严重。
三十六十二、烂尾房
烂尾房,顾名思义,是指那些因开发商资金短缺、盲目开发或错误判断市场供需形势而导致的无法继续建设的楼盘。由于开发总量超出市场需求,这些楼盘往往陷入大面积空置的困境,不仅无法收回前期投资,更无法进行后续的开发建设,最终导致整个项目停滞不前。这类问题通常不会在房产销售初期显现,而是随着项目的逐步推进而逐渐暴露。
三十七十三、配套设施
配套设施,简而言之,就是与住宅规模或人口规模相匹配的公共服务设施、道路以及公共绿地的统称。这些设施的建设,旨在满足居民的基本生活需求,提升居住环境的舒适度。
五十四、均价
均价,即每平方米的平均销售价格,是通过将所有销售价格的单位建筑面积相加,再除以总面积来计算的。请注意,均价并不等同于实际销售价。
五十五、基价
基价,也被称为基础价,是经过精心核算所确定的每平方米商品房的基本价格。在商品房销售过程中,销售价通常以基价为基准,再根据楼层和朝向的差异进行相应的增减,从而得出最终的销售价格。
五十六、起价
起价,亦被称为起步价,代表着某物业各楼层销售价格中的最低水平。在多层住宅中,不带花园的房屋通常以一楼或顶楼的价格作为起价;而对于带花园的住宅,则常以二楼或五楼的销售价作为起点。在高层建筑中,最低层的销售价格即被设定为起步价。通过广告中的“×××元/平方米起售”等宣传语,开发商能够以更具吸引力的起价来吸引消费者的目光。
五十七、定金
定金,作为一种法律上的担保方式,旨在确保债务人履行其义务,从而保障债权人的权益。它是指双方当事人预先约定的,由一方向另一方交付的一定数额的货币。根据我国相关法律规定,定金必须以书面形式明确约定,并需在定金合同中明确交付期限。此类合同通常在房地产商获得销售许可证后,自实际交付定金之日起开始生效。值得注意的是,定金的数额并非随意设定,而应由双方当事人共同商定,且不得超过合同标的额的20%。在购房过程中,如果购房者因故改变主意而决定放弃购买,开发商有权根据违约条款不退还定金;而若开发商将已售房屋转售他人,则必须向购房者双倍返还定金。
五十八、订金
订金,有时也被称作诚意金,代表着当事人对履约的诚意。在购房过程中,它通常出现在购房者与发展商就房屋买卖达成初步意向之后,作为进一步协商签订正式合同的桥梁。订金约定了一个期限,在此期限内,买方享有优先购买权,而卖方则不得将房屋转售他人。若双方最终未能签署正式合同,订金将全额退还,以体现双方的诚意。在房地产销售中,订金往往是在正式开盘前,对有意向购买的客户进行收取的一种金额。若客户在房地产商未获得销售许可证前提出退订,房产商必须无条件退还订金。
五十九、违约金
违约金,作为违约方依法和依约应支付给对方的一定货币量,既是对违约方的经济制裁,也兼具惩罚性和补偿性,但主要侧重于惩罚。只要当事人出现违约行为且在主观上存在过错,不论是否给对方造成实际损失,都必须支付相应违约金。
六十、物业管理
物业管理,涵盖了房地产的开发、经营、商品房的销售、租赁以及售后服务等多个环节。
六十一、物业的竣工验收
物业的竣工验收,从物理形态上讲,标志着建筑商已经完成了其最终的产品,而开发商也已圆满完成了物业的开发任务。这一环节,实际上是一个法律上的必要手续,必须由相关方面共同参与并确认。
六十二、入住流程
业主在领取钥匙后,即可接房入住。
六十三、住宅类型
多层住宅是指四层至六层的住宅。
中高层住宅则是指七层至九层的住宅。
高层住宅则是十层及十层以上的住宅。
六十五、跃层住宅
跃层住宅是指套内空间跨越两楼层及以上的住宅。其特点是,卧室、起居室、客厅、卫生间、厨房等辅助用房都可以进行分层布置,且上下层之间的交通不经过公共楼梯,而是采用户内独用的小楼梯进行联接。这类住宅的采光面大,通风良好,居住面积和辅助面积宽敞,布局紧凑且功能明确,相互间的干扰较小。其设计理念借鉴了欧美小二楼独院住宅的精髓。
六十六、复式住宅
复式住宅,这种经济型住宅的设计理念源于跃层式住宅,并在此基础上进行了创新。每户均拥有上下两层,通过在层高较高的楼层中增设一个1.2米的夹层,巧妙地利用了空间。虽然其两层合计的层高(3.3米)相较于跃层式住宅(5.6米)有所降低,但这样的设计不仅节省了资源,还提供了更为灵活的空间布局。通常,复式住宅的下层用于起居,而上层则专为休息和贮藏设计。通过精心的户内设计,如多处入墙式壁柜和楼梯,以及巧妙的地板布局,使得这种住宅既实用又具特色。
复式住宅非常适合三代、四代同堂的大家庭居住,其设计理念完美地融合了隔代人的相对独立与相互照应的需求。尽管复式住宅在设计施工和使用上存在一些不足,如面宽大、进深小、部分户型朝向不佳、自然通风采光较差,以及层高过低导致的隔音、防火功能不足,还有房间私密性和安全性不够理想等问题,但其精巧实用的特点仍然使得复式住宅成为一种性价比极高的住宅类型。
六十七、错层房型
错层式房型,亦被称为"多层面梯级跃升式住宅",其特色在于拥有两个或以上的层面,但并非简单的上下两层设计。在每套住宅的平面布局中,不同的功能区域被巧妙地安排在多个不同标高的平面上,从而创造出既富于变化又极具韵律感的视觉效果。这种独特的设计不仅提升了住宅的室内环境品质,还对房型设计师提出了更高的挑战。由于错层房型在提升高度和抗震性方面都有一定的要求,因此设计师在创作时必须综合考虑通风、采光等多重因素。此外,错层房型的设计灵感源于小别墅和公寓的空间变化,其创新之处在于推动了住房建设者对房型设计的更多思考,同时也激发了人们对房型与市场、结构安全等问题的深入探讨。
1.错层的设计应确保上下层之间的高度差异适中,通常以30至60厘米为宜。鉴于当前住宅的标准层高为2.8米,净高约2.62米,若错层高差超过60厘米,设计师需仔细考虑上部楼板结构梁或板底的高度,以避免给人带来压抑感或碰撞风险。
2.当错层的高差较大时,可以采用其他错层形式,例如“L”型错层,以更好地适应空间需求。
三十八十八、框架结构住宅
框架结构住宅是以钢筋混凝土为承重主体,辅以轻质板材进行隔墙分户装配而成的建筑形式。这种结构使得住宅在满足承重需求的同时,也具有良好的灵活性和可改造性。
六十九、砖混住宅
砖混结构住宅中的“砖”,主要指的是统一尺寸的建筑材料,尽管也存在其他尺寸的异型粘土砖,例如空心砖等。“混”则代表了由钢筋、水泥、砂石、水等按一定比例混合制成的钢筋混凝土配件,这些配件包括楼板、过梁、楼梯、阳台和挑檐,它们与砖砌的承重墙相结合,共同构成了砖混结构式住宅。值得注意的是,由于抗震的需求,砖混住宅通常被限制在5~6层以下。
七十、钢混结构住宅
钢混结构住宅的结构主体为钢筋混凝土,即钢筋、水泥、粗细骨料(如碎石)、水等材料的混合体。这种结构的住宅不仅抗震性能出色,整体性强,而且抗腐蚀能力强,经久耐用。此外,其房间的开间和进深相对较大,空间分割也更为自由。目前,这种结构被广泛应用于多高层住宅中。然而,其工艺相对复杂,建筑造价也相对较高