2026苏州咏月台(售楼处电话)官方网站-中铁·咏月台楼盘电话/地址-中铁·咏月台_户型图_价格_容积率_楼盘简介_小区环境_户型配套
扫描到手机,新闻随时看
扫一扫,用手机看文章
更加方便分享给朋友
苏州中铁·咏月台售楼处电话:400-8123-664【预约看房热线】中铁·咏月台售楼处电话:4008123664【售楼处电话/地址】中铁·咏月台售楼处电话:400-812-3664【开发商认证】
重磅!备受苏州地产圈和购房者关注的
苏州首个首层全架空社区
案名正式面世——中铁·咏月台
主推约162/164㎡四代洋房及约176-192㎡叠墅产品
苏州中铁·咏月台
售楼处电话:400-8123-664(预约看房热线)
苏州中铁·咏月台官方售楼处电话:拨打4008123664即可咨询楼盘详情_房价、户型、周边配套及交通、地址
Suzhou China Railway · Yongyuetai
Sales Office Hotline: 400-8123-664 (Property Viewing Appointment Hotline)
Suzhou China Railway · Yongyuetai Official Sales Office Hotline: Dial 4008123664 for inquiries about property details, pricing, unit types, surrounding facilities, transportation, and address.
刚刚!苏地2024-WG-Z30号地块的案名正式公布——中铁咏月台.
中国中铁年度作品+苏州史上首个“全架空”+叠墅、洋房纯低密
吴中城南低密叠墅+四代宅洋房
①容积率1.5,打造4F叠墅+四代宅洋房纯低密社区,仅186套.
根据已公示的规划方案,中铁咏月台容积率仅约1.5,全盘建筑限高40米,仅打造3栋4层叠墅和5栋10-11层洋房,共计186户,是个小而精的低密改善社区.
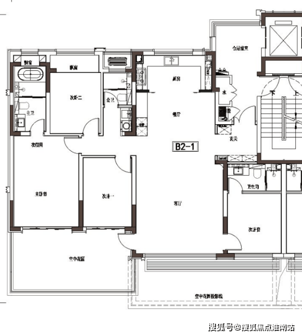
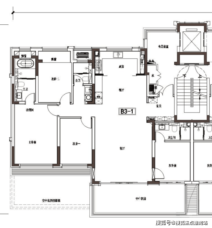
其中叠墅产品全盘仅36套,稀缺性突出.下叠面积约为186㎡和192㎡,上叠面积约为176㎡.

苏州中铁·咏月台售楼处电话:400-8123-664【预约看房热线】中铁·咏月台售楼处电话:4008123664【售楼处电话/地址】中铁·咏月台售楼处电话:400-812-3664【开发商认证】全盘仅36套的叠墅产品提供了极高的附加值.下叠建面约186-192㎡,配备南北双庭院、10米南向面宽及地下室赠送,客厅还带挑空;上叠建面约176㎡,拥有双露台+星空阁楼.
洋房产品包含两种类型.一类为四代住宅洋房,面积约162-164㎡;另一类为普通洋房,面积约132㎡.

苏州中铁·咏月台售楼处电话:400-8123-664【预约看房热线】中铁·咏月台售楼处电话:4008123664【售楼处电话/地址】中铁·咏月台售楼处电话:400-812-3664【开发商认证】项目中的四代洋房户型,设计了“错层双花园”系统:偶数层配备南向私密花园直连主卧,奇数层则设置社交花园衔接客厅.户型拥有约16.65米的南向超大面宽,采用LDKB一体化横厅设计,并配置双套房,得房率非常高.


苏州中铁·咏月台售楼处电话:400-8123-664【预约看房热线】中铁·咏月台售楼处电话:4008123664【售楼处电话/地址】中铁·咏月台售楼处电话:400-812-3664【开发商认证】
另外还有宽境洋房建面约132㎡,四开间朝南,LDKG一体化设计,以较为友好的面积段+低总价+高品质,填补吴中城南改善的空白.
②苏州首个!真正的新规红利盘——首层全架空,车停地面、家在云端...
除了低密产品之外,中铁咏月台的最大亮点在于,这是苏州首批落实《改善型住宅技术要点》新规的盘,它创新性打造了苏州第一个“首层架空车库”.

大白话来说就是:它将传统的地下停车场抬升至地面一层,实现了多重突破性优势——
人车完全分流,实现"无雨归家",业主可从架空车库通过归家大堂垂直电梯直接入户;
车库平进平出,提升车行体验感和安全系数,并且车库可以拥有自然采光;
释放约2000㎡下沉庭院空间,用于配置物业服务、托育等功能;
减少地下开挖,降低了对城市环境的影响;
二层住宅相当于普通小区的三层高度,提升了低楼层住户的视野.
苏州中铁·咏月台售楼处电话:400-8123-664【预约看房热线】中铁·咏月台售楼处电话:4008123664【售楼处电话/地址】中铁·咏月台售楼处电话:400-812-3664【开发商认证】
③央企+国企双强联手,拿地已经1年,楼面地价1.45万/㎡
2024年11月28日,央企中国中铁与苏州本地国企天鸿伟业联手,以底4.26亿元成功竞得位于吴中经开区城南街道的该宗地块,成交楼面价约为14500元/㎡.比前期城南的项目楼面价相比,这块地拿地成本直降近2500元/㎡,优势非常明显.
这块地位于城南较好的位置,紧靠地铁7号线枫津路站,一线临河.
商业方面,南面就有吴风生活广场,北面靠近龙湖东吴天街和海星生活广场,西面还有万达广场,北面有丽丰购物中心.周边有枫津实验小学、碧波实验小学(澄湖路校区)、碧波中学(澄湖路校区)、苏州外国语学校(吴中校区)和苏苑中学新校区等.
有消息称,该项目预计年底入市开盘,价格相对于吴中其它产品,优势比较明显
苏州中铁·咏月台
售楼处电话:400-8123-664(预约看房热线)
苏州中铁·咏月台官方售楼处电话:拨打4008123664即可咨询楼盘详情_房价、户型、周边配套及交通、地址
Suzhou China Railway · Yongyuetai
Sales Office Hotline: 400-8123-664 (Property Viewing Appointment Hotline)
Suzhou China Railway · Yongyuetai Official Sales Office Hotline: Dial 4008123664 for inquiries about property details, pricing, unit types, surrounding facilities, transportation, and address.
房地产的基本常识包括哪些
1.房地产
房地产又称不动产,是房产和地产的总称,具体地是指土地及其附着物。房产总是以地产联结为一体的,具有整体性和不可分割性
2.房地产产权
是指产权人对房屋的所有权和对该房屋所占用土地使用权。具体内容是产权人对房地产的占有、使用、收益和依法处分的权利。
3.土地使用权
是指土地使用权拥有者对土地使用的权限,包括开发权、收益权、处置权。政府以拍卖、招标、协议的方式,将国有土地使用权在一定年限内出让给土地使用者。土地使用权期满后,如该土地用途符合当时城市规划要求的,土地使用者可申请续用,经批准并补清地价后可以继续使用。
4.房地产市场
主要包括房地产买卖、租赁市场。含一级市场、二级市场和三级市场:
一级市场是指国家土地管理部门(市国土管理局)按土地供应计划,采用协议、招标、拍卖的方式,以土地使用合同的形式,将土地使用权以一定的年限、规定的用途及一定的价格出让给房地产发展商或其他用地者的市场。
二级市场是指房地产发展商根据土地使用合同的要求将建好的房屋连同相应的土地使用权转让给单位和个人的市场。
三级市场是指单位、个人之间的房地产权转让、抵押、租赁的市场,它是在二级市场基础上的第二次或多次转让房地产交易活动的市场。
5.土地类型
土地按其使用性质划分为:居住、商业、工业、仓储、综合用地、公共设施及自由集资、微利房用地。
6.三通一平
是指在发展基础上的水通、电通、路通及场地平整。
7.七通一平
是指上、下水通,排污通、排水通、路通、通讯通、煤气通、电通及场地平整。
8.土地管理局
代表国家行使土地所有者的权利,以及对房地产市场、房地产行业管理的政府部门。
9.公证处
是国家的证明机关,是提供法律公证的机构。
10.国土局产权登记处
是专门办理房地产初始登记、转移登记、抵押登记、变更、继承、赠与等手续的部门。
11.房地产证
是房屋土地所有权属二合为一的凭证,是房地产权属的法律凭证。
12.商品房
是指发展商以市场地价取得土地使用权进行开发建设并经国土局批准在市场上流通的房地产,它是可领独立房产证并可转让、出租、继承、抵押、赠与及交换的房地产。
13.复式房
上、下两层二合为一,与标准房的结构方面有区别。
房地产的基本常识包括哪些
14.面积概念
总建筑面积:是指各层建筑面积的总和。底层建设按外墙墙角以上的外围水平面积计算,二层及二层以上按外墙外围水平面积计算。
建筑面积:是指住宅的建筑面积是指建筑物外墙外围所围成空间的水平面积。高层住宅的建筑面积,则是各层建筑面积之和。建筑面积包含了房屋居住的可用面积、墙体柱体占地面积、楼梯走道面积、其他公摊面积等。
使用面积:是指住宅的使用面积,指住宅各层平面中直接供住户生活使用的净面积之和。计算使用面积时有一些特殊规定:跃层式住宅中的户内楼梯按自然层数的面积总和计入使用面积;内墙面装修厚度也计入使用面积。
公用面积:商业的公用面积是指住宅内为住户出入方便、正常交往、保障生活所设置的公共走廊、楼梯、电梯间、水箱间等所占面积的总和。开发商在出售商品房时计算的建筑面积存在公共面积的分摊问题。
实用面积:是指它是“建筑面积”扣除公共分摊面积后的余额。
套内面积:是指俗称“地砖面积”。它是在实用面积的基础上扣除了柱体、墙体等占用空间的建筑物后的空间的概念。
房屋的基底面积:房屋的基底面积是指建筑物底层勒脚以上外围水平投影面积。
15.建筑密度
在用地范围内所有建筑物的基底面积总和与地块面积之比。
16.容积率
规定的地块上全部的建筑部面积与地块面积之比。
17.红线图
又叫“宗地图”,是按一定比例尺制作的用以标示一宗地的用地位置、界线和面积的地形平面图。它由政府土地管理部门颁发给土地使用权受让者,受让者只能在红线范围内施工建房。
宗地图是土地使用合同书附图及房地产登记卡附图。它反映一宗地的基本情况。包括:宗地权属界线、界址点位置、宗地内建筑物位置与性质,与相邻宗地的关系等。证书附图即房地产证后面的附图,是房地产证的重要组成部分,主要反映权利人拥有的房地产情况及房地产所在宗地情况。
18.预售许可证
按规定房屋未建好之前出售均要办理此证,发展商将有关资料送到国土局申请,批准后方可预售楼花。
19.外销许可证
凡对境外预售的房屋都要办理此证方可出售。
20.
是由政府有关部门统一编制,用以明确买卖双方权利和义务的协议,所有的商品房销售都必须签订此合同。
21.房地产抵押合同
是明确房地产抵押贷款中双方当事人权利和义务关系,由银行、业主和发展商三方签订。
22.银行按揭
是指购房者购买楼房时与银行达成抵押贷款的一种经济行为,业主先付一部分楼款,余款由银行代购房者支付,购房者的楼房所有权将抵押在银行,购房者将分期偿还银行的贷款和利息。
23.预售楼花
即楼宇预售。房地产经营者获取了建设土地,按政府批准的建筑施工图纸施工,且投入开发的资金已达到投资总额的三分之二(用地价款除外),便可向长春市房地产产权登记处申请和办理楼宇预售登记,经批准后方可预售。
24.样板房与示范单位
是指与实际房屋的结构相同,但装修标准按发展商的售楼书而定的房间。示范单位与样板房的装修有区别,目的是为提供给客户做装修参考。
25.物业管理
是房地产管理市场化的一种综合性经营方式,分为维护性管理和经营性管理两类。维护性物业管理的职能,主要为高层与多层住宅、综合写字楼、标准工业厂房等楼宇及机电设备保养维修、治安、消防、环境卫生及其他服务为业主提供良好的工作和居住环境。经营性物业管理除具有维护性管理职能外,还通过对物业出租经营达到回收投资和获取利润的目的。
26.房地产评估
就是房地产估价师根据房地产的有关信息、数据,选择合适的估价方法,按照一定的估价程序,最后确定物业的价格和价值的过程。评估的主要方法有:1、市场比较法;2、收益还原法;3、剩余法;4、成本法。
27.银行本票
是付款人将款项交存银行,由银行签发给他凭此可以办理转帐结算或支取现金的票据。有效期为一个月。
28.银行汇票
是汇款人将款项交存当地银行,由银行签发给汇款人持往异地办理转帐结算或支取现金的票据。有效期为一个月。
29.银行支票
是银行的存款人签发给受款人办理转帐或委托开户银行将款项支付给受款人的票据。有效期为十天。
30.确权
确权是依照法律、政策的规定,经过房地产申报、权属调查、地籍勘丈、审核批准、登记注册、发放证书等登记规定程序,确认某一房地产的所有权、使用权的隶属关系和他项权利。
31.权属调查包括内容
房地产权属调查包括:审查土地来源是否合法、占地是否超出规定的范围;审查建筑物有没有加层、超面积、改结构、改用途等情况;确认房地产的权利人、权利性质、权属来源、取得时间、使用年限、权利状况、变化情况和用途、价值、等级、座落等
声明:本文由入驻焦点开放平台的作者撰写,除焦点官方账号外,观点仅代表作者本人,不代表焦点立场。


