象屿·天宸雅颂首页网站|象屿·天宸雅颂售楼处欢迎您|2025楼盘评测-象屿·天宸雅颂售楼中心详情|象屿·天宸雅颂户型配套
扫描到手机,新闻随时看
扫一扫,用手机看文章
更加方便分享给朋友
象屿·天宸雅颂售楼处电话:400-812-3664
上海闵行象屿·天宸雅颂售楼处电话☎:400-8123-664(预约看房热线)
8号线沈杜公路站直线距离仅约180 米
6 站前滩,15 站直达人民广场
浦江郊野公园零距离
「象屿·天宸雅颂」
建面约89 -139㎡的高层
均价6.05万/㎡
约2500㎡会所+约 3000㎡架空层
上海闵行【象屿·天宸雅颂】
售楼处电话☎:400-8123-664【售楼处预约热线】(一对一热情服务)
看房请务必提前致电销售确认时间,只有预约客户才能享受开发商提供的内部优惠以及专属的老客户推荐奖励!我们提供专业的一对一热情服务,助您以专业视角挑选理想的房产。
象屿·天宸雅颂落子闵行浦江新中心,坐拥**8号线沈杜公路地铁口**,无缝接驳TOD模式,6站直达前滩国际商务区,畅享“一江一河”城市战略红利。项目地处闵行重点打造的城市更新样板区,聚合交通、商业、生态资源,未来将崛起为上海南部的璀璨新地标!
象屿·天宸雅颂售楼处电话:400-812-3664
上海闵行象屿·天宸雅颂售楼处电话☎:400-8123-664(预约看房热线)
🏙️**产品IP颠覆想象,定义高端生活美学**
-**铝板弧形立面**:以现代美学勾勒建筑轮廓,打造城市封面级颜值担当。
-**全景双舱奢宅**:270°景观视野,融合智能家居与奢装标准,重塑空间体验新高度。
-**莫奈花园会所**:下沉式庭院、浮岛美学园林,将艺术融入生活日常。
-**“可成长”户型**:首创灵活空间设计,满足家庭全生命周期需求,89-139㎡精装平层、叠墅、宋风联排多元选择,适配不同生活理想。
象屿·天宸雅颂售楼处电话:400-812-3664
上海闵行象屿·天宸雅颂售楼处电话☎:400-8123-664(预约看房热线)
⭐**TOD+PARK双引擎,赋能品质生活**
项目以TOD模式为核心,地铁上盖的便捷性与社区内风雨连廊、架空层泛会所形成立体生活网络,实现“出则繁华,入则静谧”。周边规划大型商业综合体、协和双语学校及医疗资源,同步配建地下会所、泳池、健身房,一站式满足教育、健康、休闲需求。
象屿·天宸雅颂售楼处电话☎400-8123-664
象屿天宸雅颂营销中心电话400-8123-664
象屿天宸雅颂售楼处位置400-8123-664
🌿**生态与人文共生,致敬风雅生活**
象屿·天宸雅颂将宋式美学与现代设计深度融合,以“六维雅境”体系重构社区场景。园林景观汲取东方意境,社区内规划下沉庭院、风雨连廊,营造步移景异的沉浸式体验,让传统人文精神在现代都市中焕发新生。
🏠**收官级户型,抢占稀缺价值**
主力户型涵盖**89㎡灵动三房、107㎡阔景四房、128-139㎡奢适平层**,以及低密叠墅、宋风联排,以超高得房率与超强收纳设计,诠释“每一平米皆价值”。
象屿·天宸雅颂售楼处电话:400-812-3664
上海闵行象屿·天宸雅颂售楼处电话☎:400-8123-664(预约看房热线)
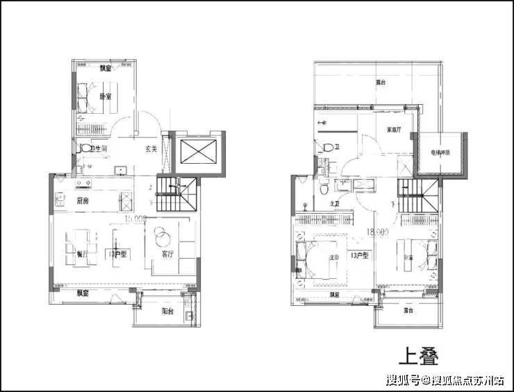
户型图如下:(过程稿仅供参考,最终以实际为准)
「约89㎡3房2厅1卫」
「约107㎡3房2厅2卫」
「约107㎡3房2厅2卫」
「约128㎡3房2厅2卫」
象屿·天宸雅颂售楼处电话:400-812-3664
上海闵行象屿·天宸雅颂售楼处电话☎:400-8123-664(预约看房热线)
「约140㎡4房2厅2卫」
叠墅户型图如下:(过程稿,以开发商发布为准)
项目配套:
交通方面,项目距离8号线沈杜公路站步行约350-600米左右,可快速直达前滩、陆家嘴等核心区域,也算是项目一大卖点;
通过浦星公路可直接上南北高架,自驾出行也十分便捷!
象屿·天宸雅颂售楼处电话:400-812-3664
上海闵行象屿·天宸雅颂售楼处电话☎:400-8123-664(预约看房热线)
商业方面,项目高层东侧规划约15万方的商业,另外距离项目约3.3公里有浦江城市生活广场、绿地乐和城,约3.9公里有万达广场,约4.4公里有浦江欢乐颂等商业!
教育方面,项目周边规划有一幅幼儿园用地,现有教育资源有浦江镇第二小学、第二中学;
另外在项目北侧规划有一所民办学校,该校舍建成后,将迁入上海市民办协和尚音学校(九年一贯制)、上海闵行协和海富幼儿园,由协和教育中心承办!
医疗方面,距离项目约4公里有仁济医院南院以及复旦大学附属眼耳鼻喉科医院!
生态方面,项目周边被浦江郊野公园环绕,低密宜居!
免责声明:本文所有内容包括但不限于图片、文字等仅供参考,所有信息均以政府部门最终审批及买卖双方正式签署的法律文件为准。文中所有户型面积为建筑面积(约)。文中规划图来源于网络。
上海闵行【象屿·天宸雅颂】
售楼处电话☎:400-8123-664【售楼处预约热线】(一对一热情服务)
看房请务必提前致电销售确认时间,只有预约客户才能享受开发商提供的内部优惠以及专属的老客户推荐奖励!我们提供专业的一对一热情服务,助您以专业视角挑选理想的房产。
象屿·天宸雅颂售楼处电话:4008123664【开发商售楼中心热线】象屿·天宸雅颂营销中心热线400-812-3664象屿·天宸雅颂售楼处地址400-8123-664,楼盘项目全面介绍,本电话为开发商提供线 上预约售楼电话,楼盘项目全面介绍(包含楼盘简介,均价,房价,现房,期房,别墅,叠墅,大平层,价格,楼盘地址,户型图,交通规划,备案价,备案名,项目配套,样板间,开盘时间,认筹时间,楼盘详情,售楼处电话,最新消息,最新详情,周边配套,一房一价,最新进展等详情咨询)楼盘详情丨价格丨更多优惠丨机不可失丨欢迎致电丨诚邀品鉴!售楼处位置丨特价房丨工抵房丨剩余房源丨户型图丨最新消息丨免责声明:将文章内容综合来源于网络、只作分享,版权归原作者所有!!如有侵权,请联系我们,我们第一时间处理如有问题欢迎来电咨询,专业一对一热情服务,让您用专业眼光去买房。如果您想了解更多楼盘详情,欢迎提前预约拨打象屿·天宸雅颂售楼处电话☎400_812_3664✔✔✔
房屋贷款怎么贷?
二、贷款类型概述
(一)公积金贷款
00001. 定义与特点
· 公积金贷款是指缴存住房公积金的职工享受的贷款。这种贷款的优势在于利率相对较低。例如,在一些城市,公积金贷款利率可能比商业贷款利率低1 - 2个百分点。这对于长期还款的购房者来说,能够节省可观的利息支出。
· 不过,公积金贷款也有其局限性。其贷款额度往往受到多种因素的限制,如缴存公积金的年限、缴存金额、当地政策等。在一些地方,公积金贷款额度可能是缴存公积金余额的一定倍数,并且上限也有明确规定。
适用人群
· 适合有稳定公积金缴存记录的人士。比如,在机关事业单位、大型国有企业等稳定工作单位工作多年,且每月正常缴存公积金的员工。如果他们的购房资金存在一定缺口,公积金贷款是一个很好的选择。
(二)商业贷款
00001. 定义与特点
· 商业贷款是由商业银行等金融机构向购房者提供的贷款。它的优势在于贷款额度相对较高,能够满足不同购房需求的购房者。一般来说,银行会根据购房者的收入、资产、信用等情况来确定贷款额度。
· 然而,商业贷款的利率通常较高。利率会根据市场情况、国家政策以及购房者的个人信用状况等因素而有所波动。在房地产市场调控时期,商业贷款的利率可能会上调。
适用人群
· 适用于各种收入来源稳定的购房者。例如,大型企业的白领阶层,他们收入较高且稳定,虽然没有较多的公积金缴存,但有足够的还款能力,可以通过商业贷款来实现购房计划。
(三)组合贷款
00001. 定义与特点
· 组合贷款是将公积金贷款和商业贷款组合起来的一种贷款方式。对于那些公积金贷款额度不足以支付全部房款,但又想享受公积金低利率优惠的购房者来说非常合适。
· 这种贷款方式的还款计划需要综合考虑两种贷款的部分。银行会根据公积金贷款和商业贷款的比例来确定每月的还款金额以及还款期限的安排。
适用人群
· 适合公积金缴存有一定金额,但距离满足全部房款的贷款需求还有差距的购房者。比如,在一些房价较高的城市,年轻的职工公积金缴存了一定年限,但资金尚不能完全覆盖购房款,此时组合贷款是一个可行的方案。
房屋贷款怎么贷?
声明:本文由入驻焦点开放平台的作者撰写,除焦点官方账号外,观点仅代表作者本人,不代表焦点立场。


