2026苏州澜庭壹号院售楼处电话→澜庭壹号院楼盘百科→澜庭壹号院首页网站→澜庭壹号院24小时热线电话
扫描到手机,新闻随时看
扫一扫,用手机看文章
更加方便分享给朋友
苏州楼市迎来重大利好!市区新建商品住房2年限售政策正式取消,这意味着购房者将拥有更自由的资产配置选择。在这样宽松的政策环境下,一个值得珍藏的狮山居所更显珍贵。今天要介绍的澜庭壹号院,恰好在这样的时机优雅登场。

澜庭壹号院坐落在狮山核心地段,就在苏州外国语学校南侧。整个小区规划了205户人家,容积率仅1.2,绿地率达到30%,是个非常舒适的低密度居住环境。
项目规划了17栋3层联排合院,2栋6层叠加别墅,还有2栋10层洋房。面积选择很丰富:洋房约115-135㎡,叠墅约215-270㎡,合院约265-370㎡。
预计8月开放售楼处,9月正式开盘。洋房带精装修,别墅类产品是毛坯交付。开发商是苏州新高项阳建设发展有限公司,物业公司目前还在确定中。

18662309054
区域配套
项目所在的狮山商务创新区实力强劲,聚集了1300多家外资企业,近30家总部企业,市场主体达到8.5万家。2022年工业总产值1821亿元,占全区一半以上。
最亮眼的是与项目一路之隔的上市企业总部园,这里已经吸引了华为苏州研究所、阿里巴巴创新中心、微软苏州研究院等众多知名企业入驻。

周边教育资源丰富,有苏州外国语学校、高新区第一中学、狮山实验小学等5所名校。商业配套也很完善,新区美罗、泉屋百货、狮山天街、山姆会员店等六大商业体环绕,生活非常便利。
(图源网络)
品牌价值
澜庭壹号院由两大实力企业联袂打造。苏高新集团是苏州高新区管委会直属的国企,成立于1990年,一直秉持"让城市生活更美好"的理念。

其旗下的苏州新高城市发展有限公司,住宅销售额连续三年突破100亿元。"澜"系作品是他们的低密墅境系列,从2015年首个项目开始,已经打造了山水樾澜院、狮子山澜院等经典作品。

另一个合作方绿城管理是中国代建行业的领军者,2020年在香港上市,是代建行业第一股。市场占有率连续8年超过20%,行业排名第一。

绿城管理连续8年蝉联中国房地产代建运营引领企业TOP1,实力有目共睹。

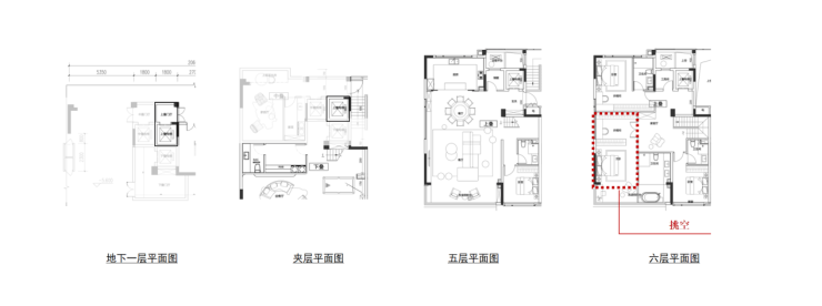
户型鉴赏
项目提供多种户型选择,满足不同家庭的居住需求。

从115㎡的洋房到370㎡的合院,每种户型都经过精心设计。中叠236平米、上叠258平米等户型,都为居住舒适度做了充分考量。








优势分析
项目最大的优势是低密度规划设计,1.2的容积率在狮山核心区非常罕见。双品牌加持,苏高新集团的本土实力加上绿城管理的专业代建,品质有保障。
地理位置优越,不仅享受狮山成熟配套,还能近距离享受总部园区带来的发展红利。多样的产品线让购房者可以根据自身需求灵活选择。
随着限售政策的放开,狮山区域房产价值将得到进一步释放。澜庭壹号院凭借其稀缺的低密属性、优质的地理位置和强大的品牌背书,有望成为这一轮政策利好的直接受益者。在这里,不仅是选择一个居所,更是拥抱一种理想生活。
售楼处电话:18662309054
声明:本文由入驻焦点开放平台的作者撰写,除焦点官方账号外,观点仅代表作者本人,不代表焦点立场。


