2023保利置业获得亿翰智库2023中国房企超级产品力TOP30,2023年全国十大顶级豪宅产品系、2023全国十大IP产品系。这次珺华赋,即保利置业全国第二座、园区首座“赋系”产品,打造城市核心区的东方系人…
保利置业珺华赋
售楼处电话:18662309054

项目基础档案
项目名称:珺华赋(备案名:君华雅筑)
地块信息:苏地2023-WG-27号
开发品牌:保利置业&建屋发展
项目地址:工业园区星塘街西、独墅湖大道北
地块指标:总建约10万方,容积率1.8
产品信息:11栋7-17F洋房+小高层,共384户;
户型配置:建面约152㎡、190㎡、222㎡(以官方公布为准)
精装装标:全装修交付,装标2000-5000元/平;
价格信息:23.06拿地,楼面价22075元/㎡


01-品牌实力
保利置业,作为保利集团第一家上市公司,经过30年发展已成为保利集团地产主业的重要柱石。2023保利置业获得亿翰智库2023中国房企超级产品力TOP30,2023年全国十大顶级豪宅产品系、2023全国十大IP产品系。在上海、江苏、浙江、山东、广西等区域也凭借项目斩获多个国际设计大奖。

笃行30年,保利置业坚守“保国利民,追求卓越”的初心与担当,用一句“至真·致美·置吾乡”进一步诠释了“保利是吾乡”的品牌理念。

在保利置业上市30周年之际,发布了全新的“五大全生命周期产品系”——甲第系、誉系、赋系、印系、壹号系。而这次珺华赋,即保利置业全国第二座、园区首座“赋系”产品,打造城市核心区的东方系人文豪宅。


02-赋系大作



擎立未来昆山国际化生活板块,依托城市底蕴与时代精神,以居雅境、赏雅物、行雅事三大维度重构东方生活镜像,从昆山的文脉底蕴出发,激发新时代国际东方生活理想。
保利珺华赋,师法江南园林礼序、塑造以江南文化风骨为底色的卓越人居气度;高定私人会所及五大主题架空层泛会所共同组成的社区第二客厅空间,雕琢一座当代君子文化大宅。

尊重土地、审视土地、打磨土地……每一座赋系作品的择址,必是繁华之都心、时代之精华。珺华赋正是在苏州工业园区一张蓝图、两个中心的发展规划之下,占据园区独特的文化脊线。

项目自诞生起则自带「文化大宅」基因。择址独墅湖大道和星塘街交汇处,纵横经纬之间,将土地划分四个区域——向上,古今文化交织、新老地标交汇;向下,东西学府交融、中外企业交流。

网络示意
在这片人文厚土之上,超30多所中外高等学府,让国之栋梁从苏州走向世界;超3000家国际智慧科企,让全球人才从世界回到苏州。图书馆、文化公园、文体中心、奥体中心各类配套林立……这里是园区乃至苏州的世界路口,于此高教之上挺起园区的脊梁。

一座苏州城,半部园林诗。园林就是苏州诗意的赋形,粉墙黛瓦、叠山理水……珺华赋师法拙政园礼序与规制,以江南园林的精致手法打造山水庭院,将自然意趣与人文志趣结合,赋刻江南园林生活。

效果图

得城市以土地,还城市以作品。珺华赋以江南风骨底色着墨,打造敬呈园区精英的当代君子文化大宅。以东方文化为魂,为江南风华添韵——这里不仅是一处宅邸,更是影响当代君子及家族的精神源头。

效果图
居雅境、赏雅物、行雅事…围绕东方生活的精神世界,匠心雕琢低密洋房产品、高定下沉式会所、第二会客厅,将生活意趣折叠进寸土寸金的人文土地上,形成当代君子的雅集空间。

效果图
03-户型鉴赏
建面约152㎡ 4房2厅2卫:

1#17F标准层平面图,2梯2户设计
大方厅设计,开间约5.7米,封闭阳台开间约8米,主卧套房带浴缸,开间达到约4.1米,全屋3个飘窗,尺度舒适。

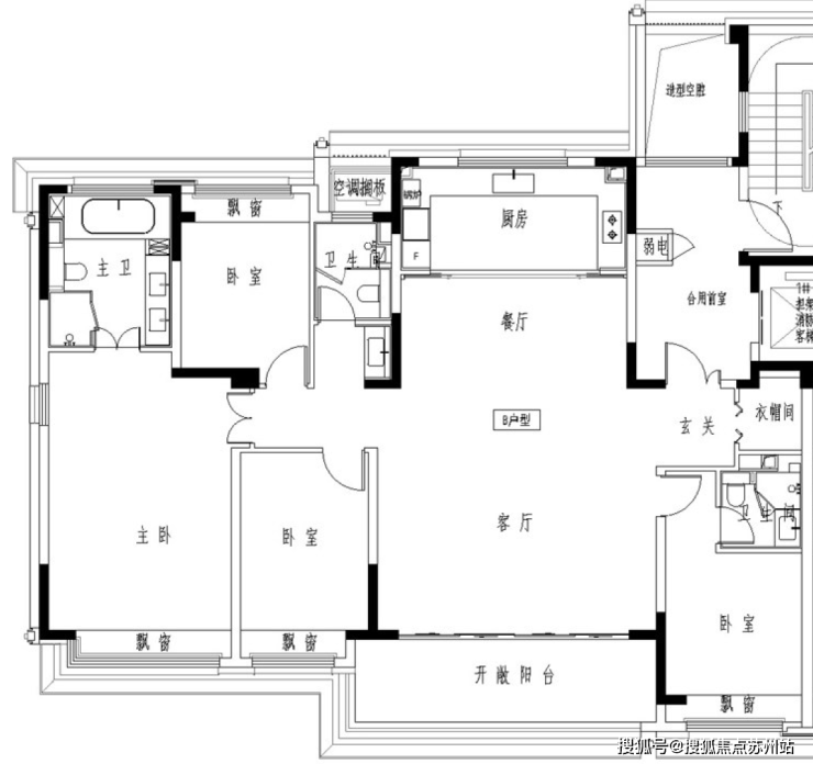
建面约190㎡4房2厅3卫
3#11F标准层平面图如下,1梯2户设计
大横厅开间约6.3米,入户独立玄关且带储藏室;朝南双套房,主卧开间达到约4.2米,配备洗浴四件套;其余三间次卧开间都在3米或以上。

售楼处电话:18662309054
项目笔记为开发商、销售人士创作,本号仅做分享学习,不做任何购买建议。如有侵权,联系即删。