招商臻和璟园 (售楼处) 首页 - 销售中心 - 环境 - 户型 - 价格 - 地址 - 楼盘详情 - 配套 - 电话 - 交房时间 - 配套 - 电话 - 交房时间
扫描到手机,新闻随时看
扫一扫,用手机看文章
更加方便分享给朋友
苏州招商臻和璟园售楼处电话:400-8828-814✔✔【预约热线】招商臻和璟园售楼处营销中心:400-8828-814招商臻和璟园售楼处电话/地址☎:400-882-8814(开发商热线)如有问题欢迎来电咨询,专业一对一热情服务,让您用专业眼光去买房。户型面积:约128㎡、约143㎡,均价约37871元/㎡,总价区间461-583万元。
—— 用途:主宅
——装修:精装
项目板块:苏州园区——接待时间09:00-18:00
——产权70年
——产品类型:园区纯洋房
园区·月亮湾东 128㎡/143㎡纯粹洋房
项目地址:园区月亮湾东 独墅湖科教创新区
招商臻和璟园售楼处电话:400-8828-814【预约☎】
总占地面积:约2.3万㎡
总建筑面积:约5.7万㎡
总规划户数:270户
容积率:1.6
绿地率:35.01%
项目产品:洋房
住宅产权:70年
户型面积:约128㎡、约143㎡
车位配比:1:1.59
总车位:460个
价格:整体备案均价约37871元/㎡,单价区间36037-40574元/㎡,总价区间461-583万元。
400-8828-814【预约☎】
招商臻和璟园售楼处电话:400-8828-814【预约☎】
【品牌介绍】
招商臻和璟园售楼处电话:400-8828-814【预约☎】在央企招商 时代湾领航者
招商局蛇口是百年企业“招商局集团”旗下城市综合开发旗舰企业,是中国领先的城市和园区综合开发运营服务商,创立于1979年改革开放之初,领航深圳蛇口工业区打响“改革开放第一炮”。
百年招商 万亿央企
➢ 世界500强位列175强
➢ 集团资产规模在央企中排名第一位
➢ 集团净利润在央企中排名第一位
➢ 连续19年国务院国资委经营业绩考核A级
➢ 连续六个任期“业绩优秀企业”
招商臻和璟园售楼处电话:400-8828-814【预约☎】400-8828-814【预约☎】
招商蛇口 三大业务板块
招商臻和璟园售楼处电话:400-8828-814【预约☎】招商蛇口聚焦园区开发与运营、社区开发与运营、邮轮建设与运营,三大业务板块,以前港-中区-后城独特的发展经营模式,以港口先行、产业园区跟进、配套城市新区开发,从而实现成片区域的整体发展。
【板块价值】
一流规划:先见2035园区目标
《苏州工业园区扩大国际合作打造开放创新的世界一流高科技园区行动计划》发布,到2035年,要培育一批世界一流创新型企业建设一批世界一流高校和科研机构集聚一批世界一流科技人才。
招商臻和璟园售楼处电话:400-8828-814【预约☎】
一流资源:先见产业/人才/科创
招商臻和璟园售楼处电话:400-8828-814【预约☎】独墅湖科教创新区高教、产业密集区,汇聚人文价值高地——
➢ 3+1核心产业集群:上市企业产业园/3+1核心产业/计划达50家以上上市企业
➢ 4大产业园:创意产业园/生物纳米科技园/生物医疗产业园/腾飞创新园
➢ 4大产业集聚区:吴淞湾斜塘河南街区/上市企业街区/桑田岛产业街区/华为协鑫产业街区
招商臻和璟园售楼处电话:400-8828-814【预约☎】
招商臻和璟园售楼处电话:400-8828-814【预约☎】一流规划:先见园区未来10年
➢ 售楼处重磅规划:“吴淞湾未来城”的“核心承载区”
➢ 未来城际关系:门户园区下一站 TOD苏州东站副中心
➢ 未来发展想象:依托苏州东站,打造集商业办公、会议等多种业态
➢ 政府高度重视:建设“一流中心城区”
【周边配套】
坐标的湾 | 8分钟月亮湾 理想生活港湾
招商蛇口恰遇园区月亮湾8分钟,于时代发展前沿的月亮湾,也是城市资源的极核处,续写从金鸡湖到独墅湖不断潮前的园区故事。
招商臻和璟园售楼处电话:400-8828-814【预约☎】
招商臻和璟园售楼处电话:400-8828-814【预约☎】生活的湾 | 心之向往 近在举步
2条轨道交通:2号线、换乘王8号线(在建中,2024年通车),接驳沪苏繁华
5大交通主线:独墅湖南隧道、尹山湖隧道、中环南延(在建中)快速路连接全城;星塘街、星湖街、松涛街南北贯穿湖东核心区域,沪常高速畅达上海
5大商业配套:独墅湖邻里中心、文荟邻里中心(在建)、文荟广场、两块待出让商业地块(信息来源:土拍网)
招商臻和璟园售楼处电话:400-8828-814【预约☎】
招商臻和璟园售楼处电话:400-8828-814【预约☎】1站式成才之路:苏州工业园区朝前路实验学校(星湾教育集团)、西安交通大学苏州附属中学(普惠路校区)、苏州工业园区车坊实验小学(星湾教育集团)、星湖幼儿园、星塘幼儿园等(学校免责:以上学校信息旨在提供相关信息,学校的名称、建成时间、开办学性质、办学规模及招生区域划定等须以政府教育主管部门及校方的最新政策为准。(开发商不对入学作保证和承诺)
4大文娱配套:独墅湖体育中心、南部市民中心(在建)独墅湖影院、独墅湖教堂
6大生态配套:苏州市路跑基地、独墅湖滨水慢行道路、独墅湖白鹭园、独墅湖公园、独墅湖月墅公园、吴淞江滨江公园
招商臻和璟园售楼处电话:400-8828-814【预约☎】
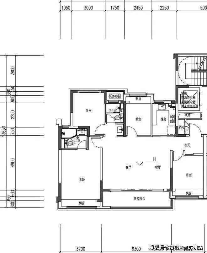
纯粹洋房 | 1.0-4.0 始于臻我的产品革新
招商蛇口苏南公司洞见时代改善需求大势,从精研空间格局、划定精装标准、深化场景营造,到回归人本需求,从1.0到4.0始终关注生活,于社区内规划7处游心园境与4处共享场域;于空间内展开宽厅生活、甄选品质精装,敬献128/143㎡纯粹洋房,为园区高净值人群构筑国际视野的臻我生活。
朴注:因为设置了更大的公区,导致招商洋房的得房率并不高。此外,臻和的飘窗尺度较小。如果你比较多园区的很多户型,就会发现,园区的飘窗都很窄,这应该是与园区的规范要求有关,这真的很不友好。还有,两个户型,两个卫生间都没用浴缸,意味着曾经的100平以上双卫,必有一个浴缸的规定已处于非强制的状态。
得房率:80.4%
得房率:81.5%
色调的平衡感:材料选用中性色调,来平衡室内空间的柔和感
招商臻和璟园售楼处电话:400-8828-814【预约☎】400-8828-814【预约☎】
招商臻和璟园售楼处电话:400-8828-814【预约☎】细节的精致感:科学的收纳、工艺的拼贴、选材的精选……
招商臻和璟园售楼处电话:400-8828-814【预约☎】
情绪的放松感:科学且合理的布局空间、雅致且柔和的色调设计整体空间场域
招商臻和璟园售楼处电话:400-8828-814【预约☎】装修的品质感:甄选品质精装,为园区高净值人群构筑国际视野的臻我生活
苏州招商臻和璟园售楼处电话:400-8828-814✔✔【预约热线】招商臻和璟园售楼处营销中心:400-8828-814招商臻和璟园售楼处电话/地址☎:400-882-8814(开发商热线)如有问题欢迎来电咨询,专业一对一热情服务,让您用专业眼光去买房。户型面积:约128㎡、约143㎡,均价约37871元/㎡,总价区间461-583万元。
声明:本文由入驻焦点开放平台的作者撰写,除焦点官方账号外,观点仅代表作者本人,不代表焦点立场。


