2025姑苏王炸!护城河畔低密墅区横空出世!或是平江新城最后的“价格洼地”
扫描到手机,新闻随时看
扫一扫,用手机看文章
更加方便分享给朋友

苏地2024-WG-Z46号地块于 2025年1月17日 由苏州荣和工程建设有限公司以 2.23亿元底价竞得 ,成交楼面价 18022元/㎡ ,溢价率0%
总用地面积 11823㎡ ,总建筑面积 22248㎡ (地上12748㎡,地下9500㎡),容积率1.05,建筑密度36%,绿地率25%,限高40米。

苏地2024-WG-Z46号地块位于姑苏区平江街道江宇路西侧, 紧邻护城河与北环快速路 ,向东一步达古城区,向西瞬接苏州站,形成“古城烟火+新城效率”的双重生活场,距离在建轨交6号线梅巷站仅 110米 ,4站直达苏州中心,15分钟贯通园区、相城,堪称“姑苏立体交通心脏。
周边以老小区为主,万达广场、平江中学、苏大附一院等配套全维覆盖,烟火气与静谧感并存,适合“隐于市”的顶豪客群

项目综合容积率1.05,住宅部分实际容积率更低,规划 9栋3层联排别墅+2栋8层洋房 ,填补板块空白。
对比护城河内Z43号地块(楼面价28708元/㎡),Z46地块价格优势显著,或成“古城平替首选

根据出让条件和规划公示,外立面需以铝板+石材为主,屋顶融合现代与传统元素,避免“屏风楼”设计,打造与护城河风貌呼应的 新东方美学建筑

1#联排别墅 ::边户标配L型270°露台,中间户北向露台,主卧套房设计,全屋多飘窗,可改造空间大



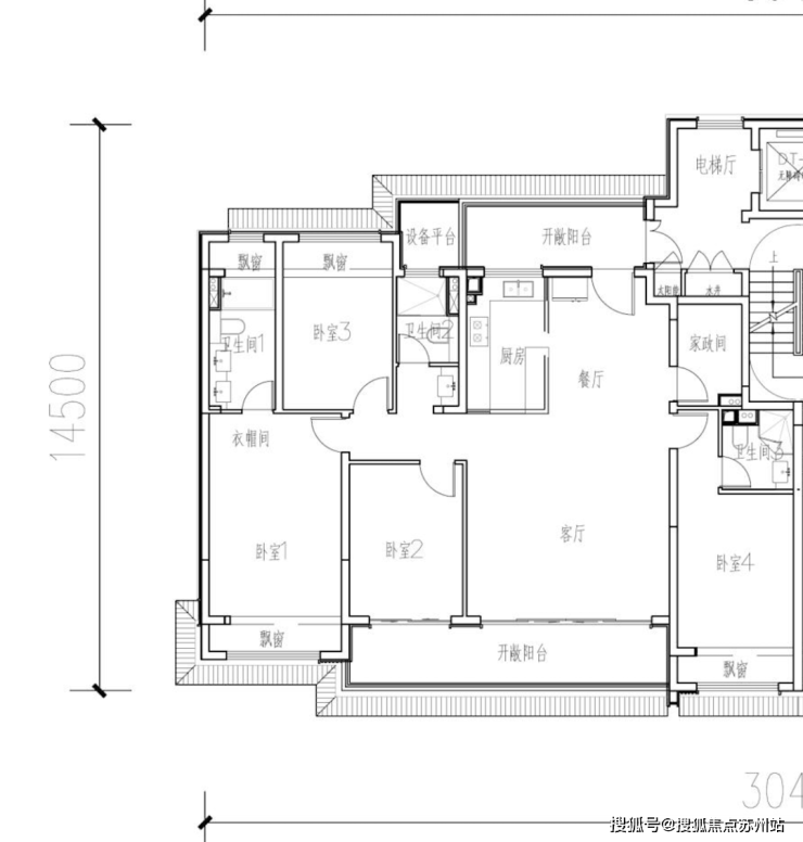
5#洋房产品 :1梯2户,4房2厅3卫,南向四开间面宽约15.2米,南北双阳台+家政间,满足高端家庭功能需求


05
总结:近些年姑苏核心区仅3宗涉宅地出让,Z46地块是平江新城唯一低密别墅用地 ,与同板块小高层产品形成差异化竞争,客群重叠度低;
参考周边2023年成交的城投地块(小高层,楼面价约1.5万/㎡),Z46地块独栋业态溢价能力更强,预估入市价格或突破 6万+/㎡ ,对标古城区别墅价差优势明显。
目前已完成设计评标,中标单位为苏州城发建筑设计院,项目主入口设于江宇路,次入口位于支七路,商业配套用房同步建设,预计年底入市。咨询热线:18662309054
声明:本文由入驻焦点开放平台的作者撰写,除焦点官方账号外,观点仅代表作者本人,不代表焦点立场。


