楼盘评测|金融街融悦沁庭-金融街融悦沁庭营销中心-图文详解-售楼处-户型解析-周边配套-优缺点分析
扫描到手机,新闻随时看
扫一扫,用手机看文章
更加方便分享给朋友
最近苏州楼市传来重磅利好:限购全面放开!现在苏州买房,无论您是本地还是外地,无论新房还是二手房,都不再看社保、不限套数、不看面积,真正实现了“随便买”!政策东风已至,正是安家苏州、抢占价值高地的好时机。而说到价值高地,不得不提吴中太湖新城,以及这座区域里难得的纯洋房社区——金融街融悦沁庭。
金融街融悦沁庭坐落于吴中太湖新城核心,是一个纯粹的7-10层洋房社区。整个小区占地约4.8万方,容积率仅1.6,非常低密。总共609户人家,车位配比高达1:1.5,停车无忧。更难得的是,它精装交付,直接给你配好中央空调、新风、地暖这“三大件”,还有贴心的软水系统,品质一步到位。
18662309054
区域配套:繁华与静谧,在此兼得
住在这里,生活太方便了。出门150米就是地铁4号线和在建的7号线“木里”站,双地铁加持,去哪都快捷。开车的话,友新高架、东太湖大道环绕,畅达全城。

孩子上学更是近水楼台,项目与华中师范大学苏州湾实验小学仅一路之隔,还有华中师范大学苏州实验中学等名校环绕,教育无忧。

周末想逛街?永旺梦乐城、歌林小镇等大型商业就在周边。想休闲?可以去天鹅湖公园散步,或者到七子水街逛逛。未来还有三甲医院保驾护航,生活配套全维丰盈。
品牌价值:双国企联袂,安心之选
买房子,开发商实力很重要。金融街融悦沁庭由金融街控股和苏州国太发展联袂打造。金融街是“中国华尔街”的缔造者,在太湖新城已有两个标杆项目;国太发展则是太湖新城的开发建设主体,已投资约300亿深耕这里。双国企保障,品质和未来都更让人放心。
融悦沁庭效果图
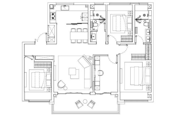
户型鉴赏:高得房率,舒居尺度
项目主打建面约115-152㎡的纯洋房,得房率非常高。约115㎡户型能做到三开间朝南和约5.5米宽厅;约130㎡户型更是三卧朝南,带双联阳台;约152㎡的阔绰户型则拥有四开间朝南和LDKB一体化空间。每种户型都设计精巧,充满阳光。
【心悠】115㎡ 户型示意图
【心悦】130㎡ 户型示意图
【心雅】152㎡ 户型示意图
优势分析:稀缺产品与精工品质
在遍地高层的太湖新城,这样一个纯洋房社区本身就是稀缺品。低密度、高得房率、亲近自然,圈层也更纯粹。
外立面采用干挂铝板搭配大面积三玻两腔LOW-E玻璃,不仅好看,保温隔热隔音效果更好,让家更明亮、更节能。
室内精装则甄选国际品牌,从“三大件”到细节,都体现了实打实的品质。


在此,预见太湖畔的诗意未来
当宽松的政策遇上稀缺的产品,价值便不言而喻。选择金融街融悦沁庭,不仅是选择了一处低密舒居的洋房,更是选择了吴中太湖新城蓬勃发展的未来。双地铁贯通、名校在侧、商业繁盛,一切都在稳步兑现。在这里,每一天都将是与湖光为伴、与繁华共舞的诗意生活。
如果您对这座纯洋房社区心动,欢迎随时咨询。 金融街融悦沁庭热线:400-8800-736;置业顾问:18662309054(微信同号)
了解更多详情,请致电:18662309054(微信同号)
金融街融悦沁庭恭迎品鉴。置业热线:400-8800-736;专属顾问:18662309054(微信同号)
声明:本文由入驻焦点开放平台的作者撰写,除焦点官方账号外,观点仅代表作者本人,不代表焦点立场。


