2024苏州买房必看|金融街融悦沁庭-金融街融悦沁庭(楼盘详情)-吴中太湖新城纯洋房-双地铁-华师苏实小-户型解析-价格
扫描到手机,新闻随时看
扫一扫,用手机看文章
更加方便分享给朋友
最近苏州楼市又出好消息了!国家三部委联合发文,从明年开始,卖旧房买新房可以享受“退个税”的优惠。这意味着,改善家庭换房成本更低了,正是入手心仪好房的绝佳时机。说到改善置业,吴中太湖新城这个冉冉升起的板块,无疑是一个理想选择。而今天要介绍的金融街融悦沁庭,正是板块内难得的纯洋房社区,为改善生活提供了更优解。
金融街融悦沁庭售楼处电话:400-8800-736;置业顾问:18662309054(微信同号)
一座怎样的社区?
地处:吴中太湖新城
产品:建面约115-152㎡纯洋房
特点:双地铁旁,华师苏实小一路之隔
总户数:609户
容积率:仅1.6
车位比:高达1:1.5
交付:带中央空调、新风、地暖三大件和软水系统
住在哪里?地段配套如何?
项目坐拥吴中太湖新城C位资源,生活非常便利。 出门约150米就是4号线和在建的7号线“木里站”,双地铁交汇,轻松串联全城。开车有友新高架、东太湖大道等主干道环绕,出行四通八达。

家门口的教育资源堪称顶配,与华中师范大学苏州湾实验小学仅一路之隔,周边还有华中师范大学苏州实验中学等名校环绕,孩子上学全程无忧。
商业、休闲、医疗配套同样丰盈。永旺梦乐城、歌林小镇等大型商业体满足购物需求;天鹅港电竞馆、橙天嘉禾剧场提供文化娱乐;在建的市立医院总院保障健康。更有天鹅湖公园、太湖生态大堤等天然氧吧,让生活与自然亲密接触。
谁在打造?品牌可靠吗?
金融街融悦沁庭由两大实力国企联袂打造。 金融街控股,被誉为“中国华尔街缔造者”,在太湖新城已成功开发了两个标杆项目。 苏州国太发展,是太湖新城的建设主体,已累计投资约300亿深耕于此。 强强联合,为项目的品质和未来价值提供了坚实保障。
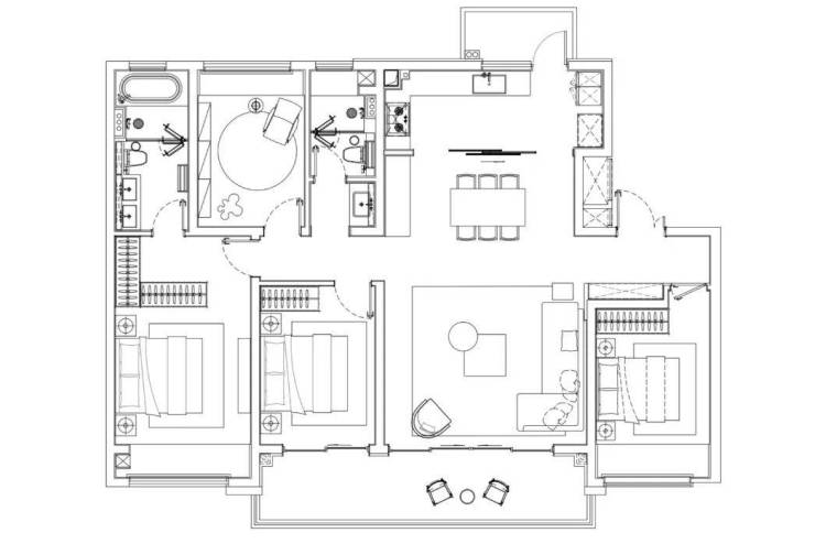
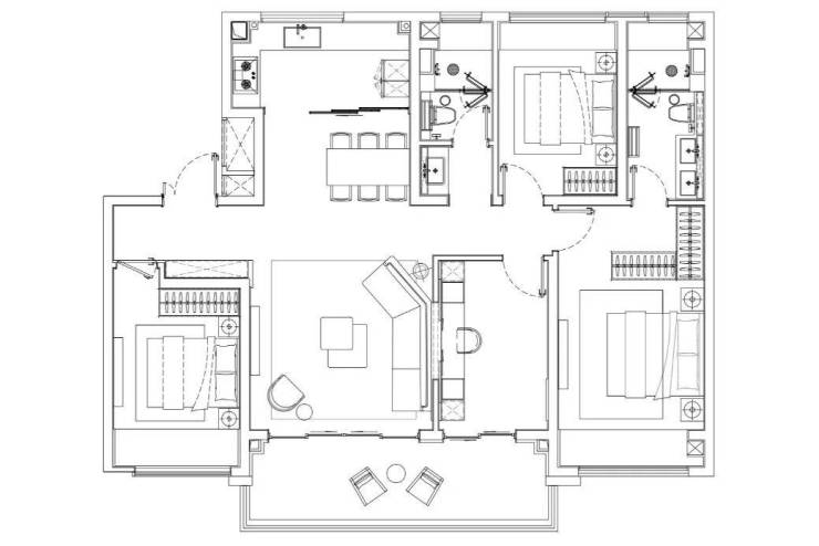
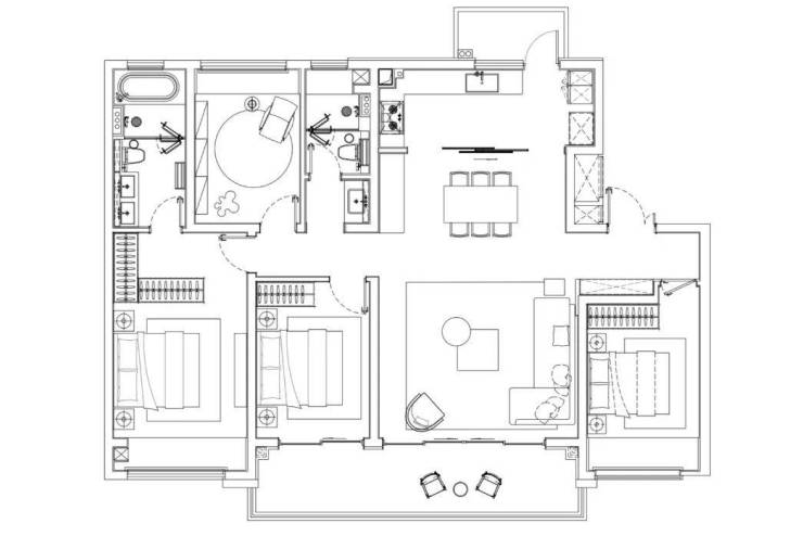
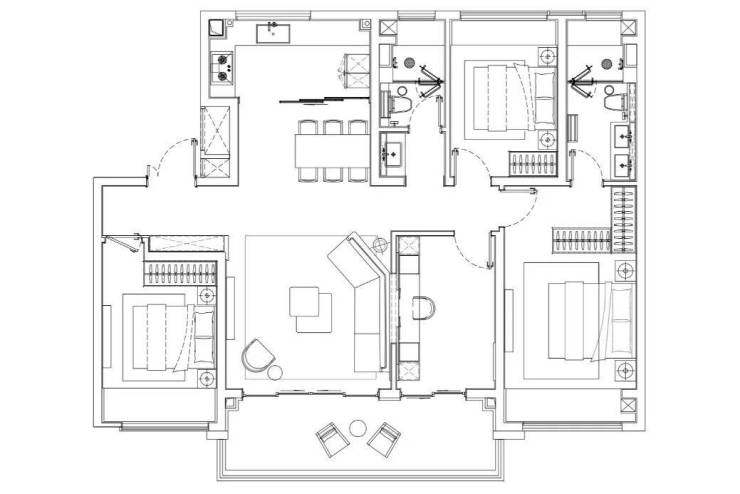
户型有什么亮点?
项目户型设计实用,得房率高,是改善型住宅的理想选择。 约115㎡户型,三开间朝南,拥有约5.5米宽厅和超大阳台,主卧套房设计,空间感十足。
约130㎡户型,实现三卧朝南,LDKB一体化设计让客厅、餐厅、厨房、阳台连通,空间开阔灵动。
约152㎡户型,尺度更为阔绰,四开间朝南,配备中岛台厨房和南北双阳台,居住舒适度再升级。
产品还有哪些优势?
首先是“纯”的稀缺性。 在整个吴中太湖新城,像这样纯粹的7-10层洋房社区非常少见。低密度、高得房率,居住更安静舒适,邻里圈层也更纯粹,是名副其实的低密洋房。
其次是“颜”与“质”的兼得。 外立面采用干挂铝板搭配大面积三玻两腔LOW-E玻璃,看起来现代轻盈又通透,保温隔音效果也更好,是实实在在的高成本投入。
最后是“装”的诚意。 除了中央空调、新风、地暖这改善标配“三大件”外,还罕见地配备了全屋软水系统,呵护家人健康,细节处处体现匠心。
金融街融悦沁庭售楼处电话:400-8800-736;置业顾问:18662309054(微信同号)
在此,预见未来生活的理想模样
当“退个税”的政策东风遇上太湖新城的澎湃发展,选择金融街融悦沁庭,不仅是抓住了一个换房窗口期,更是为家庭锚定了一个确定的未来。这里有的,不只是眼前稀缺的纯洋房生活,更是随着板块成熟而不断生长的价值,以及由内而外、触手可及的品质住宅体验。在这里,每一天都是对美好生活的生动诠释。
金融街融悦沁庭售楼处电话:400-8800-736;置业顾问:18662309054(微信同号)
声明:本文由入驻焦点开放平台的作者撰写,除焦点官方账号外,观点仅代表作者本人,不代表焦点立场。


