最新动态:龙湖御湖境88套房源取证!超级大平层即将入市,327-883万!
扫描到手机,新闻随时看
扫一扫,用手机看文章
更加方便分享给朋友
在相隔了1个月的时候,吴中区城南板块的龙湖御湖境最新一批次房源取证了!

1,这是项目的第10批次取证房源;
2,本批次仅有20#、26#,洋房和小高层,全装修交付;
3,本批次房源的备案单价区间在27284.6-38309.51元/平;
4,本批次房源的整体备案均价33376元/平;
5,本批次房源的备案房屋套型均为4房2厅3卫和4房2厅3卫;
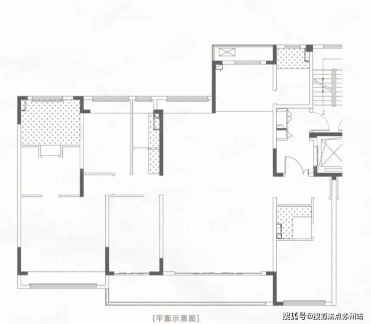
6,本批次房源的建筑面积段在119.9-230.42平,其主力户型仅有
建筑面积143平,4房2厅2卫
咨询热线:18662309054
龙湖御湖境,位于吴中区长桥街道石湖西路南侧、新蠡路东侧,位置上来说,属于吴中城南板块。
周边来看,其实还不错。北面是在建的香江翡翠天辰,项目也有住宅部分,商业部分一栋商业MALL,一栋多层写字楼及一栋商业+办公写字楼。南面是两所学校,西面和东面目前则还是空地!

配套上来看,也是很不错的。
交通:距离最近的地铁站是2号线新家桥站,步行约750米。往东一站石湖东路即可换乘4号线。
自驾上面,东面靠近友新快速路,可连接西环和南环,快速抵达苏州各区!
商业:北面香江翡翠天辰项目带有商业设施,未来可以满足日常生活所需。西面靠近万达广场,也是城南老牌商业综合体。东面一站地铁即为东吴天街,吃喝玩乐一站满足!同时还有海星生活广场和东吴南路等沿街商业补充!

教育设施:南面是苏苑高中新校区和苏州外国语学校吴中校区(私立),距离蠡墅小学约1.7公里,距离长桥实验小学约2.8公里,距离长桥中学约1.9公里,距离长桥中心小学附属幼儿园约2.2公里;咨询热线:18662309054
声明:本文由入驻焦点开放平台的作者撰写,除焦点官方账号外,观点仅代表作者本人,不代表焦点立场。


