安高申陇院售楼处电话(安高申陇院)安高申陇院欢迎您丨安高申陇院首页网站丨楼盘详情|价格|户型
扫描到手机,新闻随时看
扫一扫,用手机看文章
更加方便分享给朋友
【上海-安高申陇院】
售楼处电话:400-8787-554(预约热线)
欢迎致电售楼处电话,专业一对一热情服务,让您用专业眼光去买房。
报名等销售电话确认后,请再前往现场
户型与设计亮点
户型布局:
107㎡三房:采用飞机式布局,南向三开间约9.8米,U型厨房设计,得房率74-75%15.
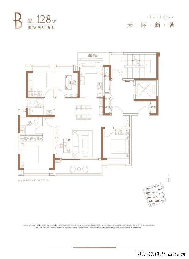
128㎡四房:南北通透LDKB一体化客餐厅,满足家庭多样化需求
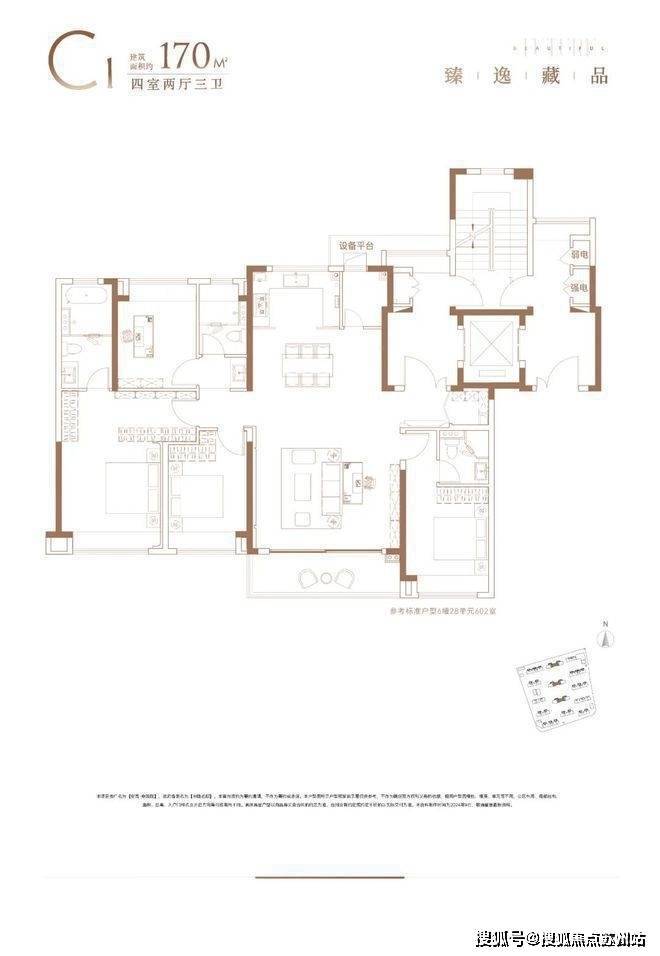
170㎡大平层:南向四开间约15.4米,主卧套房+双卫设计,边户享270°飘窗及转角阳台
装修标准:
主卧悬浮吊顶+皮革背景墙,次卧人字拼地板;厨卫配备博世四件套、汉斯格雅卫浴及智能马桶.
全屋采用华为智能系统,提升居住科技感.
【安高申陇院】
配套与交通
交通:距地铁15号线景西路站约700米,可快速抵达徐家汇等商圈.
教育:周边有闵行区实验小学、莘松中学等优质教育资源.
社区设施:规划1700㎡下沉式会所,含泳池、健身房及会客区.
售楼处电话:400-8787-554(预约热线)
价格与销售动态
价格:2024年12月开盘均价约76972元/㎡,总价区间810-1287万元/套;三期部分房源总价780万元起.
销售情况:2024年12月加推204套房源,已售约80%,当前剩余房源有限.
营销活动:2025年4月启动营销服务招标,计划持续至2025年底,预计推出新促销方案.
上海-安高申陇院售楼处电话☎:400-8787-554(预约热线)✔✔✔
如有问题欢迎来电咨询,专业一对一热情服务,让您用专业眼光去买房.
开发商实力
高速地产连续两年入围“中国房企综合实力百强”,安联公司总资产近200亿元,项目交付品质稳定
闵行·梅陇全新盘
#最新消息#
闵行·梅陇全新品
安高·申陇院」三期正在认购
将推约107-170㎡3-4房
上期均价76972元/㎡
售楼处电话:400-8787-554(预约热线)
上海-安高申陇院售楼处电话☎:400-8787-554(预约热线)✔✔✔
如有问题欢迎来电咨询,专业一对一热情服务,让您用专业眼光去买房.
安高申陇院项目概况
基本信息
位置:位于上海闵行区梅陇镇核心区域,东至梅富路,南至梅南路,西至集心路,北至01-26-02地块.
开发商:由高速地产与安联公司联合开发,属国企背景品牌,此前已成功打造安高申宸院等项目.
产品定位:定位为“院系升级之作”,主打改善型住宅,三期产品涵盖建面约107-170㎡的3-4房户型.
徐闵心中·见未来,梅陇C位红盘安高·申陇院三批次已过会!建面约107-128㎡房源即将加推,预计4月下旬启动认购!
售楼处电话:400-8787-554(预约热线)
从项目发布到首开热销,安高·申陇院始终贯彻着唯美生活的非凡追求.
项目的热销之势得益于优越的地理位置,凭借接壤徐汇与闵行双区的天赋优势,紧邻徐家汇繁华商圈、前滩CBD及漕河泾开发区,轻松满足日常娱乐需求.项目周边丰富便捷的交通体系,也使各类醇熟配套皆触手可得.
售楼处电话:400-8787-554(预约热线)
聚焦居住空间的营造,项目从全维107户型到跃阶128户型,再到心院170户型,无论是三口之家还是三代同堂,都能在这里寻得理想的归属.
售楼处电话:400-8787-554(预约热线)
安高·申陇院已过会
过会均价74239元㎡
新批次107/128户型火热上市
项目实景示范区开放及认购活动
璀璨将启
高速地产&安联公司国匠联袂落座的「安高·申陇院」,真真切切做到了不负珍贵土地,承袭院系高价值产品基因,与当代海派文化融合,为上海定制恒久共鸣的人居范本.
安高申陇院将建设包含13栋13至16层的高层住宅、1栋16层的保障性住房,预计可售住宅数量将达到约888套,联动价7.6万/㎡!总价约700w起.
售楼处电话:400-8787-554(预约热线)
上海-安高申陇院售楼处电话☎:400-8787-554(预约热线)✔✔✔
如有问题欢迎来电咨询,专业一对一热情服务,让您用专业眼光去买房.
项目立面在海派摩登的基础上,融合了现代美学的设计风格,时尚简约大气!彰显出一种独特的尊贵气质,重新定义梅陇品质人居高层次审美!
效果示意图,仅供参考
外立面材质以真石漆、铝板、玻璃为主,整体风格大气典雅,专为年轻都市菁英人群打造!
售楼处电话:400-8787-554(预约热线)
效果示意图,仅供参考
据了解,项目配备了海派风格精奢下沉式会所,建筑面积约1700平,将包含休闲娱乐、健身游泳、以及会客等功能,未来业主可以不出社区,就能实现健身、游泳以及会客休闲的需求!(具体功能以实际交付为准).
最新效果图如下:
上海-安高申陇院售楼处电话☎:400-8787-554(预约热线)✔✔✔
如有问题欢迎来电咨询,专业一对一热情服务,让您用专业眼光去买房.
推售信息
据悉,安高·申陇院三期将推约107-170㎡3-4房,上期均价76972元/㎡,即将加推!
「三期推售户型楼栋分布图」
整个社区主要是由13-14层小高层组成(仅北侧2栋为16层),这意味着相比同区位新盘,申陇院享有更低的楼层、更少的垂直空间住户、更强的私密性、更充沛的采光、更优越的观景视野……
除去1#、5#(总高16层)部分楼栋设有连廊,其余楼栋均实现无连廊设计,最大化提升居住舒适度;
户型配置上,约107㎡为三房两厅两卫、约128㎡为四房两厅两卫、约170㎡为四房两厅三卫,真正的宝藏改善户型,完全能够满足不同家庭的各种需求.
超大尺度功能空间一步到位适配大量改善需求
放眼全上海同等面积段的改善三房,要么通透性存在不足,要么空间感或功能性不够,真正能完全“闭眼入”的户型还是屈指可数.
「安高·申陇院」这次推出的两款建面约107㎡新品户型,却真正做到了碾压市面上的所有同类产品.
售楼处电话:400-8787-554(预约热线)
得益于飞机户型+无连廊设计,建面约107㎡3房2厅2卫户型,做到空间0浪费,超高得房率,尺度感非常惊人.
三开间朝南、南北通透格局,超大采光面宽,尽揽阳光、清风与美景入室;
U型厨房、餐厅、客厅与南向观景大阳台独立又互通,LDKB一体化排布,整个公区动线富于流畅的同时,也大大提升了空间的通透性和视野面.
更有丰富的灵动空间,人性化方面的体贴入微,可容纳一家人的社交、兴趣.
每间卧室都伴有飘窗,让室内采光和通风更出众;北次卧旁即是次卫,次卫干湿三分离设计;主卧为大套房设计,包含收纳空间,就寝区-飘窗-卫浴间层层递进,带来满满的私密感、仪式感和尊贵感.
售楼处电话:400-8787-554(预约热线)
建面约128㎡4房2厅2卫,较约107㎡户型基础上有所提升,增加了1个北向卧室空间,更适合三代同堂或多孩家庭居住,让进阶人生一步到位.
上海-安高申陇院售楼处电话☎:400-8787-554(预约热线)✔✔✔
如有问题欢迎来电咨询,专业一对一热情服务,让您用专业眼光去买房.
建面约170㎡的两款4房2厅3卫的终极改善户型,适配了全生命周期的家庭需求,不仅实实在在将每个房间的体量放大,亦拥有了更多收纳与灵动空间.
三套房的设计,呈现出超高的居住舒适度与私密性,同区位和同价位产品难有匹敌!
边套户型更独树一帜的将南向主卧升级成约270°转角飘窗设计,赋予空间前所未有的通透与敞亮,窗外即是四季美景更迭.
售楼处电话:400-8787-554(预约热线)
安高·申陇院臻选精奢材质、严格把关工艺
装修配置目之所及都是全球一线品牌!
【上海-安高申陇院】
售楼处电话:400-8787-554(预约热线)
欢迎致电售楼处电话,专业一对一热情服务,让您用专业眼光去买房。
报名等销售电话确认后,请再前往现场
声明:本文由入驻焦点开放平台的作者撰写,除焦点官方账号外,观点仅代表作者本人,不代表焦点立场。


