热门推荐-山岚璟庭(售楼处)-山岚璟庭是否值得购买?图文详解-周边环境-户型图-周边配套-地址-优劣势分析-学区-价格
扫描到手机,新闻随时看
扫一扫,用手机看文章
更加方便分享给朋友
重磅消息!苏州楼市再迎政策东风。就在近日,官方正式宣布,全面取消市区新建商品住房的2年限售政策。这意味着,无论是买新房还是二手房,未来的流通都将更加自由灵活,资产配置的选择也更多了。政策暖风频吹,正是安家置业的窗口期。
而在这股浪潮中,位于高新区狮山商务区的 山岚璟庭 ,以其独特的东方美学与低密纯洋房社区,正成为市场瞩目的焦点。项目目前在售建面约105-148㎡的精装洋房,均价约29500元/㎡,近期到访还有机会参与专属优惠活动,机会难得。

山岚璟庭官方售楼处电话:400-8800-736;置业顾问:18662309054(微信同号)
【关于这个家,你需要知道这些】
项目名称:山岚璟庭 地块信息:苏地2022-WG-10号地块 项目地址:苏州高新区枫桥街道华山路北、朝红路西 开发品牌:苏高新地产 地块指标:占地4.4万方,容积率1.2,总建8.5万方 住宅规划:拟建11栋8-10F住宅,共计411户 户型配置:约105㎡3房2卫、建筑面积约148㎡4房2卫 交付标准:全屋精装,精装三大件 物业服务:新永物业,交房时间预计为2025年6月 车位配比:1:1.6 价格信息:成交楼面价13000元/平;备案均价29500元/平
【住在哪里?狮山核芯的未来就在这里】
这里可是苏州发展的重中之重!按照规划,狮山商务创新区就是未来高新区的“心脏”,要打造成商务、创新、外贸和国际合作的中心。大量世界500强、高科技企业都往这里聚,带来的都是高收入、高学历的人才。住在这里,等于站在了城市发展的潮头,坐享狮山核芯地段带来的价值潜力。
【生活方便吗?出门就是繁华与自然】
交通四通八达:门口有有轨电车1号线,规划中的地铁9号线也在附近,何山路隧道、北环、中环快速路环绕,去哪都方便。 逛街购物不愁:从家门口的马涧商业街,到龙湖天街、金鹰、美罗、泉屋等大商场,都在生活圈里。 环境没得说:背靠高景山、大阳山森林公园,旁边就是白马涧、苏州乐园等4A级景区,真正是住在公园里,尽享山居生活的静谧与诗意。 教育医疗齐全:苏州外国语学校等名校环绕,高新区人民医院、科技城医院等优质医疗资源保驾护航。
【房子本身怎么样?细节处处见匠心】
颜值高,有气质:房子是新中式风格,看起来大气又雅致,金属挑檐、真石漆立面,很有东方美学韵味。
住得舒坦,密度低:整个小区全是8-10层的洋房,容积率只有1.2,楼间距大,绿化多,采光好,私密性更强,住起来特别安静、宽敞,是名副其实的低密社区。
园林像画,归家有礼:设计了“三进归家”的仪式感,小区里打造了“一轴八景”的园林,就像把苏州的山水画卷搬进了家,营造出独特的苏州园林意境。
全龄活动,各有天地:专门为孩子设计了游乐场,为年轻人规划了跑道和健身区,为长辈准备了休闲花园,一家人都有活动空间。
户型方正,明亮通透:105㎡做三房,148㎡做四房,都是大面宽设计,客厅阳台视野开阔,主卧带独立卫生间,格局非常实用,充分考虑了家庭生活的舒适性。
装修实在,全是名牌:交房就是精装,中央空调(东芝)、新风(松下)、地暖(威能)三大件配齐。厨房的橱柜、灶具,卫生间的花洒、马桶,用的都是欧派、老板、汉斯格雅、杜拉维特这些一线大牌,省心又有品质,为精装洋房的舒适体验提供了坚实保障。
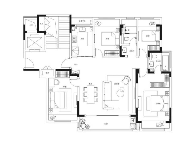
【户型长啥样?一看就心动】
建筑面积约105㎡亲地纯洋房(3室2卫)
建筑面积约148㎡亲地纯洋房(4室2卫)
未来展望
政策放开,为房产的长期价值增添了流动性保障。而像 山岚璟庭 这样占据狮山核芯地段、拥有低密纯洋房稀缺产品力的项目,其自住舒适度与资产保值性无疑更具优势。当下,正是抢占未来城市发展红利、安家理想山居的绝佳时机。
山岚璟庭官方售楼处电话:400-8800-736;置业顾问:18662309054(微信同号)
美好的山居生活图景已经绘就,席位有限。感兴趣的朋友,请速联系预约,亲临现场,感受这份难得的东方写意生活。
声明:本文由入驻焦点开放平台的作者撰写,除焦点官方账号外,观点仅代表作者本人,不代表焦点立场。


