广奕天之星(2025年广奕天之星) 2026官方网站-楼盘评测-户型-价格 广奕天之星2025年度最新评测
扫描到手机,新闻随时看
扫一扫,用手机看文章
更加方便分享给朋友
苏州广奕天之星售楼处电话:400-8828-814✔✔【预约热线】广奕天之星售楼处营销中心:400-8828-814广奕天之星售楼处电话/地址☎:400-882-8814(开发商热线)如有问题欢迎来电咨询,专业一对一热情服务,让您用专业眼光去买房。
广奕天之星售楼处电话:400-882-8814
苏州广奕天之星售楼处电话☎:400-8828-814(售楼处预约看房热线)
项目介绍:
开发商:上市企业--广运集团--广奕置业
项目占地:7092.3㎡
建筑面积:51158㎡
地上建筑面积约为38119㎡,地下室建筑面积约为13039㎡,其中地下室一层、二层为整体,局部有地下三层.
产品类型:南楼独立酒店式商务公馆,北楼及一二层为开发商自持商业及星级酒店
面积:50-64㎡
交付标准:毛坯
广奕天之星售楼处电话:400-882-8814
苏州广奕天之星售楼处电话☎:400-8828-814(售楼处预约看房热线)
建筑:法式建筑精粹,老虎窗,玻璃穹顶,全石材干挂,成本远超玻璃幕墙,共享超大中庭空间
自持商业:自持1.4万㎡商业配套
层高:3.3m
广奕天之星售楼处电话:400-882-8814
苏州广奕天之星售楼处电话☎:400-8828-814(售楼处预约看房热线)
电梯配比:4部客梯,1部货梯
广奕天之星售楼处电话:400-882-8814
苏州广奕天之星售楼处电话☎:400-8828-814(售楼处预约看房热线)
交通配套:
轻轨:地图4号线300m距离/地铁2号线1000m距离/规划中的7号线200m距离
公交:门口有62路、522路、94路、628路、5002路公交线路
环线:距离吴中快速路红庄出口1公里,友新高架2.5公里
高速:距苏嘉杭高速吴中出口3公里
商业配套:
苏州广奕天之星售楼处电话☎:400-8828-814(售楼处预约看房热线)吴中龙湖天街(1100米直线距离)、吴中万达广场、海星商业广场、吴中商城、丽丰中心、永旺梦乐城、SM生活广场、大宁生活广场、大润发超市、华润万家
广奕天之星售楼处电话:400-882-8814
苏州广奕天之星售楼处电话☎:400-8828-814(售楼处预约看房热线)
医疗配套:
吴中长桥人民医院、吴中区人民医院、苏州市中医院
学校配套:
紧邻项目东面规划的中小学,即将开建,1公里范围内,长桥中学,碧波中学
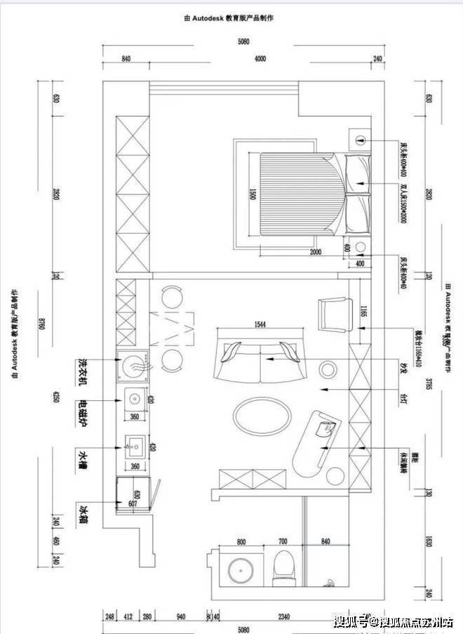
户型分析:
每层为19户,朝南12户,朝北7户
50㎡-57㎡为主力户型
19户型样板间户型图及装修效果图(64㎡面积也可做两房)
广奕天之星售楼处电话:400-882-8814
苏州广奕天之星售楼处电话☎:400-8828-814(售楼处预约看房热线)
广奕天之星售楼处电话:400-882-8814
苏州广奕天之星售楼处电话☎:400-8828-814(售楼处预约看房热线)
广奕天之星售楼处电话:400-882-8814
苏州广奕天之星售楼处电话☎:400-8828-814(售楼处预约看房热线)
苏州广奕天之星售楼处电话:400-8828-814✔✔【预约热线】广奕天之星售楼处营销中心:400-8828-814广奕天之星售楼处电话/地址☎:400-882-8814(开发商热线)如有问题欢迎来电咨询,专业一对一热情服务,让您用专业眼光去买房。
声明:本文由入驻焦点开放平台的作者撰写,除焦点官方账号外,观点仅代表作者本人,不代表焦点立场。


