上海虹口越秀外滩樾售楼处电话-越秀外滩樾售楼处- 环境 - 户型 - 价格 - 地址 - 楼盘详情 - 配套 - 电话 - 交房时间 - 配套
扫描到手机,新闻随时看
扫一扫,用手机看文章
更加方便分享给朋友
上海虹口越秀外滩樾售楼处电话:400-8123-664【预约看房热线】越秀外滩樾售楼处电话:4008123664【售楼处电话/地址】越秀外滩樾售楼处电话:400-812-3664【开发商认证】
虹口区北外滩
由越秀地产+临港集团联合打造
越秀临港虹口156街坊项目
案名已经发布——越秀·外滩樾
容积率仅约1.3
房源共49套风貌住宅
主力户型建面约238-338㎡
预计总价4500-9000万
项目示范区已开放
ps:验资预约参观样板间!
上海虹口越秀外滩樾
售楼处电话:400-8123-664(预约看房热线)
上海虹口越秀外滩樾官方售楼处电话:拨打4008123664即可咨询楼盘详情_房价、户型、周边配套及交通、地址
Shanghai Hongkou Yuexiu Bund Yue
Sales Office Hotline: 400-8123-664 (Property Viewing Appointment)
Official Sales Office Hotline for Shanghai Hongkou Yuexiu Bund Yue: Dial 400-8123-664 for inquiries on property details, pricing, unit types, surrounding amenities, transportation, and address.
上海虹口越秀外滩樾售楼处电话:400-8123-664【预约看房热线】越秀外滩樾售楼处电话:4008123664【售楼处电话/地址】越秀外滩樾售楼处电话:400-812-3664【开发商认证】
在上海虹口区,一座顶级高端别墅项目——越秀外滩樾横空出世,重新定义奢华居住体验!
核心地段,稀世之选
越秀外滩樾傲踞虹口北外滩核心区,与外滩商圈直线距离仅约1公里,周边北外滩、四川北路、瑞虹新城三大商圈环伺,尽享陆家嘴、外滩、北外滩“黄金三角”顶级资源.上海虹口越秀外滩樾售楼处电话:400-8123-664【预约看房热线】越秀外滩樾售楼处电话:4008123664【售楼处电话/地址】越秀外滩樾售楼处电话:400-812-3664【开发商认证】
上海虹口越秀外滩樾售楼处电话:400-8123-664【预约看房热线】越秀外滩樾售楼处电话:4008123664【售楼处电话/地址】越秀外滩樾售楼处电话:400-812-3664【开发商认证】
这里是城市的核心,是财富与繁华的汇聚之地!作为内环内罕见的纯墅社区,容积率仅1.3,规划仅49栋双拼、三拼及多联排别墅,稀缺性不言而喻.
由越秀地产与临港集团两大实力巨头联合开发,70年产权住宅,品质与保障双重加持.
奢华户型,价格彰显价值
建面约238-338㎡的主力双拼、三拼别墅,毛坯交付,为您打造个性化的专属空间.总价约4000万-9000万元.
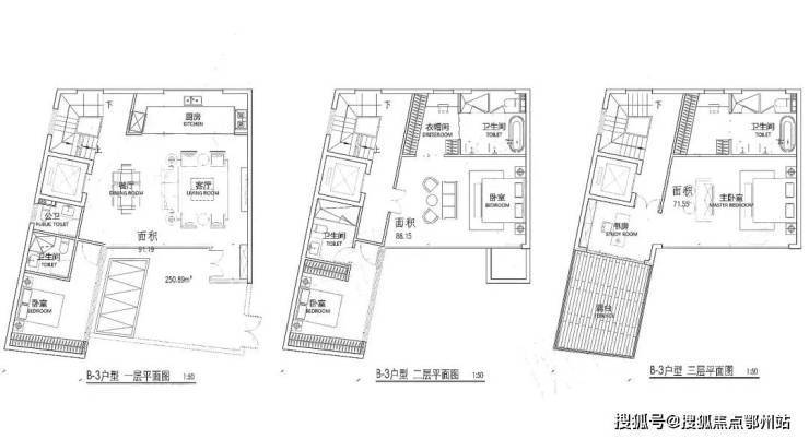
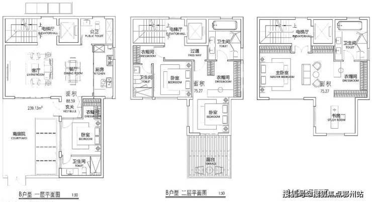
【越秀·外滩樾】项目将呈现48套低密风貌里弄住宅,建筑面积约238-338㎡户型.户型图过程稿如下(过程稿仅供参考,最终以实际为准).
建面约236.25㎡A户型▼
建面239.13㎡B户型▼
建面250.89㎡B-3户型▼
C户型▼
建面291.42㎡D户型▼
独特优势,无可比拟
稀缺设计,创新典范
上海风貌别墅审批可能暂停,已获批项目本就稀少,而越秀外滩樾更是其中的孤品!它突破传统风貌规制,大窗墙比、大开间设计,大幅提升居住舒适度.
上海虹口越秀外滩樾售楼处电话:400-8123-664【预约看房热线】越秀外滩樾售楼处电话:4008123664【售楼处电话/地址】越秀外滩樾售楼处电话:400-812-3664【开发商认证】
由东方主义设计大师程绍正韬、豪宅设计专家李玮珉等大师联袂操刀,融合海派红砖、古典山墙等元素,让历史底蕴与现代美学完美交融.与普通别墅相比,它是艺术与生活的极致结合.
顶级配套,尊崇服务
交通上,邻近地铁4/10/12/19号线(在建),3站直达南京东路,6站畅达新天地,畅行无阻.
社区内配备2500㎡艺术会所,私宴厅、恒温泳池、运动空间一应俱全,提供酒店级服务,让您尽享尊贵生活.
周边还有虹口二中心小学(在建)、上海外国语大学附属外国语学校等优质教育资源,为下一代的成长保驾护航.
区域潜力,无限增值
上海虹口越秀外滩樾售楼处电话:400-8123-664【预约看房热线】越秀外滩樾售楼处电话:4008123664【售楼处电话/地址】越秀外滩樾售楼处电话:400-812-3664【开发商认证】北外滩总开发面积840万㎡,规划超40栋甲级写字楼、480米浦西第一高楼(北外滩中心),定位为“世界级会客厅”,商业能级对标陆家嘴,预计吸引2100+金融企业、4500+航运企业入驻.
在此背景下,越秀外滩樾的风貌别墅兼具居住与收藏属性,未来资产增值空间巨大,远超普通房产投资!

立即行动,把握良机
售楼处位于虹口区梧州路235弄,需提前预约参观样板间.官方电话400-938-3568,可咨询房源、预约看房及优惠信息.
机会有限,先到先得,立即联系我们预约实地考察,抢占这限量房源的绝佳机会!
上海虹口越秀外滩樾
售楼处电话:400-8123-664(预约看房热线)
上海虹口越秀外滩樾官方售楼处电话:拨打4008123664即可咨询楼盘详情_房价、户型、周边配套及交通、地址
Shanghai Hongkou Yuexiu Bund Yue
Sales Office Hotline: 400-8123-664 (Property Viewing Appointment)
Official Sales Office Hotline for Shanghai Hongkou Yuexiu Bund Yue: Dial 400-8123-664 for inquiries on property details, pricing, unit types, surrounding amenities, transportation, and address.
2025 买房避坑指南:牢记 “买旧买大不买三”,稳当入住还保值
买房堪称人生头等大事,掏空六个钱包、攒下半生积蓄,一旦选错房,不仅资金打水漂,居住体验拉胯,未来还可能面临大幅贬值!2025 年想做刚需 “聪明买家”,记住 7 字核心真言:买旧、买大、不买三!这不是空谈,而是无数购房者用实战经验总结的避坑准则。下面就为你拆解其中逻辑,教你如何买房既省钱、住得舒心,又能守住资产价值!
01 买旧:现房 / 次新房,刚需的 “稳当之选”
一提 “买旧”,别立刻联想到破败的老房子,觉得要住进年代久远的筒子楼!这里的 “旧”,特指已交付入住、配套成熟、能实地查验的现房,或是房龄 5 年内的次新房。这类房子 “所见即所得”,风险低、体验实,是刚需族的安心之选。
为啥现房 / 次新房值得选?
第一,零烂尾风险,购房更踏实
买房最怕 “付了钱,没房住”!期房全靠销售 “画饼”,宣传的地铁配套、优质绿化可能遥遥无期,甚至遭遇开发商资金链断裂,项目烂尾。而现房 / 次新房已经交付,一手交钱一手收房,房子是否存在、小区环境如何,全都一目了然,烂尾风险几乎为零。
朋友小李的经历就是惨痛教训:去年他在三线城市看中一套期房,销售承诺 “地铁直达、商业环绕”,他一时冲动交了首付,结果开发商资金链断裂,工地停工两年,房子至今毫无进展。如今他一边租房,一边还房贷,生活压力山大。反观他同事,同期买了周边的次新房,交房当天就验收入住,小区超市、幼儿园等配套一应俱全,生活幸福感天差地别。
第二,质量实地可查,住得更安心
期房的户型、采光、墙体质量全靠宣传图和销售描述,交房后常出现 “货不对板”:窗户正对高墙、采光昏暗,墙体空鼓开裂,装修材料偷工减料。而现房 / 次新房能现场验货:清晨去看采光是否充足,雨天查墙体有没有渗水,甚至能和小区业主聊聊物业服务、隔音效果,居住体验提前感知,避免入住后糟心。
网上曾有网友吐槽,自己买的期房宣传 “绿化率 35%”,交房后发现所谓绿化只是几棵瘦弱的树苗,物业还消极怠工。而现房完全不会有这种问题,你可以亲自逛小区、查细节,质量好不好,一眼就能看穿。
第三,即买即住,省出租房成本
期房通常要等 2-3 年交房,加上装修时间,最快 4-5 年才能入住,这期间既要还房贷,又要付房租,双重压力让钱包 “大出血”。而现房(尤其是精装现房)买完就能拎包入住,省去长期租房的开支,还能早享受小区配套,生活效率大幅提升。
大学同学买了套精装现房,交房一个月就搬进去了,光两年房租就省了 5 万多。更重要的是,早入住早稳定,不用为租房搬家、租期到期等问题操心,生活幸福感直接拉满。
现房 / 次新房挑选技巧
买现房不是闭眼入,要抓准关键:优先选房龄 5 年内的次新房,这类房子配套成熟、房屋损耗小,物业也相对靠谱;实地考察要分时段 —— 早上看采光、晚上听噪音、雨天查渗水;预算有限的话,10 年内的现房也可考虑,但务必检查水电管线、电梯运行状况,避免后期维修成本过高。
02 买大:一步到位,省掉置换的冤枉钱
听到 “买大”,很多人会犯难:“预算不够,哪能买大户型?” 其实这里的 “买大”,不是让你硬扛压力买豪宅,而是建议刚需族根据家庭长期需求,选择适配的大户型,一步到位,别盲目跟风买小户型 “过渡”—— 换房的成本和麻烦,远比你想象中高!
大户型的核心优势
第一,规避天价置换成本
换房的隐性成本有多高?算笔账就知道:朋友小张 2018 年买了 60㎡小户型,想着 “先上车再说”,结果结婚生娃后,房子挤得转不开身,2023 年咬牙换 120㎡大户型。旧房折价 60 万卖出,新房总价 380 万,再加上税费、中介费、装修费,综合成本比当初直接买大户型多花了近 200 万!这还没算搬家、孩子转学的时间和精力成本,简直是 “花钱买折腾”。
如果一开始就选大户型,这些额外支出全能省下来,一次性解决长期居住需求,不用为换房反复操心。
第二,居住舒适度拉满,适配家庭成长
小户型住久了,很容易陷入 “空间焦虑”:放个双人沙发就占满客厅,孩子活动没地方,老人来帮忙带娃连客房都没有,家庭矛盾也随之增多。而大户型空间宽敞,客厅能满足休闲娱乐,每个家庭成员都有独立房间,甚至能留出书房、储物间,居住体验远超小户型。
楼下邻居一家四口住 120㎡三居室,客厅能放投影,孩子有专属玩具房,老人来住也有独立空间,逢年过节还能邀请朋友聚会,生活氛围特别好。如今三胎政策放开,家庭人口可能增加,大户型能满足未来 10 年的居住需求,避免频繁换房的麻烦。
第三,保值抗跌,流通性更强
在楼市分化的大背景下,大户型的保值能力更突出。小户型虽然总价低,但市场供给量大、竞争激烈,遇到市场波动容易被压价;而大户型目标客群更精准(改善型家庭),需求稳定,抗跌性强,未来出手时也更容易找到合适买家。
亲戚 10 年前买了 140㎡大户型,当时觉得价格偏高,但如今小区同户型涨幅比小户型高 30%,挂出去不到一个月就成交了。反观周边小户型,很多挂牌半年都无人问津,价格还降了不少。
大户型挑选技巧
选大户型不用追求 “越大越好”,优先考虑 90-120㎡三居室,空间够用且不会过度挤压预算;户型要方正、南北通透,客厅和主卧面积尽量充足,保证核心区域的舒适度;预算有限的话,可关注郊区或次新房的大户型,性价比更高,但要避开偏远地段 —— 通勤时间过长会严重影响生活质量。
03 不买三:这三类房子,再便宜也绕路
“买旧买大” 是选房方向,“不买三” 则是避坑红线!以下三类房子,哪怕价格再诱人,也别轻易入手,否则住着糟心,未来还可能 “卖不掉、砸手里”。
第一类:房龄超 20 年的老破小
老破小看似 “低价亲民”,实则是 “烫手山芋”。这类房子房龄长,隐藏问题极多:水管老化漏水、电路短路隐患、墙体开裂渗水,装修改造费用动辄十几万甚至几十万;小区配套陈旧,电梯三天两头故障,维修基金早已耗尽,后续维修还要业主凑钱;物业服务差、环境杂乱,居住体验堪比 “渡劫”。
更关键的是,老破小的流通性极差。现在年轻人买房更看重居住品质,老破小的目标客群越来越少,很多房源挂牌一年,降价几十万都无人问津。朋友曾买过一套 25 年房龄的老破小,入住后光装修就花了 20 万,后来想卖,挂牌半年都没成交,最后只能折价 40 万低价转出,血亏一笔。
第二类:三四线城市的超高层住宅
三四线城市的超高层,听着 “高大上”,实则暗藏诸多隐患。这类城市人口外流明显,住房供过于求,超高层小区后续可能面临 “空心化” 风险;超高层严重依赖电梯,一旦电梯老化,更换成本高达几十万,全靠业主分摊;住户多、人员复杂,安全管理难度大,万一发生火灾、地震等突发情况,逃生难度极大。
老家亲戚买了 30 层的超高层,当初觉得视野好、价格低,入住后才发现:早高峰等电梯要 10 分钟,物业服务敷衍,小区卫生杂乱无章。如今房价跌了 20%,想卖都没人接盘,只能自己硬扛。
第三类:小开发商的期房
当前房地产行业洗牌加剧,连大型房企都有爆雷风险,小开发商的抗风险能力更弱 —— 资金链薄弱、施工管理不规范,稍有市场波动就可能出现资金断裂,导致项目烂尾。
同事 2020 年买了小开发商的期房,宣传图美得像豪宅,结果开发商资金链断裂,工地停工三年,房子至今没影儿。他现在一边还房贷,一边租房住,天天在维权群里奔波,心力交瘁。买小开发商的期房,本质上就是 “赌运气”,一旦赌输,就是 “钱房两空” 的结局。
避坑技巧
选房时先查 “两关键”:一是房龄(超 20 年直接 pass),二是开发商背景(优先选国企、央企或口碑好的品牌房企);实地考察小区环境、物业质量,多向业主打听居住体验;宁可多攒两年钱,也别贪便宜买 “问题房”,稳当才是第一位。
买房是耗费多年积蓄的重大决策,容不得半点马虎!牢记 “买旧买大不买三” 的准则,优先选择现房 / 次新房、适配家庭需求的大户型,坚决避开房龄超 20 年的老破小、三四线超高层和小开发商期房,才能真正实现 “住得舒心、资产稳当”,让买房成为幸福生活的起点,而非糟心的开端!
声明:本文由入驻焦点开放平台的作者撰写,除焦点官方账号外,观点仅代表作者本人,不代表焦点立场。


