政策红利加持,建屋·新棠玥玥系开篇引领园区品质生活新高度
扫描到手机,新闻随时看
扫一扫,用手机看文章
更加方便分享给朋友
近期,江苏省出台了一系列提振消费的惠民政策,其中多项与住房政策相关的利好措施尤为引人关注。政策明确支持有条件的地方允许购房人父母、子女按规定提取住房公积金支付购房首付款,同时提高住房公积金贷款额度、优化贷款条件,并加大租房及住房改善的公积金提取支持力度。这些实实在在的政策红利,无疑为有置业需求的市民提供了更多便利和可能。在这样的政策背景下,园区斜塘板块的建屋·新棠玥项目,以其独特的区位优势和产品品质,正成为众多购房者关注的焦点。
基本信息
建屋·新棠玥,是新建元与苏州恒泰联袂打造的新一代玥系开篇作品。项目位于苏州工业园区独墅湖大道与星塘街交汇处西北侧,占地面积约4万㎡,容积率1.7,建筑密度19.8%。项目规划有11栋13-17层的小高层住宅,户型面积段为165-225㎡的四房三卫设计。
18662309054
区域配套
斜塘这个地方,可以说是苏州工业园区发展的精华所在,汇聚了园区多年发展的经验。从产城融合到人城境业的全面融合,这里已经成为了园区的人居高地,享受着时代红利和配套先行的优势。
项目位于十字交汇的黄金位置,在苏州工业园区"一主两副四片多点"的战略格局下,斜塘交汇于金鸡湖中央商务区、独墅湖科教创新区、高端制造与国际贸易区和苏州工业园区东站副中心之上,享受着更高能级的城市规划,必然汇聚时代潮向与发展力。
周边生活配套非常完善:
自然环境有金鸡湖右岸客厅、独墅湖公园、弥陀泾等
交通出行有独墅湖城市主干道、星塘街,距离约4公里的苏州东站(在建)
教育文化资源有工业园区图书馆、独墅湖文体中心湾国际中心
商业休闲有湖东CBD、奥体中心、邻瑞广场(山姆店)、斜塘老街
品牌价值
建屋·新棠玥由新建元和苏州恒泰两大国企联手打造,可以说是强强联合。
新建元集团是园区成立最早、规模最大的国资企业,以引领产业创新、推动城市繁荣为己任,努力践行"创新改变城市"的核心理念。他们的代表项目有金鸡湖右岸客厅。

苏州恒泰控股集团有限公司是中新合作苏州工业园区直属的大型国有企业,净资产138亿元,资产总规模365亿元。他们在商业地产、产业地产、租赁住房三大主营业务上经验丰富,累计开发各类物业载体760万平方米,已成为园区这些领域重要的载体持有者和运营商。
这两家实力雄厚的国企联手,为项目品质提供了坚实保障。
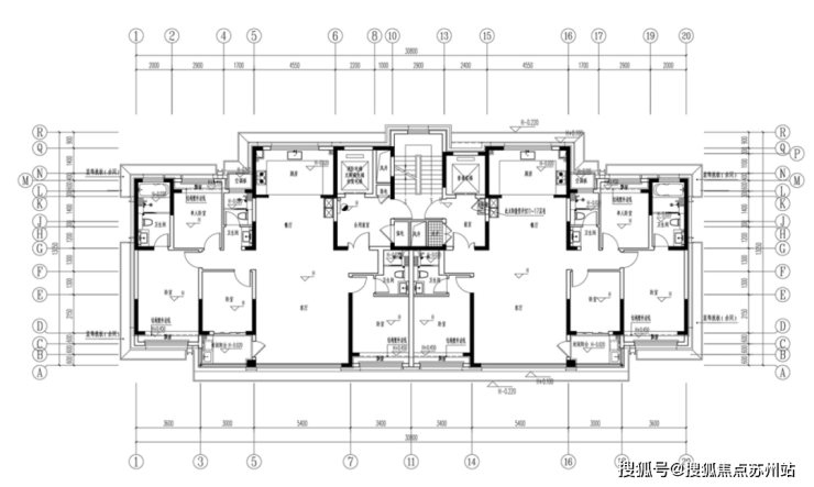
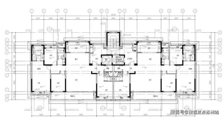
户型鉴赏
建屋·新棠玥的户型设计充分考虑了现代家庭的生活需求,面积段在165-225㎡之间,都是四房三卫的格局,满足大家庭的居住需求。
从户型图可以看出,每个户型都注重空间的合理利用和居住舒适度。比如10#14F小高层标准层,布局合理,动静分区明确;1#17F小高层标准层(建面约175平)和6#16F小高层标准层(建面约215㎡)则更加注重空间的宽敞度和私密性,适合三代同堂或者有更多家庭成员的家庭。


这些户型设计充分考虑了现代人的生活需求,无论是客厅的宽敞度,卧室的私密性,还是厨房的实用性,都体现了设计师对生活细节的把握。
优势分析
建屋·新棠玥最大的优势在于其大师级的团队和独特的产品定位。
项目邀请了多位国际知名设计师联手打造:
建筑设计由宋照青大师操刀,他是日清设计创始人,代表作品有上海新天地、上海中星美华村、华东师范大学丽娃河畔书吧等
景观设计由A&N尚源景观负责
精装设计由Yan Design大研设计担纲
泛光设计由bpi照明设计完成
宋照青大师特别为项目设计了会所,从手稿可以看出,设计理念非常前卫,充分考虑了现代人的审美需求。
项目定位为"玥系开篇",传承苏式人居文脉,塑新时代符号大宅。以"枕河而居,时新境进"为理念,从归家仪式、建筑立面、景观设计、奢美空间、服务营造等高阶人居需求出发,重构人居新境,演绎苏州工业园区人居的新一页。
可以说,建屋·新棠玥不仅是一个居住空间,更是一种生活方式的体现,是人与城市共创的时代符号。
未来已来,选择新棠玥预见美好生活
随着江苏省一系列惠民政策的落地实施,特别是住房公积金政策的优化调整,无疑为购房者提供了更多便利和可能。在这样的政策背景下,建屋·新棠玥凭借其独特的区位优势、完善的生活配套以及大师级的产品设计,未来发展潜力巨大。
斜塘作为苏州工业园区发展的精华所在,在"一主两副四片多点"的战略格局下,将持续享受区域发展红利。而建屋·新棠玥作为新建元与苏州恒泰两大国企联袂打造的高端住宅项目,不仅传承了苏式人居的精髓,更融入了现代生活的理念,必将成为园区人居的新标杆。
选择建屋·新棠玥,不仅是选择一处居所,更是选择一种生活方式,一种对未来生活的美好期待。在这里,您可以预见更加美好的生活,享受政策红利带来的便利,体验园区发展的成果。
如果您对建屋·新棠玥项目感兴趣,欢迎随时咨询: 联系电话:18662309054
声明:本文由入驻焦点开放平台的作者撰写,除焦点官方账号外,观点仅代表作者本人,不代表焦点立场。


