政策东风已至!星合晋墅,抢占双湖低密院墅。
扫描到手机,新闻随时看
扫一扫,用手机看文章
更加方便分享给朋友
当春风拂过湖岸,是时候安放更好的生活了
最近,苏州楼市的春风,真的吹到心坎里了。苏州公积金商转公政策优化,不仅贷款额度涨了,个人最高能贷120万,家庭150万,如果你还是全日制本科以上学历,额度还能再上浮50%!更贴心的是,现在“商转公”可以“以贷冲贷”,不用再辛辛苦苦凑钱还清原来的贷款,直接就能转,月供压力一下子小了不少,钱包也松快了。
这波红利,就像一个温柔的提醒:是时候把对家的向往,提上日程了。当换好房的门槛变得更友好,我们更应该把目光投向那些能承载长久生活的品质居所。今天,就想和你聊聊一个藏在双湖畔的宝藏项目——星合晋墅。
基本信息
这个项目叫星合晋墅,是星合这家专门做高端生活的开发商打造的。他们家的理念是“只定制,不复制”,所以每个项目都是独一无二的。整个小区的容积率只有约1.02,绿化覆盖率却高达约50%,意味着你有一半的生活空间,是被花草树木拥抱的。产品主要是7层的低密洋房和3层的院墅,面积段也很大,洋房大概在230到350平米,院墅更是达到了400到700平米,都是市面上很稀缺的低密大宅,住起来那叫一个舒展。
咨询热线:18662309054
品牌价值
说到开发商星合开发商,在苏州可是个老朋友了。2003年就来了,在园区深耕了二十多年,从高端住宅到奢华酒店,再到潮流商业,样样都做得有声有色。他们不是在盖房子,而是在设计一种国际化的高端生活方式。像苏州晋园别墅、晋合水巷邻里、晋府水巷别墅,还有我们熟知的洲际酒店、凯悦酒店,都是他们的手笔。这份沉淀下来的底蕴,就是苏州高端住宅品质最好的保证。

区域配套
住在星合晋墅,生活就像开了“便捷模式”。孩子上学怎么办?别担心,从华林幼儿园到翰林小学、尹山湖中学,一站式全龄教育,书香氛围从小就拉满了。平时想逛逛买买?山姆会员店、星湖天地、星月坊商业街,吃喝玩乐购,几分钟车程就搞定。生病了也不怕,星海医院、九龙医院、独墅湖医院这些权威医疗资源都在附近,给全家一份安心的守护。出行更是方便,地铁5号线和8号线就在旁边,金鸡湖大道、独墅湖大道和金鸡湖隧道三条黄金主轴,去哪里都高效通达。周末想放松?1.6公里就是金鸡湖高尔夫俱乐部,3公里到独墅湖公园,散步、慢跑、呼吸新鲜空气,收藏一座城市的诗意,就是这么简单。星合晋墅配套的完善,让生活于此无比惬意。项目择址双湖畔,尽享自然与繁华。
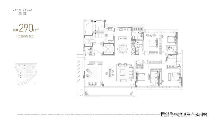
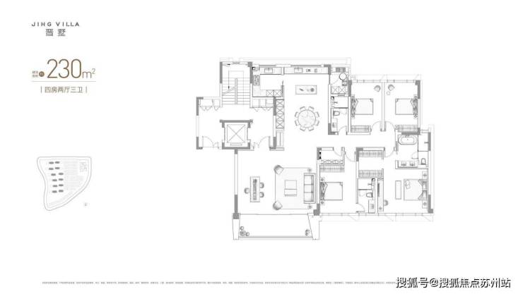
户型鉴赏
房子好不好,看了空间才知道。星合晋墅户型的设计,是从“精神场域构建”到“大宅场景空间”的深度思考,每一寸都藏着对生活的理解。
建面约230㎡-350㎡低密洋房
联排产品



优势分析
除了外部配套的硬核实力,项目内部的“软实力”更是让人心动。约11亩的湖叙SPACE,不只是个会所,更是你的第二会客厅和家庭的社交场。在这里,你可以去泳池畅游几圈,去羽毛球场挥洒汗水,或者在高端健身房里保持最佳状态。朋友来了,家族私宴厅倍儿有面子;周末带娃,亲子阅读室是最好的亲子时光。这不仅仅是一套房子,更是一个圈层的生活范本,是苏州高端楼盘所追求的高品质生活方式的体现。
于此,收藏一座城市的湖光与未来
政策的暖风,让安家苏州的梦想变得更触手可及。而像星合晋墅这样的作品,则让我们看到了梦想最美好的样子。它不仅仅是一处居所,更是对稀缺城市资源的占有,是对高品质生活方式的提前锁定。当低密的土地越来越珍贵,当双湖的板块价值日益凸显,选择这里,就是用更从容的成本,为自己和家人收藏一份看得见的湖光,和一份可期的未来。对于寻求苏州改善型住房的家庭来说,这或许,就是当下最好的选择。
联系方式
心动不如行动,想了解更多详情,可以拨打: 18662309054
声明:本文由入驻焦点开放平台的作者撰写,除焦点官方账号外,观点仅代表作者本人,不代表焦点立场。


