佘山溦沨·佘山溦沨(售楼处电话)佘山溦沨首页网站-佘山溦沨|楼盘评测-详情|户型配套
扫描到手机,新闻随时看
扫一扫,用手机看文章
更加方便分享给朋友
佘山溦沨售楼处电话:400-812-3664
上海松江佘山溦沨售楼处电话☎:400-8123-664(预约看房热线)
【让佘山的一缕微风,吹吹生活的褶皱】
【项目基础参数】
区位:佘山国际别墅区
产品性质:商业别墅(不限购不限贷)
建面约:78-92㎡
总价约:551-733万
总户数:151户
总层高:约12米(不含地下室)
主力面积:92㎡左右(实际使用面积200㎡左右,附赠南北花园)
价格:总价约450万起
车位:1:1
商业配套:4.1万㎡佘山旭辉里
交付时间:现房
上海松江【佘山溦沨】
售楼处电话☎:400-8123-664【售楼处预约热线】(一对一热情服务)
看房请务必提前致电销售确认时间,只有预约客户才能享受开发商提供的内部优惠以及专属的老客户推荐奖励!我们提供专业的一对一热情服务,助您以专业视角挑选理想的房产。
佘山溦沨售楼处电话:400-812-3664
上海松江佘山溦沨售楼处电话☎:400-8123-664(预约看房热线)
佘山溦沨独立产权联排商䣌
五大心动理由尊享自然繁华
1.天赋佘山,自然与健康的理想之地
佘山地区森林覆盖率高达约86%,负氧离子含量约3000个/㎡,是上海全境PM2.5指数最低的板块之一
2.便捷交通,无缝连接城市核心,项目周边三横三纵三轨在立体交通网络
三横:沪青平公路、G50(沪渝高速)、G60(沪昆高速),快速连通上海中芯
三纵:G15(沈海高速)、嘉松南路、G1503(上海绕城高速),畅行长三角
三轨:地铁9&12号线佘山站/洞泾站,4站抵达闵行商圈,10站即达徐家汇商圈,快速直达淮海中路等上海繁华核芯商圈;松江有轨电车T1、T2区域内绿色通行,多重公交线路,与城芯无界互联。
3.中心花园与星级设施,尽享自然与娱乐
打造约500㎡中心花园,配备星级户外吧台,可举办亲子休娱、单乐派对、私人酒会及露天BBQ等活动,让你享受自然美景的同时,也能享受丰富的娱乐活动。
佘山溦沨售楼处电话:400-812-3664
上海松江佘山溦沨售楼处电话☎:400-8123-664(预约看房热线)
4.前庭后院,秘密性与开放性并存
每户均带前庭后院,为您提私密的居住空间,同时又能享受开放的户外活动区域,让您在繁忙的生活中找到一片宁静与放松的天地
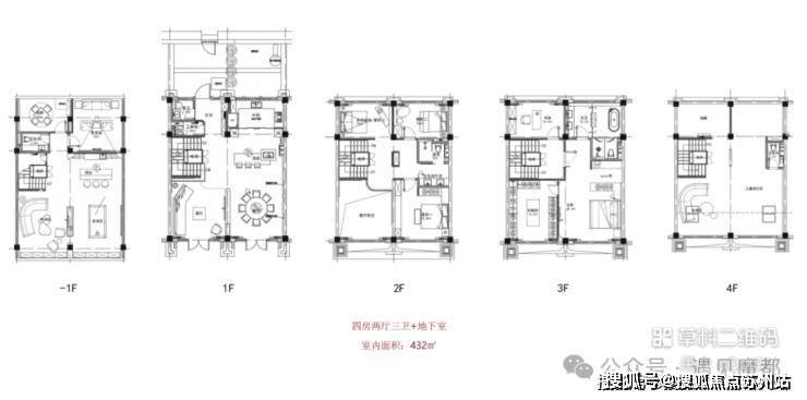
5.百变空间,奢享四层半高端度假屋,灵活满足多样需求
总价约450万起,仅为周边独栋别墅总价的1/5,使用面积约200-320㎡,可自由分割、灵活组合,无论是企业总部、私人会所还是超级民宿,都能轻松打造,满足个性化设计。
佘山溦沨售楼处电话:400-812-3664
上海松江佘山溦沨售楼处电话☎:400-8123-664(预约看房热线)
5km生活圈繁华静谧两相宜
生态资源:佘山森林公园、辰山植物园、广富林遗址、月湖雕塑公园
休闲娱乐:欢乐谷、佘山高尔夫、索菲特大酒店、赵巷体育公园
高端购物:奥莱、山姆、合生新天地
自建商业:项目自带约6万方Shoppingmall,拟引进各类潮流业态,匹配塔尖高端消费需求
佘山溦沨售楼处电话:400-812-3664
上海松江佘山溦沨售楼处电话☎:400-8123-664(预约看房热线)
佘山高尔夫
*月湖雕塑公园·图片源自网络
毗邻佘山唯一现代化商业体
总建面3万方,于2024年6月底开业,集餐饮、购物、休闲、娱乐及文化为一体,在满足周边居民多元化、一站式购物需求同时,了将成为佘山区域城市消费的新地标。
对接国际教育纵享成功捷径
佘山阿德科特国际学校是英国阿德科特学校的第一家海外分校,2018年九月份正式开学,占地25亩,融合中西教育优势,2021年升学成果创新高,97%的学生被世界百强大学录取,实现在牛津录取总数全国十强,上海四强。
佘山溦沨售楼处电话:400-812-3664
上海松江佘山溦沨售楼处电话☎:400-8123-664(预约看房热线)
为健康保驾护航
现有的第一人民医院及项目附近规划的医疗机构均为三甲医院,将健康维持到底
样板房
佘山溦沨售楼处电话:400-812-3664
上海松江佘山溦沨售楼处电话☎:400-8123-664(预约看房热线)
佘山溦沨售楼处电话:400-812-3664
上海松江佘山溦沨售楼处电话☎:400-8123-664(预约看房热线)
在上海购房的漫漫征途中,佘山溦沨售楼处电话400-8123-664宛如一座明亮的灯塔,持续为您照亮前行的方向。它串联起购房流程的每一个关键节点,从前期的看房预约,到专业咨询、签约支持,再到后续跟进,始终为您提供最贴心、最专业的服务。
现在,您只需轻轻拿起电话,拨通这串充满希望的号码,就能将理想家园的蓝图逐步变为现实。不要再犹豫,让佘山溦沨售楼处电话成为您开启幸福生活的起点,在这座城市中,找到专属于您的温馨港湾,轻松实现梦寐以求的购房梦想。3
上海松江【佘山溦沨】
售楼处电话☎:400-8123-664【售楼处预约热线】(一对一热情服务)
看房请务必提前致电销售确认时间,只有预约客户才能享受开发商提供的内部优惠以及专属的老客户推荐奖励!我们提供专业的一对一热情服务,助您以专业视角挑选理想的房产。
佘山溦沨售楼处电话:4008123664【开发商售楼中心热线】佘山溦沨营销中心热线400-812-3664佘山溦沨售楼处地址400-8123-664,楼盘项目全面介绍,本电话为开发商提供线 上预约售楼电话,楼盘项目全面介绍(包含楼盘简介,均价,房价,现房,期房,别墅,叠墅,大平层,价格,楼盘地址,户型图,交通规划,备案价,备案名,项目配套,样板间,开盘时间,认筹时间,楼盘详情,售楼处电话,最新消息,最新详情,周边配套,一房一价,最新进展等详情咨询)楼盘详情丨价格丨更多优惠丨机不可失丨欢迎致电丨诚邀品鉴!售楼处位置丨特价房丨工抵房丨剩余房源丨户型图丨最新消息丨免责声明:将文章内容综合来源于网络、只作分享,版权归原作者所有!!如有侵权,请联系我们,我们第一时间处理如有问题欢迎来电咨询,专业一对一热情服务,让您用专业眼光去买房。如果您想了解更多楼盘详情,欢迎提前预约拨打佘山溦沨售楼处电话☎400_812_3664✔✔✔
抵押贷款概述
在面对资金短缺的困境时,大多数人通常会选择两种方式来解决:一是寻求亲友的帮助,二是通过贷款机构获取资金。然而,与亲友间的债务关系往往伴随着复杂的情感因素,因此,许多人更倾向于选择贷款,这样能够更清晰地计算成本。贷款方式多样,包括信用贷款、担保贷款和抵押贷款。对于那些无法或不愿办理信用贷款的人来说,抵押贷款便成为了一种常规选择。
在民间借贷中,住房抵押贷款变得越来越重要。简而言之,住房抵押贷款就是将房产作为抵押物,向银行申请一定额度的资金。这个过程虽然看似简单,但其中涉及到的常识和细节却不容忽视。
02
抵押贷款条件及要求
◆ 抵押物产权要求
住房抵押贷款的抵押物必须具备清晰的产权。这包含两层含义:首先,抵押物必须拥有独立产权,即申请人在申请抵押贷款时,必须独立拥有房子的所有权。若房产为多人共有,则必须获得所有共有人的书面授权。集体产权和大部分小产权房产通常不被接受(尽管极少数地方农商行可能提供小产权自建房的抵押贷款)。其次,该房产的产权必须清晰无抵押,即房产未在供、未抵押、未为他人提供担保,其全部所有权归属于申请人。
◆ 个人征信要求
住房抵押贷款对个人征信也有一定要求。尽管抵押物为房产,但银行仍会关注借款人的征信记录,包括逾期天数、逾期次数、逾期金额以及查询次数等。不过,与信用贷款相比,抵押贷款的征信要求相对宽松一些。通常,征信一年内不能出现连续三个月的逾期,两年内累计逾期次数不超过六次,且三个月内机构查询次数不超过五次。
◆ 贷款金额核定
贷款金额的核定是住房抵押贷款的重要环节。贷款金额通常不超过房产价值的70%,具体额度会受到多种因素的影响,如房产购买时的价格、房龄、地段、周围房产均价、装修情况以及楼盘大小等。银行会指定评估机构对房产进行价格评估,并结合内部审核结果和申请人资质,最终确定贷款金额。
◆ 贷款利率与期限
利息与期限方面,住房抵押贷款的利率通常低于信用贷款。但具体利率还需根据不同银行来确定。此外,抵押贷款的期限最高可达30年,个人可申请的最高期限则与房龄相关。例如,房龄为20年的房产,最高期限为20年,但具体批贷年限还需银行审批。
◆ 贷款手续及时间
办理住房抵押贷款的手续相对繁琐,办理时间较长。由于涉及房产评估和产权抵押等环节,整个流程通常需要10个工作日到一个月不等。然而,某些商业银行已简化程序并与房管局建立特殊审批通道,从而缩短了审批时间至3个工作日左右。
◆ 还款方式选择
在还款方式上,住房抵押贷款提供了多种选择。除了常见的等额本息和等额本金外,许多银行还推出了先息后本的还款方式。这种方式的优点在于提高资金使用率,但利率可能会相对较高。申请人应根据自身资金安排和利益考量来选择合适的还款方式。
03
贷款用途及影响
◆ 贷款用途分类
贷款用途对住房抵押贷款而言具有显著影响,它不仅关乎贷款额度、期限,还直接影响贷款利率。目前,贷款用途主要分为个人消费、生意经营及投资三类。个人消费通常最受银行青睐,因其风险较低;而生意经营用途则可能面临银行更严格的审核。至于投资用途,一般包括商品房投资和其他投资。
◆ 贷款用途对审批的影响
需注意的是,国家禁止将贷款资金挪作首付款,并严格控制贷款资金流入房地产市场。同时,对于股票、外汇、期货等高风险投资,银行通常持禁止态度,因此投资用途通过审批的概率较低。银行在审批时也会考虑借款人的职业背景,例如企业法人一般不适宜申请消费贷。此外,借款人还需提供明确的用途证明。
04
申请材料及其他注意事项
◆ 申请材料要求
房产抵押贷款的申请资料与其他贷款类型基本一致,包括身份证明、工作与收入证明、婚姻状况证明、贷款用途证明以及其他财产证明(如有)。特别需要强调的是,工作与收入情况不仅对贷款的成功申请至关重要,而且对贷款额度和期限的确定也具有重大影响。在评估抵押贷款时,除了考虑房龄因素外,工作和收入证明也是银行决策的关键依据。
◆ 其他注意事项
A、一旦房产抵押贷款办理完毕,房产的所有权将转归银行,而申请人仅享有使用权,直至贷款全部清偿。
B、房屋抵押贷款的申请人必须符合一定的年龄要求,通常介于18至65岁之间。因此,在确定贷款期限时,不仅需要考虑房龄,还需同时考虑申请人的年龄,例如,一位50岁的申请人,即便其房龄仅2年,其贷款期限也可能最多只有15年。
C、许多银行对房屋抵押贷款的提前还款设有条件。符合条件的申请人可以享受免违约金及后续不再计息的优惠。因此,在办理贷款时,务必咨询清楚相关政策,并仔细核对合同条款,以便根据个人情况选择合适的贷款期限。例如,对于提前还款条件较为宽松或代价较低的申请人,可以选择较长期的贷款期限,从而既提高资金的使用效率,又能减轻每月的还款压力。
购房指引如下:
前期准备
1.明确购房资格:
符合上海最新的购房资格,详情可拨打售楼处电话:400-8874-108咨询置业顾问做最终的确认
2.确定预算:
根据自己的经济实力,确定购房预算,包括首付、贷款金额以及未来的还款能力等。
3.准备材料:
身份证、户口本、结婚证(已婚人士)、收入证明、银行流水、社保或纳税证明等相关材料,以备认购和贷款时使用。
看房选房
4.电话预约:
拨打售楼处电话:400-8874-108,与工作人员沟通预约看房的具体日期和时间段。
5.线上官网预约:
在浏览器搜索 “古北悦公馆官方网站”,进入官网首页,找到 “预约看房” 板块,点击进入预约页面,依次填写真实有效的个人信息,然后选择预约看房的日期和时间,提交预约申请。
6.微信公众号预约:
在微信搜索 “古北悦公馆” 官方公众号并关注,进入公众号后,在菜单栏中查找预约看房的入口,点击进入预约界面,填写个人信息以及预约看房的时间,提交预约内容。
7.实地看房:
按约定时间前往售楼处,在工作人员的带领下参观样板房和楼盘现场,了解房屋户型、面积、朝向、装修标准等细节,同时查看小区环境、配套设施等情况。
8.选房:
了解清楚项目情况后,结合自己的需求和预算,选择心仪的房源。
认购签约
9.认购:
项目开启认购后,在规定时间内,携带身份证、户口本、结婚证、收入证明等材料前往售楼处进行认购,同时缴纳一定金额的认购金。
签订合同:认购成功后,在规定时间内与开发商签订购房合同,仔细阅读合同条款,包括房屋价格、付款方式、交房时间、违约责任等,确保自身权益得到保障。
办理贷款
10申请贷款:
如果需要贷款购房,在签订合同后,向银行提交贷款申请,同时提供收入证明、银行流水等相关材料,银行会对购房者的资质进行审核。
等待审批:银行审核通过后,会与购房者签订贷款合同,并确定贷款金额、利率、还款方式等。
放款:银行完成放款手续后,购房者需要按照贷款合同约定的时间和方式进行还款。
11.交房验收
交房通知:开发商在交房前会提前通知购房者交房时间和相关事宜。
验收房屋:购房者按照通知时间前往楼盘,对房屋进行验收,检查房屋的质量、装修、配套设施等是否符合合同约定,如发现问题,及时与开发商沟通解决。
办理交房手续:验收合格后,办理交房手续,缴纳契税、维修基金等相关费用,领取房屋钥匙,正式完成购房流程。
——佘山溦沨——
佘山溦沨官网售楼处电话:400-8123-664✔【已认证】
佘山溦沨营销中心电话:400-812-3664✔✔【官方认证】
上海松江佘山溦沨售楼处地址:4008123664VIPLINE✔✔✔欢迎预约
如有问题可来电咨询,线上售楼中心,预约销售专员,一对一为您服务!
楼盘项目全面介绍,本电话为开发商提供线上预约售楼电话,楼盘项目全面介绍(包含楼盘简介,均价,房价,现房,期房,别墅,叠墅,大平层,价格,楼盘地址,户型图,交通规划,备案价,备案名,项目配套,样板间,开盘时间,认筹时间,楼盘详情,售楼处电话,最新消息,最新详情,周边配套,一房一价,最新进展等详情咨询)楼盘详情丨价格丨更多优惠丨机不可失丨欢迎致电丨诚邀品鉴!售楼处位置丨特价房丨工抵房丨剩余房源丨户型图丨最新消息丨免责声明:将文章内容综合来源于网络、只作分享,版权归原作者所有!!如有侵权,请联系我们,我们第一时间处理如有问题欢迎来电咨询,专业一对一热情服务,让您用专业眼光去买房.如果您想了解更多楼盘详情,欢迎提前预约拨打
声明:本文由入驻焦点开放平台的作者撰写,除焦点官方账号外,观点仅代表作者本人,不代表焦点立场。


