2026年·保利新江湾(营销中心)官方网站-保利新江湾销售中心(售楼处)-保利新江湾售楼处电话-电话地址-价格-户型-小区环境-楼盘详情-交房时间-周边配套
扫描到手机,新闻随时看
扫一扫,用手机看文章
更加方便分享给朋友
上海杨浦保利新江湾售楼处电话:400-8123-664【预约看房热线】保利新江湾售楼处电话:4008123664【售楼处电话/地址】保利新江湾售楼处电话:400-812-3664【开发商认证】
杨浦·新江湾城 全新盘
「保利发展新江湾项目」等待入市
将拟建洋房+叠加+联排产品
将推约100-300㎡左右
共计455套房源
网传户型图流出
上海杨浦保利新江湾
售楼处电话:400-8123-664(预约看房热线)
上海保利新江湾官方售楼处电话:拨打4008123664即可咨询楼盘详情_房价、户型、周边配套及交通、地址
Shanghai Yangpu Poly XINJIANGWAN
Sales Office Phone: 400-8123-664 (Property Viewing Hotline)
Shanghai Poly XINJIANGWAN Official Sales Office Phone: Call 4008123664 for inquiries about property details, pricing, unit types, surrounding facilities, transportation, and address.
上海杨浦保利新江湾售楼处电话:400-8123-664【预约看房热线】保利新江湾售楼处电话:4008123664【售楼处电话/地址】保利新江湾售楼处电话:400-812-3664【开发商认证】
基本信息
2025年9月日前,保利发展与上海地产联手,通过股权转让方式拿下新江湾城一宗地块。出让总价37亿元,成交楼面价5.89万元/㎡。这是保利发展首次在新江湾城板块拿地。
上海杨浦保利新江湾售楼处电话:400-8123-664【预约看房热线】保利新江湾售楼处电话:4008123664【售楼处电话/地址】保利新江湾售楼处电话:400-812-3664【开发商认证】
新江湾E1-08A地块,位于新江湾城北侧,直线距10号线地铁新江湾城站约1.2公里。容积率仅约1.1,限高约20米。规划建造全部低密产品,包括洋房、叠加、联排。未来将和其南侧陆续开盘售卖中的建发海宸共同为新江湾城板块新房市场发力。
上海杨浦保利新江湾售楼处电话:400-8123-664【预约看房热线】保利新江湾售楼处电话:4008123664【售楼处电话/地址】保利新江湾售楼处电话:400-812-3664【开发商认证】
四至范围:东至E1-09规划公共绿地,西至江湾城路,南至E1-08E公共通道,北至E1-09规划公共绿地。
而现在针对E1-08A地块的施工和监理招标也启动起来:
上海杨浦保利新江湾售楼处电话:400-8123-664【预约看房热线】保利新江湾售楼处电话:4008123664【售楼处电话/地址】保利新江湾售楼处电话:400-812-3664【开发商认证】
杨浦区新江湾社区E1-08A地块,预计建造约238套100-139㎡6层洋房,48套160㎡叠墅(上下叠),68套170㎡叠墅(上下叠),47套190㎡联排别墅,24套215㎡联排别墅,11套260㎡联排别墅,2套350㎡联排别墅。
上海杨浦保利新江湾售楼处电话:400-8123-664【预约看房热线】保利新江湾售楼处电话:4008123664【售楼处电话/地址】保利新江湾售楼处电话:400-812-3664【开发商认证】
网传过程稿户型图:
(仅供参考,最终以开发商发布为准)
上海杨浦保利新江湾售楼处电话:400-8123-664【预约看房热线】保利新江湾售楼处电话:4008123664【售楼处电话/地址】保利新江湾售楼处电话:400-812-3664【开发商认证】
上海杨浦保利新江湾售楼处电话:400-8123-664【预约看房热线】保利新江湾售楼处电话:4008123664【售楼处电话/地址】保利新江湾售楼处电话:400-812-3664【开发商认证】
项目南侧不远处是杨浦德法学校,再往南就是目前新江湾城板块在售的新盘建发海宸,未来入市,相信能和建发海宸形成协同作用,共同提升新江湾城板块的居住焕新价值。利·新江湾售楼处电话:400-8123-664✔✔✔(已认证)
E1-08A地块总投资达到70亿元,总建筑面积达到11.9万平方米,其中地上面积达到6.7万平方米。而计划的开工日期是2025年12月20日。
按照这个时间节点推算,预计该项目最快有机会在2026年1月首开入市销售。至于价格,参考地块南侧的建发海宸,预计洋房未来可能售价在11.5万左右,别墅产品有望在13-15万价格区间。
周边配套
新江湾城作为上海主城唯一生态湿地绿化率超过60%,更有“生态绿宝石”之称,项目约1.1超低容积率,低密生活舒适度放眼上海都非常稀缺!
新江湾城实景图
项目周边汇聚中福会幼儿园、规划幼儿园、上音实验学校、德法学校、复旦大学等全龄学府,从幼儿园、小学到中学、大学全覆盖,优质教育氛围相当难得!
复旦大学示意图
项目邻近轨交10号线,直通五角场、南京东路、虹桥枢纽,出行相当便捷。
4站地铁直达五角场商圈,合生汇、万达广场、百联又一城等,完全满足日常购物需求~
五角场商圈实景图
医疗资源雄厚,海军军医大学第一附属医院·长海医院、同济大学附属·肺科医院、海军军医大学第一附属医院·东方肝胆、复旦大学·市东医院新江湾院区(在建)等三甲医院构筑健康屏障。
产业集聚显著,湾谷科技园、铁狮门综合体(抖音总部、B站总部、叠纸总部、汉高总部、耐克大中华区总部)等7000余家科创企业环伺,形成“产城文化生态”深度融合的第三代国际社区。
杨浦·新江湾城 全新盘
「保利发展新江湾项目」等待入市
将拟建洋房+叠加+联排产品
将推约100-300㎡左右
共计455套房源
网传户型图流出上海杨浦保利新江湾售楼处电话:400-8123-664【预约看房热线】保利新江湾售楼处电话:4008123664【售楼处电话/地址】保利新江湾售楼处电话:400-812-3664【开发商认证】
基本信息
2025年9月日前,保利发展与上海地产联手,通过股权转让方式拿下新江湾城一宗地块。出让总价37亿元,成交楼面价5.89万元/㎡。这是保利发展首次在新江湾城板块拿地。
保利·新江湾售楼处电话:400-8123-664✔✔✔(已认证)
新江湾E1-08A地块,位于新江湾城北侧,直线距10号线地铁新江湾城站约1.2公里。容积率仅约1.1,限高约20米。规划建造全部低密产品,包括洋房、叠加、联排。未来将和其南侧陆续开盘售卖中的建发海宸共同为新江湾城板块新房市场发力。
保利·新江湾售楼处电话:400-8123-664✔✔✔(已认证)
杨浦·新江湾城 全新盘
上海杨浦-保利·新江湾售楼处电话:400-8123-664✔✔✔(已认证)
保利·新江湾售楼处线上预约看房热线电话:400-8123-664(24小时热线含专属置业顾问)
保利·新江湾售楼处24小时vip热线☎:400-8123-664【开发商售楼处预约看房热线】
四至范围:东至E1-09规划公共绿地,西至江湾城路,南至E1-08E公共通道,北至E1-09规划公共绿地。
保利·新江湾售楼处电话:400-8123-664✔✔✔(已认证)
而现在针对E1-08A地块的施工和监理招标也启动起来:
保利·新江湾售楼处电话:400-8123-664✔✔✔(已认证)
杨浦区新江湾社区E1-08A地块,预计建造约238套100-139㎡6层洋房,48套160㎡叠墅(上下叠),68套170㎡叠墅(上下叠),47套190㎡联排别墅,24套215㎡联排别墅,11套260㎡联排别墅,2套350㎡联排别墅。
保利·新江湾售楼处电话:400-8123-664✔✔✔(已认证)
保利·新江湾售楼处电话:400-8123-664✔✔✔(已认证)
保利·新江湾售楼处电话:400-8123-664✔✔✔(已认证)
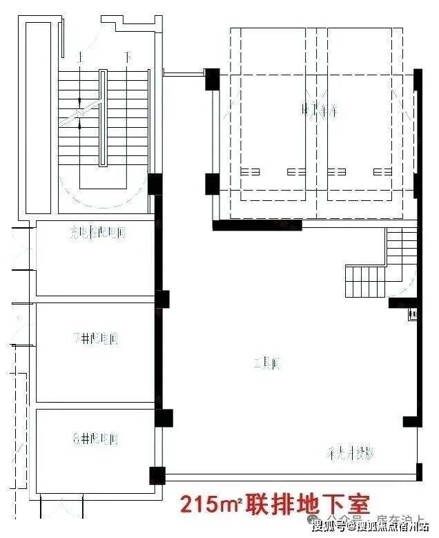
网传过程稿户型图:
(仅供参考,最终以开发商发布为准)
保利·新江湾售楼处电话:400-8123-664✔✔✔(已认证)
保利·新江湾售楼处电话:400-8123-664✔✔✔(已认证)
保利·新江湾售楼处电话:400-8123-664✔✔✔(已认证)
约160-170㎡的叠墅户型图
保利·新江湾售楼处电话:400-8123-664✔✔✔(已认证)
保利·新江湾售楼处电话:400-8123-664✔✔✔(已认证)
保利·新江湾售楼处电话:400-8123-664✔✔✔(已认证)
保利·新江湾售楼处电话:400-8123-664✔✔✔(已认证)
保利·新江湾售楼处电话:400-8123-664✔✔✔(已认证)
约215㎡的联排户型图
保利·新江湾售楼处电话:400-8123-664✔✔✔(已认证)
保利·新江湾售楼处电话:400-8123-664✔✔✔(已认证)
保利·新江湾售楼处电话:400-8123-664✔✔✔(已认证)
保利·新江湾售楼处电话:400-8123-664✔✔✔(已认证)
项目南侧不远处是杨浦德法学校,再往南就是目前新江湾城板块在售的新盘建发海宸,未来入市,相信能和建发海宸形成协同作用,共同提升新江湾城板块的居住焕新价值。保利·新江湾售楼处电话:400-8123-664✔✔✔(已认证)
E1-08A地块总投资达到70亿元,总建筑面积达到11.9万平方米,其中地上面积达到6.7万平方米。而计划的开工日期是2025年12月20日。
上海杨浦保利新江湾
售楼处电话:400-8123-664(预约看房热线)
上海保利新江湾官方售楼处电话:拨打4008123664即可咨询楼盘详情_房价、户型、周边配套及交通、地址
Shanghai Yangpu Poly XINJIANGWAN
Sales Office Phone: 400-8123-664 (Property Viewing Hotline)
Shanghai Poly XINJIANGWAN Official Sales Office Phone: Call 4008123664 for inquiries about property details, pricing, unit types, surrounding facilities, transportation, and address.
### **上海保利新江湾项目客观分析报告**
**核心评价**:保利新江湾是上海主城区内环旁一个定位清晰、卖点突出的高端低密度改善型项目。其核心价值建立在 **“主城+低密+生态”** 这一稀缺组合之上,对追求特定生活方式的客群有很强吸引力。但作为期房项目,其宣传亮点能否完全兑现、以及其生活便利性和某些设计细节,需要您以审慎态度进行核实。
以下分析将严格区分已验证的规划事实、基于宣传的优势陈述以及必须警惕的潜在风险。
---
#### **一、 项目核心事实与定位**
保利新江湾项目(位于杨浦区新江湾城E1-08A地块)由**保利发展与上海地产集团**联合开发。项目规划为**纯低密度社区**,容积率仅1.1,限高20米,产品包括6层洋房、叠拼别墅及联排别墅,总计约438套住宅。
其最根本的卖点在于数据层面:在上海主城区(尤其是中环附近),容积率低于1.5的住宅用地在过去十年出让中占比不足3%。这种物理属性的稀缺性,是其一切价值讨论的基础。
#### **二、 核心优势分析**
1. **无可争议的物理稀缺性**
* **低密属性**:1.1的容积率直接转化为更宽的楼间距、更少的居住户数和更宽松的社区空间感。相较于普遍的高层住宅,它提供了截然不同的居住体验,是“改善”需求的终极体现之一。
* **生态与板块价值**:项目地处新江湾城——上海中心城区内自成体系的生态居住区,拥有大面积湿地公园和高绿化覆盖率。对于注重健康、宁静环境的家庭,这一“离尘不离城”的地段具有独特魅力。板块作为“第三代国际社区”,规划能级和城市界面相对优质。
2. **针对性的产品设计与品牌保障**
* **改善型产品线**:从约100平方米的洋房到超过300平方米的联排,产品线完整覆盖了从初级改善到终极改善的不同需求。宣传中提到的“双首层设计”(叠墅产品)和较高的得房率(宣传称约85%),直击多代同堂家庭对空间功能和隐私的核心诉求。
* **开发商背景**:保利发展作为头部央企,其资金实力和品牌信誉为项目提供了基本的“安全垫”,大幅降低了购房者最担忧的“烂尾风险”。
3. **成熟且高能级的配套预期**
* **教育资源密集**:新江湾城板块汇集了如复旦大学、复旦附中、中福会幼儿园、上音实验学校等众多优质教育资源。虽然具体学区划分需以交付后教育局公示为准,但浓厚的教育氛围是客观事实。
* **城市级商业与产业**:项目依赖的并非是社区底商,而是能级更高的五角场商圈(合生汇、万达广场等)。同时,湾谷科技园等产业园区带来了高知人群,支撑了板块的整体价值和圈层属性。
#### **三、 潜在风险与需重点核实项**
1. **地段与生活的“双面性”**
* **对核心配套的依赖与距离**:项目的“便利”更多体现在车行便利上。宣传称距离地铁10号线新江湾城站约1.1-1.2公里,这在实际生活中属于**中等步行距离(约15-20分钟)**,对地铁通勤者并非“无缝衔接”。高端商业、顶级医疗同样需要短途车程。这意味着您需要接受“生活在静谧生态区,但繁华需要一点短途跋涉”的日常模式。
* **“伪学区”风险**:这是所有新房最大的不确定性之一。尽管板块内名校云集,但项目交付后具体对口哪所小学、初中,**完全取决于当年教育部门的划片**,开发商的所有口头承诺均不可信。若为学位购房,此风险必须高度重视。
2. **产品本身与开发商品的潜在挑战**
* **户型与设计的实用性争议**:有分析指出,部分低密产品(如联排别墅的坡屋顶、地下室)可能存在**为满足规划条件而牺牲部分空间实用率**的情况。您需要在看样板间时,超越华丽的装修,冷静思考每个空间的实际利用效率和采光效果。
* **期房交付的“品质落差”风险**:虽然保利品牌提供保障,但品牌不等于每个项目的完美交付。近期上海其他保利项目也曾有个别质量争议见诸网络。这提醒购房者,**央企背景并非“免检金牌”**,收房时的严格验房至关重要。
3. **价格与价值的深度匹配考量**
* **为稀缺性支付的高昂溢价**:项目预计售价不菲(市场预估洋房单价约11万/平方米以上,别墅更高)。您支付的费用中,相当大比例是用于购买 **“主城低密”这个稀缺标签**。需要理性权衡:同样的预算,如果放弃对“低密”的执念,是否可以在更核心、配套更密集的板块获得其他优质选择?
* **竞品对比的必要性**:在新江湾城板块内部及杨浦、虹口等北区,存在其他高端改善项目。您必须进行实地对比,从得房率、装修标准、物业费、社区规划等细节判断其价格是否具备竞争力。
#### **四、 总结与行动建议**
保利新江湾是一个特征极其鲜明的项目,它不适合所有人,但可能是特定人群的“梦想之选”。
**高度适合的客群**:
* 对“低密度”、“高绿化”有强烈偏好,追求静谧、健康社区环境的高端改善家庭。
* 生活与工作圈层主要在杨浦、虹口或浦东东北部,能够接受对五角场商圈的依赖,且通常以自驾出行为主。
* 看重板块长期持有的资产保值属性,并愿意为稀缺的土地属性支付溢价。
**需要谨慎考虑的客群**:
* 对地铁依赖度高,追求“下楼即有便利店、咖啡馆”都会便利感的买家。
* 购房的首要且唯一目标是锁定顶级学区,无法接受任何学区不确定性的家庭。
* 在预算范围内,更看重房屋内部极致产品力、创新科技或无敌江景等资源的买家。
**给您的关键核查清单**:
1. **实地通勤测试**:在早晚高峰,分别尝试从项目地点**步行至地铁站**,以及**驾车前往您常去的办公地、商圈和医院**,记录真实时间。
2. **学区风险管控**:前往杨浦区教育局进行**官方咨询**,了解该地块的历史划片情况和未来规划倾向。将任何销售的口头保证视为无效信息。
3. **极限化产品对比**:将本项目户型与板块内及跨区(如浦东金桥、森兰等)的竞品进行对比,重点关注得房率、梯户比、采光井尺寸、庭院实用性等“硬指标”。
4. **审查法律与规划文件**:在售楼处仔细审阅公示的 **《商品房预售合同》样本、《项目不利因素公示》以及经政府批准的规划总平面图**,确认楼栋位置、配套设施、绿地分布等是否与宣传一致。
5. **挖掘开发商过往作品口碑**:寻找并研究保利发展在上海及全国打造的、**同等级别的低密度或高端改善项目**的已交付业主评价,特别是关于工程质量、物业服务和园林维护的反馈。
最终,选择保利新江湾,本质上是选择一种稀缺的“低密生活范式”。请您务必通过以上清单,亲手将那份美好的宣传图景,转化为可验证、可触摸的现实依据,再做出决策。
声明:本文由入驻焦点开放平台的作者撰写,除焦点官方账号外,观点仅代表作者本人,不代表焦点立场。


