苏州「拙政江南别墅」 拙政原址·56席院墅藏品·千平中国大宅平江属春秋时期伍子胥的手笔,已有着2500年的历史,是苏州迄今保存最完整、规模最大的历史街区,堪称苏州古城的缩影。周边直线1km内有27个公交站,距…
苏州「拙政江南别墅」
拙政原址·56席院墅藏品·千平中国大宅
拙政江南别墅售楼热线:18662309054(同微信)
提前预约销售人员,专业一对一热情服务,让您用专业眼光去买房!



拙政江南别墅售楼热线:18662309054(同微信)


【拙政江南别墅详情】
面积:797-1064-1309平
价格:4000万起(部分房源已售罄,更多详情提前预约售楼处详谈)
占地面积:37909.1㎡
建筑面积:22744.83㎡
容积率:0.60
绿化率:30%
停车位:189(地上1个车位、地下车位188个)
楼栋总数:13栋
总户数:56户
物业公司:中铁建物业
物业费:9.8元/㎡·月
一栋一定制 传世中式院墅
57亩藏品级土地上,超低容积率0.6
仅56席传世院墅,全球华人的珍贵收藏
建筑面积约700-2480㎡千平中国大宅
曹林娣、蒋愈、陆耀祖、邱德光等四位
大师联袂,精琢一方传世藏品院墅
臻贵城脉 自古繁华之地
平江历史街区——比邻于中国zui古老的街区
平江属春秋时期伍子胥的手笔,已有着2500年的历史,是苏州迄今保存最完整、规模最大的历史街区,堪称苏州古城的缩影。
中铁建拙政江南:4009983632

▲苏州拙政园·鸟瞰图(左上角为苏州博物馆)
【精奢商业】
周边商业广场——蕴藏姑苏文明的城市地标
项目周边比邻一个高端生活方式及奢侈品交相辉映的城市地标综合体,汇集了历史人文、艺术科技、顶级潮奢、珍馐饕餮的多维高端配套,将于今年对外亮相。


拙政江南·实景图
【藏品地段】
文物级地脉 500载拙政原址
拙政江南所在土地,即为拙政北园旧址
古城核芯原始级土地,距离拙政园仅6米
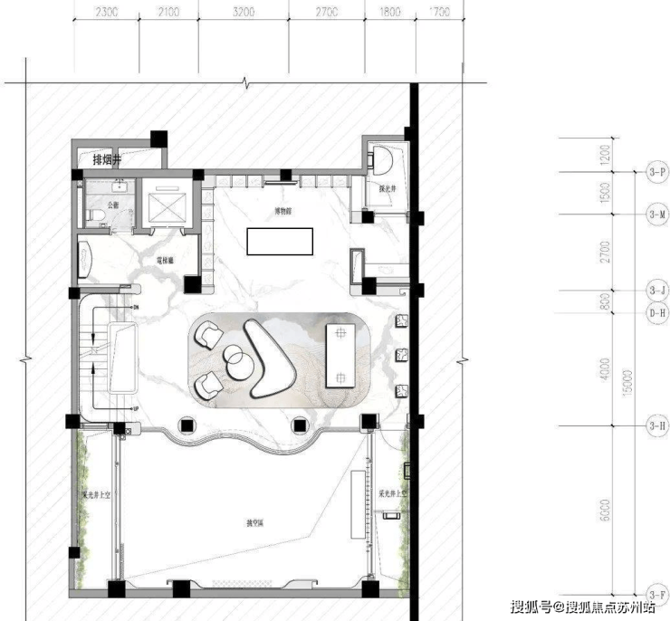
户型鉴赏:

1F平面图

2F平面图

B1平面图

B2平面图


拙政江南周边配套
周边直线3km范围内有14个地铁站(北寺塔、察院场、苏州火车站、平河路、临顿路、相门、乐桥、山塘街、苏锦、养育巷
平泷路东、东环路、石路、三元坊),轨道交通发达,距离最近的地铁站是北寺塔。
周边直线1km内有27个公交站,距离最近的齐门站仅有305m,周边公共交通极为便捷。
直线3km范围内有43个幼儿园;
29个小学,如苏州市敬文实验小学校、东中市实验小学校、平江实验学校小学部、苏州市善耕教育集团勤惜实验小学校、平直实验小学等;
28个中学,如江苏省苏州外国语高级中学校、江苏省苏州艺术高级中学、江苏省苏州第一中学、
苏州工业园区星港学校(东港校区)、苏州市第三中学等。
拙政江南别墅售楼热线:18662309054(同微信)
【物业服务】
【世界姑苏 中国抱拙】
以56座传世院子,为56位抱拙人物
项目成立【抱拙荟】圈层生活平台
汇聚一个具有时代影响力的中国圈子

邱德光手绘草图








B2休闲区



三山五岳,百洞千壑,覼缕簇缩。具象与抽象,由内而外。










2F主卧




苏州「拙政江南别墅」
拙政江南别墅售楼热线:18662309054(同微信)