苏州新房|姑苏区改善盘|润鸿四季|润鸿四季怎么样?|立达中学旁|一山一湖一河|华发华润|价格户型位置
扫描到手机,新闻随时看
扫一扫,用手机看文章
更加方便分享给朋友
当时代的暖风,吹进家的窗扉
最近想苏州买房的朋友,好消息来了!从12月1号开始,苏州契税政策有了新调整,买房的成本又降了一截。简单来说,140平以内的房子,不管首套二套,契税都只要1%;140平以上的,首套1.5%,二套2%。这可是实打实的真金白银优惠,让安家的梦想又近了一步。
当政策的东风吹来,一个值得把握的好房子就显得尤为重要。今天,就带大家看看一个在姑苏区新盘等待了八年的“宝藏”楼盘——润鸿四季。
基本信息
想在姑苏区安个家?可以看看这个叫“润鸿四季”的新盘。它是由华发华润这两家实力雄厚的开发商联手打造的,品质有保障。
项目主打的是小高层和高层产品,面积段做得很大气,有约143㎡和182㎡两种选择,都是苏州改善房家庭会喜欢的尺度。而且是精装修交付,还贴心地包含了空调、新风、地暖这“三大件”,省心又省力。
车位配比做到了1:2.15,非常充足,以后家里有两辆车也不用担心没地方停。物业也是口碑很好的华润物业,未来的居住体验值得期待。
位置就在姑苏区核心地段宝带西路南、福运路西,离地铁3号线新郭站向西走350米就到了,出门就是地铁,通勤简直不要太方便。目前备案均价是38000元/㎡。
区域配套
住在这里,润鸿四季周边配套完全不用愁。交通上,除了家门口的地铁3号线,还有友新快速路、苏福快速路,不管是去园区、新区还是吴江,都四通八达。
平时想逛街购物,世茂生活广场、万达广场、龙湖天街这些大型商场都在周边,选择特别丰富。家里老人小孩有个头疼脑热,苏州市中医医院也在附近,看病就医很安心。
更难得的是这里的生态环境,简直是住在公园里。项目1.5公里范围内,竟然同时拥有上方山、石湖和270°环京杭运河景观。在苏州,这种集“一山一湖一河”于一体的绝版资源,真的太罕见了。
✔一山:上方山国家森林公园 家门口的“天然氧吧”,占地500公顷,森林覆盖率超过95%,周末带孩子去爬爬山,呼吸新鲜空气,别提多惬意了。
品牌价值
你知道吗?沧浪新城已经整整8年没有新楼盘供应了,润鸿四季是这里唯一的“独苗”。这块地当初拍卖的时候,吸引了十多家开发商争抢,经过31轮激烈竞价才进入线下摇号,它的价值可想而知,天生就是“红盘”的命。
对于有孩子的家庭来说,这里的书香氛围更是让人心动。润鸿四季紧邻立达中学和沧浪新城第四实验小学,是名副其实的姑苏区学区房。立达中学可是苏州的头部名校,前身是苏州中学,2022年四星高中达线率高达70%,教育资源非常过硬。旁边还有杭鸣时粉画艺术馆,平时散散步就能接受艺术熏陶,生活品位都提升了。
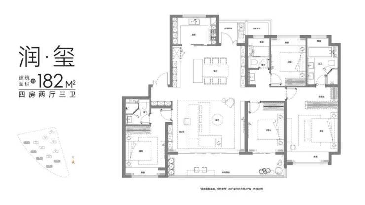
户型鉴赏
最后,我们来看看润鸿四季户型。项目主打两个户型,建面约143㎡和182㎡,空间设计都相当出色,兼顾了舒适度和功能性。
优势分析
总的来说,润鸿四季的优势非常突出:
首先是地段稀缺,姑苏区核心地段,八年断供后的唯一新品,收藏价值很高。
其次是配套成熟,地铁、商业、医疗、公园一应俱全,润鸿四季周边配套生活便利度满分。
再者是品牌保障,华发华润,双央企联手,无论是建筑品质还是后期物业服务,都让人放心。
最后是人文底蕴,名校环伺,艺术馆为邻,给孩子一个充满书香和艺术气息的成长环境。
安家于此,静待时光里的繁花盛开
趁着苏州契税政策利好的窗口期,入手一套像润鸿四季这样,占据城市核心稀缺资源、又有强大品牌和优质学区加持的房子,不仅仅是省下了一笔契税那么简单。它更像是一张通往未来高品质生活的门票,是为家庭资产和幸福生活上的一道坚实保险。在这里,你拥有的不只是一套房子,更是一种被公园、人文和便捷所包裹的理想生活方式。
心动不如行动,想了解更多详情,可以拨打售楼处电话: 18662309054
声明:本文由入驻焦点开放平台的作者撰写,除焦点官方账号外,观点仅代表作者本人,不代表焦点立场。


