大华梧桐院(售楼处)首页网站-大华梧桐院售楼处欢迎您-大华梧桐院楼盘详情-户型配套-最新价格-最新资讯-售楼处位置
扫描到手机,新闻随时看
扫一扫,用手机看文章
更加方便分享给朋友
「大华梧桐院」
「大华梧桐院」营销中心热线:400-8783-873☎☎
在售户型图丨项目介绍丨最新房源丨周边配套丨详细解答〢⭐◆开发商营销中心诚挚邀请,一键预约,尊享内部折扣!匠心独运的精品项目,恭候您的品鉴与选择。⭐✅ 过来参观样板房烦请记得提前来电预约!✅ 为您安排楼盘现场销售全程接待并讲解,给您更贴心的看房体验!这是一个从城市站位、规划能级、生态环境、配套资源、社区产品等全方位领先的新房项目,超高性价比的价格买入!
中环旁准现房「大华梧桐院」少量建面约139-142㎡叠加别墅、158-165㎡联排别墅热销中,均价9.18万/m²!容积率仅约0.75!真正的限量版、藏品级纯别墅,错过不再!
感兴趣的小伙伴们可以预约哟~
大华·梧桐院由27栋联排和4栋叠拼组成,总规划可售户数141户,容积率仅约0.75。
社区整体设计借鉴江南园林建筑的设计理念,确保每一栋建筑都能拥抱充足的阳光与四季更迭的景致,同时梧桐院之名也寄托了凤栖梧桐的美好寓意。
实景图
项目品质也十分耐打,立面主体采用素白色花岗岩石材和相同效果的仿石漆,搭配金属线条勾勒,营造出简约而不失高端的建筑风格。
实景图
项目以行列式布局,形成多个独立的居住组团和围合的景观空间,辅以景观隔离,打造“巷陌深深”的居住体验感,层层递进的空间序列,营造坊巷生活的江南人文邸院。
示意图(非交付标准)
碧梧、花影、秋月、玉阶、闲庭”五大院落设计,通过景观轴线串联,演绎优雅别致、移步异景的雅居格调。
示意图(非交付标准)
另外,精装地下车库做了时下流行的星空顶设计,显得非常现代精致,部分联排也是直通地库。
示意图(非交付标准)
产品方面,大华·梧桐院共有联排和叠墅两种产品,总价预计1200-1600万左右。
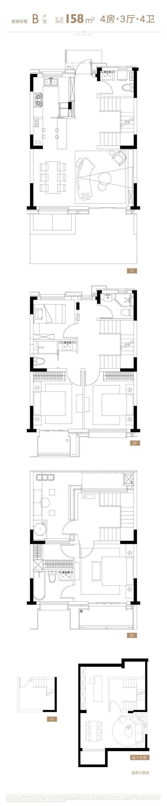
联排别墅主打约158-165㎡地上三层产品,带露台和相对独立的使用景观分区。
4层叠墅分为上/下叠,上叠建筑面积约139㎡,下叠建筑面积约142㎡,均为4房设计。
“4层叠墅+纯4房”的叠墅产品,无论是从产品形态、还是户型尺度等方面,都堪称同面积段的六边形战士,主力总价约1200万级。
目前,项目开放了三个样板间可供参观,分别为建面约139㎡的上叠、建面约142㎡的下叠以及建面约165㎡的联排。
样板房照片如下:
样板房实景图
样板房实景图
除了便捷的交通之外,大华·梧桐院周边也坐拥相当成熟的高能级配套。
商业方面:项目周边荟萃超过150万㎡商业配套,除了紧邻的大华时光里和宝山日月光之外,还有大宁音乐广场、大宁久光、大宁国际广场、静安大融城等,提供了丰富多彩的购物、娱乐和休闲选择。
大宁久光实景图,仅供参考
在教育和医疗资源方面,项目周边同样拥有丰富的选择。
教育方面:项目周边约1.3公里内拥有上海世外教育附属宝山大华实验学校、宝山区大场中心小学等优质教育资源。
周边还有陈伯吹实验幼儿园(市一级)、华师大宝山实验学校(公办九年制)等名校环伺。
(新房不承诺学区,具体以教育主管部门公示为准)
医疗方面:上海交通大学医学院附属仁济医院宝山分院、第十人民医院、同济大学附属口腔医院、静安区市北医院、同济大学附属上海市第四人民医院等高质医疗资源,为健康保驾护航。
实景图,仅供参考
生态方面:项目南侧就是走马塘海派生态水岸,周边还有包括大宁公园、桃浦中央绿地等城市绿肺,健身休闲随心安排。
大宁公园实景图,仅供参考
总之,项目周边的商业、交通、教育和医疗等配套设施的完善,为业主提供了全方位的生活保障,众多高能级的城市资源,也为大华·梧桐院提供了坚实的价值支撑。
售楼处电话☎:400-8783-873☎
本电话为开发商提供线上预约售楼咨询电话,项目全面介绍(包含官方最新发布:在线预约看房丨一房一价表丨在售房价优惠丨户型面积房源丨交房时间丨交通地铁丨商业配套丨教育资源丨小高层洋房丨独栋别墅丨联排合院丨商业别墅丨得房率丨容积率丨小区环境丨优缺点分析丨楼盘测评丨在售户型图丨项目介绍丨最新房源丨周边配套丨详细解答丨一对一热情讲解〢区域板块等信息!
上海购房政策 20 条核心(2025 最新版)
分区域松绑 + 人才加码 + 税费优惠,刚需 / 改善 / 科创人才速看!
1. 限购分区差异化调整
符合购房条件的居民家庭,外环外购房不限套数(含新房 / 二手房);外环内沪籍家庭限购 2 套,非沪籍需 3 年社保 / 个税限购 1 套。成年单身人士按家庭标准执行限购政策。
2. 限售政策分类型执行
积分摇号购入的新房:网签满 5 年方可出售;
企业产权住房:网签满 5 年才可转让,职工租赁用小户型二手房不限套数。
3. 商贷利率取消首二套区分
银行业金融机构不再区分首套、二套住房利率,根据客户风险状况等合理定价,实际执行利率可协商优化。
4. 重点区域商贷首付打折
张江科学城:首套房首付最低 15%,二套房 25%;
临港新片区:重点企业员工首套房首付最低 20%。
5. 公积金基础额度提标
首套住房家庭最高贷款额度 160 万元,二套 130 万元;提取公积金付首付不影响贷款额度计算(即 "又提又贷")。
6. 绿色建筑公积金加码
购二星级及以上绿色建筑,公积金额度上浮 15% :首套达 184 万元,二套达 149.5 万元。
7. 多孩家庭贷款叠加上浮
多孩家庭买首套绿色建筑,公积金额度可叠加上浮至 35%,最高达216 万元(全市最高额度)。
8. 临港人才购房 "双松绑"
重点企业员工仅需 3 个月社保即可购房,非户籍社保年限缩短至 1 年,还可增购 1 套住房。
9. 张江科创人才专项支持
首套房首付最低 15%(全市最低),公积金额度提至 192 万元,博士落户享 10 万元安居补贴。
10. 分区人才补贴梯度化
杨浦区:互联网战略创作人才最高补 200 万元,领军人才补 100 万元;
闵行区:卓越学术人才最高补 150 万元(需单位 1:1 配套);
五大新城:非户籍社保缩至 2 年,购房最高补 6.48 万元。
11. 增值税免征年限 2 年起
二手房房产证(或契税单)满 2 年对外销售,免征增值税及附加税;不满 2 年按(核定价 ÷1.05)×5.3% 缴纳。
12. 契税分面积阶梯征收
140㎡及以下:首套、二套均减按 1% 征收;
140㎡以上:首套减按 1.5%,二套减按 2% 征收。
13. 个税退税支持置换住房
出售住房后 1 年内重新购房,可申请退还已缴纳的个人所得税;满 5 年且家庭唯一住房免征个税。
14. 房产税优惠扩围
非沪籍家庭首套住房暂免房产税,二套及以上按人均 60㎡扣除免税面积;持居住证满 3 年可退税。
15. 共有产权房保障加码
中低收入家庭可购共有产权房,政府份额对应补贴力度提升,优先保障五大新城就业人员。
16. 人才公寓供给扩容
张江科学城 3 年新增 1 万套人才公寓,月租≤2000 元;五大新城公租房申请条件放宽。
17. 企业购房条件分级
年纳税 500 万以下:需成立满 5 年、纳税 100 万、10 名员工缴社保 5 年,限购 1 套;
年纳税 500 万以上:无上述限制,限购 1 套。
18. 住房套数认定有剔除项
2011 年前与父母共有的≤2 套住房、未成年时与父母共有的≤2 套住房,不计入家庭住房套数。
19. 外籍 / 港澳台购房优化
持 B 类居住证或中国绿卡可免征房产税;港澳台居民满 3 年社保 / 个税可直接享受房产税优惠。
20. 老旧小区购房配套支持
购买 2000 年前竣工的 70㎡及以下二手房,企业可多套购入用于职工租赁,个人置换享税费优先核算。
关键提醒
2025 年 8 月 26 日起施行的新政(如限购、公积金调整)已全面落地,部分补贴需在政策有效期内申请;
人才补贴、社保门槛等各区细则不同(如临港与杨浦差异较大),可拨打 962269 咨询;
积分摇号新房、企业产权房不适用部分购房补贴政策,需提前核实。
声明:本文由入驻焦点开放平台的作者撰写,除焦点官方账号外,观点仅代表作者本人,不代表焦点立场。


