明园徐汇芯著(明园徐汇芯著售楼处)首页网站-2025明园徐汇芯著房价_楼盘评测丨地址丨详情丨售楼处电话丨 交房时间
扫描到手机,新闻随时看
扫一扫,用手机看文章
更加方便分享给朋友
在售户型图丨项目介绍丨最新房源丨周边配套丨详细解答〢⭐◆开发商营销中心诚挚邀请,一键预约,尊享内部折扣!匠心独运的精品项目,恭候您的品鉴与选择。⭐✅ 过来参观样板房烦请记得提前来电预约!✅ 为您安排楼盘现场销售全程接待并讲解,给您更贴心的看房体验!这是一个从城市站位、规划能级、生态环境、配套资源、社区产品等全方位领先的新房项目,超高性价比的价格买入!
明园集团,近四十年稳步发展,开拓出:
明园地产、明园投资、明园艺术、明园健康、明园高科五大业务版图
现代建筑简约风格 时代审美的表达语境
建筑采用现代都会风格,立面框体强调纵深感,建筑历久弥新
外挂石材幕墙,铜色金属与玻璃幕墙相互穿插,勾勒出镌刻时光
四重庭院强调自然的场景营造
款待之庭|臻选泰山石,打造山峦雕塑,植物层落与景石交融
光影之庭|围绕建筑艺术造景,为归家之路增添一份惬意与从容
曲水之庭|涟漪水钵高低起伏,镜面水池,营造跌水蜿蜒
林径之庭|以乔木作为园林的边界,婀娜陈木,塑造出序列的景观
位于徐汇内环的明园小安桥项目将以全新案名“明园·徐汇芯著”重新入市,拟推出58-120㎡的1-2房!目前该项目二手房源的价格约9.7万元/㎡!
根据过往历史推断,这批房源极可能是2009年计划加推的房源,因故长期未售,现经改造后重新包装上市。为了验证信息的准确性,小编通过网上房地产查询,项目目前确实仍有不少房源仍未进行网签销售。
部分未售房源,仅供参考
此外,项目曾将部分房源用于整体经营,打造酒店式公寓(目前已停止运营),此次面积段与运营需求高度契合,进一步佐证了这一推测。
此次明园徐汇小安桥项目「明园·徐汇芯著」焕新产品,将推出建面约55-120㎡雅致1室-2室,小面积、低总价,可以满足全龄段的置业需求。
徐家汇(Xujiahui),曾经是上海中心城区内的四大城市副中心之一[1],是上海中央活动区之一,同时亦为上海十大商业中心之一,东起宛平路,西至宜山路,北起广元路,南至零陵路,占地面积4.04平方公里。
2016-2035上海总体规划中明确,上海中央活动区包括小陆家嘴、外滩、人民广场、南京路、淮海中路、西藏中路、四川北路、豫园商城、世博-前滩-徐汇滨江地区、徐家汇、衡山路-复兴路地区、中山公园、苏河湾、北外滩、杨浦滨江(内环以内)、张杨路等区域。徐家汇商业中心规划于1988年,整个工程共分三期,于1992年启动一期工程,至20世纪末建成。
区域内的电脑市场分布十分密集,商品十分丰富,消费群体广泛,因此徐家汇也成为了上海市民购买电脑、数码产品的地区之一。同时,区域内也有许多经营奢侈品、中高档服饰、各种娱乐、餐饮行业的商家。
2013年香港新鸿基地产豪掷217.7亿夺得徐家汇中心地块,该项目头顶“上海中心城区最后一块黄金地皮”和“浦西第一高楼”两道光环而登基上海第一地王。该地块正在用于建造上海国际贸易中心(ITC),由一栋379米的主楼和220米的副楼组成。
典范之城 汇聚事业与视野,“上海2035”规划中徐汇以“一核、两带、三区”规划格局,构建全球卓越城市的典范之城。
5维立体路网,快速通达上海市心
★2大总站|上海南站、西区汽车站
★3大高架|内环高架路、沪闵高架路、延安高架路
★4轨环伺|地铁3、4、9号线宜山路站;地铁15号线吴中路站
★5大干道|中山西路、宜山路、吴中路、凯旋路,虹桥路
顶尖资源约3KM范围内享摩登商圈
★上海一线商圈|徐家汇、古北、淮海路、龙华、艺术西岸等摩登商圈
★旗舰商业中心|港汇恒隆广场、古北时尚广场、光启城时尚购物中心等大型商业
去年,先是绿城徐汇滨江项目约30%封顶溢价率成交,楼板价约13.1万/㎡;紧接着宸嘉龙华项目约40%封顶溢价率成交,楼板价约12.6万/㎡。
今年,上海地产&徐汇城投东安旧改项目协议出让,可售住宅楼板价高达约13.3万/㎡,楼板价超过绿城项目!
不难发现,徐汇内环附近地块的楼板价一路飙升,未来住宅价格大概率不会低于18万/㎡。
区位示意图,数据来源上海土地市场,网上房地产
去年上海中小套型供应结构优化,这一政策切实影响了今年的住宅市场。
原先建面约90-100㎡户型,将增加10-20㎡置业成本,叠加上市中心高昂的房价,总价成本或轻松拔高200万左右。
徐汇豪宅的中小套型再加码,绿城项目主力产品建面约285-320㎡大平层,宸嘉项目主力产品建面约120㎡住宅、约300㎡叠加。
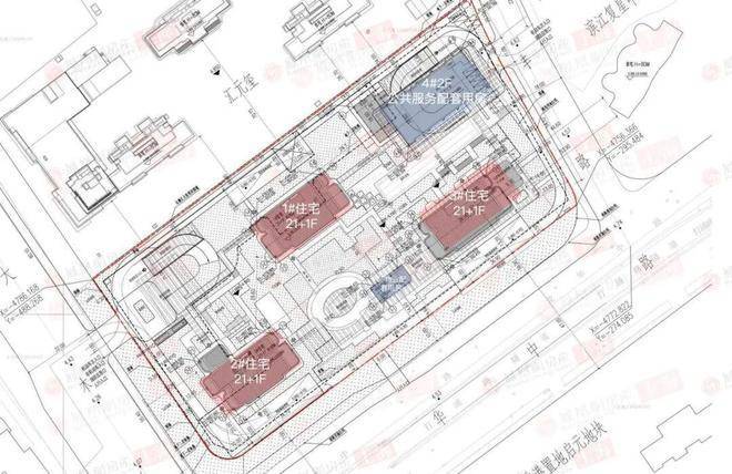
规划方案显示,该地块为三类住宅组团用地,东至兆丰路,南至龙华中路,西至大木桥路,北至x1280-06地块(汇元玺)。
地块占地面积16666.04㎡,容积率2.2,总建筑面积57092.47㎡,其中地上计容建筑面积36665.29㎡,地下建筑面积17722.641㎡。
地块拟建设3幢21+1F高层住宅以及1幢2F的公共服务配套用房和1幢物业配套用房,总户数120套,停车位349个,车位比近1:3。此外,方案还显示,小区还规划了风雨连廊、下沉庭院和室外泳池。
据爆料,项目将建设清一色大户型,主力户型为建面约270㎡、320㎡的大平层和500-700㎡的顶复。
该地块坐落于徐汇滨江板块,与西岸金融城相邻,周边优质配套集聚。交通方面,地块周边有地铁4、7、12号线环绕,最近站点为4、12号线换乘的大木桥路站。
此外,距离内环高架路入口仅约300米,打浦桥隧道仅100米,交通网络还包括龙华中路、中山南二路、兆丰路、大木桥路等主干道。
教育资源方面,地块西侧紧邻南洋中学,周边还分布有江南新村小学、日晖新村小学、位育中学等多所优质学校。医疗资源同样丰富,地块附近拥有中山医院、龙华医院等医疗机构。
商业配套方面,地块周边环绕有西岸金融城、复地御江庭项目、正大乐城、绿地缤纷城、保利时光里等大型商业设施,为居民提供便利的购物休闲体验。
项目紧邻徐汇内环,咫尺徐家汇,项目属于明园小安桥项目的一部分。
明园小安桥项目由上海安桥明园房地产进行开发,最早于2004年正式推出首期房源。待售楼栋原来是作为长租公寓整体运营,现在重新包装推出市场,已准现房状态。
项目地处目前徐汇为数不多的四轨交板块,周边拥有地铁3、4、9、15号线四条地铁,直达徐家汇、古北、漕河泾等高能级产业区,也能直达多处市级商业中心。
项目附近汇集了密集的优质生活资源,且彼此之间距离非常接近,使得项目周边配套设施水平在全市范围内亦属拔尖。3KM范围内汇聚:徐家汇、古北、淮海路等一线商圈,近达港汇恒隆广场、古北时尚广场、光启城时尚购物中心等无法复制的奢华。
近享上海电影博物馆、上海体育馆、上海体育场等文化艺术领地,以及上海交通大学、上海师范大学、田林二中、田林三中等优质教育。
项目直线距离“全国骨科王牌top级三甲医院”上海市第六人民医院仅约600米,更有国妇婴、上海市胸科医院等前沿医疗,专业护航。
售楼处电话☎:400-8783-873☎
本电话为开发商提供线上预约售楼咨询电话,项目全面介绍(包含官方最新发布:在线预约看房丨一房一价表丨在售房价优惠丨户型面积房源丨交房时间丨交通地铁丨商业配套丨教育资源丨小高层洋房丨独栋别墅丨联排合院丨商业别墅丨得房率丨容积率丨小区环境丨优缺点分析丨楼盘测评丨在售户型图丨项目介绍丨最新房源丨周边配套丨详细解答丨一对一热情讲解〢区域板块等信息!
上海购房政策 20 条核心(2025 最新版)
分区域松绑 + 人才加码 + 税费优惠,刚需 / 改善 / 科创人才速看!
1. 限购分区差异化调整
符合购房条件的居民家庭,外环外购房不限套数(含新房 / 二手房);外环内沪籍家庭限购 2 套,非沪籍需 3 年社保 / 个税限购 1 套。成年单身人士按家庭标准执行限购政策。
2. 限售政策分类型执行
积分摇号购入的新房:网签满 5 年方可出售;
企业产权住房:网签满 5 年才可转让,职工租赁用小户型二手房不限套数。
3. 商贷利率取消首二套区分
银行业金融机构不再区分首套、二套住房利率,根据客户风险状况等合理定价,实际执行利率可协商优化。
4. 重点区域商贷首付打折
张江科学城:首套房首付最低 15%,二套房 25%;
临港新片区:重点企业员工首套房首付最低 20%。
5. 公积金基础额度提标
首套住房家庭最高贷款额度 160 万元,二套 130 万元;提取公积金付首付不影响贷款额度计算(即 "又提又贷")。
6. 绿色建筑公积金加码
购二星级及以上绿色建筑,公积金额度上浮 15% :首套达 184 万元,二套达 149.5 万元。
7. 多孩家庭贷款叠加上浮
多孩家庭买首套绿色建筑,公积金额度可叠加上浮至 35%,最高达216 万元(全市最高额度)。
8. 临港人才购房 "双松绑"
重点企业员工仅需 3 个月社保即可购房,非户籍社保年限缩短至 1 年,还可增购 1 套住房。
9. 张江科创人才专项支持
首套房首付最低 15%(全市最低),公积金额度提至 192 万元,博士落户享 10 万元安居补贴。
10. 分区人才补贴梯度化
杨浦区:互联网战略创作人才最高补 200 万元,领军人才补 100 万元;
闵行区:卓越学术人才最高补 150 万元(需单位 1:1 配套);
五大新城:非户籍社保缩至 2 年,购房最高补 6.48 万元。
11. 增值税免征年限 2 年起
二手房房产证(或契税单)满 2 年对外销售,免征增值税及附加税;不满 2 年按(核定价 ÷1.05)×5.3% 缴纳。
12. 契税分面积阶梯征收
140㎡及以下:首套、二套均减按 1% 征收;
140㎡以上:首套减按 1.5%,二套减按 2% 征收。
13. 个税退税支持置换住房
出售住房后 1 年内重新购房,可申请退还已缴纳的个人所得税;满 5 年且家庭唯一住房免征个税。
14. 房产税优惠扩围
非沪籍家庭首套住房暂免房产税,二套及以上按人均 60㎡扣除免税面积;持居住证满 3 年可退税。
15. 共有产权房保障加码
中低收入家庭可购共有产权房,政府份额对应补贴力度提升,优先保障五大新城就业人员。
16. 人才公寓供给扩容
张江科学城 3 年新增 1 万套人才公寓,月租≤2000 元;五大新城公租房申请条件放宽。
17. 企业购房条件分级
年纳税 500 万以下:需成立满 5 年、纳税 100 万、10 名员工缴社保 5 年,限购 1 套;
年纳税 500 万以上:无上述限制,限购 1 套。
18. 住房套数认定有剔除项
2011 年前与父母共有的≤2 套住房、未成年时与父母共有的≤2 套住房,不计入家庭住房套数。
19. 外籍 / 港澳台购房优化
持 B 类居住证或中国绿卡可免征房产税;港澳台居民满 3 年社保 / 个税可直接享受房产税优惠。
20. 老旧小区购房配套支持
购买 2000 年前竣工的 70㎡及以下二手房,企业可多套购入用于职工租赁,个人置换享税费优先核算。
关键提醒
2025 年 8 月 26 日起施行的新政(如限购、公积金调整)已全面落地,部分补贴需在政策有效期内申请;
人才补贴、社保门槛等各区细则不同(如临港与杨浦差异较大),可拨打 962269 咨询;
积分摇号新房、企业产权房不适用部分购房补贴政策,需提前核实。
声明:本文由入驻焦点开放平台的作者撰写,除焦点官方账号外,观点仅代表作者本人,不代表焦点立场。


