绿城凤栖东方(售楼处)网站-2025绿城凤栖东方营销中心(售楼处中心)欢迎您-周边环境-户型-价格-地址-楼盘详情-户型配套-售楼电话-交房时间
扫描到手机,新闻随时看
扫一扫,用手机看文章
更加方便分享给朋友
绿城凤栖东方售楼处电话☎:400-8673-567
绿城凤栖东方营销中心电话:400-8673-567←【预约热线】

规划首曝!纯别墅
绿城凤栖东方,即,苏地2025-WG-Z01号地块项目,位于吴中经开区郭巷街道东方大道东侧、正荣国领南侧,是2月26日,中电建以底价48681万元竞得,成交楼面价17902元/平。
绿城凤栖东方售楼处电话☎:400-8673567【售楼热线】绿城凤栖东方营销中心热☎400-867-3567绿城凤栖东方售楼处地址☎400-8673-567

中电建郭巷1号地块项目的地块用途为商住混合用地,占地面积26660.2平,容积率1.02.
根据规划信息,项目拟建16栋住宅和1栋商业;
其住宅部分,16栋3-5F住宅,其中13栋3F联排、3栋5F叠墅。
绿城凤栖东方售楼处电话☎:400-8673567【售楼热线】绿城凤栖东方营销中心热☎400-867-3567绿城凤栖东方售楼处地址☎400-8673-567

最新消息!吴中郭巷规划调整公示!涉及2宗宅地!
其中一宗为苏地2023-WG-97号地块,拿地距今近2年,或有望近期入市?来看——
绿城凤栖东方售楼处电话☎:400-8673567【售楼热线】绿城凤栖东方营销中心热☎400-867-3567绿城凤栖东方售楼处地址☎400-8673-567

修正范围:本次技术修正地块位于吴中区郭巷街道(除尹山湖地区)控制性详细规05基本控制单元。
修正内容:将05-33地块分割为05-33a、05-33b两个地块。其中,05-33a地块保留原控制指标;05-33b地块容积率由≤2.2-3.1勘误修正为≤3.1,绿地率由≥37%修正为≥35%。
绿城凤栖东方售楼处电话☎:400-8673567【售楼热线】绿城凤栖东方营销中心热☎400-867-3567绿城凤栖东方售楼处地址☎400-8673-567
两宗宅地位于东进路北侧、尹中路东侧,东侧05-33a地块是安置房小区凤舞泾花园,今年刚交付。
西侧05-33b地块即苏地2023-WG-97号地块,早在2023年12月就已拍出,距今已有近2年时间。
由天鸿伟业联手吴城置业竞得,成交总价约159215万元,成交楼面价约14500元/m²。
绿城凤栖东方售楼处电话☎:400-8673567【售楼热线】绿城凤栖东方营销中心热☎400-867-3567绿城凤栖东方售楼处地址☎400-8673-567
区位示意图
今年8月项目规划出炉,容积率1.6,拟建27栋大体量住宅社区,包括12栋叠加+15栋洋房,其中洋房占比较高。
绿城凤栖东方售楼处电话☎:400-8673567【售楼热线】绿城凤栖东方营销中心热☎400-867-3567绿城凤栖东方售楼处地址☎400-8673-567
鸟瞰效果图,以实际交付为准
楼幢整体采用南低北高排布方式,主出入口设置在南侧前进路;未来项目营销展示和核心景观在西南角区域。
绿城凤栖东方售楼处电话☎:400-8673567【售楼热线】绿城凤栖东方营销中心热☎400-867-3567绿城凤栖东方售楼处地址☎400-8673-567
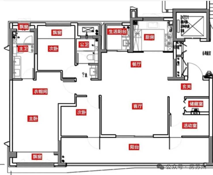
叠加、洋房标准层户型同步公示——
19#为6F叠墅,顶层可打造成大露台;层高方面,上叠和中叠1F约3.3米,2F约3.2米;下叠1F约3.5米,2F约3.2米。
绿城凤栖东方售楼处电话☎:400-8673567【售楼热线】绿城凤栖东方营销中心热☎400-867-3567绿城凤栖东方售楼处地址☎400-8673-567
叠加1层(下叠):南向面宽约9.6米,南向大阳台,客餐厅厨一体化;配有一个套房可作为老人房;外加1个客卫。
绿城凤栖东方售楼处电话☎:400-8673567【售楼热线】绿城凤栖东方营销中心热☎400-867-3567绿城凤栖东方售楼处地址☎400-8673-567
户型过程稿,以最终官方公示为准
叠加2层(下叠):南向大阳台,客厅上空挑高,后期可根据需求打造成3个套房。
绿城凤栖东方售楼处电话☎:400-8673567【售楼热线】绿城凤栖东方营销中心热☎400-867-3567绿城凤栖东方售楼处地址☎400-8673-567
户型过程稿,以最终官方公示为准
叠加3层即中叠1层:南向大阳台,北向大露台,客餐厅厨一体化,1个南向套房。
绿城凤栖东方售楼处电话☎:400-8673567【售楼热线】绿城凤栖东方营销中心热☎400-867-3567绿城凤栖东方售楼处地址☎400-8673-567
户型过程稿,以最终官方公示为准
13#为11F洋房,层高约3米;
绿城凤栖东方售楼处电话☎:400-8673567【售楼热线】绿城凤栖东方营销中心热☎400-867-3567绿城凤栖东方售楼处地址☎400-8673-567
4房2卫套型,南向面宽约14.4米,三联阳台,北向生活阳台,主卧套房,可满足二胎或与老人同住改善家庭需求。
绿城凤栖东方售楼处电话☎:400-8673567【售楼热线】绿城凤栖东方营销中心热☎400-867-3567绿城凤栖东方售楼处地址☎400-8673-567
户型过程稿,以最终官方公示为准
另据拍地要求,须装修交付,装标不低于2000元/m²;住宅单套户型面积不得低于110平方米,总户数不大于915户。

项目周边厂区较多,城市界面一般,安置房环绕;商业依赖东侧尹山湖,就近北侧旭辉美澜城的自带商业,也可以满足日常所需。
交通优势较为明显,紧邻7号线尹山站,可轻松换乘2/4号线,真正地铁盘。
还有吴东快速路、南湖快速路等多条快速路;独墅湖南隧道已建成通车,自驾可快速通达园区,地缘及近园区改善可以关注。
绿城凤栖东方售楼处电话☎:400-8673567【售楼热线】绿城凤栖东方营销中心热☎400-867-3567绿城凤栖东方售楼处地址☎400-8673-567
区位示意图

此前板块多以高层、洋房为主,马上三大别墅纯新盘入市,彻底向低密开卷!
位置都不错,近园区,且均在地铁口;其中星河湖西源启、绿城凤栖东方规划、案名均已定,最快2026年1月底首次开盘!
绿城凤栖东方售楼处电话☎:400-8673567【售楼热线】绿城凤栖东方营销中心热☎400-867-3567绿城凤栖东方售楼处地址☎400-8673-567
星河·湖西源启
就在龙湖·九里璟园南侧,出门7号线,同样是正宗地铁盘。
绿城凤栖东方售楼处电话☎:400-8673567【售楼热线】绿城凤栖东方营销中心热☎400-867-3567绿城凤栖东方售楼处地址☎400-8673-567
延伸阅读:湖西源启!近园区杀出首座「浮岛墅区」!
容积率1.25,划拟建24幢住宅,包括22栋4F叠加+2栋11F洋房!洋房为四代宅。
户型面积段首次流出,叠加建面约160-180㎡,洋房建面约141㎡,都是改善大户型。
作为苏州改善新规发布后的“1号”作品,项目整体抬升,带来城市全新低密浮岛墅区!
叠加首层“地上架空车库”,洋房首层架空打造多功能主题泛会所,强化社区功能;并且打造多连廊贯穿,真正实现无风雨归家!
绿城凤栖东方售楼处电话☎:400-8673567【售楼热线】绿城凤栖东方营销中心热☎400-867-3567绿城凤栖东方售楼处地址☎400-8673-567
绿城·凤栖东方
就在正荣国领南侧,拥有临湖景观(独墅湖)和正向公园景观(独墅湖公园)双重生态资源,是独墅湖西岸沿线为数不多的沿湖景观宅地。
绿城凤栖东方售楼处电话☎:400-8673567【售楼热线】绿城凤栖东方营销中心热☎400-867-3567绿城凤栖东方售楼处地址☎400-8673-567
区位示意图
项目容积率仅1.02,规划13栋3F联排与3栋5F叠加,体量不足百套;其中联排约305-455m²,叠加约224-412m²。
一线独墅湖景、配套专属豪华会所...豪宅属性拉满。
鸟瞰效果图,以实际交付为准
绿城凤栖东方售楼处电话☎:400-8673567【售楼热线】绿城凤栖东方营销中心热☎400-867-3567绿城凤栖东方售楼处地址☎400-8673-567
平面示意图,以实际交付为准
因为商住用地,还自带商业规划,建面不小于300平米,未来提升生活便利度。
绿城凤栖东方售楼处电话☎:400-8673567【售楼热线】绿城凤栖东方营销中心热☎400-867-3567绿城凤栖东方售楼处地址☎400-8673-567

板块上一个别墅项目是2016年首开的建发独墅湾,时隔9年,独墅湖西岸低密上新,绿城出品,市场热度肯定不会低。
绿城凤栖东方售楼处电话☎:400-8673567【售楼热线】绿城凤栖东方营销中心热☎400-867-3567绿城凤栖东方售楼处地址☎400-8673-567
声明:本文由入驻焦点开放平台的作者撰写,除焦点官方账号外,观点仅代表作者本人,不代表焦点立场。


