政策利好加持,星合晋墅开启双湖低密生活新篇章
扫描到手机,新闻随时看
扫一扫,用手机看文章
更加方便分享给朋友
近期,上海楼市迎来重大利好政策调整,限购政策放宽、公积金贷款额度提高、商业贷款利率优化以及房产税政策完善,一系列举措为购房者提供了更多便利和实惠。特别是外环外不限套数的政策,以及首套房公积金贷款最高可达184万元(多子女家庭可达216万元)的优惠,让许多有改善性需求家庭看到了置业良机。在这样的政策背景下,星合晋墅这样的高端住宅项目,无疑是值得关注的优质选择。
基本信息
星合晋墅,这座由城市生活美学运营商精心打造的住宅项目,秉持"只定制,不复制"的理念,为每一位业主提供独一无二的生活体验。项目拥有约50%的绿化覆盖率,容积率仅为约1.02,让您在繁华都市中也能享受到低密度舒适生活。项目包含7层的洋房和3层的院墅两种业态,主推建面约230㎡-350㎡的低密洋房,以及建面约400㎡-700㎡的稀缺院墅,满足不同家庭的需求。如果您对星合晋墅感兴趣,欢迎拨打咨询热线:18662309054。
18662309054
区域配套
星合晋墅周边配套齐全,让您轻松享受约3公里范围内的黄金繁华生活。教育方面,项目周边有一站式全龄教育资源,包括华林幼儿园、双湖湾教育幼儿园、翰林小学和尹山湖中学等知名学府,为孩子的成长提供优质的教育环境。医疗资源同样丰富,双湖区域内有星海医院、九龙医院、独墅湖医院等权威医疗机构,为您的健康保驾护航。交通方面,项目近邻5号和8号地铁,同时拥有金鸡湖大道、独墅湖大道、金鸡湖隧道三条黄金主轴,让您高效通达全城。商业配套也十分完善,山姆会员店、星湖天地、星月坊商业街等文娱商圈荟萃,满足您日常购物和休闲需求。此外,项目与1.6公里外的金鸡湖高尔夫会员专属俱乐部和3公里外的独墅湖公园为邻,让您在繁忙之余,也能享受到城市中的诗意绿境。
品牌价值
星合控股作为国际高端品牌,自2003年进入苏州以来,已在园区深耕20余载,致力于打造高端住宅、奢华酒店和潮流商业的标杆作品。星合控股始终与时代共进,全维打造国际化高端生活方式,其代表作品包括苏州晋园别墅、晋合水巷邻里、晋府水巷别墅、金湖湾以及洲际酒店、凯悦酒店等知名项目。在星合晋墅,特别值得一提的是约11亩的湖叙SPACE,这是一处位于双湖之畔的国际生活艺术藏馆,也是一处时光放缓、心灵栖居的所在。会所内设有泳池、羽毛球场、高端健身区、家族私宴厅、亲子阅读室等私享空间,为您演绎高端圈层的生活范本。
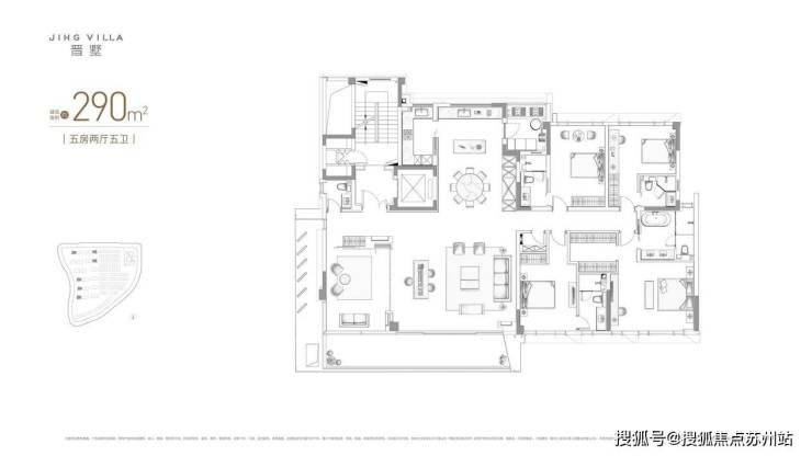
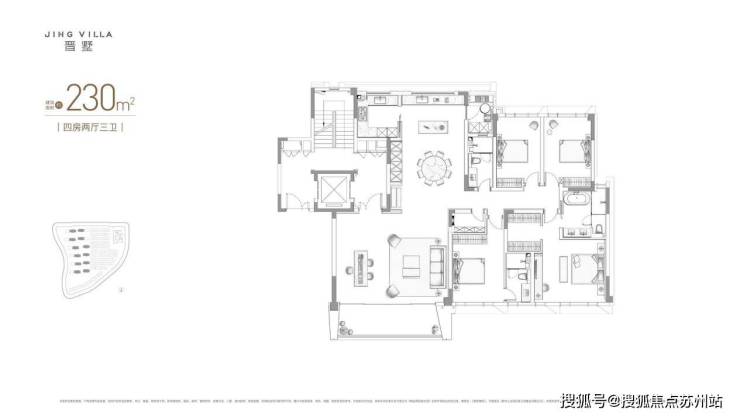
户型鉴赏
星合晋墅在户型设计上,从"精神场域构建"到"大宅场景空间"都经过精心考量。项目主推建面约230㎡-350㎡的低密洋房,空间布局合理,功能分区明确,满足现代家庭对高品质生活的追求。同时,项目还提供联排产品,建面约400㎡-700㎡,让您在享受城市便利的同时,也能拥有私家庭院和独立空间。无论是洋房还是联排,每一款户型都经过精心设计,确保采光、通风和景观的最佳效果,让您在家中就能感受到生活的美好。
联排产品



优劣势分析
优势分析:
低密度社区:容积率仅约1.02,绿化覆盖率高达50%,居住舒适度高
优质区位:位于双湖区域,周边配套完善,交通便利
品牌保障:星合控股深耕苏州20余年,拥有丰富的开发经验和良好的市场口碑
产品稀缺:洋房和院墅产品面积较大,定位高端,在市场上较为稀缺
圈层价值:项目配备高端会所,为业主提供专属社交空间
劣势分析:
价格较高:作为高端项目,总价相对较高,适合有一定经济实力的购房者
户型面积较大:对于小家庭而言,可能存在空间浪费的情况
周边配套虽完善,但部分设施可能需要一定时间成熟
随着上海限购政策放宽和公积金贷款额度提高,当前正是购房的黄金时期。星合晋墅作为双湖区域的高端住宅项目,凭借其低密度、高绿化率的社区环境,以及完善的周边配套和品牌保障,未来升值潜力巨大。随着苏州城市发展的不断推进,双湖区域的配套设施将更加完善,生活便利性将进一步提升。对于追求高品质生活的购房者而言,选择星合晋墅不仅是选择一处居所,更是选择一种生活方式,一种与城市共成长的投资。在政策东风助力下,星合晋墅必将开启品质生活的新篇章,为业主带来更加美好的居住体验和更高的资产价值。
联系方式: 咨询热线:18662309054
声明:本文由入驻焦点开放平台的作者撰写,除焦点官方账号外,观点仅代表作者本人,不代表焦点立场。


