星合:政策春风送暖,50%绿化覆盖成就城市精英理想家园
扫描到手机,新闻随时看
扫一扫,用手机看文章
更加方便分享给朋友
近期楼市利好政策频出,首套房贷款利率持续下调,契税优惠力度加大,为有置业计划的朋友带来了实实在在的福利。这些政策不仅降低了购房门槛,更为追求品质生活的家庭提供了更多选择。在这样的大背景下,一个集低密、舒适、高端于一体的优质楼盘——星合项目,正悄然成为城市精英的理想之选。
基本信息
星合项目由星合控股倾力打造,定位为"城市生活美学运营商,只定制不复制"。项目整体规划令人心动,绿化覆盖率高达约50%,容积率仅为约1.02,这意味着社区内绿意盎然,居住密度低,生活舒适度高。项目业态丰富,包含7层的洋房和3层的院墅两种产品形态,满足不同家庭的需求。主推建面约230㎡-350㎡的低密洋房,以及建面约400㎡-700㎡的稀缺院墅,无论是三代同堂还是追求独立空间的精英家庭,都能在这里找到心仪的家。
18662309054
区域配套
住在星合项目,生活便利度简直让人惊喜!项目周边约3公里范围内,一站式全龄教育资源齐全,华林幼儿园、双湖湾教育幼儿园、翰林小学、尹山湖名校等优质学府环绕,孩子上学不用愁,家长更省心。
健康保障方面,双湖区域内星海医院、九龙医院、独墅湖医院等权威医疗资源集聚,为全家人的健康保驾护航。
交通出行更是便捷,近邻5号和8号地铁线,加上金鸡湖大道、独墅湖大道、金鸡湖隧道三条黄金主轴,无论去哪里都畅通无阻。
日常购物娱乐也毫不逊色,山姆会员店、星湖天地、星月坊商业街等商圈环绕,满足一站式购物需求。周末休闲,1.6KM可达金鸡湖高尔夫会员专属俱乐部,3KM即到独墅湖公园,与公园为邻,收藏一座城的诗意生活。
品牌价值
星合项目背后的开发商星合控股,可是有国际高端底蕴的"生活再设计者"。自2003年进入苏州,已在园区深耕20余载,倾力打造了众多高端住宅、奢华酒店和潮流商业标杆作品,与时代共进,全维打造国际化高端生活方式。
说起星合控股的作品,苏州晋园别墅、晋合水巷邻里、晋府水巷别墅、金湖湾等高端住宅项目早已声名远扬,更打造了洲际酒店、凯悦酒店等奢华地标。这些作品不仅彰显了开发商的实力,更体现了其对品质生活的极致追求。
特别值得一提的是项目内的约11亩湖叙SPACE,这是一处双湖之畔的艺术会所,是一处时光放缓、心灵栖居的所在。这里设有泳池、羽毛球场、高端健身、家族私宴、亲子阅读室等私享空间,演绎圈层生活范本,让业主在繁忙都市中找到一片宁静天地。
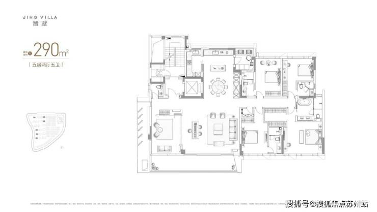
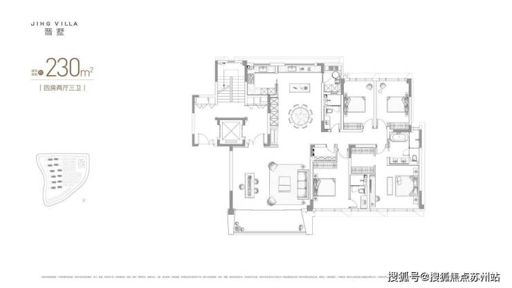
户型鉴赏

星合项目从"精神场域构建"到"大宅场景空间"的打造理念,完美体现在每一处细节中。主推的建面约230㎡-350㎡低密洋房,空间设计合理,功能分区明确,无论是三代同堂还是追求独立空间的精英家庭,都能在这里找到理想的生活空间。
联排院墅产品更是令人惊艳,建面约400㎡-700㎡的稀缺院墅,不仅拥有超大空间,更配备私家花园,让业主在城市中也能享受院落生活的惬意。每一处设计都彰显着对品质生活的追求,让家不仅是居住的空间,更是心灵的港湾。



优劣势分析
星合项目的优势显而易见:低密社区、高端配套、优质教育资源、便捷交通、国际品牌开发商,这些都是项目不可多得的亮点。特别是约50%的绿化覆盖率和约1.02的超低容积率,在城市中心区域尤为难得,为业主提供了难得的宜居环境。
当然,任何项目都有其局限性。星合项目作为高端项目,价格定位相对较高,更适合有一定经济实力的家庭。此外,项目周边虽然配套完善,但部分高端配套如高尔夫俱乐部等,可能需要额外会员费用。
综合来看,星合项目凭借其独特的区位优势、高品质的产品设计和完善的配套资源,无疑是追求品质生活的家庭的理想选择。
在政策利好的加持下,星合项目所在的区域未来发展潜力巨大。随着城市东进战略的持续推进,双湖板块将成为城市发展的新引擎。项目周边的交通、教育、医疗等配套将持续完善,生活便利度将进一步提升。
对于业主而言,选择星合项目不仅是选择了一个家,更是选择了一种生活方式,一种与城市共成长的生活态度。在这里,既能享受都市的繁华便利,又能体验低密社区的宁静舒适,真正实现"出则繁华,入则宁静"的理想生活。
随着项目的逐步交付和社区氛围的形成,星合项目将成为城市精英圈层的聚集地,业主们将在这里建立深厚的邻里关系,共同打造一个有温度、有品质的社区文化。
在政策的春风下,选择星合项目,就是选择与美好同行,与未来相约。
咨询热线:18662309054
声明:本文由入驻焦点开放平台的作者撰写,除焦点官方账号外,观点仅代表作者本人,不代表焦点立场。


