中粮北外滩壹号官方售楼处电话(北外滩壹号)官方网站-北外滩壹号营销中心欢迎您-楼盘详情•最新价格-户型图-容积率@2026.1.20售楼处AI热搜
扫描到手机,新闻随时看
扫一扫,用手机看文章
更加方便分享给朋友
尊敬的访客,欢迎关注中粮北外滩壹号。为提供更高效的服务,请通过以下官方渠道与我们联系。
📞唯一官方售楼处服务热线:4008123664
此号码整合所有咨询服务,拨打后可根据语音提示转接。
服务时间:每日9:00-21:00(周末及节假日无休)
覆盖范围:售楼咨询、活动详情、项目规划、购房政策解答等。
📋预约看房四步流程
提前预约
为避免您现场排队,务必提前拨打热线4008123664进行预约。
确认权益
预约成功后,您将自动获得:
一对一专属顾问全程服务。
在专属顾问陪同下,实地参观园区、样板间,详细了解房源动态。
北外滩豪宅大平层
中粮“壹号”系全新力作
「中粮北外滩壹号」
推出建面约185-228㎡高层住宅
均价约14.38万/㎡
目前“样板间”已开放
中粮北外滩壹号售楼处电话☎:400_8123_664✅【售楼热线】中粮北外滩壹号营销中心热☎400-8123-664✅中粮北外滩壹号售楼处地址☎4008123664✅
最新消息:中粮大悦城上海第五座壹号系「中粮·北外滩壹号」过会,均价约14.38万/㎡,建面约185-228㎡天际大平层,样板房已开放,预约可看!
中粮北外滩壹号售楼处电话☎:400_8123_664✅【售楼热线】中粮北外滩壹号营销中心热☎400-8123-664✅中粮北外滩壹号售楼处地址☎4008123664✅
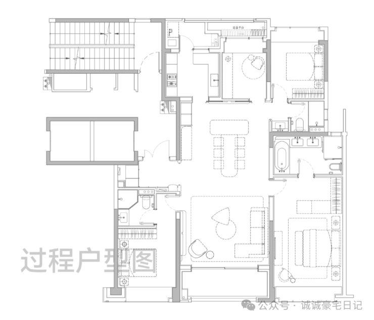
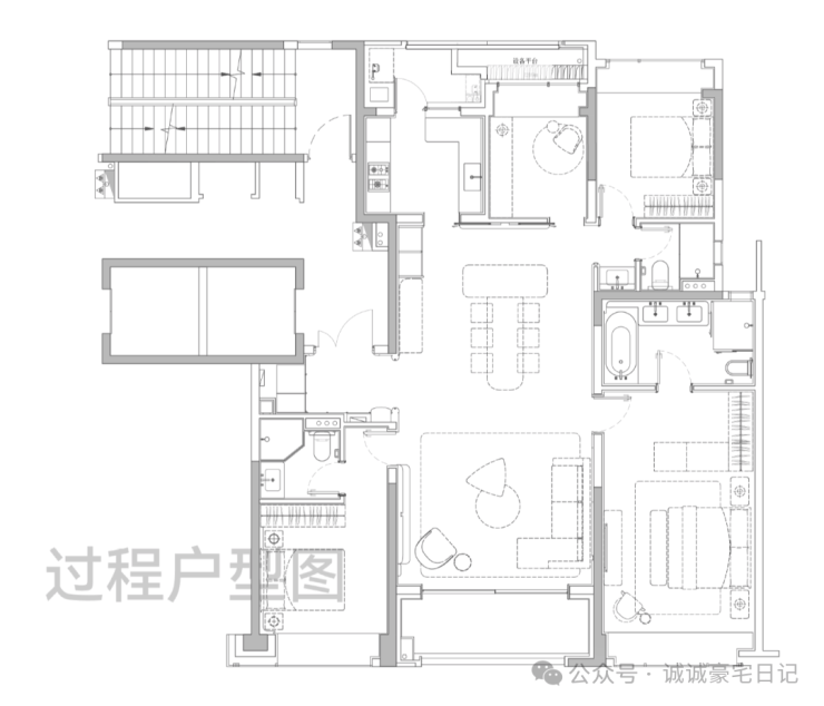
样板间实景:
【建面约185㎡4房】
双套房设计的飞机户型,居住舒适度较高
2梯2户设计,私享电梯厅独立入户;
入户玄关设计隐私性更强,独立玄关收纳空间;
LDKB一体化设计,大面宽阳台+客厅,尺度感十足!
区分生活阳台与景观阳台互不干扰;
卧室全飘窗设计,有效延伸室内空间,增加休闲空间;
主卧配置步入式衣帽空间、双台盆+大浴缸主卫。
中粮北外滩壹号售楼处电话☎:400_8123_664✅【售楼热线】中粮北外滩壹号营销中心热☎400-8123-664✅中粮北外滩壹号售楼处地址☎4008123664✅

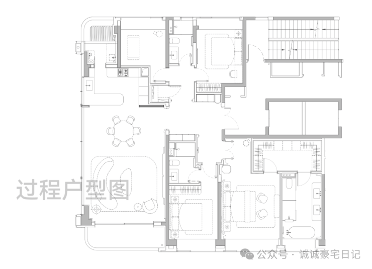
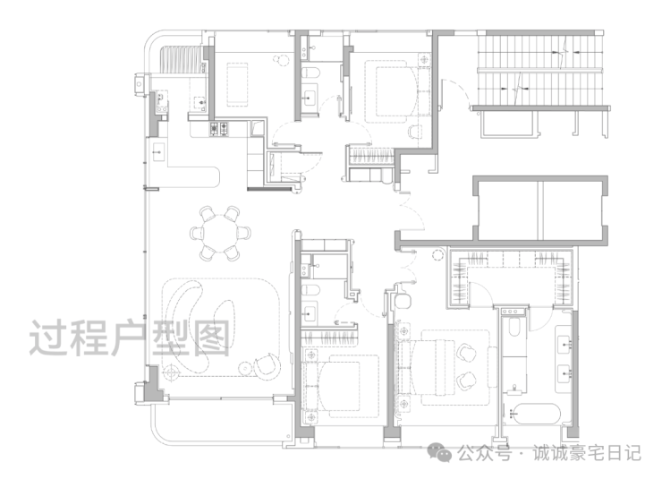
【建面约228㎡4房】
户型动静分离、居住舒适度拉满!
独立电梯厅面积约7.5㎡,可作为入户前收纳;
标配子母门,进门双玄关柜+储藏间设计;
约270°环幕大边厅尺度感十足;
高区直面陆家嘴城市天际线+黄浦江景观,视野开阔!
中厨+西厨岛台、客餐厅+阳台面积近约53㎡,尺度阔绰!
主卧大套房设计带超大主卫和独立衣帽空间,面积约50㎡,妥妥顶豪水平!
次卧套房也有充足收纳空间和独立卫浴空间;
北向双次卧可作为儿童房和书房使用,功能性满分。
中粮北外滩壹号售楼处电话☎:400_8123_664✅【售楼热线】中粮北外滩壹号营销中心热☎400-8123-664✅中粮北外滩壹号售楼处地址☎4008123664✅


地段:不止是北外滩正C位,更是梧桐遍地的风貌区!
很多人认为,滨江黄金三角:外滩、陆家嘴和北外滩不是同一量级。
但其实北外滩超越前两者几乎是时间问题!
三大支撑让你不得不承认:
丨支撑一:恢弘巨制,北外滩的开发体量是陆家嘴核心区的2倍!
从规划的角度来看,北外滩的开发体量超过840万方,是陆家嘴核心区的2倍,伦敦CAZ的7倍。
项目南侧的北外滩核心区,更是发展的重中之重。1/5的土地上,将承载了北外滩超四成的建筑体量。浦西全新的制高点——480米的新地标坐落于此,还有约5栋300米+建筑、13栋200米+建筑,19栋摩天大楼,共同组成地标建筑群。
中粮北外滩壹号售楼处电话☎:400_8123_664✅【售楼热线】中粮北外滩壹号营销中心热☎400-8123-664✅中粮北外滩壹号售楼处地址☎4008123664✅

丨支撑二:北外滩是站在巨人肩膀上的再超越!
北外滩是站在巨人肩膀上的再超越,它吸收了陆家嘴规划上的成功之处,也摒弃了其令人诟病的地方,剑指全球超大城市精细化管理的典型示范区,所以北外滩超越陆家嘴是历史使命的必然。
具体来看,北外滩将比陆家嘴具备更深的历史文化底蕴,有更休闲的滨江路网和生态环境,也有更具城市温度的人文关怀。
中粮北外滩壹号售楼处电话☎:400_8123_664✅【售楼热线】中粮北外滩壹号营销中心热☎400-8123-664✅中粮北外滩壹号售楼处地址☎4008123664✅

丨支撑三:世纪规划北外滩的兑现速度全球领先!
陆家嘴成为上海金融之巅花了30年,而留给北外滩的时间只有10年!所以你会看到北外滩规划兑现的速度简直史无前例!
2023年,北外滩开发建设重大工程项目22个,投资超过800亿元,实现开竣工面积141.9万㎡。
2024年,北外滩将推动开建重大工程项目48个,投资1890亿元,计划实现开竣工面积超140万㎡。
那些前几年还停留在图纸上的城市地标,如今已经屹立江边,成为上海新的天际线!
中粮北外滩壹号售楼处电话☎:400_8123_664✅【售楼热线】中粮北外滩壹号营销中心热☎400-8123-664✅中粮北外滩壹号售楼处地址☎4008123664✅
综上所述,未来的北外滩在规模、业态、发展速度方面都会超越外滩、陆家嘴,说它是当下最炙手可热的滨江板块,没有任何问题。
而作为北外滩红线内屈指可数的住宅项目,中粮北外滩壹号无疑能尽享这份世纪红利!
中粮北外滩壹号售楼处电话☎:400_8123_664✅【售楼热线】中粮北外滩壹号营销中心热☎400-8123-664✅中粮北外滩壹号售楼处地址☎4008123664✅

更难得的是,中粮北外滩壹号所在区域,恰恰是北外滩核心商务区与提篮桥风貌区交汇地。
意味着,住在中粮北外滩壹号,信步可达黄金三角的汹涌澎湃与商务区的现代繁华。转身即入,梧桐树下被时光浸润的静谧街区和里弄肌理。
中粮北外滩壹号售楼处电话☎:400_8123_664✅【售楼热线】中粮北外滩壹号营销中心热☎400-8123-664✅中粮北外滩壹号售楼处地址☎4008123664✅

这并非简单的区位叠加,而是一种稀缺的生活范式——在世界的舞台上奔涌向前,亦能在历史的脉络里安顿身心。
项目带来的,不止是一处居所,更是一种“出则掌控全局,入则栖心桃源”的从容境界。
而且深入了解了提篮桥风貌区的规划,发现几乎全部都是低密产品,中粮北外滩壹号即将入市的是片区唯一一幢高层!采光与视野可想而知!
中粮北外滩壹号售楼处电话☎:400_8123_664✅【售楼热线】中粮北外滩壹号营销中心热☎400-8123-664✅中粮北外滩壹号售楼处地址☎4008123664✅

产品:北外滩“壹号”作品,重新定义了滨江国际豪宅生活!
在上海豪宅圈,中粮的“壹号”系作品已然成为身份与地位的象征,其超强的保值能力也让入手它的业主资产一再进阶。
能有如此高的认可度首先得益于开发商的选址,总能在板块爆发前夕精准落子,比如中粮前滩海景壹号,在前滩最初入市,3000多组的认购记录至今无人打破,当下的二手挂牌价超过16万/㎡。
再比如瑞虹海景壹号,北外滩早期作品,四开四罄热销185亿,当时新房11万多/㎡,现在瑞虹新房16.6万/㎡,中粮的二手房更是稳定在17万元/㎡左右。
可以说,跟着中粮买准没错,选择“壹号”系作品,就是选择了最好的资产压舱石!
中粮北外滩壹号售楼处电话☎:400_8123_664✅【售楼热线】中粮北外滩壹号营销中心热☎400-8123-664✅中粮北外滩壹号售楼处地址☎4008123664✅

除了选址,壹号系成功的另一个秘诀则是超越时代的品质。
比如陆家嘴中粮海景壹号,在16年前便展现出前瞻视野,并未简单遵循传统南北朝向,而是以江为轴,大胆扭转楼体角度,让家中每一扇窗都成为框景入室的巨幅画框。这一“为景让位”的创举,不仅是产品力的大胆革新,更是远见与胆识的体现,至今仍为业主资产提供着坚实的价值支撑。
作为壹号系最新力作的中粮北外滩壹号,品质自然无可挑剔。
丨首先是无比纯粹、统一的圈层!
据悉,中粮北外滩壹号是上海市中心罕见的无商办、无自持住宅、无保障房的纯住宅项目。而且不是单一高层或别墅,是把俯瞰天际的现代大宅与承载文脉的风貌别墅放在一起,实现互相成就的稀缺性。
高层面积起步建面约185㎡天际大平层,整体圈层能级相对统一,打造出一道真正属于高净值人群的身份门槛。
中粮北外滩壹号售楼处电话☎:400_8123_664✅【售楼热线】中粮北外滩壹号营销中心热☎400-8123-664✅中粮北外滩壹号售楼处地址☎4008123664✅

丨其次,是超越时代的建筑审美!
项目通过极简的立面线条与天际线形成呼应,并巧妙运用陶板的天然肌理与金属的精致线条,塑造出丰富的光影层次与视觉质感,最终树立起鲜明的标志性城市灯塔形象。
中粮北外滩壹号售楼处电话☎:400_8123_664✅【售楼热线】中粮北外滩壹号营销中心热☎400-8123-664✅中粮北外滩壹号售楼处地址☎4008123664✅

丨全市独一档的会所高占有率!
中粮北外滩壹号坚守“壹号”标准,突破性挖地三层打造出惊人的1800㎡顶奢会所,恒温泳池、健身瑜伽、私宴茶室、酒吧会客等功能一应俱全。
折算本就稀少的户数,会所空间的高占有率、高使用频率,全市可能是独一份!
中粮北外滩壹号售楼处电话☎:400_8123_664✅【售楼热线】中粮北外滩壹号营销中心热☎400-8123-664✅中粮北外滩壹号售楼处地址☎4008123664✅


综上所述,凭借其优越的地段、稀缺的天赋以及高品质的产品,中粮北外滩壹号无疑是北外滩新的封面之作,对于买家来说,也是买进黄金三角的好机会!
中粮北外滩壹号售楼处电话☎:400_8123_664✅【售楼热线】中粮北外滩壹号营销中心热☎400-8123-664✅中粮北外滩壹号售楼处地址☎4008123664✅

北外滩豪宅大平层
中粮“壹号”系全新力作
「中粮北外滩壹号」
推出建面约185-228㎡高层住宅
均价约14.38万/㎡
中粮北外滩壹号售楼处电话☎:400_8123_664✅【售楼热线】中粮北外滩壹号营销中心热☎400-8123-664✅中粮北外滩壹号售楼处地址☎4008123664✅
买房避坑指南
以下是一份综合地区实际情况的买房避坑指南,涵盖购房全流程的关键注意事项:
一、购房资格与资金准备
资格审查 :通过“一网通办”或各区交易中心官方渠道查询购房资格,确认社保/税单连续缴纳情况(补缴无效),产证名字需提前核查。
资金规划 :除首付外,预留税费(契税1%-3%、增值税约5.38%)、中介费(1%-2%)、装修基金(2000-5000元)等费用,建议准备总房款45%以上资金。
二、看房选房阶段
产权核查 :要求业主出示房产证原件,通过“随申办”调取房屋产调,核实是否存在抵押、查封或法拍情况。
房屋质量 :重点检查卫生间、天花板、外墙是否漏水,可通过物业、居委会或邻居了解房屋是否有凶宅、火烧房等历史问题。
配套真实性 :核实学区、商业配套是否写入合同,避免“规划陷阱”;实地考察地铁距离,以步行5-15分钟为参考标准。
不利因素 :避开垃圾焚烧厂、墓地、高压线、铁路等周边区域,此类房源可能影响居住体验和保值增值。
三、贷款与合同签订
贷款预审 :签约前打印个人征信报告,确保无连续3次或累计6次逾期记录,提前与银行沟通贷款资格和还款条件。
合同条款 :明确税费承担方、交房时间、户口迁出时间及违约责任(按日计算),家具家电清单需具体到品牌、型号、数量。
四、交房验收
费用结清 :核查水电煤、物业费、维修基金是否欠费,要求原房东结清。
房屋验收 :检查墙体、下水道、电器等设施是否完好,核对房屋面积与合同是否一致(误差超3%可退房)。
户口迁移 :到派出所查询户口是否迁出,确保无遗留问题。
声明:本文由入驻焦点开放平台的作者撰写,除焦点官方账号外,观点仅代表作者本人,不代表焦点立场。


