姑苏别墅苏州中式园林别墅-苏州拙政别墅 姑苏(拙政别墅)-在售户型-价格-咨询电话

搜狐焦点苏州站 2025-06-06 21:20:14
用手机看
扫描到手机,新闻随时看

扫一扫,用手机看文章
更加方便分享给朋友

为避免园内现代交通与古典园林的冲突,拙政别墅将车行路放置地下,主人通过地下车库大堂直达府中,最大程度上保证了居住者的安全性与私密性。拙政别墅沿袭中国私家园林气脉,在庭院、天井以及路径用石材与砖材铺设成十字海棠…

苏州豪宅 拙政别墅

拙政别墅咨询电话:18118152573【同微信】

开发商:苏州赞威置业有限公司

物业地址:苏州市姑苏百家巷99号(拙政园东北100米)

占地面积:34908平方米

建筑面积:41665平方米

容积率:0.588

绿化率:40%

售价:2500万起/栋

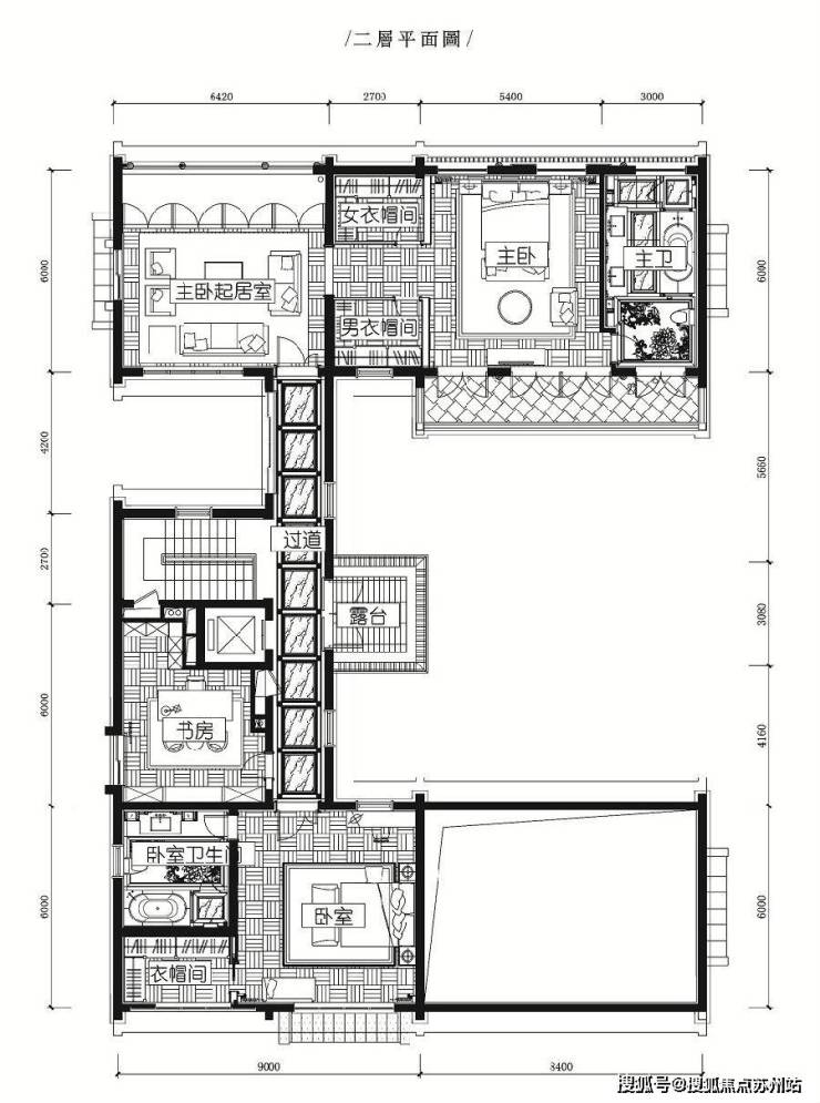
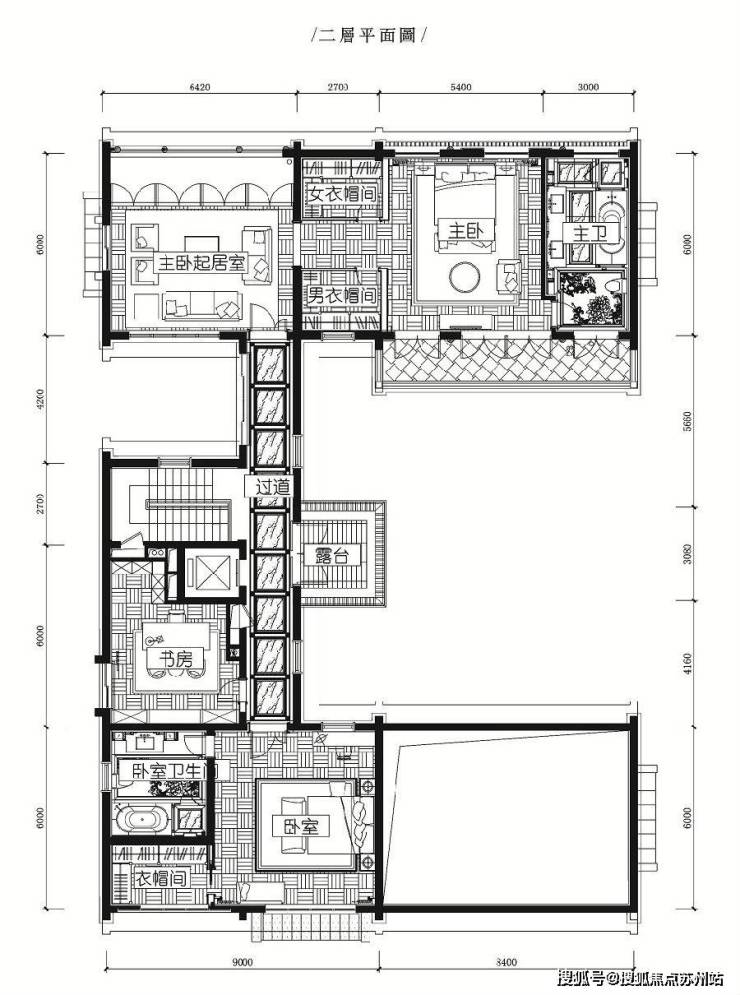
拙政别墅,位于世界四大园林文化遗产之首苏州拙政园旁的中心位置,北临北园路、东临百家巷,既具有士大夫择址造园所看重的大好风水,又被赋予了浓重的江南历史人文色彩。拙政别墅项目仅仅规划有28栋独栋别墅,面积从660-4000平米,私享1亩左右私属园林。别墅用料之考究,精选百年高级木材及石材,每幢别墅均为全套房、双客厅、男女主人独立会客空间、双厨房、室内游泳池、3-9个地下车位等。

苏州拙政别墅产品分析

基地

拙政别墅所处地块为苏州古城核心,拙政园旁,地势略高于四周,状如龟背。江南土软,为实现“地下景观动线”,避免建筑不均匀沉降,提高别墅居所的抗震性,使得28座独栋别墅连为一体。

规划——U子型布局

为避免园内现代交通与古典园林的冲突,拙政别墅将车行路放置地下,主人通过地下车库大堂直达府中,最大程度上保证了居住者的安全性与私密性。阳光经过独特设计的花窗被引入地下动线,旧日苏式园林“深宅大院”的繁华记忆在这里被重新寻回。拙政别墅私属内庭院背西朝东,而厅堂坐北朝南。苏州位于东南季带,此种朝向的U子型摆布,保证冬季采光与夏季通风。

有故事的主题园林及细节

拙政别墅主入口大门采用以全东南亚进口柚木为主,木柱直径达35厘米,整体跨度6米,直追紫禁城6.5米的皇室标准。订制铜徽、筒瓦为辅。拙政别墅门庭所用将军门,以进口东南亚柚木内包铜边。门上铜徽定制自铜业翘楚朱家,将别具江南韵味的青花瓷镶嵌于铜中。大门两侧镶嵌石刻麒麟,置坤石与石狮,是江南审美与传统技艺的珠联璧合。拙政门庭定制的专属筒瓦,颜色质地与柚木结构门庭相映成辉。

刻石

由非物质文化传承人、皇家园林建筑和苏州园林的缔造者——香山帮亲手打造,是对土地的尊重,更是对古园的保护。

围合

拙政别墅东、北围墙因临近白家巷与北园路,故高达6米,从而最大限度的围合了园内景观,屏蔽行人视线;南侧围墙略低,在视线上联通拙政园,更能保证采光。围墙上端设苏州样式花窗,为传统围墙的呆板注入灵韵。

园林

拙政别墅沿袭中国私家园林气脉,在庭院、天井以及路径用石材与砖材铺设成十字海棠、冰格、梅花等寓意吉祥的传统文祥,是“拙政十二景”意境的延伸。

选石

主入口选用一块体积巨大的金山石老料,切割拼接成石板,辅以香山帮手工石刻;园区内铺地选用香山帮珍藏多年的古城墙砖;园中碎石铺地,采用香山帮特有的工艺,将石块牢固的固定在路面,采用青草点缀其间,营造出一种包含光阴洗礼的生机盎然。拙政别墅的假山湖石皆来自明间收藏,极具美感的太湖石3000吨。经香山帮非物质文化遗产传承人、叠山工艺大师之手,将传统叠山手法与中国审美结合,师法自然,缔造独峰、小品、驳岸、璧山、拼峰等,遍布园中。

桥·水

拙政别墅园中多用曲桥和拱桥,或用廊桥,借水生景,虚实相接。园中水系抛缺旧园中用水井相连的方法,采用现代科技的整体水循环系统,时刻清洁水系,减少蚊虫滋生。

内庭院入户门

门头木饰板装饰以纯金金箔,两侧墙上镶嵌汉白玉石雕“五福捧寿”,下置坤石与石狮,集传统礼序与姑苏特色与一身。

细节

气孔—苏州金砖砖雕出气孔

水孔—金山石石雕“富贵有鱼”出水孔

飞檐—极具古典苏式建筑特色的飞檐

户型设计理念

尊礼重序,古意今扬。拙政别墅注重礼序、注重专用、注重个人的私密性和尊贵感。

双门厅:普通别墅重门厅轻车库。但如今主人出入,车库反而常用。创立双门厅,既显文化尊贵,更显生活优雅,各得其所。

双客厅:双客厅设计,普通别墅的双客厅仅仅是大客厅加家庭起居,而如今别墅生活大多女主人打理。拙政别墅独创女性空间,将大客厅定义为男性空间,展示国宅贵胄。男性空间隔着庭院相望是尺度精致,装饰华丽精巧的女性空间,更有定制香氛,展示国宅雅趣。

双厨房:双厨房是垂直分区。地下室设置粗加工厨房。半成品借食梯输送到一楼精加工厨房,精加工厨房则可展示私家料理。双流线设计:主人和服务动线绝对分离,5个入户门使其各自出入,不相干扰。保证主人私密的独享空间。

多庭院设计:每户不仅有前院、中院和后院,极尽园林钩心斗角之精美,而且边院也别有洞天。即便地下室,也有下沉庭院借的日光入地来。全套房设计:套房其实就是楼中楼,盍门而自有起居、步入衣帽间、卫生间和大卧室。

五星服务用房:不仅重视主人,而且五星打造服务人员的生活服务空间,鼓励平等快乐工作。

科技

门窗:纯正苏式园林国邸的门窗,皆为原创研发、少量定制而成。以冰裂纹等传统窗棂花纹体现纯正苏式韵味;以独有的门芯板技术解决防火、防潮、保温、节能问题;以德国进口五金件保证开关顺畅与安全。

保温:A外墙保温,航天飞机专用的真空隔热板,被用于拙政别墅的外墙保温,实现真正意义上的“低碳环保生活”。 B内保温系统 别墅内保温系统绿色环保,同时具有呼吸性能,可以有效调节室内湿度与温度,最大程度的减少室内空间热量流失,可以在极端天气情况下保证室内空间的体感舒适度。

防水:地下室采用国家最高一级的防水标准,第一层,混凝土自密性防水;第二层,采用进口防水涂料;第三层,采用进口防根穿刺卷材,预防园林树木对建筑的损害。

安保:特别甄选与上海世博会中国馆同样的安防系统。

电梯:私家电梯为居住着带来便利性与专属感。

拙政别墅咨询电话:18118152573【同微信】

声明:本文由入驻焦点开放平台的作者撰写,除焦点官方账号外,观点仅代表作者本人,不代表焦点立场。