2025一文读懂龙湖青云阙优缺点!分析一下龙湖青云阙值得买吗?
扫描到手机,新闻随时看
扫一扫,用手机看文章
更加方便分享给朋友
苏州「龙湖青云阙」
龙湖青云阙售楼处预约热线:400-8228-664☎【预约热线】
【400-8228-664☎售楼处电话全面介绍 包含楼盘简介,价格,楼盘地址,户型图,交通规划,备案价,项目配套 售楼处位置丨特价房丨工抵房丨剩余房源丨户型图丨最新消息】 如有问题欢迎来电咨询,专业一对一热情服务,让您用专业眼光去买房。
温馨提示:为了节约您的等待时间,看房请提前致电售楼处预约!!!
苏州龙湖青云阙
备案均价31535元/㎡
单价区间在26896~34738元/㎡
总价区间在305~490万元
苏州龙湖青云阙
本次备案为1幢小高层和1幢高层
面积段为114-138㎡
距离上次领证近3个月

龙湖青云阙售楼处预约热线:400-8228-664☎【预约热线】
青云阙仅剩3幢没有领证,整体处于尾盘状态。根据销售情况来看,洋房的好楼层基本售罄,剩下的主要是底楼,高层剩余房源较多,可选择面大。

龙湖青云阙售楼处预约热线:400-8228-664☎【预约热线】
青云阙 (青云雅庭)
基本情况
开盘时间:2023年4月
交房时间:2024年12月
建筑类型:洋房19幢(8-10F)、小高层4幢(17F)、高层2幢(26F)
规划户数:809户
容积率:2
车位比:1.8 :1(1490个)
面积段:114~227㎡
开发商:苏州湖嘉置业有限公司(龙湖、漕湖置地)
交付:精装交付
物业:龙湖物业
龙湖青云阙售楼处预约热线:400-8228-664☎【预约热线】
龙湖青云阙售楼处预约热线:400-8228-664☎【预约热线】
苏州【龙湖启元·青云阙】
地标群上,龙湖大平层洋房
入苏十年 龙湖集团全新高定豪宅苏州首发
★地标群上 豪宅诞生
【超级IP】未来环地标群,百米直径“未来环”横跨相城大道,连通相城天街,opark欢乐时光,天虹,犹如北苏州之眼
【超级体量】苏州最新一代体量最大、业态最丰富的超级综合体,形成苏州规模最大商圈



★品牌龙湖青云阙售楼处预约热线:400-8228-664☎【预约热线】
【超强实力】世界500强龙湖,中国前10强,连续7年“三道红线”全绿档,购房者的放心首选
【洋房专家】四代升级更迭,10万余套洋房修为,业内公认的豪宅巨匠
【钻石级物业】中国物业管理协会副会长,2578条物业服务准则,行业标杆,全新升级【青云·印】高定服务体系,48项MOT顶级服务
龙湖青云阙是龙湖“阙系”在苏州的首次落地。据悉,在龙湖产品系中,“阙系”擅长打造低密改善洋房,发布会上也提到龙湖青云阙集合了龙湖集团产品研发团队的整体力量,诚意十足。
具体来看,青云阙建筑外立面以苏州玉雕为灵感,顶部设计为水景塔冠造型,立面以“铝板+LOW-E玻璃”为主要材料,增大窗墙比的同时,也让整个外立面显得更高端。
效果图
公区上,青云阙将引入“普拉达绿”奢石,未来会运用在入户大堂以及墙壁上,该品种石材为绿色调的天然石材,色调清新自然,一般只会用在豪宅项目上。
效果图
此外,项目入口还设置了约26米环岛酒店落客区及星空车库大堂,整体希望给到业主五星级酒店级别的体验。
效果图
项目售楼处未来也将保留并打造成为高端会所,二楼私人健身会所将涵盖普拉提、瑜伽、各类有氧运动于一体。
效果图
园林方面,项目会选取各种珍稀树种,并将苏州园林造景手法和龙湖造景手法相结合,打造出苏式特色园林景观。
效果图
龙湖青云阙售楼处预约热线:400-8228-664☎【预约热线】本站于近日去到项目参观,目前项目售楼处及部分景观已经实景呈现,售楼处高端石材及金属格栅的细节设计,看起来颇为大气;实景园林里布置了珍贵树种以及比较有设计感的水景组团。可以说,从目前呈现的实景来看,青云阙项目的高级感已经有了。
售楼处实景
龙湖青云阙售楼处预约热线:400-8228-664☎【预约热线】龙湖青云阙位置还是比较优越的,位于相城主城板块,周边三条轨交线环绕,地块南侧靠近在售的华侨城龙湖启元和龙湖相城天街,享受相城区核心区位及配套。

周边界面来看,项目北面是春申湖中路,即中环北线,东面是河流,南侧为中翔广场和大润发,西面是同一天拍出的和恒置地58号地块。
从周边配套来看,也是比较齐全的。
交通上面来看,北面就是中环北线,往东连接澄阳立交,可以联通苏州北站高架路和阳澄湖大道,去往青剑湖也是比较方便。
西面靠近相城大道,也是城市主干道,直接连接北环、东环,去往姑苏区、园区比较方便。
轨道交通上面,小区东面约400米就是在建的地铁7号线春申湖东路站,步行前往也比较方便 ,往南2站可以换乘在建的8号线,再往西2站可以换乘2号线。

龙湖青云阙售楼处预约热线:400-8228-664☎【预约热线】
商业配套上面,也是非常丰富的,小区西面就有中翔广场、红星美凯龙、大润发和环球港。
西南面有苏州王府井购物中心、天虹购物中心。此外天虹的对面就是在建设中的相城天街。
教育设施上面,距离比较近的有陆慕实小,苏大实验第二学校等,当然新房是不划分施教区的。
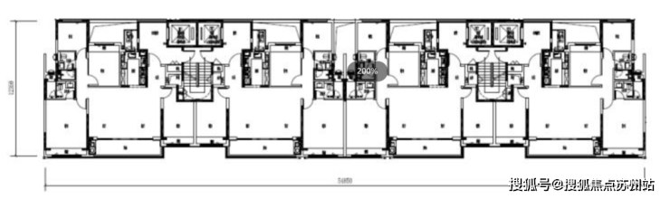
洋房户型
11#楼 1梯2户

4房2厅3卫户型

龙湖青云阙售楼处预约热线:400-8228-664☎【预约热线】
四开间朝南,南向面宽达约18.6m,南向双卧室套房设计,主卫是双台盆+浴缸设计,整体空间尺度感较强。
洋房户型
6#楼 1梯2户

4房2厅3卫户型

4开间朝南,南向双套房,主卧带大衣帽间和明亮主卫。
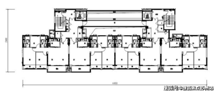
小高层户型
1#楼 2梯2户

龙湖青云阙售楼处预约热线:400-8228-664☎【预约热线】
4房2厅2卫户型

整体户型较为方正,3开间朝南,大横厅设计,南向面宽达到了13.7m,南向卧室均带有飘窗设计。
洋房户型
24#楼 1梯2户

3房2厅2卫户型


户型方面,高层和小高层面积段为114~141㎡,都采用了横厅的设计。

项目主推143-227㎡的大平层洋房,户型都是方厅,双联阳台,布局基本一致,只是在尺度上有所区别。
龙湖青云阙作为一个高端的产品系,定位也是非常明确,纯改善,产品业态丰富,高层起步141㎡,洋房主力三个,户型选择多
苏州「龙湖青云阙」售楼处预约热线:400-8228-664☎【预约热线】
如有问题欢迎来电咨询,专业一对一热情服务,让您用专业眼光去买房。
楼盘项目全面介绍,本电话为开发商提供线上售楼电话,楼盘项目全面介绍(包含楼盘简介,房价,价格,楼盘地址,户型图,交通规划,备案价,项目配套,楼盘详情,售楼处电话,最新消息,最新详情,周边配套,最新进展等详情咨询售楼处电话:400-8228-664☎(预约热线)
温馨提示:为了节约您的等待时间,看房请提前致电售楼处预约!!!
声明:本文由入驻焦点开放平台的作者撰写,除焦点官方账号外,观点仅代表作者本人,不代表焦点立场。


