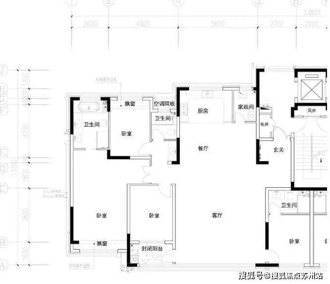
主卧3.6米,北卧室开间分别为3米和3.4米朝南开间19.5米,南向开间约7.1米朝南开间15.55米,客厅与卧室双联阳台设计,阳台长度9.75米,超级主卧西侧带大观景窗。恒泰&象屿月亮湾32号项目的到来,标…
刚刚!
恒泰&象屿园区独墅湖32号项目
继规划后,传来最新消息
项目打造10栋6-11F洋房产品
天字系,预计5月公开展厅
户型面积段约160/180/220/260㎡
据说品质比天誉东方还高
咨询热线:18662309054
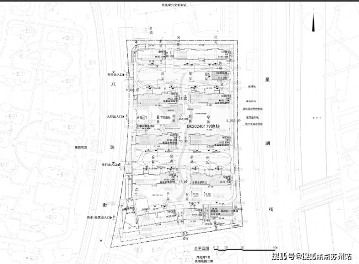
该项目位于创苑路南、星湖街西、八达街东侧,是去年12月恒泰&象屿以15.4亿总价竞得的地块,成交楼面价 28000元/㎡,溢价率0%。
整个地打造10栋6-11层的洋房产品,其中6栋为10层,2栋为11层,其余为6层。

项目的主次出入口均位于八达街路。

建筑设计
3#楼:层高3.1米,立面材质采用 米白色铝板、灰色铝板、墨绿色陶板、灰色铝板线条和银白色铝板组合。

建面约180㎡户型,
2梯4户设计,西边户为 4房2卫
LDKB一体化设计,客厅开间 8.5米
主卧3.6米,北卧室开间分别为3米和3.4米
客厅与南向卧室打通,形成8.5米的开间
无单独阳台。

咨询热线:18662309054
7#楼:首层高4.2米,标准层高3.1米,立面材质与3#楼相同。

东边户为一梯一户设计。
约260㎡边厅4房2厅3卫豪华套房
1梯1户,带一个家政间,入户双动线
朝南开间 19.5米,南向开间约7.1米
超75㎡边厅,西侧外接超10米开敞阳台
西侧外接超10米开敞阳台
南次卧外接封闭阳台
南向双套房,主卧套房设计
开间约4.3米,主卫双台盆带浴缸。

14#楼:层高3.3米,立面材质与前述楼栋一致。
一梯两户,4房3卫设计。

朝南开间15.55米,客厅与卧室双联阳台设计,阳台长度9.75米,超级主卧西侧带大观景窗。

32号地块作为独墅湖板块绝无仅有的新房独苗,稀缺性不言而喻。根据土拍要求,项目 未来装标不低于3000元/平!

咨询热线:18662309054
项目优势
32号地块位于独墅湖板块的核心位置,周边配套齐全,生活便利:
交通:近地铁2号线和8号线,独墅湖第二通道,自驾出行便捷。
商业:独墅湖邻里中心提供吃喝玩乐购一站式服务。
教育:独墅湖学校等教育资源丰富。
医疗:独墅湖医院近在咫尺。
休闲:月墅公园、独墅湖大剧院等休闲娱乐设施齐全。

项目周边环境优美,生活配套成熟,适合家庭居住。无论是日常通勤、购物休闲,还是子女教育、医疗健康,都能得到充分满足。
恒泰&象屿月亮湾32号项目的到来,标志着独墅湖板块又将迎来一个高品质的住宅项目。无论是从地理位置、建筑设计,还是周边配套,该项目都展现出了极高的居住价值。
最新消息,项目5月份公开城市展开,动作很快,期待项目的进一步推进,为购房者带来更多惊喜!
咨询热线:18662309054