苏州吴中太湖新城|金融街融悦沁庭|金融街融悦沁庭怎么样?双地铁纯洋房社区|华师大旁|图文详解|户型|位置|周边配套|价格
扫描到手机,新闻随时看
扫一扫,用手机看文章
更加方便分享给朋友
政策暖人心,安家有归处
最近苏州楼市,暖风频吹,对于想安家的朋友来说,真是个好消息。买新房有0.5%的补贴,卖一买一还能退个税,连老房子装修都给补贴,这一波苏州买房补贴操作下来,实实在在省下不少真金白银。
趁着这波好时机,选一套好房子,才是正经事。今天,就带大家看看一个藏在吴中太湖新城的宝藏盘——金融街融悦沁庭,一个能让你心动的地方。
基本信息
整个社区占地差不多4.8万方,盖了11.5万方的房子,容积率只有1.6,意味着楼间距宽,绿化多,住起来不拥挤。这里全是7到10层的纯洋房,楼层不高,居住体验特别好。整个社区就609户,邻里关系简单,圈层也纯粹。车位配比做到了1:1.5,非常充足,回家再也不用抢车位了。
融悦沁庭效果图
品牌价值
开发商是金融街控股,听着就靠谱,毕竟是打造过北京金融街的“老大哥”。这已经是他们在苏州的第三个“融悦系”项目了,前面两个都是区域标杆,品质有保障。另一个合作方是苏州国太发展,是吴中太湖新城的“亲儿子”,在这里投了约300亿,对这片区域的未来最有发言权。两大实力强强联手,苏州买房更安心。
区域配套
交通是真的方便,出门150米就是地铁4号线和在建的7号线木里站,是真正的“苏州地铁房”。开车的话,友新高架、东太湖大道、沪常高速都在旁边,无论是市区通勤还是长三角周边游,都能轻松搞定。

孩子上学是大事。项目一路之隔就是大名鼎鼎的华中师范大学苏州湾实验小学,周边还有华师苏实中、北美国际高级中学等优质学校,从幼儿园到中学,教育资源拉满,家长能省不少心。这让金融街融悦沁庭成为了名副其实的学区房。

生活配套更不用愁。永旺梦乐城、歌林小镇这些大商场,还有苏州湾中心广场、金融街融悦湾中心(在建),平时逛街娱乐去处多。文体方面有快手电竞馆、橙天嘉禾360剧场,生活多姿多彩。苏州市立医院总院(在建)和星晨儿童医院(在建)也在附近,健康有保障。旁边就是七子水街、天鹅湖公园,周末散散步,呼吸新鲜空气,多惬意。吴中太湖新城配套的完善,让生活更加便利。
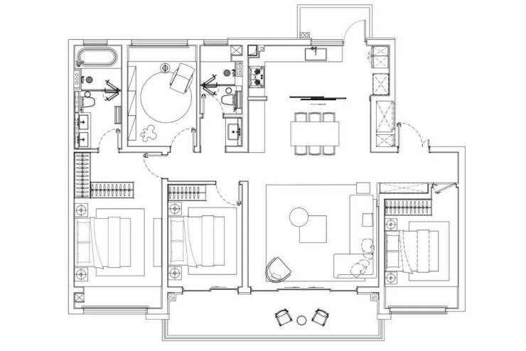
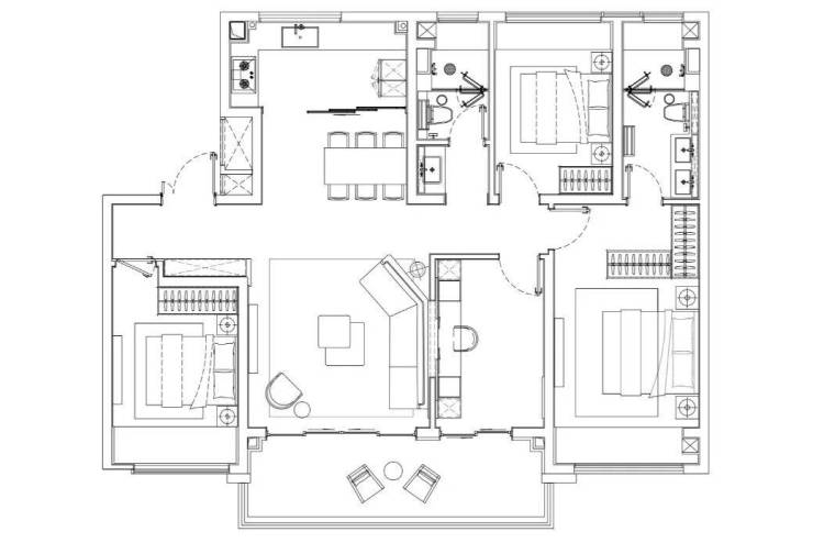
户型鉴赏
【心悠】-115㎡ 这个三房户型,三开间朝南,客厅有5.5米宽,特别敞亮。阳台进深约2米,还有好几个飘窗,空间利用率很高,小家庭住着刚刚好。
【心悦】-130㎡ 这个是四房设计,三个卧室朝南,采光无敌。客厅、餐厅、厨房、阳台一体化(LDKB格局),空间感特别强,还带一个灵活空间,可以当书房或者玩具房,满足家庭成长需求。
【心雅】-152㎡ 这个大户型就更厉害了,南北双阳台,通风一流。厨房还带个家政阳台和中岛台,喜欢做饭的朋友肯定爱了。四个房间朝南,全家人都能住得舒舒服服,改善一步到位。金融街融悦沁庭户型设计非常人性化。
优势分析
现在高层林立,纯洋房社区太稀缺了。住这里,楼层低,密度小,邻里圈层也更纯粹,居住体验直接拉满。
小区的外立面是真舍得下本钱,用的是“干挂铝板+大面积三玻两腔LOW-E玻璃”,不仅看起来现代高级,还隔音、保温,品质感一眼就能看出来。
装修交付标准也很高,中央空调、新风、地暖“三大件”配齐了,还贴心地加了软水系统,对皮肤和家里电器都好。全屋精装用的都是国际大牌,省心又放心。


安家于此,静待花开
政策的东风,让安家的门槛变得更亲切。而选择金融街融悦沁庭,不仅仅是买了一套房子,更是选择了一种看得见的未来。这里有双地铁带来的便捷,有名校环绕的书香,有吴中太湖新城的宏伟蓝图,更有实力房企的坚实保障。当政策红利遇上硬核产品力,这或许就是当下最好的安家苏州时机。
18662309054
声明:本文由入驻焦点开放平台的作者撰写,除焦点官方账号外,观点仅代表作者本人,不代表焦点立场。


