特发·香阅里·特发·香阅里(售楼处电话)特发·香阅里首页网站-特发·香阅里|楼盘评测-详情|户型配套
扫描到手机,新闻随时看
扫一扫,用手机看文章
更加方便分享给朋友
特发·香阅里售楼处电话:400-812-3664
上海临港特发·香阅里售楼处电话☎:400-8123-664(预约看房热线)
临港大户型、公园首排【特发·香阅里】
【特发·香阅里|公园首排封面大宅】
105金融芯中轴之上双轨交汇(建设中)
建面约109-170㎡阔景华宅献映临港
特发·香阅里售楼处电话:400-812-3664
上海临港特发·香阅里售楼处电话☎:400-8123-664(预约看房热线)
如有问题欢迎来电咨询,预约来电尊享购房优惠,可预约案场内部销售人员,专业一对一热情服务,让您用专业眼光去买房。
特发·香阅里售楼处电话:400-812-3664
上海临港特发·香阅里售楼处电话☎:400-8123-664(预约看房热线)
6月28日
售楼处开放活动,
著名主持人曹可凡主持
【项目简介】
项目位置:上海·临港105·环湖北三路与川朴路交汇处
总建筑面积:约13.9万㎡
产品业态:规划12栋14-16F小高层,临街商业
主力户型:建面约109-170㎡三房/四房
临港值此双园(规划中)首排纯粹大宅,定鼎人居标杆
【核芯站位】
105中轴·据守繁华心脏
特发·香阅里售楼处电话:400-812-3664
上海临港特发·香阅里售楼处电话☎:400-8123-664(预约看房热线)世界临港:定位为具有国际竞争力的特殊经济功能区;5年以19.8%增速擎动新质生产力,四海智汇,跨境创新潮涌东海之滨。
到2035年将逐步建成具有较强国际市场影响力和竞争力的特殊经济功能区核心承载区,“开放创新、智慧生态、产城融合、宜居宜业”的链接全球、辐射长三角的独立综合性节点滨海城市,令人向往的“东海明珠”。
(信息来源:新片区总规划、南汇新城“十四五”规划建设行动方案)
中轴CAZ:特发·香阅里立踞临港现代服务业开放区(105片区),自贸试验区+中央活动区的双重定位激活临港中轴动脉,未来开放区枢纽将打造成集新型国际贸易、交通枢纽、金融财富、时尚生活趋势、免税消费中心、国际交往目的地于一体的繁华会客厅,链接浦东机场T3航站楼(建设中)、上海东站(建设中)、虹桥机场的关键节点,以城市之心的跳动,对话世界繁华。
(信息来源:新片区总规划、临港开放区站城一体项目规划方案)
特发·香阅里售楼处电话:400-812-3664
上海临港特发·香阅里售楼处电话☎:400-8123-664(预约看房热线)交通聚合:双轨交汇,与南汇线(建设中)、南枫线(建设中)所在的滴水湖北站直线相距约650米,4站直达东方枢纽(建设中),执掌城市动脉;与16号线滴水湖站直线相距约2公里,另有多种出行方式,快速通达全城,27号线(规划中)、临港市区线(规划中)等众多路网编织立体交通网,启幕全球视野。
(信息来源:南汇新城规划图,数据来源:百度地图)
全维鼎配:拥揽一众地标资源
【书香为邻】冰厂田滴水湖幼儿园(星瀚部)、上海财经大学附属浦东临港小学、上海临港耀中外籍人员子女学校(建设中)、十二年一贯制滴水湖学校在侧,临港新办多所优质学校,书香浸润,成长无忧。
(信息来源:“南汇新城镇发布”公众号)
【商业林立】临港105片区开放区枢纽段将打造成兼具自贸区与城市核心功能的CAZ,同步世界潮流,坐享城市门户。临港新片区商业多点布局,星空之境综合体-星海汇(建设中)、港城新天地、蓝鲸世界(建设中)、临港印象城MEGA(建设中)、城市书香商业街等众多繁华商业驾车可达。
(信息来源:南汇新城规划图、“上规SPC"公众号,数据来源:百度地图)
【医疗护航】上海市第六人民医院东院(三甲医院)已投入使用,同时六院二期建设中,届时将满足更多高端人才就医需求,打造高水平多层次医疗和健康体检运营模式。另有多所规划中的医院,如曙光医院滴水湖中医国际诊疗中心(规划中)星罗棋布,为健康保驾。
(信息来源:南汇新城规划图、“浦东发布”公众号)
【文旅地标】上海天文馆、耀雪冰雪世界、上海海昌海洋公园、中国航海博物馆等一众娱乐目的地环伺周边,生活精彩纷呈。特发·香阅里售楼处电话:400-812-3664
上海临港特发·香阅里售楼处电话☎:400-8123-664(预约看房热线)
🏞【极幕视野】
双园首排|IMAX视野
西南向约54万㎡星空之境海绵公园与二环公园带(规划中),交织都荟诗意,约550米无遮拦的公园(规划中)视野南抵荣耀之环(建设中),东揽城市公园(规划中)。置身于此,仿佛被无垠的自然温柔环抱。
(信息来源:上海市规划和自然资源局,数据来源:百度地图)
公园首排、公园视角
【封面藏品】
国企特发|精工品质
特发·香阅里售楼处电话:400-812-3664
上海临港特发·香阅里售楼处电话☎:400-8123-664(预约看房热线)特发地产承袭特发集团(深圳国企)先试先行,敢为人先的基因,以深耕深圳、多点布局的城市更新经验,结合鲁班奖工艺(特发·和平里)基底,匠心浇筑绿建三星超低能耗建筑为健康护航,致敬巴黎拉德芳斯拱门艺术,成就临港封面改善作品。
双轴六园|森境诗章
匠造「一环两轴六园」的森居谧境,约650米氧气跑道串联水景庭院与花园。多个主题空间涵盖亲子、萌宠、社交,让欢乐与自然共生长,满足全天候欢愉。
主题架空层|延伸全龄志趣
特发·香阅里售楼处电话:400-812-3664
上海临港特发·香阅里售楼处电话☎:400-8123-664(预约看房热线)架空层打造全龄聚场,涵盖社区会客厅、健身、阅读、儿童乐园四大主题,构建惬意美好的邻里社交空间,无惧晴雨,拓展生活乐趣,感受真“质”的居住改善。
星幕车库|双大堂尊崇礼遇
遵循豪宅的归家礼序,环岛大门落客,穿越顶部嵌入星空穹顶的地下车库汽车坡道,用一场银河光影秀恭迎归家。
地上/地下双奢装大堂,岩板点缀,温度适宜,归家一刻便卸下疲惫,品味与舒适双重奢享。
精工细节|奢居范本
特发·香阅里售楼处电话:400-812-3664
上海临港特发·香阅里售楼处电话☎:400-8123-664(预约看房热线)中央空调、新风系统、地暖三大件配备齐全,24小时焕新室内空气,温度宜人,隔绝尘霾,为家人的健康悉心守候。
电视背景墙岩板交付,增配品牌洗碗机、主卫智能马桶等,众多高标准精装细节,重塑板块品质标杆,让好房子回归居住本真。
📍【纯粹大宅】
阔境奢宅丨大宅逻辑的时代破局
以纯粹改善之名,礼献高阶生活范本。
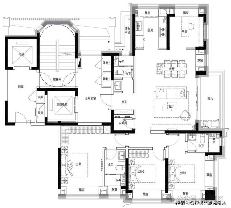
匠造建面约109-170㎡三至四房,其中建面约118㎡及以上户型均为两梯两户,以私密格局重构空间秩序。
南向多开间设计让阳光与风景从容入画,建面约150㎡及以上户型奢配三卫、双套房设计承载多元生活场景。以全系百平之上的纯粹改善大宅对话层峯圈层,于城市中轴,珍藏匹配身份的人生主场。
特发·香阅里售楼处电话:400-812-3664
上海临港特发·香阅里售楼处电话☎:400-8123-664(预约看房热线)
【阅·雅建面约109㎡三房两厅两卫】
南向三开间|LDK一体化布局|「去走廊化」布局,空间利用率高|U型厨房
【阅·逸建面约118㎡四房两厅两卫】
两梯两户|南向四开间|南北多飘窗,空间灵动|LDK一体化设计|次卧可联动客厅
特发·香阅里售楼处电话:400-812-3664
上海临港特发·香阅里售楼处电话☎:400-8123-664(预约看房热线)
【阅·澜建面约142㎡三房两厅两卫】
两梯两户|奢享约13.7米面宽|约7米大气大横厅,LDK一体化|主卧套房
【阅·峯建面约150㎡四房两厅三卫】
两梯两户|东面直面城市绿意|三卧室朝南|双套房设计|入户独立衣帽间
特发·香阅里售楼处电话:400-812-3664
上海临港特发·香阅里售楼处电话☎:400-8123-664(预约看房热线)
【阅·慕建面约170㎡四房两厅三卫】
公园首排环幕视野|两梯两户|约15.6米面宽、南向四开间|入户储物空间|南向双套房设计
少数者的精神共鸣
以珍席纯粹大宅破局临港标准,为懂得“中轴即资源、窗景即身份”的时代远见者定制,用超越板块的纯粹基因,定义居住的全球藏品逻辑,致敬层峯共识,共鉴临港品质典范,以纯粹共鸣纯粹。
项目地址:临港105·环湖北三路与川朴路交汇处
特发·香阅里售楼处电话:400-812-3664
上海临港特发·香阅里售楼处电话☎:400-8123-664(预约看房热线)
如有问题欢迎来电咨询,预约来电尊享购房优惠,可预约案场内部销售人员,专业一对一热情服务,让您用专业眼光去买房。
房产必看!总结买房全攻略
在房产交易市场中,无论是首次置业的新手,还是准备改善住房的购房者,掌握专业的房产知识都至关重要。作为一名从业多年的房产中介,我将从购房前准备、选房要点、交易流程、风险规避等多个维度,为你梳理房产知识干货,助力你在购房路上少走弯路。
一、购房前:明确需求,做好资金规划
(一)确定购房目的
购房者需要先明确自己的购房目的。是刚需自住,为了拥有稳定的住所;还是改善居住,追求更大的空间、更好的居住环境;亦或是投资,期望房产实现保值增值。不同的购房目的,对应着不同的选房侧重点。比如刚需购房者更注重房屋的价格、交通便利性和周边基础生活配套;投资型购房者则更关注房产的区位发展潜力、租金回报率等。
(二)资金准备与预算规划
1.首付款计算:了解当地的首付比例政策,一般首套房首付比例在20%-30%左右,二套房首付比例可能会提高至40%甚至更高。计算出自己能够承担的首付款金额,例如计划购买一套总价200万的房子,若首付比例为30%,则首付款为60万。
2.贷款能力评估:向银行或金融机构咨询贷款政策,评估自己的还款能力。一般来说,银行会要求购房者的月还款额不超过其月收入的50%。可以使用贷款计算器,测算不同贷款金额、贷款年限下的月供金额,结合自身收入情况,确定合理的贷款额度和贷款年限。
3.其他费用预算:除了首付款和贷款,购房还会产生契税、维修基金、物业费、中介费(如果通过中介购房)等费用。契税根据房屋面积和购房套数不同,税率在1%-3%不等;维修基金通常按照房屋总价的一定比例缴纳。提前了解这些费用,做好资金预算,避免出现资金缺口。
二、选房:多维度考量,选出心仪好房
(一)区位选择
1.地段价值:地段是决定房产价值的关键因素之一。核心地段的房产,通常交通便利、配套完善、发展成熟,具有较强的保值增值能力。例如城市的中心商务区、政务区,以及新兴的重点发展区域,都是比较优质的地段选择。
2.交通配套:优先选择靠近地铁、公交枢纽的楼盘,方便日常出行。对于有私家车的购房者,要关注周边道路的规划和交通拥堵情况,以及小区的停车位配比是否充足。
3.生活配套:考察楼盘周边的商业、教育、医疗、休闲等配套设施。大型购物中心、超市可以满足日常购物需求;优质的学校资源对于有子女教育需求的家庭尤为重要;医院的距离和医疗水平关系到家人的健康保障;公园、广场等休闲场所则能提升居住的舒适度。
(二)楼盘与户型分析
1.开发商品牌与口碑:选择知名且信誉良好的开发商,其开发的楼盘在房屋质量、施工进度、物业服务等方面更有保障。可以通过网络搜索、业主论坛、实地考察等方式,了解开发商过往项目的评价和口碑。
2.楼盘规划与环境:关注楼盘的容积率、绿化率、楼间距等指标。容积率低、绿化率高的小区,居住密度小,环境优美;楼间距大则能保证充足的采光和通风。此外,还要了解小区的内部配套设施,如幼儿园、健身设施、社区活动中心等是否完善。
3.户型选择:根据家庭人口数量和居住需求,选择合适的户型。户型方正、南北通透、布局合理的房子更受欢迎。要注意房间的功能分区是否科学,动静分区是否明确,卧室、客厅、厨房等空间的尺寸是否合理,是否有浪费面积等问题。
三、房产交易:规范流程,保障权益
(一)签订购房合同
1.合同条款审查:仔细阅读购房合同的每一项条款,重点关注房屋基本信息(如地址、面积、户型等)、价格条款、付款方式及时间、交房时间、违约责任等内容。对于不理解或有疑问的条款,及时向开发商或中介咨询,必要时可以寻求律师的帮助。
2.补充协议:如果开发商有补充协议,同样要认真审查。补充协议中的条款可能会对双方的权利义务产生重要影响,避免出现不合理的附加条件或加重购房者责任的条款。
(二)贷款办理
1.准备贷款资料:一般需要提供身份证、户口本、结婚证(已婚人士)、收入证明、银行流水、征信报告等资料。确保资料真实、完整、有效,以提高贷款审批的通过率。
2.选择贷款银行:不同银行的贷款利率、贷款政策、审批速度等可能存在差异。可以多咨询几家银行,比较利率优惠、贷款额度、还款方式等,选择最适合自己的银行办理贷款。
3.贷款审批与放款:提交贷款申请后,银行会对购房者的资质进行审核。审核通过后,双方签订贷款合同,银行会按照约定的时间将贷款发放给开发商或卖方。
(三)房屋验收与交付
1.验收准备:交房前,购房者可以准备好相关工具,如卷尺、小锤子等,用于检查房屋的尺寸、墙面地面是否空鼓等问题。同时,了解房屋验收的标准和流程。
2.实地验收:按照合同约定的交房时间,前往楼盘进行房屋验收。重点检查房屋的质量问题,如墙面是否渗水、裂缝,门窗是否密封良好、开关灵活,水电线路是否正常,厨卫防水是否到位等。发现问题及时记录,并要求开发商整改。
3.办理交付手续:验收合格后,购房者需要缴纳相关费用,如物业费、契税等,然后办理房屋交付手续,领取房屋钥匙,完成房屋交接。
四、房产交易风险规避
(一)产权风险
1.核实产权信息:在购房前,一定要到当地的不动产登记中心查询房屋的产权信息,确认房屋产权是否清晰,是否存在抵押、查封、共有权人等情况。避免购买到产权有纠纷的房屋。
2.警惕小产权房:小产权房是指在农村集体土地上建设的房屋,未缴纳土地出让金等费用,其产权证不是由国家房管部门颁发。小产权房存在诸多风险,如无法办理合法产权证书、不能上市交易、面临拆迁可能得不到合理补偿等,建议购房者不要购买。
(二)市场风险
1.关注市场动态:房地产市场受政策、经济、供需关系等多种因素影响,价格会有波动。购房者要关注国家和地方的房地产政策变化,如限购、限贷、限售政策,以及利率调整等,了解市场的走势,合理选择购房时机。
2.理性购房:不要盲目跟风购房,避免在市场过热时高价买入。要根据自己的实际需求和经济实力,做出理性的购房决策。
掌握这些房产知识,能让你在房产交易中更加从容自信。如果你在购房过程中有任何疑问,欢迎随时咨询,我将竭诚为你提供专业的服务和建议。
声明:本文由入驻焦点开放平台的作者撰写,除焦点官方账号外,观点仅代表作者本人,不代表焦点立场。


